Verkocht

Maalkoppelsingel 1 3255 CE Oude-Tonge

144m2
Wonen
5
Kamers
230m2
Perceel
2020
Bouwjaar
Instapklaar, energiezuinig & stijlvol wonen met ruimte binnen én buiten

Op een rustige plek in een jonge woonwijk staat deze modern afgewerkte en uitgebouwde 2 onder één kap woning.
Hier woon je met comfort, stijl en toekomstbestendigheid – dankzij de aardwarmtepomp en uitstekende isolatie. De woning biedt een royale leefruimte, drie volwaardige slaapkamers, een zolder én een vrijstaande garage met eigen parkeerplaats mét elektrisch laadpunt. Ideaal voor wie zonder verbouwen direct fijn wil wonen én klaar wil zijn voor de toekomst.
Begane grond
Begane grond
Via de hal met toiletruimte, meterkast met waterontharder en trapopgang bereik je de ruime en lichte woonkamer. Door de uitbouw aan de achterzijde geniet je hier van een heerlijk royale leefruimte met grote raampartij en schuifpui richting de tuin.
Aan de voorzijde bevindt zich de open keuken met Amerikaanse koelkast in moderne kleurstelling. Deze is voorzien van hoogwaardige inbouwapparatuur, ruim werkblad en veel kastruimte; perfect voor iedereen die graag kookt en gasten ontvangt.

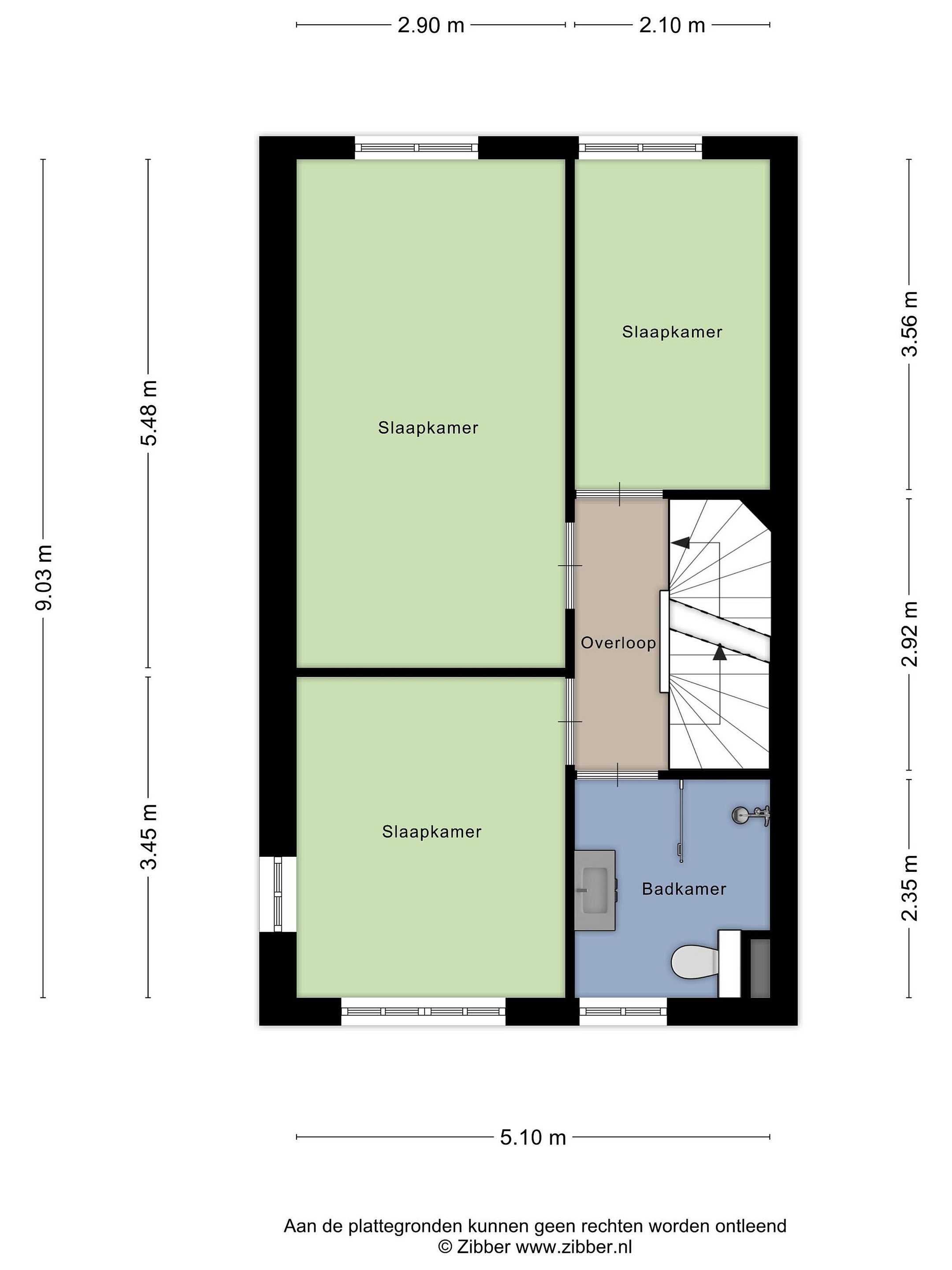
Eerste verdieping
Eerste verdieping
De eerste verdieping beschikt over drie slaapkamers, elk prettig van formaat en strak afgewerkt. De badkamer is modern ingericht en uitgerust met een douche, wastafelmeubel en tweede toilet.

Tuin
Achter en zijkant van de woning ligt een nette tuin met veel privacy en plek voor zowel een loungehoek als eettafel. Direct bij de woning liggen een vrijstaande garage én een eigen parkeerplaats met laadpunt voor een elektrische auto. Een heerlijke plus voor dagelijks gemak en duurzame mobiliteit.

Details
Pluspunten op een rij:
- Luxe en moderne keuken aan de voorzijde
- Ruime woonkamer dankzij achteruitbouw
- Aardwarmtepomp: energiezuinig en comfortabel
- Drie slaapkamers + af te werken zolder met vaste trap
- Vrijstaande garage
- Eigen parkeerplaats met elektrisch laadpunt
- Instapklaar en strak afgewerkt
- Rustige ligging in een kindvriendelijke wijk

Ben jij op zoek naar een moderne en energiezuinige gezinswoning die helemaal klaar is voor de toekomst?
Maalkoppelsingel 1 wacht op jou.

Lees meer

Verkoopgeschiedenis

Aangeboden sinds
4 december 2025
Verkoopdatum
16 april 2026
Looptijd
4 maanden

Kenmerken

Overdracht

Prijs per m2
€ 4.340
Aangeboden sinds
4 december 2025
Status
Verkocht
Aanvaarding
In overleg

Bouw

Soort woonhuis
Eengezinswoning, twee-onder-een-kap woning
Soort bouw
Bestaande bouw
Bouwjaar
2020
Soort dak
Schilddak
Staat van onderhouden binnen
Uitstekend
Staat van onderhouden buiten
Uitstekend

Oppervlakte en inhoud

Perceeloppervlakte
230 m2
Inhoud van de woning
448 m3
Oppervlakte externe bergruimte
19 m2

Indeling

Aantal kamers
5
Aantal slaapkamers
4
Aantal woonlagen
3
Voorzieningen
Tuin, kabel-tv, schuifpui, dakraam

Buitenruimte

Balkon
Nee
Schuur/berging
Nee

Maandlasten berekenen

De maandlasten voor je woning bestaan uit meer dan alleen de hypotheeklasten. Hieronder vind je een overzicht van de bijkomende kosten en lasten. Zo weet je precies wat je huis per maand gaat kosten. En met de handige vergelijkers kun je ook nog eens snel de beste deals sluiten!

  • Kaart
  • Streetview