Verkocht OV

Grondzeilerstraat 10 3255 CA Oude-Tonge

119m2
Wonen
4
Kamers
141m2
Perceel
2020
Bouwjaar
Modern, energiezuinig en instapklaar – gebouwd in 2020 en volledig toekomstbestendig
In één van de jongste en meest geliefde woonwijken van Oude-Tonge staat deze strak afgewerkte en energiezuinige tussenwoning uit 2020, voorzien van energielabel A en gebouwd volgens de meest actuele isolatie- en installatienormen. Een moderne woning met een woonoppervlakte van 119,3 m2, drie ruime slaapkamers, een royale zolderverdieping en een heerlijke achtertuin met optimale zonligging.
Dit huis biedt alles wat je zoekt: comfort, duurzaamheid, moderne afwerking en een instapklaar niveau waar je zó in kunt trekken.

*Ons kantoor is gesloten van 20 december tot en met 5 januari. Voor vragen of het maken van een afspraak voor bezichtiging kunt u ons mailen via info@vanalphenmakelaardij.nl
Wij reageren zo snel mogelijk. Vanaf 5 januari staan wij weer met plezier voor u klaar.
Wij wensen u alvast fijne feestdagen en een stralend nieuw jaar!
Begane grond
Via de nette voortuin bereik je de entree. De hal biedt toegang tot het moderne toilet, de trap naar boven en de tuingerichte woonkamer.
De woonkamer is licht, ruim en voorzien van grote raampartijen richting de achtertuin. De open keuken aan de voorzijde is modern ingericht, met strakke fronten, hoogwaardige apparatuur en een praktische indeling met voldoende werkruimte.
Aangrenzend vind je de achtertuin met een fijne overkapping — een ideale plek om het hele jaar door buiten te zitten.

Eerste verdieping
Hier bevinden zich drie slaapkamers en een inloopkast, perfect afgewerkte badkamer met douche, wastafelmeubel en tweede toilet.

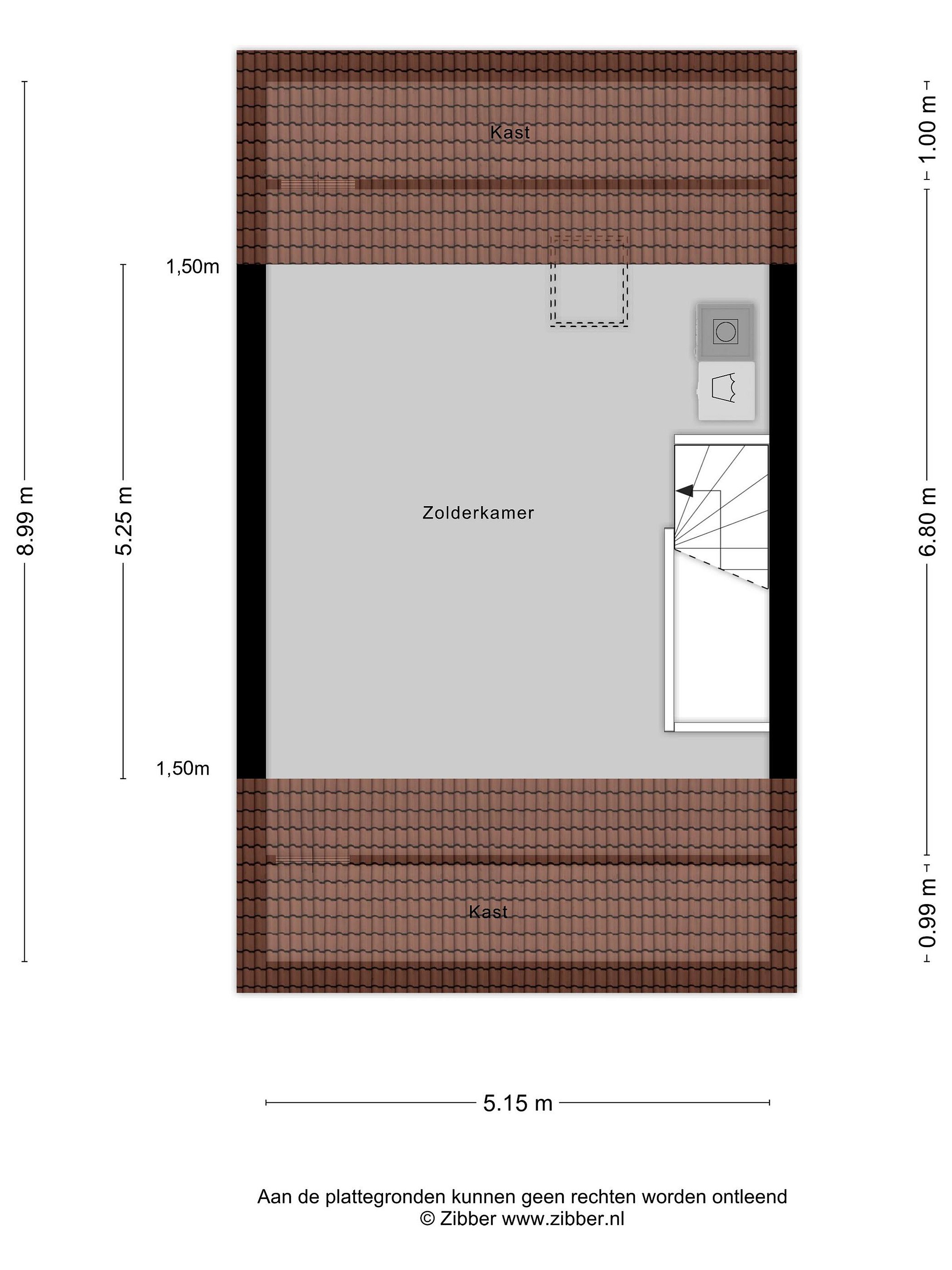
Tweede verdieping
Een grote open zolderkamer met veel mogelijkheden: thuiskantoor, extra slaapkamer, hobbyruimte.

Tuin
De woning beschikt over twee tuinen:
- Achtertuin noord-oost (75 m2)
- Voorzijde zuid-west (24 m2)


Details
Waarom dit jouw nieuwe thuis kan worden
- Energielabel A, volledig geïsoleerd, HR-glas en (aard)warmtepompverwarming
- Bouwjaar 2020, dus alles modern, onderhoudsarm en naar de nieuwste standaarden
- Drie slaapkamers + grote zolderkamer (thuiswerkplek/kantoor/hobbykamer)
- Strak afgewerkte keuken en badkamer
- Twee buitenruimtes (voor- en achtertuin) met verschillende zonliggingen
- Externe berging van 5,9 m2 voor fietsen en opslag
- Onderhoudsstaat: goed tot uitstekend binnen én buiten
- Gelegen in een rustige, kindvriendelijke wijk met voorzieningen op loopafstand

Duurzaamheid & Installaties
- Warmtepomp als hoofdverwarming (begane grond en verdieping)
- Balansventilatie
- Volledig HR++ dubbelglas
- Volledige isolatie van dak, vloer en gevels

Kortom
Een instapklare, energiezuinige en modern afgewerkte gezinswoning uit 2020 die voldoet aan alle woonwensen van nu.

Lees meer

Kenmerken

Overdracht

Prijs per m2
€ 3.982
Aangeboden sinds
5 december 2025
Status
Verkocht onder voorbehoud
Aanvaarding
In overleg

Bouw

Soort woonhuis
Eengezinswoning, tussen woning
Soort bouw
Bestaande bouw
Bouwjaar
2020
Soort dak
Dwarskap
Staat van onderhouden binnen
Uitstekend
Staat van onderhouden buiten
Uitstekend

Oppervlakte en inhoud

Perceeloppervlakte
141 m2
Inhoud van de woning
422 m3
Oppervlakte externe bergruimte
5 m2
Oppervlakte gebouwgebonden buitenruimten
20 m2

Indeling

Aantal kamers
4
Aantal slaapkamers
3
Aantal woonlagen
3
Voorzieningen
Tuin, ventilatie, glasvezel, dakraam

Buitenruimte

Balkon
Nee
Schuur/berging
Nee

Maandlasten berekenen

De maandlasten voor je woning bestaan uit meer dan alleen de hypotheeklasten. Hieronder vind je een overzicht van de bijkomende kosten en lasten. Zo weet je precies wat je huis per maand gaat kosten. En met de handige vergelijkers kun je ook nog eens snel de beste deals sluiten!

  • Kaart
  • Streetview