Leidseweg 30 2374 AN Oud Ade

241m2
Wonen
7
Kamers
1320m2
Perceel
1930
Bouwjaar
Karakteristieke vrijstaande woning met uitzonderlijk veel ruimte en een royale tuin.

Vrijstaand wonen op een royaal perceel van maar liefst 1.320 m2, met volop rust, privacy en ruimte — dat is precies wat deze karakteristieke woning aan de Leidseweg 30 in Oud Ade te bieden heeft. Een gemeentelijk monument met historie én hedendaags wooncomfort, waar oud en nieuw op een bijzondere manier samenkomen.

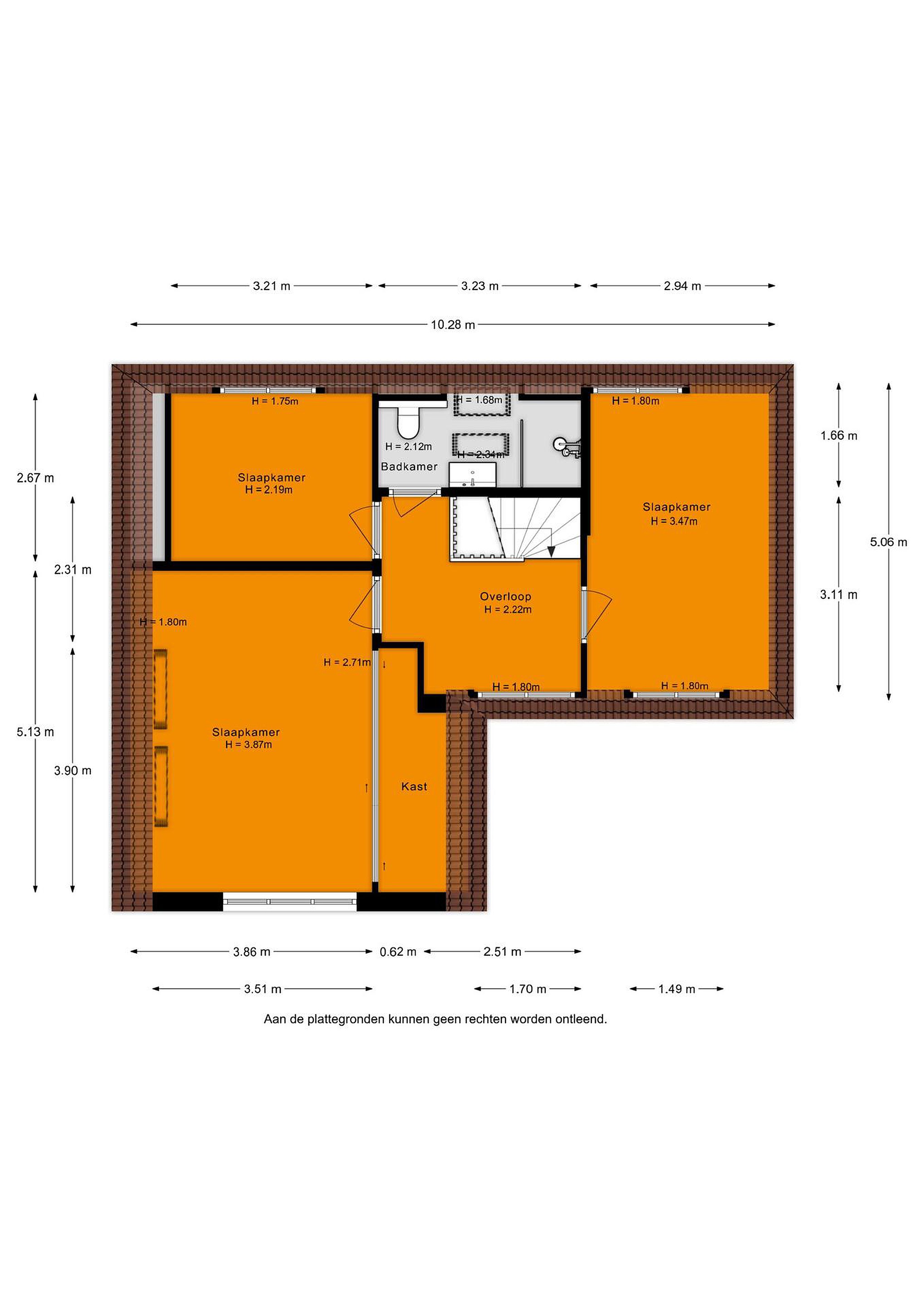
De woning beschikt over een zeer royale woonoppervlakte van ca. 241 m2 en is in 2011 ingrijpend verbouwd en uitgebreid. De achterzijde is volledig nieuw gebouwd, terwijl de oorspronkelijke woning met zorg is gerenoveerd: een nieuw dak, gereinigde en opnieuw gevoegde gevels. HR++ beglazing, gedeeltelijke vloerverwarming en 16 zonnepanelen zorgen voor comfort en duurzaamheid. De ruime leefruimtes en grote raampartijen maken dit een heerlijk licht en comfortabel huis.

Aan de achterzijde geniet je van een prachtig vrij uitzicht over de uitgestrekte polders, waardoor je optimaal kunt genieten van de rust en ruimte van het prachtige landschap. De royale tuin rondom de woning biedt volop mogelijkheden voor ontspanning, spelen en buitenleven.

Een unieke woning voor wie ruimte, karakter en een bijzondere woonbeleving zoekt.

Bijzonderheden:

- Bouwjaar: 1930
- Gemeentelijk monument
- Woonoppervlakte: ca. 241 m2
- Perceeloppervlakte: 1.320 m2
- Vrijstaande woning
- Complete nieuwbouw achterzijde (2011)
- Verbouwing oorspronkelijke woning in 2011: nieuw dak, gevels gereinigd en opnieuw gevoegd
- HR++ beglazing
- Deels vloerverwarming
- 16 zonnepanelen (2023)
- Royale tuin rondom de woning met veel privacy en vrij uitzicht over het polderlandschap
- Aanlegsteiger voor een sloep
- Tuin aangelegd met een drainage systeem

Waarom wonen aan de Leidseweg in Oud Ade?

Oud Ade is een charmant en landelijk dorp, omgeven door groen en water. Hier woon je rustig en vrij, met volop ruimte om je heen, terwijl steden als Leiden (10 minuten) en Amsterdam (20 minuten), voorzieningen in de omgeving (basisschool 700m) en snelwegen goed bereikbaar zijn. Het prachtige uitzicht over de polders aan de achterzijde maakt deze locatie bijzonder aantrekkelijk voor wie rust, natuur en ruimte waardeert.

Kortom: Leidseweg 30 is een unieke, vrijstaande woning met een indrukwekkend woonoppervlak, een groot perceel, een prachtig uitzicht en een bijzonder karakter. Een plek waar ruimte, historie en comfort samenkomen.

Plan eenvoudig online je bezichtiging en laat je verrassen.
Lees meer

Kenmerken

Overdracht

Prijs per m2
€ 5.187
Aangeboden sinds
30 januari 2026
Status
Beschikbaar
Aanvaarding
In overleg

Bouw

Soort woonhuis
Eengezinswoning, vrijstaande woning, dijkwoning
Soort bouw
Bestaande bouw
Bouwjaar
1930
Soort dak
Mansardedak
Staat van onderhouden binnen
Uitstekend
Staat van onderhouden buiten
Uitstekend

Oppervlakte en inhoud

Perceeloppervlakte
1320 m2
Inhoud van de woning
924 m3
Oppervlakte externe bergruimte
18 m2

Indeling

Aantal kamers
7
Aantal slaapkamers
3
Aantal woonlagen
3
Voorzieningen
Tuin, open haard, rookkanaal, dakraam

Buitenruimte

Balkon
Nee
Schuur/berging
Nee

Maandlasten berekenen

De maandlasten voor je woning bestaan uit meer dan alleen de hypotheeklasten. Hieronder vind je een overzicht van de bijkomende kosten en lasten. Zo weet je precies wat je huis per maand gaat kosten. En met de handige vergelijkers kun je ook nog eens snel de beste deals sluiten!

  • Kaart
  • Streetview