Verkocht OV

Van Maanenstraat 88 5344 KK Oss

122m2
Wonen
5
Kamers
175m2
Perceel
1971
Bouwjaar
Sfeervolle tussenwoning met twee garages op een fijne locatie in de Ruwaard gesitueerd.

Op zoek naar een complete woning op een goede locatie in Oss met twee garages?
Aan de fijne Van Maanenstraat vind je deze sfeervolle woning met bruikbare zolder (vier slaapkamers!) en twee garages.

Hier geniet je van alle gemakken: rustig wonen met het winkelcentrum op loopafstand.

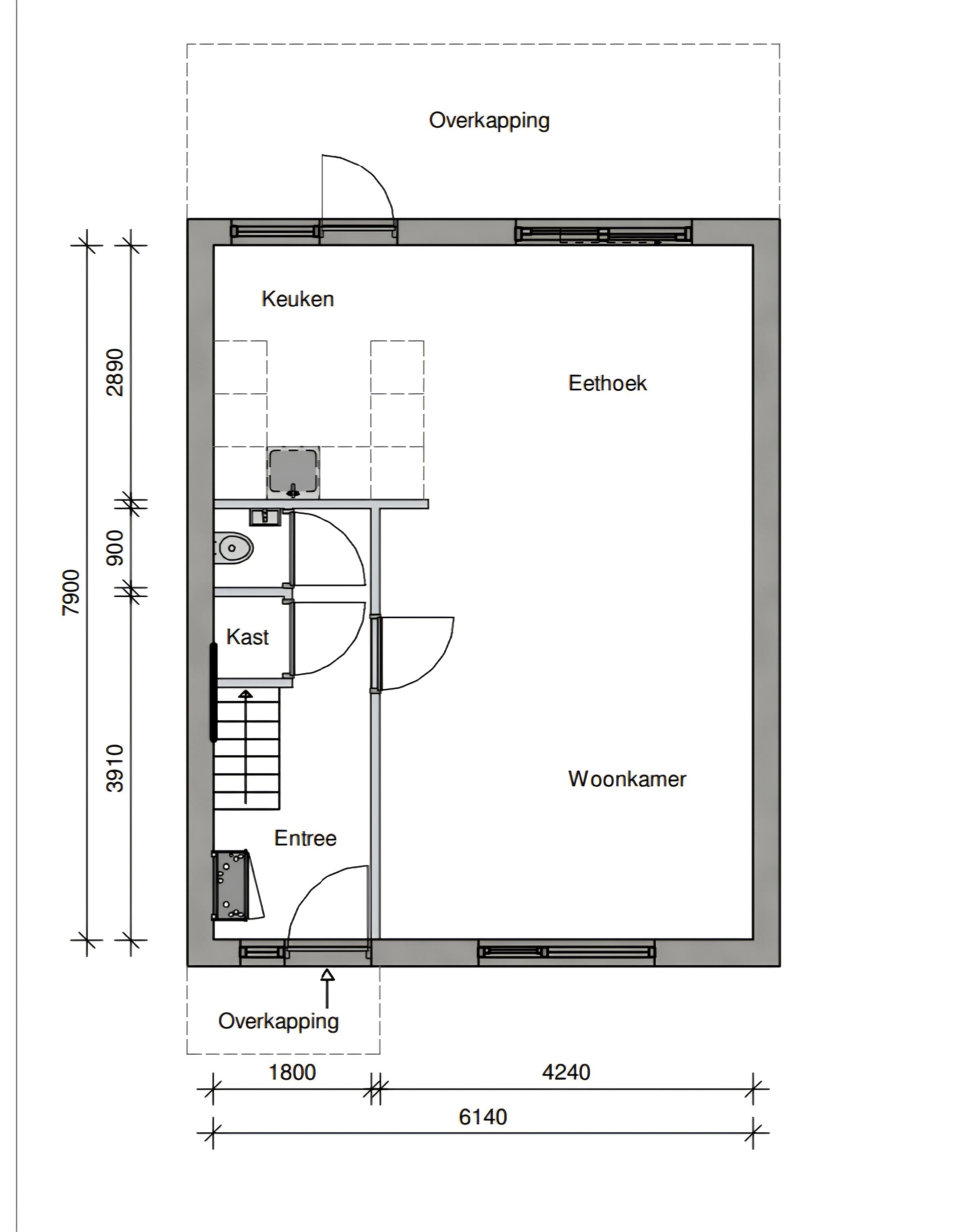
Begane grond
Begane grond:
Via de entree kom je in de hal. Hier bevinden zich het toilet, de proviandkast/trapkast en de meterkast.
De woonkamer is licht van uitvoering.
De open keuken is gebouwd in een U-vorm en beschikt over inbouwapparatuur.
De gezellige tuin met praktisch overkapping aan de woning is op het zuid-oosten gesitueerd.
Achter de tuin bevinden zich de twee garages.

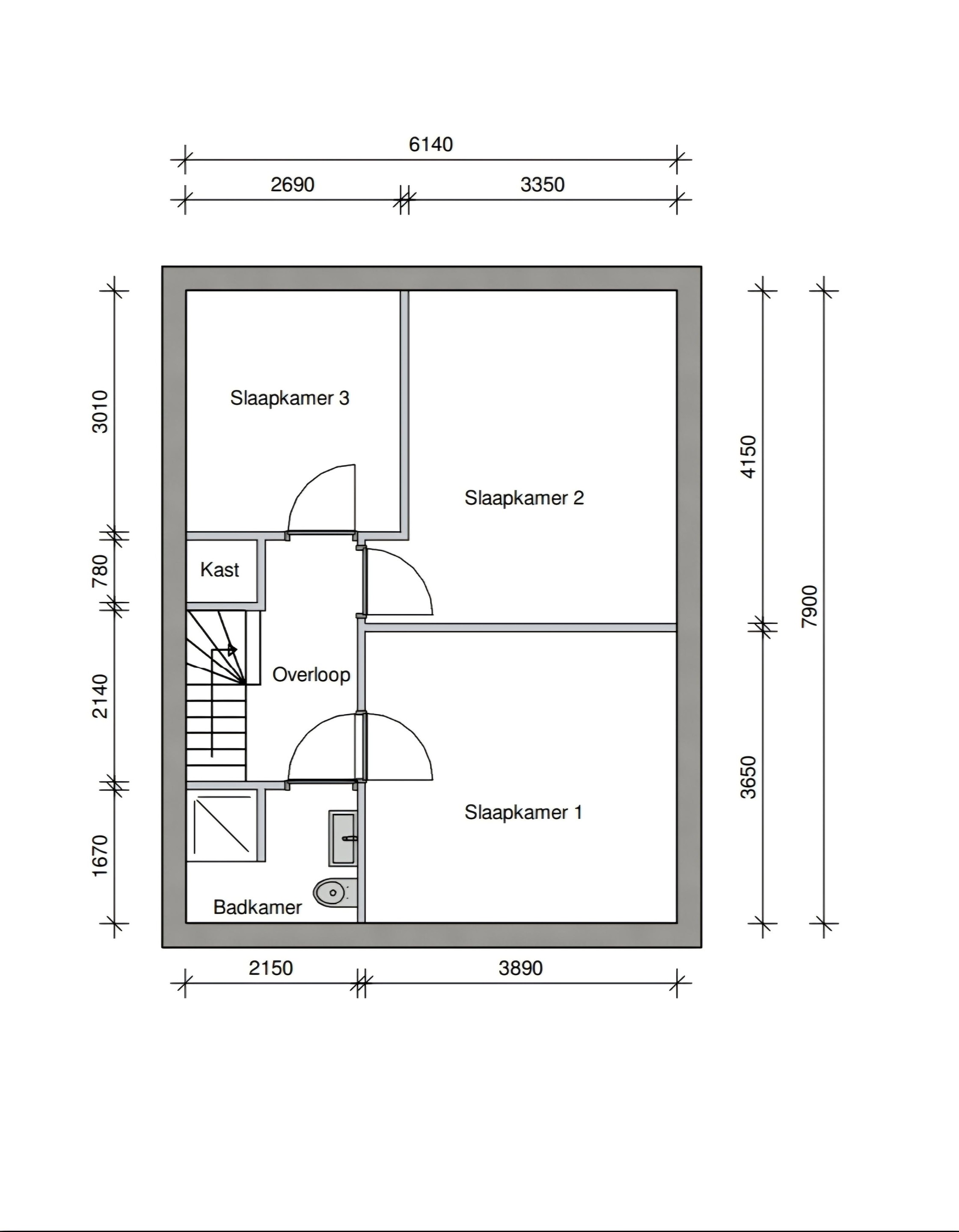
Eerste verdieping
De overloop, met kastruimte, biedt toegang tot de drie slaapkamers en de badkamer.
De badkamer beschikt over een douche, een toilet en een wastafelmeubel.

Tweede verdieping
Voorzolder met praktische bergruimte waarin de wasmachine-aansluiting en de cv combiketel (Intergas 2023) zich bevinden.
Een deur biedt toegang tot de royale slaapkamer met dakkapel.

Tuin
Met overkapping en zonnig gesitueerd op het zuid-oosten.

Details
- Twee garages;
- Veel kozijnen vervangen in 2025 (kunststof kozijnen);
- 9-tal zonnepanelen aanwezig;
- Dakkapel op zolder;
- Prima ligging aan de Van Maanenstraat;
- Winkelcentra alsmede natuur in de buurt.

Lees meer

Kenmerken

Overdracht

Prijs per m2
€ 3.475
Aangeboden sinds
20 maart 2026
Status
Verkocht onder voorbehoud
Aanvaarding
In overleg

Bouw

Soort woonhuis
Eengezinswoning, tussen woning
Soort bouw
Bestaande bouw
Bouwjaar
1971
Soort dak
Zadeldak
Staat van onderhouden binnen
Goed
Staat van onderhouden buiten
Goed

Oppervlakte en inhoud

Perceeloppervlakte
175 m2
Inhoud van de woning
400 m3
Oppervlakte externe bergruimte
30 m2

Indeling

Aantal kamers
5
Aantal slaapkamers
4
Aantal woonlagen
3
Voorzieningen
Tuin, alarmsysteem, kabel-tv, glasvezel, schuifpui

Buitenruimte

Balkon
Nee
Schuur/berging
Nee

Maandlasten berekenen

De maandlasten voor je woning bestaan uit meer dan alleen de hypotheeklasten. Hieronder vind je een overzicht van de bijkomende kosten en lasten. Zo weet je precies wat je huis per maand gaat kosten. En met de handige vergelijkers kun je ook nog eens snel de beste deals sluiten!

  • Kaart
  • Streetview