Ericalaan 5 9828 PG Oostwold

111m2
Wonen
4
Kamers
490m2
Perceel
1932
Bouwjaar
In het gezellige en actieve dorp Oostwold deze fraaie vrijstaande woning met garage en ruime berging. Oostwold heeft een actieve dorpsvereniging, school, sportvelden en is op fietsafstand van Groningen. De woning heeft een moderne, lichte, ruime woonkamer met open moderne keuken, drie slaapkamers en een heerlijke besloten fraai aangelegde tuin welke het geheel compleet maakt. Op een paar autominuten naar de A7 met ontsluiting naar Groningen en Drachten.
Begane grond
Entree, hal, ruime woonkamer van 37 m2 met een open keuken van 10m2. Via de keuken naar de bijkeuken en badkamer. Via de bijkeuken naar de besloten tuin met berging en garage. De berging is ingericht als kantoor.

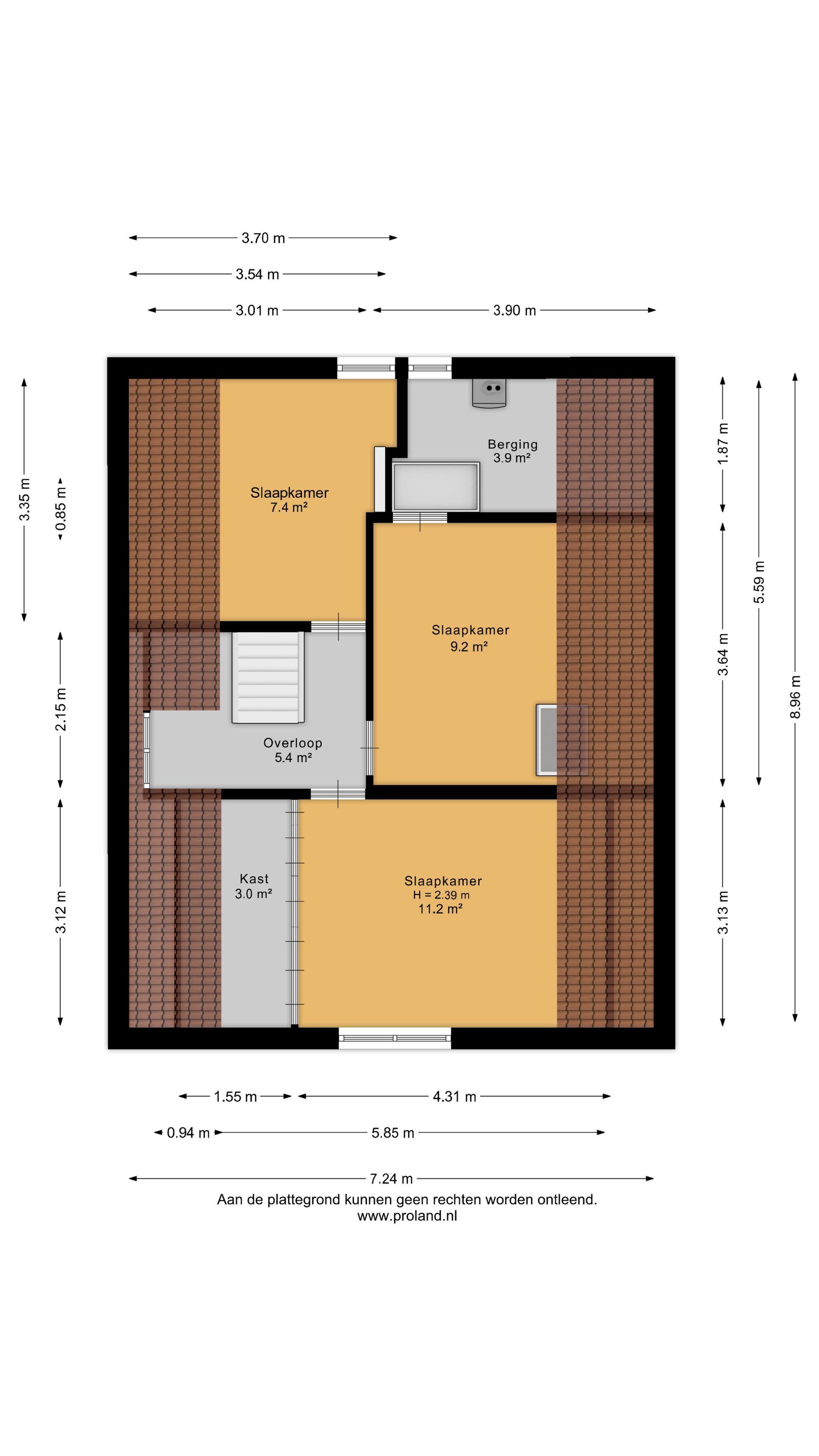
Eerste verdieping
Drie ruime slaapkamer, berging en vaste kast

Tuin
Fraai aangelegde tuin

Details
Op fietsafstand naar Groningen en Leek.
Op een paar autominuten naar de A7 richting Groningen en Drachten.
Actief dorp met school en sportvelden.

Lees meer

Kenmerken

Overdracht

Prijs per m2
€ 3.559
Aangeboden sinds
23 oktober 2025
Status
Beschikbaar
Aanvaarding
In overleg

Bouw

Soort woonhuis
Eengezinswoning, vrijstaande woning
Soort bouw
Bestaande bouw
Bouwjaar
1932
Soort dak
Zadeldak
Staat van onderhouden binnen
Uitstekend
Staat van onderhouden buiten
Goed

Oppervlakte en inhoud

Perceeloppervlakte
490 m2
Inhoud van de woning
438 m3
Oppervlakte externe bergruimte
42 m2
Oppervlakte overige inpandige ruimten
3 m2

Indeling

Aantal kamers
4
Aantal slaapkamers
3
Aantal woonlagen
2
Voorzieningen
Tuin, schuur/berging

Buitenruimte

Balkon
Nee
Schuur/berging
Ja

Maandlasten berekenen

De maandlasten voor je woning bestaan uit meer dan alleen de hypotheeklasten. Hieronder vind je een overzicht van de bijkomende kosten en lasten. Zo weet je precies wat je huis per maand gaat kosten. En met de handige vergelijkers kun je ook nog eens snel de beste deals sluiten!

  • Kaart
  • Streetview