Verkocht OV

Kretalaan 71 7577 KK Oldenzaal

166m2
Wonen
5
Kamers
258m2
Perceel
1991
Bouwjaar
Wonen op De Graven Es betekent dagelijks profiteren van comfort, rust en een uitstekende ligging. Deze kindvriendelijke wijk is geliefd vanwege de ruime opzet, het vele groen, diverse speeltuinen en de aanwezigheid van scholen en een supermarkt op loopafstand. Tevens ben je met enkele minuten fietsen op de Groote Markt, het bruisende horecaplein van Oldenzaal!

De woning ligt aan een rustige straat en biedt alles wat een modern gezin nodig heeft! Op de begane grond voorziet de woning in een ruime woonkamer en eetgedeelte, aan de achterzijde is een ruime en luxueuze leefkeuken met zicht over de stijlvol aangelegde achtertuin. Op de verdieping bevinden zich drie slaapkamers en een moderne badkamer! De tweede verdieping beschikt zowel over een slaapkamer als ook een prachtige (kleding)kamer voorzien van op maat gemaakte vaste kasten! De tuin, v.v. een extra berging, is fraai aangelegd en daarmee een heerlijke plek om te genieten van het buiten zijn. Overigens is de woning volledig geisoleerd en beschikt het over energielabel A!
Begane grond
Entree/hal; meterkast; vrijdragend toilet; trapopgang naar de eerste verdieping; toegang tot de eetkamer welke naadloos overloopt in de woonkamer. De gehele begane grond is voorzien van een gave plavuizen vloer wat een warme uitstraling geeft. De moderne leefkeuken is aan de achterzijde gesitueerd, is functioneel ingericht mede door de diverse inbouwapparatuur en biedt voldoende werkruimte. Aangrenzend aan de keuken bevindt zich de praktische bijkeuken, voorzien van een vaste kast voor extra opbergruimte.

Eerste verdieping
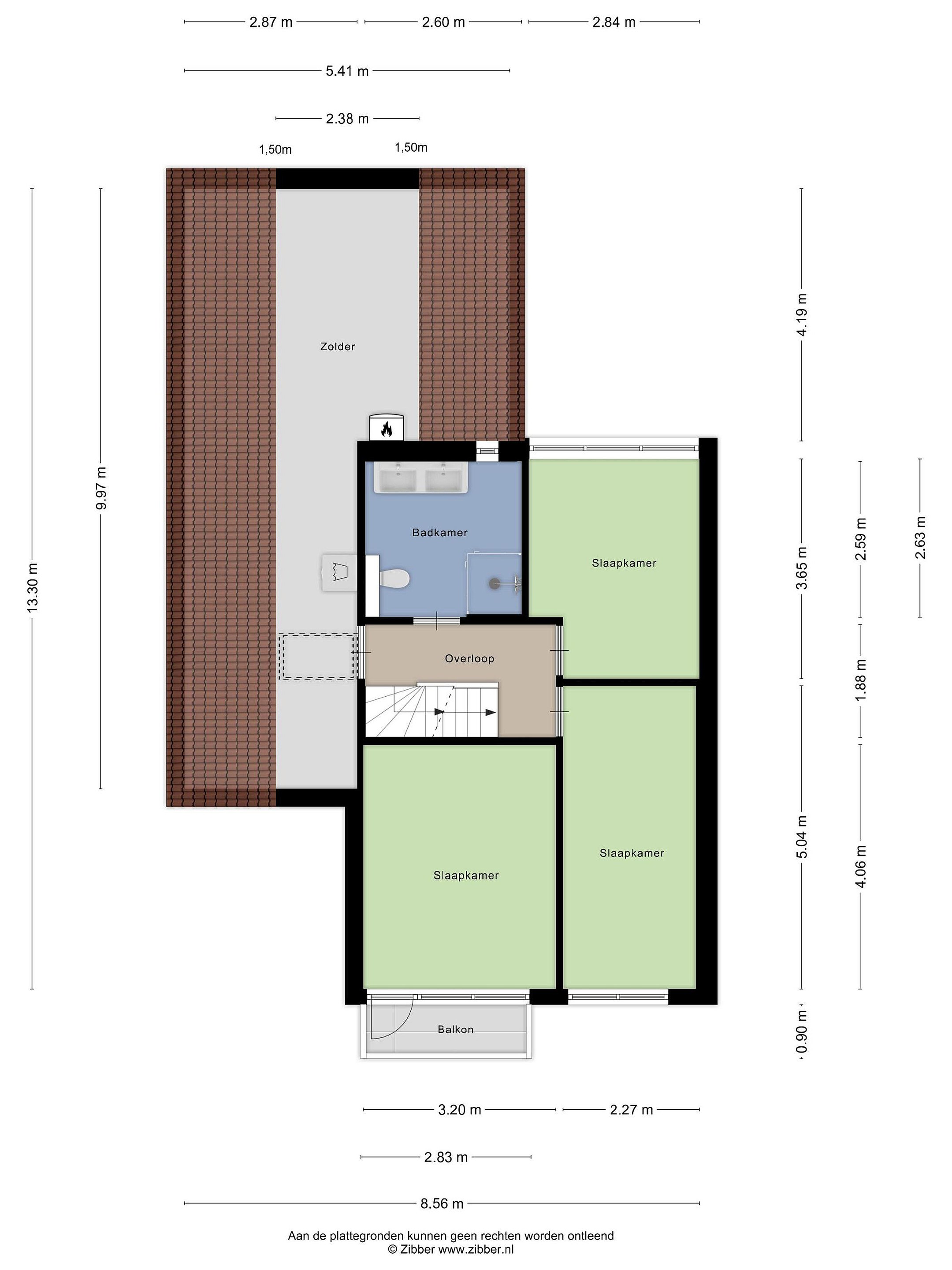
Overloop van waaruit je toegang hebt tot drie slaapkamers, elk met voldoende lichtinval en een praktische indeling. Eén van de slaapkamers biedt toegang tot het balkon aan de voorzijde. De moderne badkamer is royaal van formaat en beschikt over o.a. een inloopdouche, vrijdragend toilet, dubbele wastafel, designradiator én vloerverwarming. Ook is er vanuit de overloop toegang tot de bergruimte boven de bijkeuken, hier bevinden zich de Remeha CV ketel (2017, eigendom) en de witgoedaansluitingen.



Tweede verdieping
Middels vaste trap te bereiken, biedt toegang tot een vierde slaap- of werkkamer en een walk-in-closet welke beschikt over op maat gemaakte vaste kasten met voldoende opbergruimte.

Tuin
De fraaie en goed onderhouden achtertuin is gesitueerd op het zuidoosten, beschikt over twee verharde terrassen en voldoende privacy mede door het vele groen. De handige berging is ideaal voor het stallen van tuingereedschappen en diversen. Daarnaast beschikt de woning over een eigen oprit mét carport welk plek biedt voor twee auto's.

Details
- Bouwjaar: 1991
- Perceeloppervlakte: 258 m2 
- Woonoppervlakte: 166 m2 
- Separate keuken v.v. diverse inbouwapparatuur
- Royale woonkamer met eetkamer
- Moderne badkamer met vloerverwarming
- Achtertuin met veel privacy
- Gelegen in kindvriendelijke buurt de Graven Es
- Remeha CV-ketel (2017, eigendom)
- V.v. Energielabel A!
- Aanvaarding in overleg 
- Bij koop is een waarborgsom/bankgarantie vereist van 10% van de koopsom 

Lees meer

Kenmerken

Overdracht

Prijs per m2
€ 3.464
Aangeboden sinds
4 september 2025
Status
Verkocht onder voorbehoud
Aanvaarding
In overleg

Bouw

Soort woonhuis
Eengezinswoning, geschakelde twee-onder-een-kap woning
Soort bouw
Bestaande bouw
Bouwjaar
1991
Soort dak
Zadeldak
Staat van onderhouden binnen
Uitstekend
Staat van onderhouden buiten
Uitstekend

Oppervlakte en inhoud

Perceeloppervlakte
258 m2
Inhoud van de woning
588 m3
Oppervlakte externe bergruimte
5 m2
Oppervlakte gebouwgebonden buitenruimten
22 m2

Indeling

Aantal kamers
5
Aantal slaapkamers
4
Aantal woonlagen
3
Voorzieningen
Tuin, balkon, schuur/berging, glasvezel, buitenzonwering, schuifpui, dakraam

Buitenruimte

Balkon
Ja
Schuur/berging
Ja

Maandlasten berekenen

De maandlasten voor je woning bestaan uit meer dan alleen de hypotheeklasten. Hieronder vind je een overzicht van de bijkomende kosten en lasten. Zo weet je precies wat je huis per maand gaat kosten. En met de handige vergelijkers kun je ook nog eens snel de beste deals sluiten!

  • Kaart
  • Streetview