Frieseweg 20 8375 AJ Oldemarkt

122m2
Wonen
5
Kamers
300m2
Perceel
1924
Bouwjaar
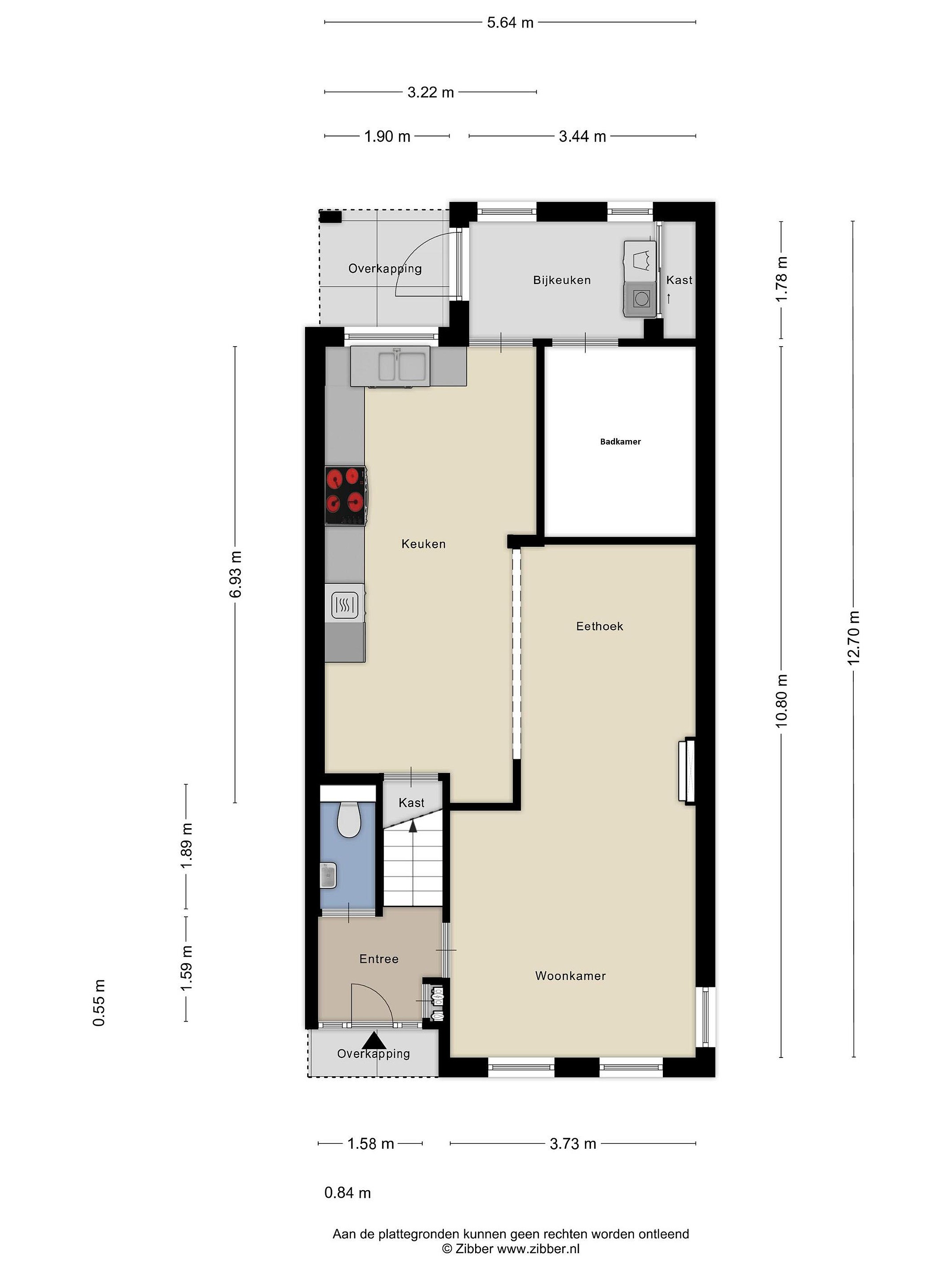
Op loopafstand van het centrum gelegen verrassend ruime en energievriendelijke vrijstaande woning met garage. De woning beschikt over een woonkamer, keuken, bijkeuken, badkamer en 4 slaapkamers. De achtertuin is voorzien van een terras, een overdekt terras, een achterom en een ruime vrijstaande garage met zolder. De woning is gelegen op een perceel van 300m2 en heeft een woonoppervlakte van ca.122m2.
Begane grond
Overdekte entree/hal met trapopgang, toilet en meterkast. De woonkamer is voorzien van lichtinval, trapkast en de keukenopstelling met diverse inbouwapparatuur, o.a. een afzuigkap in schouw, inductiekookplaat, combimagnetron, koelkast, vrieskast en een vaatwasmachine. Via de bijkeuken bereikt u de achtertuin en de badkamer voorzien van een ligbad, douchehoek en een dubbele wastafel in meubel.

Eerste verdieping
Overloop met toilet en 4 slaapkamers. De slaapkamer aan de voorzijde beschikt over een inloopkast.

Tuin
De achtertuin, gelegen op het zuidoosten, is o.a. voorzien van een terras, een overdekt terras, een achterom en een vrijstaande garage met zolder.

Details
Bijzonderheden/resumé:
- Het is een verrassend ruime, onderhoudsvriendelijke vrijstaande woning;
- De woning beschikt over dak-, vloer, en muurisolatie, kunststof kozijnen met isolerende beglazing en 12 zonnepanelen;
- De woning beschikt over een ruime woonkamer met keuken;
- De woning beschikt over een badkamer op de begane grond;
- De woning beschikt over 4 slaapkamers;
- De woning beschikt over een achtertuin met o.a. een overdekt terras, een achterom en een garage met zolder.


Oldemarkt

Oldemarkt is centraal gelegen op ca.10 minuten verwijderd van de A32 richting Leeuwarden/Zwolle/Meppel en slechts ca. 15 minuten van Steenwijk, Wolvega, Emmeloord en de A6 richting de Randstad.

Oldemarkt telt ca.2.600 inwoners en maakt deel uit van de gemeente Steenwijkerland. Het dorp heeft een landelijk karakter met een bebouwing die hoofdzakelijk bestaat uit woningen in twee bouwlagen en een dwarskap. De horizon wordt daarom voornamelijk bepaald door de twee kerken. De directe omgeving van het dorp bestaat uit een open agrarisch gebied met weilanden en sloten.

Ondanks het eerdergenoemde landelijke karakter van Oldemarkt zijn alle voorzieningen binnen handbereik. Oldemarkt fungeert binnen de gemeente Steenwijkerland als centrumdorp. Bovendien kent het dorp een bloeiend verenigingsleven.

Voor de natuurliefhebber ligt er in de directe omgeving diverse bossen en het grote natuurgebied "Weerribben - Wieden", waar water, bies en moerasbos de sfeer bepalen. Dit gebied is één van de mooiste plekjes van Nederland.

Lees meer

Kenmerken

Overdracht

Prijs per m2
€ 3.602
Aangeboden sinds
3 februari 2026
Status
Beschikbaar
Aanvaarding
In overleg

Bouw

Soort woonhuis
Eengezinswoning, vrijstaande woning
Soort bouw
Bestaande bouw
Bouwjaar
1924
Soort dak
Mansardedak
Staat van onderhouden binnen
Goed
Staat van onderhouden buiten
Goed

Oppervlakte en inhoud

Perceeloppervlakte
300 m2
Inhoud van de woning
454 m3
Oppervlakte externe bergruimte
44 m2
Oppervlakte overige inpandige ruimten
5 m2

Indeling

Aantal kamers
5
Aantal slaapkamers
4
Aantal woonlagen
2
Voorzieningen
Tuin

Buitenruimte

Balkon
Nee
Schuur/berging
Nee

Maandlasten berekenen

De maandlasten voor je woning bestaan uit meer dan alleen de hypotheeklasten. Hieronder vind je een overzicht van de bijkomende kosten en lasten. Zo weet je precies wat je huis per maand gaat kosten. En met de handige vergelijkers kun je ook nog eens snel de beste deals sluiten!

  • Kaart
  • Streetview