Verkocht

De Molenkamp 8 8375 HA Oldemarkt

131m2
Wonen
6
Kamers
433m2
Perceel
1992
Bouwjaar
Op een aantrekkelijke locatie nabij diverse voorzieningen, gelegen vrijstaande woning met garage. De woning beschikt o.a. over een woonkamer, woonkeuken, bijkeuken, kelder, badkamer en 4 slaapkamers. De achtertuin is voorzien van diverse terrassen en een berging met tuinkamer. De woning staat op een perceel van 433m2 en heeft een woonoppervlakte van ca.131m2.
Begane grond
Entree / hal met trapopgang, meterkast, toilet en een slaapkamer. De woonkamer heeft mooi uitzicht over een groenstrook en waterpartij en een toegang naar de ruime woonkeuken aan de achterzijde. De woonkeuken is voorzien van een modern keukenblok met diverse inbouwapparatuur, o.a. een inductiekookplaat, combimagnetron, koelkast, vaatwasser en een afzuigkap. De bijkeuken beschikt over een toegang naar de kelder, de achtertuin en de garage.

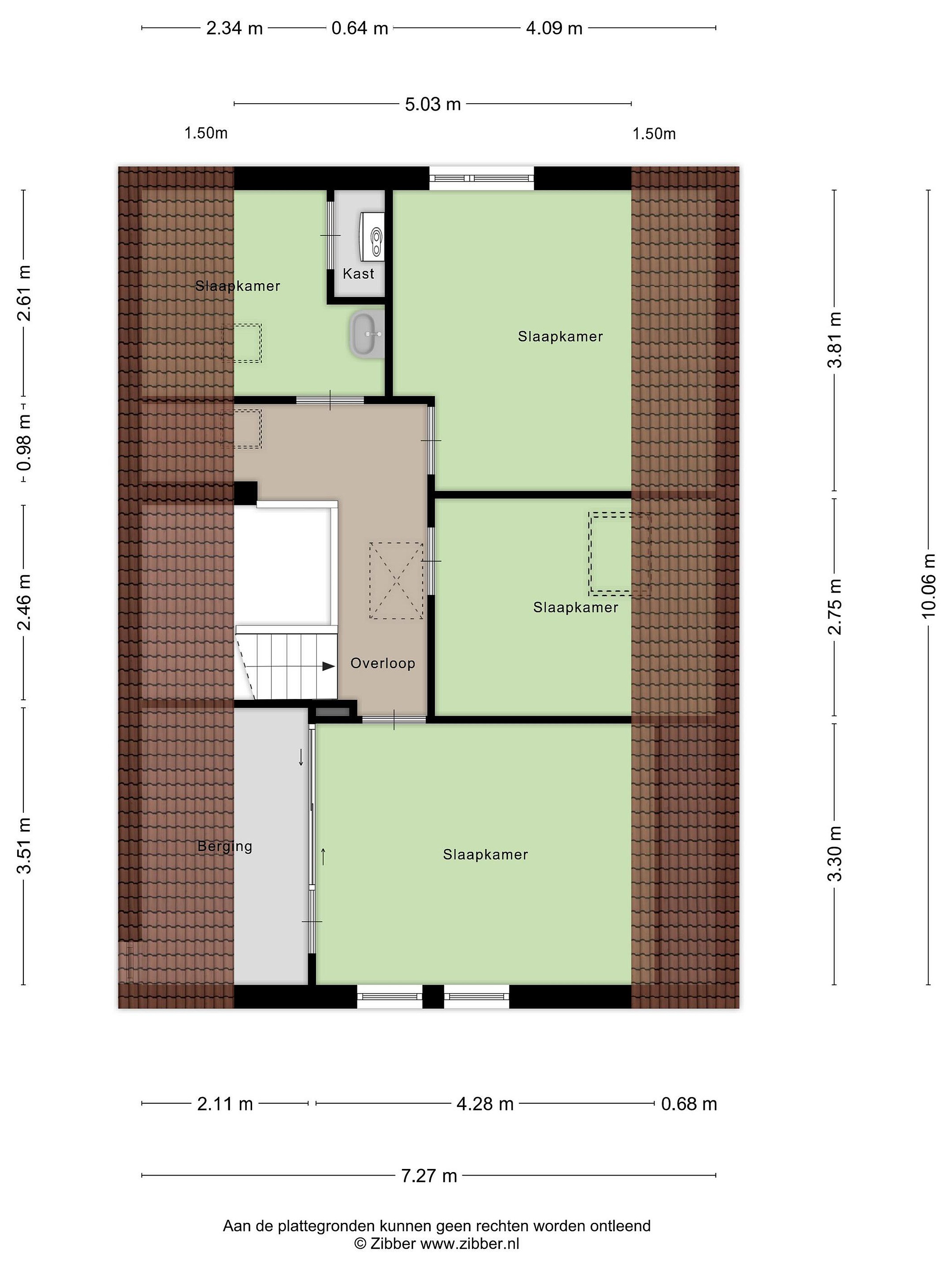
Eerste verdieping
Overloop met vide, 3 slaapkamers en een kamer met mogelijkheid voor het realiseren van een extra badkamer of slaapkamer.

Tweede verdieping
Vliering, bereikbaar met een vlizotrap.

Tuin
De achtertuin is gelegen op het zuidoosten en voorzien van diverse terrassen en een berging met tuinkamer. Aan de voorzijde is er voor de garage een oprit met parkeergelegenheid.

Details
Bijzonderheden/resumé:
- de woning is goed onderhouden en verrassend ruim;
- de woning beschikt over een woonkamer en een moderne woonkeuken;
- de woning beschikt over een slaapkamer en moderne badkamer op de begane grond;
- de woning beschikt totaal over 4 slaapkamers en een kamer mogelijkheid voor het realiseren van een extra bad- of slaapkamer;
- de woning beschikt over airco in 3 slaapkamers;
- de woning beschikt over een grote L-vormige garage gebouwd in spouw;
- de woning beschikt over een tuin met berging met tuinkamer en voor de garage een ruime oprit;
- de woning is gelegen nabij diverse voorzieningen.


Oldemarkt

Oldemarkt is centraal gelegen op ca.10 minuten verwijderd van de A32 richting Leeuwarden/Zwolle/Meppel en slechts ca.15 minuten van Steenwijk, Wolvega, Emmeloord en de A6 richting de randstad.

Oldemarkt telt ca.2.600 inwoners en maakt deel uit van de gemeente Steenwijkerland. Het dorp heeft een landelijk karakter met een bebouwing die hoofdzakelijk bestaat uit woningen in twee bouwlagen en een dwarskap. De horizon wordt derhalve voornamelijk bepaald door de twee kerken. De directe omgeving van het dorp bestaat uit een open agrarisch gebied met weilanden en sloten.

Ondanks het eerder genoemde landelijke karakter van Oldemarkt zijn alle voorzieningen binnen handbereik. In het centrum vindt u winkels en horecavoorzieningen. Oldemarkt fungeert binnen de gemeente Steenwijkerland als centrumdorp. Bovendien kent het dorp een bloeiend verenigingsleven.

Voor de natuurliefhebber ligt er in de directe omgeving diverse bossen en het grote natuurgebied "Weerribben-Wieden", waar water, bies en moerasbos de sfeer bepalen. Dit gebied is één van de mooiste plekjes van Nederland.

Lees meer

Verkoopgeschiedenis

Aangeboden sinds
13 oktober 2025
Verkoopdatum
31 oktober 2025
Looptijd
18 dagen

Kenmerken

Overdracht

Prijs per m2
€ 3.813
Aangeboden sinds
13 oktober 2025
Status
Verkocht
Aanvaarding
In overleg

Bouw

Soort woonhuis
Eengezinswoning, vrijstaande woning
Soort bouw
Bestaande bouw
Bouwjaar
1992
Soort dak
Zadeldak
Staat van onderhouden binnen
Goed
Staat van onderhouden buiten
Goed

Oppervlakte en inhoud

Perceeloppervlakte
433 m2
Inhoud van de woning
610 m3
Oppervlakte externe bergruimte
24 m2
Oppervlakte gebouwgebonden buitenruimten
4 m2
Oppervlakte overige inpandige ruimten
34 m2

Indeling

Aantal kamers
6
Aantal slaapkamers
5
Aantal woonlagen
3
Voorzieningen
Tuin, schuur/berging, glasvezel, airconditioning

Buitenruimte

Balkon
Nee
Schuur/berging
Ja

Maandlasten berekenen

De maandlasten voor je woning bestaan uit meer dan alleen de hypotheeklasten. Hieronder vind je een overzicht van de bijkomende kosten en lasten. Zo weet je precies wat je huis per maand gaat kosten. En met de handige vergelijkers kun je ook nog eens snel de beste deals sluiten!

  • Kaart
  • Streetview