Verkocht

Julianastraat 24 9883 PT Oldehove

80m2
Wonen
4
Kamers
229m2
Perceel
1963
Bouwjaar
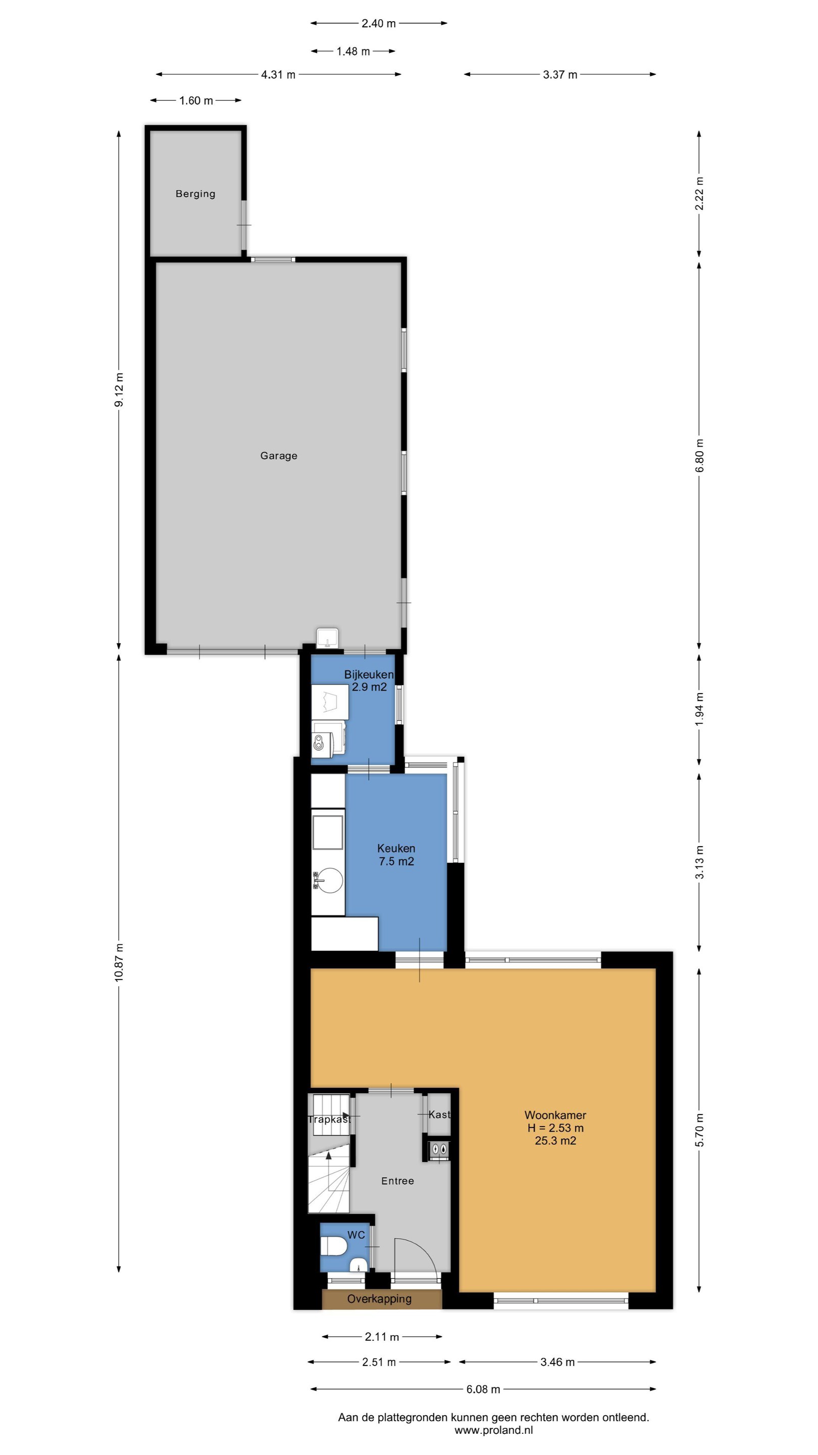
Heerlijke starterswoning of doorstroomwoning, in de nabijheid van het centrum deze nette twee onder een kap woning met ruime garage en berging. Woonkamer met dichte keuken met inbouwapparatuur en een bijkeuken. Op de verdieping drie slaapkamers en een badkamer. Onderhoudsarme tuin, ruime garage en berging.
Begane grond
Entree, hal, toilet, woonkamer dichte keuken met inbouwapparatuur, bijkeuken en via de bijkeuken naar de ruime garage. Via buitenom naar de berging, leuke onderhoudsarme tuin.

Eerste verdieping
Overloop, drie slaapkamers badkamer met douche en wastafel.

Tweede verdieping
Via vlizotrap naar de zolder.

Tuin
Onderhoudsarme tuin, bijna volledig bestraat.

Details
Negen zonnepanelen in eigendom.
Parkeren op eigen terrein.
Ruime garage
Aanvaarding kan in december of nader overeen te komen.

Lees meer

Verkoopgeschiedenis

Aangeboden sinds
10 november 2025
Verkoopdatum
2 februari 2026
Looptijd
3 maanden

Kenmerken

Overdracht

Prijs per m2
€ 3.063
Aangeboden sinds
10 november 2025
Status
Verkocht
Aanvaarding
In overleg

Bouw

Soort woonhuis
Eengezinswoning, twee-onder-een-kap woning
Soort bouw
Bestaande bouw
Bouwjaar
1963
Soort dak
Zadeldak
Staat van onderhouden binnen
Goed
Staat van onderhouden buiten
Goed

Oppervlakte en inhoud

Perceeloppervlakte
229 m2
Inhoud van de woning
466 m3
Oppervlakte externe bergruimte
3 m2
Oppervlakte gebouwgebonden buitenruimten
0 m2
Oppervlakte overige inpandige ruimten
40 m2

Indeling

Aantal kamers
4
Aantal slaapkamers
3
Aantal woonlagen
2
Voorzieningen
Tuin, schuur/berging

Buitenruimte

Balkon
Nee
Schuur/berging
Ja

Maandlasten berekenen

De maandlasten voor je woning bestaan uit meer dan alleen de hypotheeklasten. Hieronder vind je een overzicht van de bijkomende kosten en lasten. Zo weet je precies wat je huis per maand gaat kosten. En met de handige vergelijkers kun je ook nog eens snel de beste deals sluiten!

  • Kaart
  • Streetview