Salvialaan 19 2343 XA Oegstgeest

111m2
Wonen
4
Kamers
192m2
Perceel
1967
Bouwjaar
Te koop! Salvialaan 19, 2343 XA Oegstgeest

Vraagprijs: € 645.000,- k.k.
Woonoppervlakte: ca. 112 m2 | Perceel: 192 m2 | Energielabel: A
Carport op eigen terrein | Bouwjaar: 1967 | Oplevering: in overleg

Comfortabel wonen in de geliefde Bloemenbuurt – energiezuinig en met stijl gemoderniseerd

Op zoek naar een instapklare gezinswoning in een fijne woonwijk met alles in de buurt? Dan mag u Salvialaan 19 absoluut niet missen! Deze uitgebouwde en met smaak afgewerkte tussenwoning is gelegen in de populaire en kindvriendelijke Bloemenbuurt van Oegstgeest, op loopafstand van winkels, scholen en sportvoorzieningen – én met het centrum van Leiden binnen 10 fietsminuten.

Wat direct opvalt is de uitstekende staat van onderhoud, de stijlvolle afwerking en het feit dat deze woning met energielabel A volledig is voorbereid op de toekomst. Denk aan HR++ beglazing, kunststof kozijnen, vloerverwarming, een Nefit HR cv-installatie én 8 zonnepanelen van 410Wp per stuk. Dat is pas duurzaam wonen met comfort!

Indeling

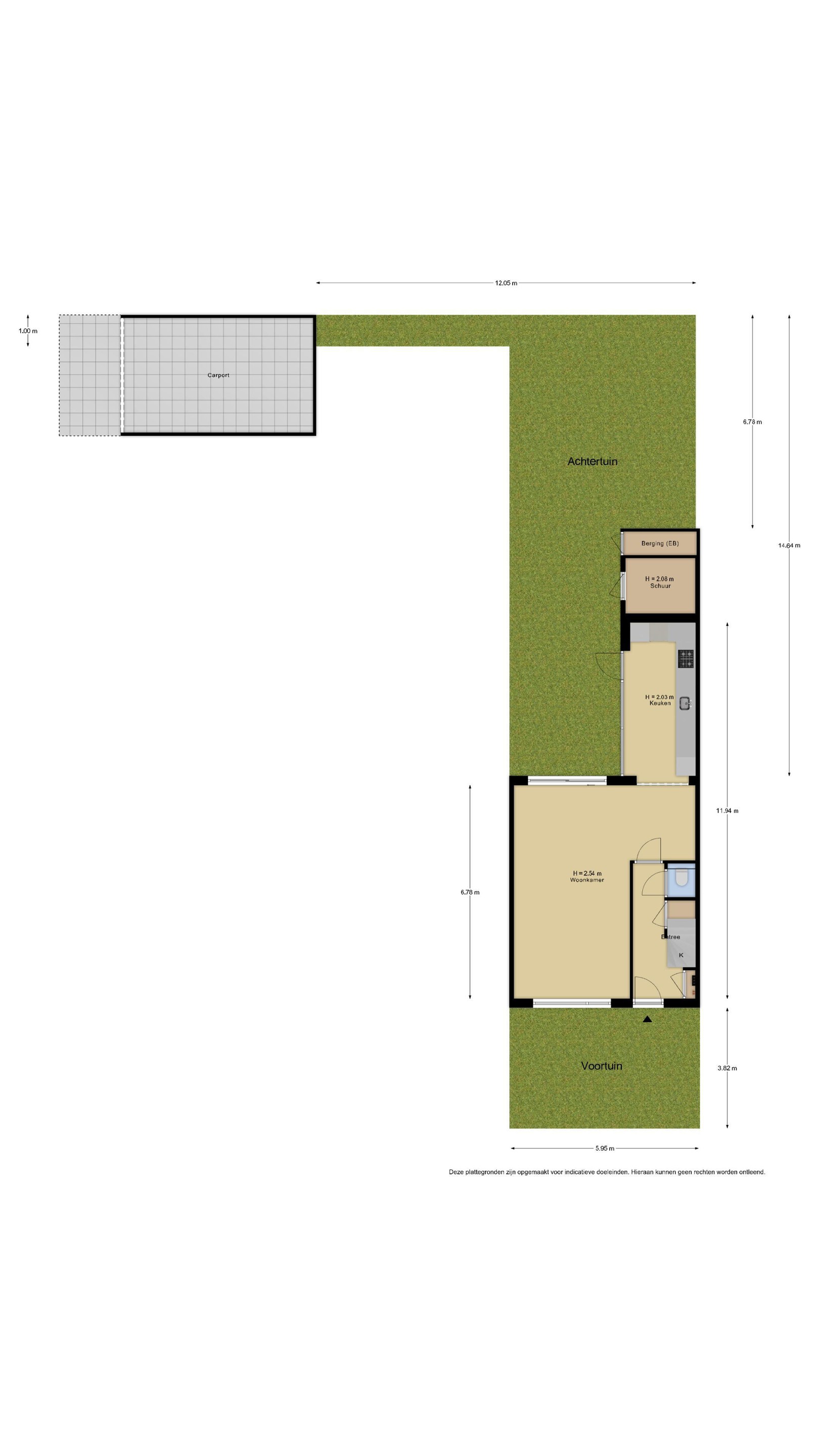
Begane grond:
Via de verzorgde voortuin (oost) naar de entree. In de hal vindt u een uitgebreide meterkast, garderoberuimte, trapopgang, trapkast én een modern toilet met fonteintje. De ruime en lichte woonkamer is strak afgewerkt met eikenhouten vloerdelen, glad gestucte wanden en plafonds, én voorzien van vloerverwarming. Via een schuifpui heeft u toegang tot de zeer net aangelegde achtertuin op het zonnige westen.

Aan de achterzijde is de woning uitgebouwd en voorzien van een moderne open keuken met veel licht inval door mooie, grote kunststof raamkozijnen. De keuken is compleet uitgerust met o.a. een inductie kookplaat, vaatwasser, afzuigkap, combi-oven, een Quooker COMBI+ en een luxe Liebherr wijnklimaatkast. Een plek waar koken en gezelligheid perfect samenkomen.

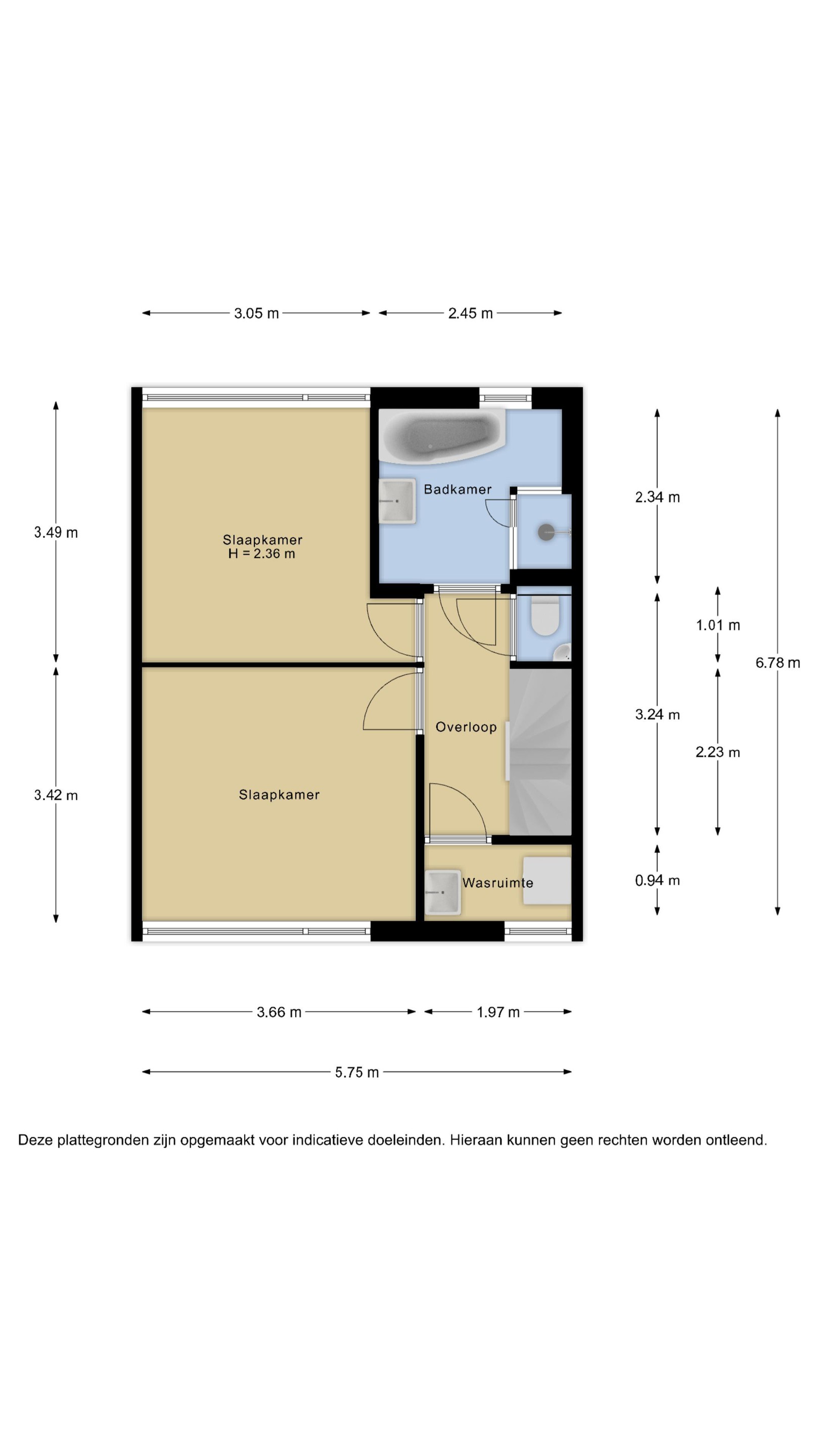
1e verdieping:
Overloop met toegang tot twee ruime slaapkamers (voor en achter), een stijlvolle badkamer, een separaat toilet met fonteintje én een aparte wasruimte – ideaal voor wasmachine, droger en extra opslag. De badkamer is recent vernieuwd en een waar plaatje: modern betegeld, met inloopdouche, ligbad en een fraai wastafelmeubel.

2e verdieping:
Vaste trap naar de zolderverdieping met voorzolder, cv-/mv-opstelling en een royale derde slaapkamer met dakkapel aan de achterzijde. Licht, praktisch en van goed formaat – ook uitstekend geschikt als thuiswerkruimte of hobbykamer.

Tuin & buitenruimte:
De achtertuin op het zonnige westen is netjes betegeld en aangelegd met groen, een betegeld terras en biedt volop privacy. In de aangebouwde stenen bergingen (totaal ca. 6 m2) kunt u met gemak fietsen, tuinspullen of gereedschap kwijt. Via de tuin is de eigen carport bereikbaar aan de achterzijde (Bijdorplaan). Deze carport is eenvoudig af te sluiten, waardoor een volwaardige garage tot de mogelijkheden behoort.

Over de ligging:
Deze woning ligt in de gezellige ‘Bloemenbuurt’ van Oegstgeest. Hier woont u rustig, maar met alle voorzieningen dichtbij: van basisscholen en sportverenigingen tot het winkelcentrum 'Lange Voort'. Binnen 10 minuten fietsen bereikt u het centrum van Leiden of het NS-station. Uitvalswegen richting de A44 en N206 liggen om de hoek, en ook natuurliefhebbers zitten hier goed: de Klinkenbergerplas, de Kagerplassen én het strand van Katwijk aan Zee zijn allemaal op korte afstand bereikbaar.

Bijzonderheden op een rij:
* Bouwjaar: 1967
* Energielabel: A
* 8 zonnepanelen: (410 Wp per stuk)
* Woonoppervlakte: ca. 112 m2
* Perceel: 192 m2
* Nefit Proline cv-ketel (2017)
* Vloerverwarming begane grond
* Aangebouwde stenen bergingen (totaal ca. 6 m2)
* Carport op eigen terrein (via Bijdorplaan)
* Badkamer ca. 4 jaar oud | Keuken ca. 3 jaar oud
* De woning is grotendeels voorzien van kunststof kozijnen met HR++ glas
* Zeer verzorgd en instapklaar!

Heeft u interesse?
Makelaar Ronald Kooitje nodigt u van harte uit om Salvialaan 19 persoonlijk te komen bekijken. Ervaar zelf hoe prettig en comfortabel u hier kunt wonen – in een moderne woning, met energiezuinige voorzieningen, in een fijne buurt.

Bezoek ook de woningwebsite salvialaan19.nl voor meer informatie, plattegronden, foto’s en documenten.

Deze verkoopinformatie is met zorg samengesteld. Er kunnen echter geen rechten aan worden ontleend. Ten aanzien van eventuele onjuistheden aanvaarden wij geen aansprakelijkheid.
Lees meer

Kenmerken

Overdracht

Prijs per m2
€ 5.764
Aangeboden sinds
30 oktober 2025
Status
Beschikbaar
Aanvaarding
In overleg

Bouw

Soort woonhuis
Eengezinswoning, tussen woning
Soort bouw
Bestaande bouw
Bouwjaar
1967
Soort dak
Zadeldak
Staat van onderhouden binnen
Goed
Staat van onderhouden buiten
Goed

Oppervlakte en inhoud

Perceeloppervlakte
192 m2
Inhoud van de woning
371 m3
Oppervlakte overige inpandige ruimten
6 m2

Indeling

Aantal kamers
4
Aantal slaapkamers
3
Aantal woonlagen
3
Voorzieningen
Tuin, schuur/berging, glasvezel, dakraam

Buitenruimte

Balkon
Nee
Schuur/berging
Ja

Maandlasten berekenen

De maandlasten voor je woning bestaan uit meer dan alleen de hypotheeklasten. Hieronder vind je een overzicht van de bijkomende kosten en lasten. Zo weet je precies wat je huis per maand gaat kosten. En met de handige vergelijkers kun je ook nog eens snel de beste deals sluiten!

  • Kaart
  • Streetview