Verkocht

Josephstraat 8 6361 VX Nuth

98m2
Wonen
4
Kamers
126m2
Perceel
1952
Bouwjaar
Fijne tussenwoning met doorzonwoonkamer, garage en centrale ligging in Nuth.

Aan de Josephstraat 8 in Nuth ligt deze nette en praktisch ingedeelde tussenwoning, een woning die direct een verzorgde indruk maakt. Dankzij de doorzonwoonkamer geniet je hier van een prettige lichtinval gedurende de hele dag. De woning beschikt daarnaast over een onderhoudsvriendelijke achtertuin met toegang tot de garage, wat zorgt voor extra comfort en gebruiksgemak.

De ligging is rustig en tegelijkertijd centraal. Dagelijkse voorzieningen zoals winkels, scholen en openbaar vervoer bevinden zich in de nabije omgeving, terwijl ook uitvalswegen richting omliggende plaatsen en de A76 snel bereikbaar zijn. Nuth staat bekend om zijn gemoedelijke dorpskarakter, wat het een prettige woonomgeving maakt voor zowel starters als gezinnen.

De woning is in 2020 volledig gerenoveerd, wat bijdraagt aan het hedendaagse wooncomfort. Kortom, een praktische en verzorgde woning waar je zonder grote aanpassingen prettig kunt wonen
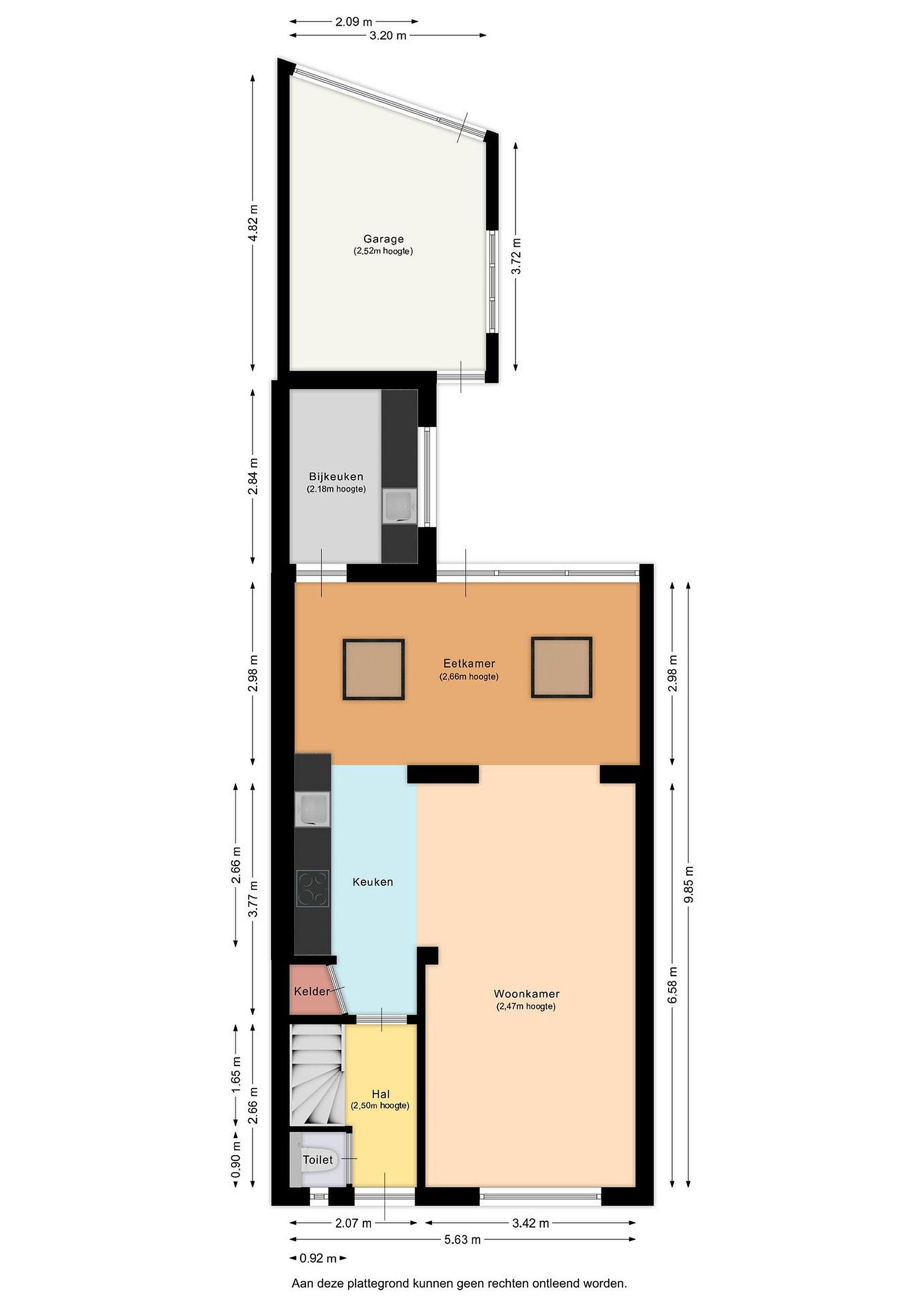
Begane grond
Via de entree betreed je de ontvangsthal, die is afgewerkt met een nette tegelvloer. In de hal bevindt zich het zwevend toilet. Vanuit de hal loop je door naar de woonkamer.

De begane grond is voorzien van een laminaatvloer en beschikt over een fijne doorzonwoonkamer, waardoor er aan zowel de voor- als achterzijde veel natuurlijk licht binnenvalt. De woonkamer biedt voldoende ruimte voor een comfortabele zithoek en een eethoek. Tevens is er toegang tot de kelder, ideaal voor het opbergen van provisie en overige spullen.

In de eetkamer is een airconditioning aanwezig, wat zorgt voor extra comfort tijdens warme dagen. De ruimte is afgewerkt met kunststof kozijnen met HR++ beglazing. Vanuit de woonkamer is er directe toegang tot de achtertuin en de bijkeuken, waar zich de witgoedvoorzieningen bevinden.

De open keuken, die in 2020 is vernieuwd, sluit naadloos aan op de woonkamer en vormt een praktisch geheel met de leefruimte. De keuken is uitgerust met een 4-pits inductiekookplaat, afzuiging, combi-oven, koelkast en vriezer. Een verzorgde en functionele keuken die van alle gemakken is voorzien voor dagelijks gebruik.

Eerste verdieping
Op de eerste verdieping geeft de overloop toegang tot drie slaapkamers en de badkamer. De slaapkamers zijn allemaal afgewerkt met een laminaatvloer en beschikken over veel daglicht, wat zorgt voor een prettige en lichte uitstraling. Daarnaast zijn de kamers voorzien van kunststof kozijnen met HR++ beglazing, rolluiken en op maat gemaakte horren, wat bijdraagt aan een comfortabel binnenklimaat en extra privacy.

De badkamer is netjes en functioneel ingericht en afgewerkt met een tegelvloer. De ruimte beschikt over een hoogwaardige regendouche, een zwevend badkamermeubel met wasbak, een spiegel met verlichting en een design radiator. Een verzorgde en frisse ruimte die volledig is ingericht voor dagelijks gebruik.

Tweede verdieping
Via een vlizotrap is de tweede verdieping bereikbaar. Deze verdieping bestaat uit een bergzolder en biedt praktische extra opslagruimte voor spullen die je niet dagelijks nodig hebt.

Tuin
De achtertuin is uitgevoerd als een patio-tuin en is geheel betegeld, wat zorgt voor een onderhoudsvriendelijke en praktische buitenruimte. Dankzij de omsloten ligging biedt de tuin veel privacy, waardoor je hier in alle rust kunt zitten en genieten. De tuin is bovendien voorzien van een elektrische zonwering, wat extra comfort biedt tijdens zonnige dagen. Een fijne plek om buiten te ontspannen zonder veel onderhoud.

Vanuit de tuin is er directe toegang tot de garage, wat extra gemak biedt in het dagelijks gebruik. De garage is voorzien van openslaande deuren, elektra en verlichting. Daarnaast is via de achterzijde zowel de eigen parkeerplaats als de garage bereikbaar, wat zorgt voor een praktische en comfortabele indeling. De garage is daardoor uitstekend geschikt voor het stallen van een auto en fietsen, maar ook ideaal te gebruiken als extra opslagruimte of hobbyruimte.

Details
Energielabel C
Doorzonwoonkamer met veel lichtinval
Kunststof kozijnen met HR++ beglazing
Woning volledig gerenoveerd in 2020
Woning is vorige maand volledig vers geschilderd
Afgewerkt met hoog materialen
Drie slaapkamers
Rolluiken op de eerste verdieping
Airconditioning aanwezig in de eetkamer
Onderhoudsvriendelijke, geheel betegelde patio-tuin
Garage met elektra en verlichting
Praktische bergzolder


De informatie is met de nodige zorgvuldigheid door ons samengesteld. Er kunnen geen rechten worden ontleend aan deze advertentie en brochure en aanvaarden wij geen enkele aansprakelijkheid voor enige onvolledigheid, onjuistheid of anderszins, dan wel de gevolgen daarvan. Maatvoeringen en oppervlakten zijn indicatief.

Lees meer

Verkoopgeschiedenis

Aangeboden sinds
6 februari 2026
Verkoopdatum
18 maart 2026
Looptijd
één maand

Kenmerken

Overdracht

Prijs per m2
€ 2.806
Aangeboden sinds
6 februari 2026
Status
Verkocht
Aanvaarding
In overleg

Bouw

Soort woonhuis
Eengezinswoning, tussen woning
Soort bouw
Bestaande bouw
Bouwjaar
1952
Soort dak
Zadeldak
Staat van onderhouden binnen
Uitstekend
Staat van onderhouden buiten
Goed

Oppervlakte en inhoud

Perceeloppervlakte
126 m2
Inhoud van de woning
361 m3
Oppervlakte externe bergruimte
14 m2
Oppervlakte overige inpandige ruimten
8 m2

Indeling

Aantal kamers
4
Aantal slaapkamers
3
Aantal woonlagen
4
Voorzieningen
Tuin, rolluiken, airconditioning

Buitenruimte

Balkon
Nee
Schuur/berging
Nee

Maandlasten berekenen

De maandlasten voor je woning bestaan uit meer dan alleen de hypotheeklasten. Hieronder vind je een overzicht van de bijkomende kosten en lasten. Zo weet je precies wat je huis per maand gaat kosten. En met de handige vergelijkers kun je ook nog eens snel de beste deals sluiten!

  • Kaart
  • Streetview