Verkocht

Zeestraat 163 2211 WX Noordwijkerhout

96m2
Wonen
4
Kamers
146m2
Perceel
1986
Bouwjaar
Deze verassende hoekwoning ligt op een mooie, rustige locatie aan de rand van het dorp. De woning biedt vrij uitzicht over het BAVO-terrein met onder andere een waterspeeltuin en een kinderboerderij en dit alles op loopafstand van het gezellige centrum van Noordwijkerhout. Houdt u van het strand en de duinen, dan kunt u uw hart ophalen! Binnen 10 minuten fietsen staat u al met de voeten in het zand. De woning beschikt over een ruime tuin met zowel een achter- als een zij-ingang, twee royale bergingen en de optimale bezonning. Dankzij de verschillende hoogteniveaus in de tuin zijn er meerdere fijne plekken gecreëerd waar u de hele dag van de zon kunt genieten. Parkeren is geen probleem, direct voor de woning is er veel parkeerruimte aanwezig.
Begane grond
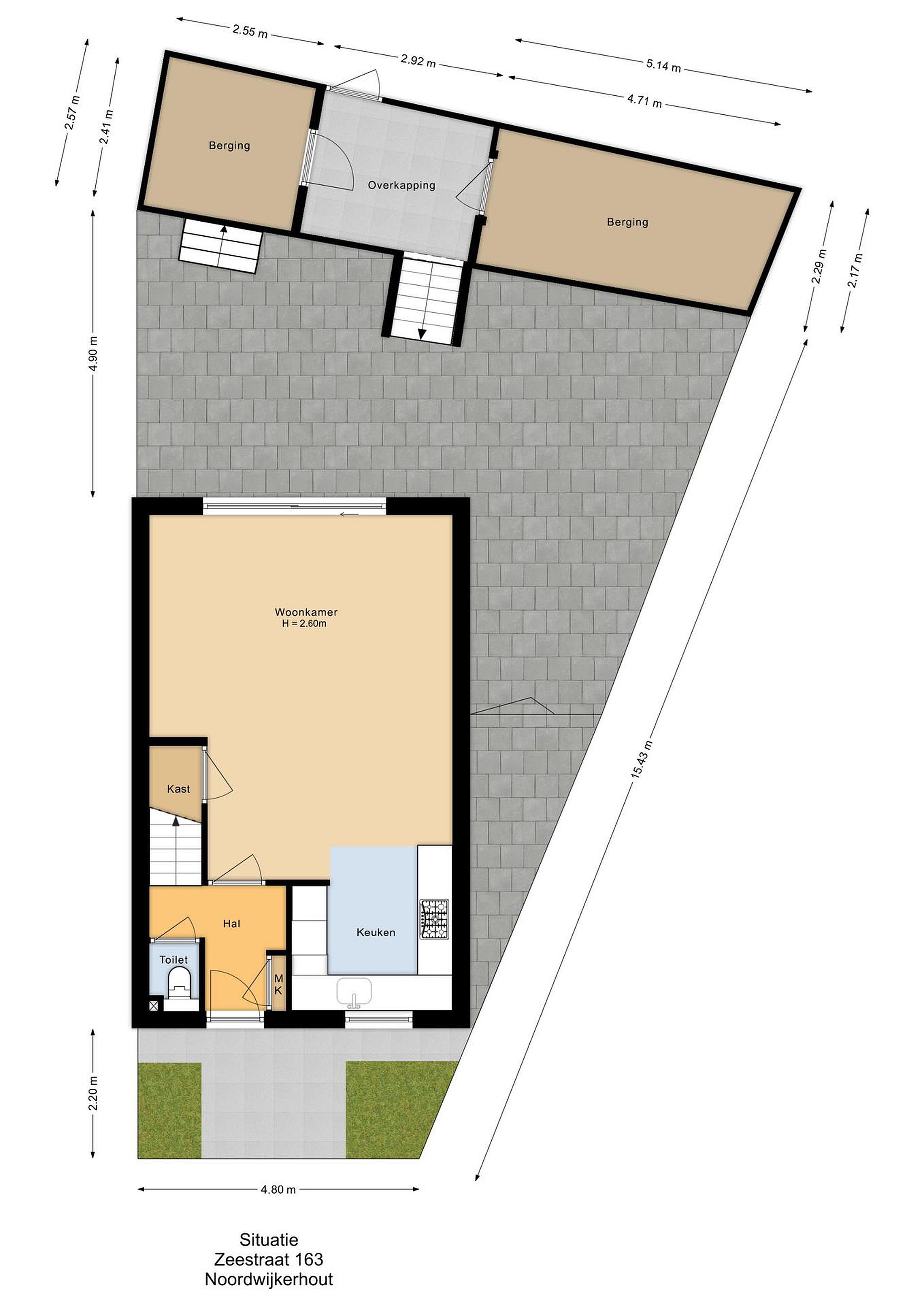
Entree, hal met de garderobe, de meterkast en de toiletruimte met een vrij hangend toilet. De aangenaam lichte en op de tuin gerichte woonkamer heeft een kast onder de trap en een schuifpui over de gehele breedte van de woning. De keuken is in lichte kleur uitgevoerd, is gelegen aan de voorzijde en is voorzien van diverse inbouwapparatuur zoals een 5-pits gaskookplaat met een wokbrander, een afzuigkap, een oven, een vaatwasser en een ingebouwde koel-/ vries combinatie.

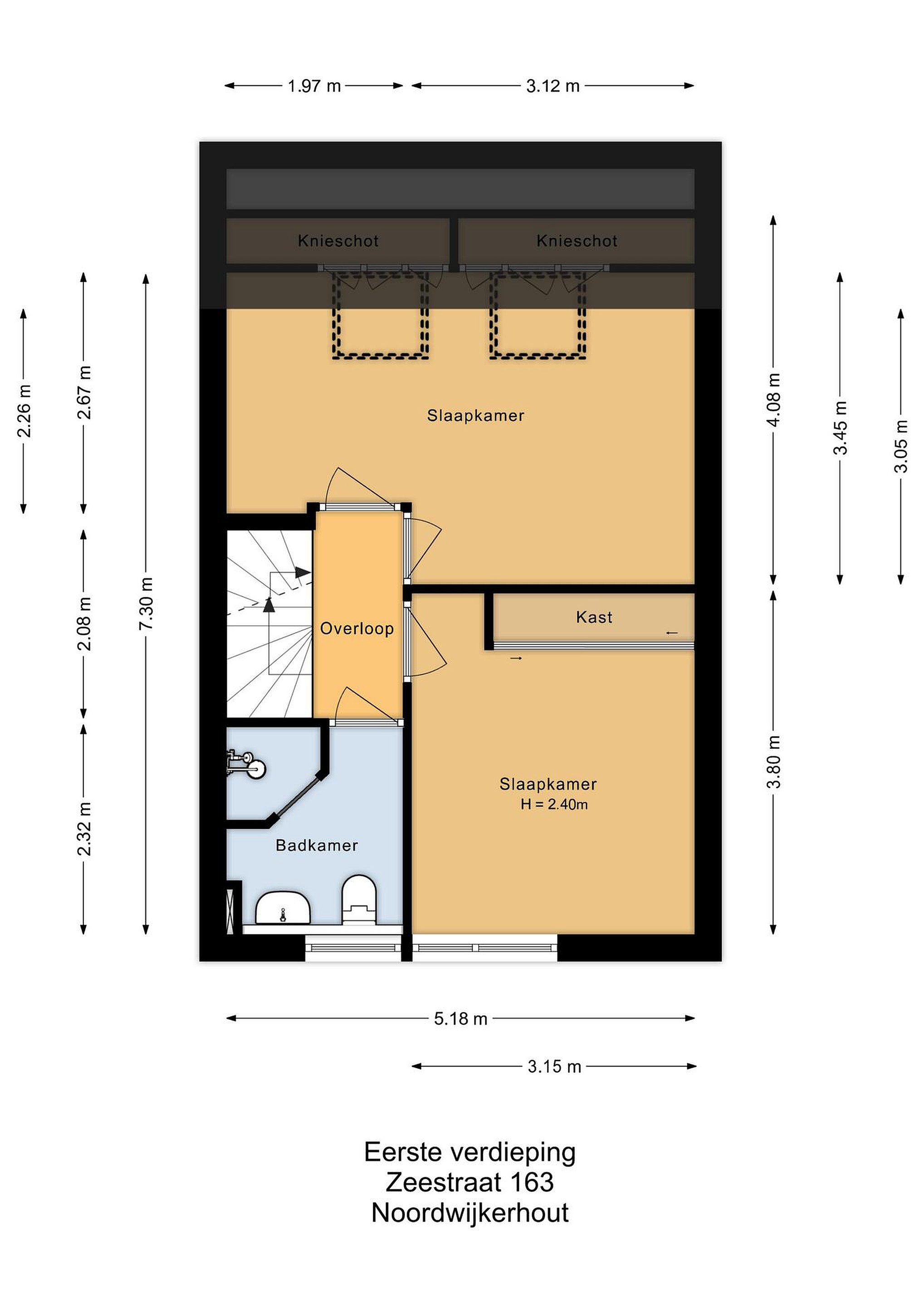
Eerste verdieping
Overloop, aan de voorzijde bevindt zich de eerste slaapkamer met een ingebouwde kast met schuifpanelen. De badkamer is volledig betegeld en is uitgerust met een wandcloset, een wastafel, een douchecabine en ingebouwde verlichting. Aan de achterzijde ligt een meer dan ruime slaapkamer met twee dakramen en veel op maat gemaakte kastruimte. Deze kamer heeft twee deuren en kan eventueel worden opgesplitst in twee slaapkamers.

Tweede verdieping
Op de overloop bevindt zich de CV-ketel, de ventilatie-unit, een dakraam en ingebouwde bergruimte met schuifpanelen. Via de overloop kan de bergruimte in de nok van de woning worden bereikt. De zolderkamer beschikt over een dakkapel, een dakraam en veel bergruimte. Vanuit de zolderkamer heeft u een weids uitzicht over het BAVO-terrein.

Tuin
De achtertuin is zowel via een deur aan de zijkant als een deur aan de achterzijde bereikbaar. De zonligging van deze tuin is echt optimaal. Er is een elektrisch bedienbaar zonnescherm aanwezig voor verkoeling op de warme zomerdagen. De twee ruime bergingen liggen iets lager en zijn met een kleine trap of via de achteringang te bereiken.

Details
Deze hoekwoning beschikt over energielabel B, geldig tot 22 januari 2036;
Er zijn twee grote bergingen aanwezig, deze zijn achterom of via de tuin bereikbaar;
Op de fiets bent u binnen 10 minuten bij het uitgestrekte duingebied en het strand;
De achtertuin is ook via een zij-entree bereikbaar;
Ligging op loopafstand van het centrum van Noordwijkerhout;
De CV-ketel (Intergas) is recent geplaatst en dateert van 2024;
Het prachtige elektrisch bedienbare zonnescherm dateert van 2025;
De kruipruimte is recent geïsoleerd (2025);
Het buitenschilderwerk is recent uitgevoerd (2025);





Lees meer

Verkoopgeschiedenis

Aangeboden sinds
4 februari 2026
Verkoopdatum
8 mei 2026
Looptijd
3 maanden

Kenmerken

Overdracht

Prijs per m2
€ 4.995
Aangeboden sinds
4 februari 2026
Status
Verkocht
Aanvaarding
In overleg

Bouw

Soort woonhuis
Eengezinswoning, hoek woning
Soort bouw
Bestaande bouw
Bouwjaar
1986
Soort dak
Zadeldak
Staat van onderhouden binnen
Goed
Staat van onderhouden buiten
Goed

Oppervlakte en inhoud

Perceeloppervlakte
146 m2
Inhoud van de woning
350 m3
Oppervlakte externe bergruimte
17 m2

Indeling

Aantal kamers
4
Aantal slaapkamers
3
Aantal woonlagen
3
Voorzieningen
Tuin, schuur/berging, ventilatie, kabel-tv, buitenzonwering, schuifpui, dakraam

Buitenruimte

Balkon
Nee
Schuur/berging
Ja

Maandlasten berekenen

De maandlasten voor je woning bestaan uit meer dan alleen de hypotheeklasten. Hieronder vind je een overzicht van de bijkomende kosten en lasten. Zo weet je precies wat je huis per maand gaat kosten. En met de handige vergelijkers kun je ook nog eens snel de beste deals sluiten!

  • Kaart
  • Streetview