Verkocht OV

Spiegelberg 3 2211 DG Noordwijkerhout

97m2
Wonen
4
Kamers
131m2
Perceel
1985
Bouwjaar
Deze op een aangenaam rustige locatie gelegen tussenwoning heeft vier slaapkamers en parkeergelegenheid op eigen terrein. De ruime en volledig betegelde op het zuidoosten gelegen achtertuin heeft een ruime stenen berging en een achterom. De wijk Zeeburg ondergaat een metamorfose en wordt steeds groener en kind vriendelijker. De gezellig dorpskern met alle winkelvoorzieningen ligt op loopafstand. Houdt u van het strand en de duinen dan kunt u uw hart ophalen, met de fiets bent u er binnen 10 minuten!
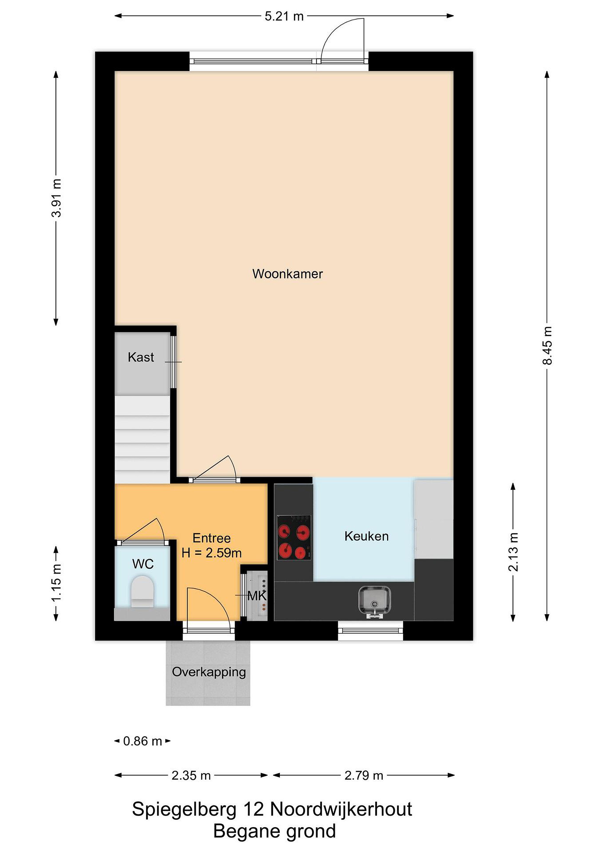
Begane grond
Entree, hal met de meterkast, de garderobe en de toiletruimte. Een heerlijke lichte op de tuin gerichte woonkamer met een kast onder de trap en een deur naar de achtertuin. De in lichte kleur uitgevoerde keuken is voorzien van diverse inbouwapparatuur zoals een koelkast, een vriezer, een vaatwasser, een magnetron, een keramische kookplaat en een afzuigkap.

Eerste verdieping
De overloop met aan de voorzijde de ouderslaapkamer met een ingebouwde kast met schuifpanelen. De badkamer heeft een wandcloset, ventilatie, een wastafel en een douchecabine met een zitje. Aan de achterzijde zijn er twee volwaardige slaapkamers, beiden met een dakraam en een laminaatvloer.

Tweede verdieping
De zolder heeft een dakraam aan de voor- en aan de achterzijde. Op de zolder zowel de opstelling van de Cv-ketel (Nefit Topline 2008) als de ventilatie-unit. Op de zolder kan er nog een extra slaapkamer worden gerealiseerd.

Tuin
Aan de voorzijde de volledig betegelde tuin, u dient hier uw eigen auto te parkeren. Aan de achterzijde de diepe achtertuin met een stenen berging en de optimale bezonning uit het zuidwesten. Mocht het te warm worden dan biedt het brede zonnescherm een heerlijke plek in de schaduw.

Details
De woning is gelegen nabij het centrum van Noordwijkerhout met alle voorzieningen;
De woning is grotendeels voorzien van isolerende beglazing;
Ligging op fietsafstand van het strand en de duinen;
Een diepe op het zuidwesten gelegen achtertuin met een achterom;
De woning heeft een energielabel C, geldig tot 1 december 2035;
Er is parkeergelegenheid op eigen terrein.

Lees meer

Kenmerken

Overdracht

Prijs per m2
€ 4.564
Aangeboden sinds
29 december 2025
Status
Verkocht onder voorbehoud
Aanvaarding
In overleg

Bouw

Soort woonhuis
Eengezinswoning, tussen woning
Soort bouw
Bestaande bouw
Bouwjaar
1985
Soort dak
Zadeldak
Staat van onderhouden binnen
Goed
Staat van onderhouden buiten
Goed

Oppervlakte en inhoud

Perceeloppervlakte
131 m2
Inhoud van de woning
341 m3
Oppervlakte externe bergruimte
6 m2

Indeling

Aantal kamers
4
Aantal slaapkamers
3
Aantal woonlagen
3
Voorzieningen
Tuin, schuur/berging, ventilatie, kabel-tv, buitenzonwering, dakraam

Buitenruimte

Balkon
Nee
Schuur/berging
Ja

Maandlasten berekenen

De maandlasten voor je woning bestaan uit meer dan alleen de hypotheeklasten. Hieronder vind je een overzicht van de bijkomende kosten en lasten. Zo weet je precies wat je huis per maand gaat kosten. En met de handige vergelijkers kun je ook nog eens snel de beste deals sluiten!

  • Kaart
  • Streetview