Verkocht

Schoolstraat 19 2211 EA Noordwijkerhout

68m2
Wonen
3
Kamers
98m2
Perceel
1880
Bouwjaar
Voor dit fantastische pareltje zou ik maar één advies willen geven, kom zo snel mogelijk langs! Deze unieke karakteristieke en goed onderhouden hoekwoning dateert uit 1880 en is werkelijk een lust voor het oog! De ligging is rustig maar wel op loopafstand van het bijzonder levendige centrum van Noordwijkerhout met alle denkbare winkelvoorzieningen. De woning beschikt over een achterplaats met achterom en een grote berging.
Begane grond
Entree, een ruime hal met de meterkast en de toiletruimte met een staand toilet, een fonteintje en mechanische ventilatie. Een bijzonder sfeervolle woonkamer met kozijnen voorzien van vlakken verdeling. De fraaie keuken is gelegen aan de achterzijde en is voorzien van 4-pits gaskookplaat, een afzuigschouw, een vaatwasser, een koelkast, een vriezer en een close-in-boiler. De achterplaats is zowel via de keuken als via de poortdeur te bereiken, hier vindt u een grote berging met de aansluitingen voor de wasapparatuur. Het kozijn in de achtergevel is voorzien van een sunscreen.

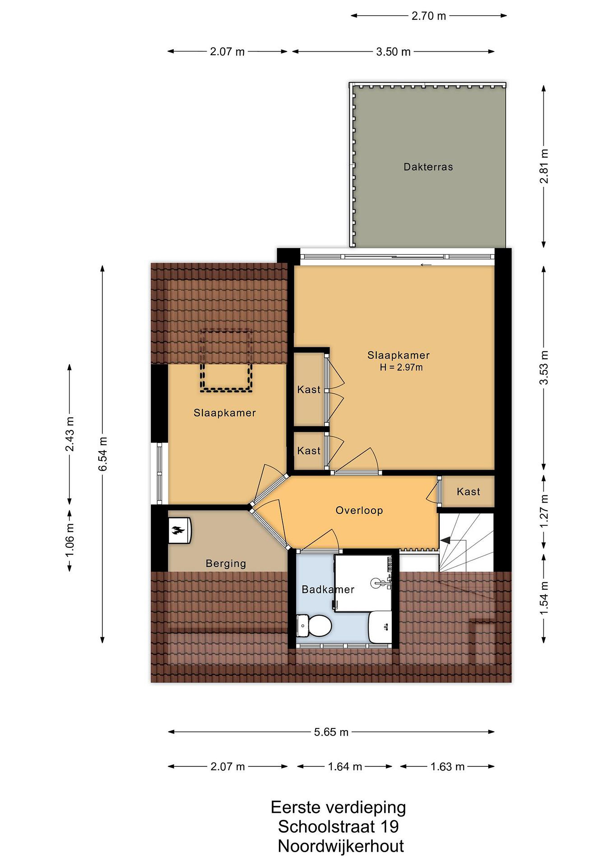
Eerste verdieping
Overloop met een rookmelder en ingebouwde kastruimte. De in lichte kleuren uitgevoerde badkamer is gelegen aan de voorzijde en is voorzien van een douchecabine, een wastafel, verwarming en een staand toilet. Er is nog een ruime berging met de opstelling van de cv-ketel (ATAG 2021). Aan de achterzijde ligt de eerste ruime slaapkamer met een schuifpui naar het prachtige dakterras, hier is het werkelijk heerlijk vertoeven! Ten slotte nog een tweede slaapkamer met een groot dakraam.

Tuin
De achterplaats biedt volop privacy en is zowel via de tuindeur als via de keuken te bereiken.

Details
Een prachtige authentieke en zeer goed onderhouden hoekwoning;
In 2024 is de dakbedekking van het platte dak vernieuwd;
De woning is nagenoeg volledig voorzien van HR++ beglazing;
Ligging op loopafstand van het centrum met alle denkbare voorzieningen;
Het raam aan de achterzijde is voorzien van een sunscreen;
Het zadeldak is in 2023 voorzien van nieuwe dakpannen;
De woning is voorzien van energielabel D, geldig tot 10 juli 2034;


Lees meer

Verkoopgeschiedenis

Aangeboden sinds
26 juli 2025
Verkoopdatum
11 september 2025
Looptijd
2 maanden

Kenmerken

Overdracht

Prijs per m2
€ 6.309
Aangeboden sinds
26 juli 2025
Status
Verkocht
Aanvaarding
In overleg

Bouw

Soort woonhuis
Eengezinswoning, twee-onder-een-kap woning
Soort bouw
Bestaande bouw
Bouwjaar
1880
Soort dak
Zadeldak
Staat van onderhouden binnen
Uitstekend
Staat van onderhouden buiten
Uitstekend

Oppervlakte en inhoud

Perceeloppervlakte
98 m2
Inhoud van de woning
250 m3
Oppervlakte externe bergruimte
6 m2
Oppervlakte gebouwgebonden buitenruimten
9 m2

Indeling

Aantal kamers
3
Aantal slaapkamers
2
Aantal woonlagen
2
Voorzieningen
Schuur/berging, kabel-tv, buitenzonwering, dakraam

Buitenruimte

Balkon
Nee
Schuur/berging
Ja

Maandlasten berekenen

De maandlasten voor je woning bestaan uit meer dan alleen de hypotheeklasten. Hieronder vind je een overzicht van de bijkomende kosten en lasten. Zo weet je precies wat je huis per maand gaat kosten. En met de handige vergelijkers kun je ook nog eens snel de beste deals sluiten!

  • Kaart
  • Streetview