Verkocht

Havendwarsstraat 2 2211 GH Noordwijkerhout

71m2
Wonen
4
Kamers
165m2
Perceel
1938
Bouwjaar
Deze sfeervolle jaren-30 hoekwoning is gelegen op steenworp afstand van het gezellige dorpshart van Noordwijkerhout met alle denkbare winkelvoorzieningen. De goed onderhouden woning heeft een ruime en keurig verzorgde achtertuin met een houten schutting die de privacy in de tuin volledig waarborgt. In de grote berging is er volop ruimte voor het stallen van een auto. Vanuit Noordwijkerhout is het 10 minuten fietsen naar het prachtige uitgestrekte duingebied van Noordwijk met volop wandel- en fietsmogelijkheden.
Begane grond
De hoofdentree ligt aan de zijkant, u komt in een kleine hal met een kast onder de trap, hier bevindt zich de meterkast. De woonkamer is aangenaam licht en biedt uitzicht op het altijd levendige marktplein. Aan de achterzijde van de woning bevindt zich de ruime en in lichte kleuren uitgevoerde keuken met een plavuizenvloer en diverse inbouwapparatuur zoals een vaatwasser, een oven, een gaskookplaat met afzuigkap en een koelvries-combinatie. De keurig betegelde badkamer bevindt zich in het verlengde van de keuken en heeft een wandcloset, een wastafelmeubel, een douchecabine, een spiegelkast en ventilatie. Via een deur in de keuken is de ruime achtertuin te bereiken met volop privacy.

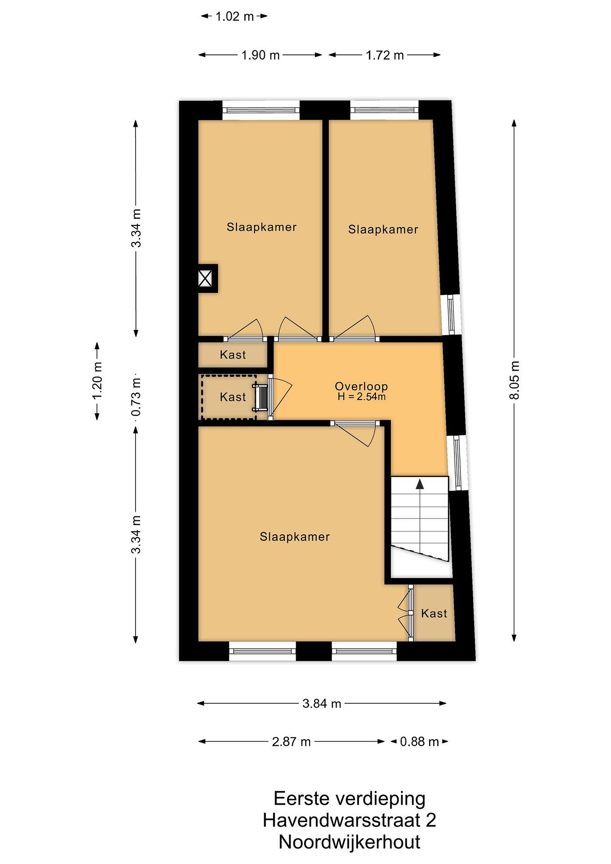
Eerste verdieping
Overloop met aan de voorzijde een grote slaapkamer met ingebouwde kastruimte. Aan de achterzijde bevinden zich twee volwaardige slaapkamers met een laminaatvloer. Via de overloop kan de zolder worden bereikt.

Tweede verdieping
De bergzolder is met een losse trap bereikbaar, deze trap is keurig weggewerkt in een kast op de overloop. De zolder heeft een dakraam en de opstelling van de CV-ketel (Nefit ProLine 2022).

Tuin
Er is een riante en keurig betegelde achtertuin, deze tuin is volledig voorzien van een houten schutting. De royale schuur is zowel via de tuin als buitenom te bereiken. Kopers met groene vingers kunnen hun hart ophalen want de woning beschikt ook nog over een groenrijke zijtuin en een ruime voortuin.

Details
Deze hoekwoning is gelegen in het gezellige dorpshart van Noordwijkerhout;
De woning is gelegen op een ruim hoekperceel van maar liefst 165m2;
De keurig betegelde achtertuin biedt volop privacy;
In de ruime schuur is er parkeergelegenheid voor 1 auto;
Werkelijk alle belangrijke winkelvoorzieningen liggen op loopafstand;
De houten kozijnen zijn uitstekend onderhouden;
De woning beschikt over energielabel E, geldig tot 27 oktober 2035.

Lees meer

Verkoopgeschiedenis

Aangeboden sinds
28 oktober 2025
Verkoopdatum
2 december 2025
Looptijd
één maand

Kenmerken

Overdracht

Prijs per m2
€ 5.634
Aangeboden sinds
28 oktober 2025
Status
Verkocht
Aanvaarding
In overleg

Bouw

Soort woonhuis
Eengezinswoning, hoek woning
Soort bouw
Bestaande bouw
Bouwjaar
1938
Soort dak
Zadeldak
Staat van onderhouden binnen
Goed
Staat van onderhouden buiten
Goed

Oppervlakte en inhoud

Perceeloppervlakte
165 m2
Inhoud van de woning
339 m3
Oppervlakte externe bergruimte
27 m2

Indeling

Aantal kamers
4
Aantal slaapkamers
3
Aantal woonlagen
3
Voorzieningen
Tuin, ventilatie, kabel-tv, dakraam

Buitenruimte

Balkon
Nee
Schuur/berging
Nee

Maandlasten berekenen

De maandlasten voor je woning bestaan uit meer dan alleen de hypotheeklasten. Hieronder vind je een overzicht van de bijkomende kosten en lasten. Zo weet je precies wat je huis per maand gaat kosten. En met de handige vergelijkers kun je ook nog eens snel de beste deals sluiten!

  • Kaart
  • Streetview