Verkocht OV

Fazantlaan 20 2211 KV Noordwijkerhout

116m2
Wonen
5
Kamers
154m2
Perceel
1970
Bouwjaar
Deze uitstekend onderhouden tussenwoning is gelegen op een verrassend rustige locatie op loopafstand van het centrum met alle denkbare winkelvoorzieningen. De woning heeft vier volwaardige slaapkamers en is aan de achterzijde gedeeltelijk uitgebouwd. De heerlijke diepe op het zuidwesten gelegen achtertuin biedt volop privacy, dit komt mede door het feit dat de woningen aan de achterzijde op flinke afstand zijn gebouwd. De wijk is verder zeer kindvriendelijk met een groot speelveld en binnenkort wordt er op loopafstand een gloednieuw zwembad geopend!
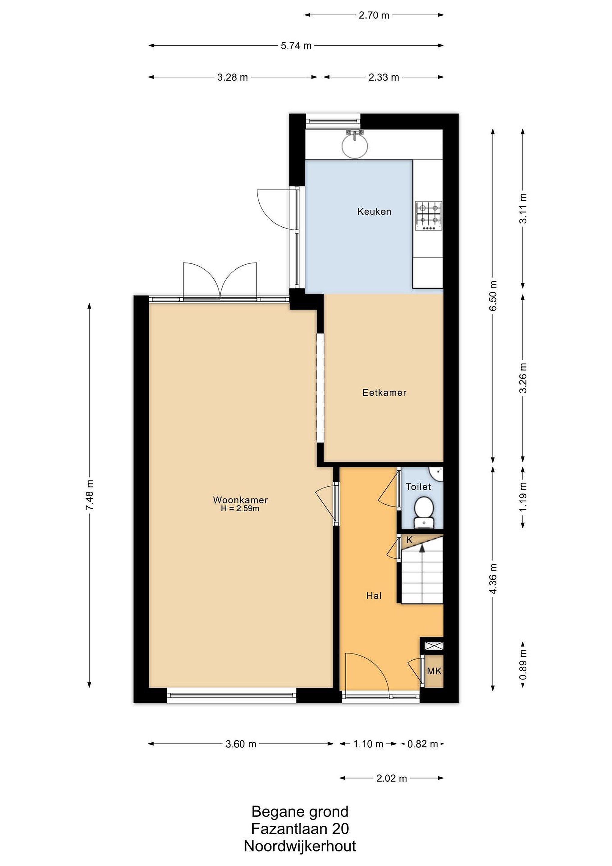
Begane grond
Entree, een ruime gang met meterkast, een kast onder de trap en de toiletruimte met een fonteintje. Een aangenaam lichte doorzonwoonkamer met een fraaie duurzame PVC-vloer. De keuken is aan de achterzijde uitgebouwd en is voorzien van diverse inbouwapparatuur zoals een koelkast, een vriezer, een gaskookplaat, een combimagnetron en een vaatwasser. Via een deur bereikt u diepe en goed verzorgde achtertuin met veel privacy en een zonnescherm. Er is een grote stenen berging met elektriciteit, de tuin is achterom bereikbaar.

Eerste verdieping
Overloop met aan de voorzijde een aangenaam ruime slaapkamer, de badkamer is voorzien van een ligbad, een wastafelmeubel, een handdoekradiator, een halfronde douchcabine en een wandcloset. Aan de achterzijde eveneens een grote slaapkamer met een ingebouwde kastenwand. Tenslotte de derde slaapkamer met ingebouwde kastruimte.

Tweede verdieping
De overloop met aan de voorzijde een dakraam en veel bergruimte, aan de achterzijde eveneens een dakraam, hier bevindt zich de CV-ketel (Nefit Trendline HRC 30 CW5 2023) en de ventilatie-unit. Een ruime zolderkamer met een dakraam en aan de achterzijde een dakkapel met een mooi weids uitzicht over de wijk.

Tuin
De woning beschikt over een voortuin en een diepe op het zuidwesten gelegen achtertuin met een stenen berging. De tuin heeft een zonnescherm en biedt volop privacy. De woning beschikt ook aan de voorzijde over een tuin.

Details
De ligging van deze woning is aangenaam rustig;
Het rolluik aan de voorzijde dateert van 2024;
Het fraaie zonnescherm dateert van 2021;
De woning heeft energielabel C, geldig tot 19-10-2030;
De dakramen op zolder zijn in kunststof uitgevoerd;
De dakkapel aan de achterzijde dateert van 2013;
Het dak op zolder is gesoleerd in 2007 met Rockwool;
De woning is voorzien van op afstand bedienbare rolluiken;
De rolluiken worden gevoed door zonne-energie;
De rolluiken aan de achterzijde dateren van 2021.


Lees meer

Kenmerken

Overdracht

Prijs per m2
€ 4.134
Aangeboden sinds
3 maart 2026
Status
Verkocht onder voorbehoud
Aanvaarding
In overleg

Bouw

Soort woonhuis
Eengezinswoning, tussen woning
Soort bouw
Bestaande bouw
Bouwjaar
1970
Soort dak
Zadeldak
Staat van onderhouden binnen
Goed
Staat van onderhouden buiten
Goed

Oppervlakte en inhoud

Perceeloppervlakte
154 m2
Inhoud van de woning
379 m3
Oppervlakte externe bergruimte
8 m2

Indeling

Aantal kamers
5
Aantal slaapkamers
4
Aantal woonlagen
3
Voorzieningen
Tuin, schuur/berging, ventilatie, rolluiken, kabel-tv, buitenzonwering, dakraam

Buitenruimte

Balkon
Nee
Schuur/berging
Ja

Maandlasten berekenen

De maandlasten voor je woning bestaan uit meer dan alleen de hypotheeklasten. Hieronder vind je een overzicht van de bijkomende kosten en lasten. Zo weet je precies wat je huis per maand gaat kosten. En met de handige vergelijkers kun je ook nog eens snel de beste deals sluiten!

  • Kaart
  • Streetview