Schoolpad 7 7914 TA Noordscheschut

201m2
Wonen
6
Kamers
8834m2
Perceel
2000
Bouwjaar
Wauw, wat een prachtige woning op een unieke locatie!

Vlakbij Hoogeveen, maar heerlijk landelijk gelegen, staat deze schitterende en sfeervolle woning met gastenverblijf, bergingen, stallen en een rijbak. Dit object is dan ook uitermate geschikt voor paardenliefhebbers. De totale perceelgrootte bedraagt ca. 8.834 m2.

De woning is traditioneel gebouwd in 2000 en is voorzien van vele landelijke en authentieke kenmerken. Uiteraard is er sprake van volledige isolatie en HR beglazing, Het energielabel is dan ook A+. Er zijn maar liefst 28 zonnepanelen aanwezig (á 370 wP) en middels het warmtepompsysteem is deze woning all-electric, er wordt geen gas gebruikt.

Begane grond
Entree/hal met meterkast, technische ruimte en toilet; Heerlijke woonkeuken met een keukenblok in landelijke stijl welke is voorien van een inductie-fornuis met elektrische oven, afzuigkap, koelkast en een vaatwasser; Praktische bijkeuken met wasmachineopstelling; Lichte woonkamer met vrij uitzicht en voorzien van een sfeervolle houtkachel; Slaapkamer van ca. 17 m2; Luxe badkamer voorzien van een douche, ligbad, toilet en een badmeubel met dubbele wastafel.
De gehele begane grond wordt verwarmd middels vloerverwarming.

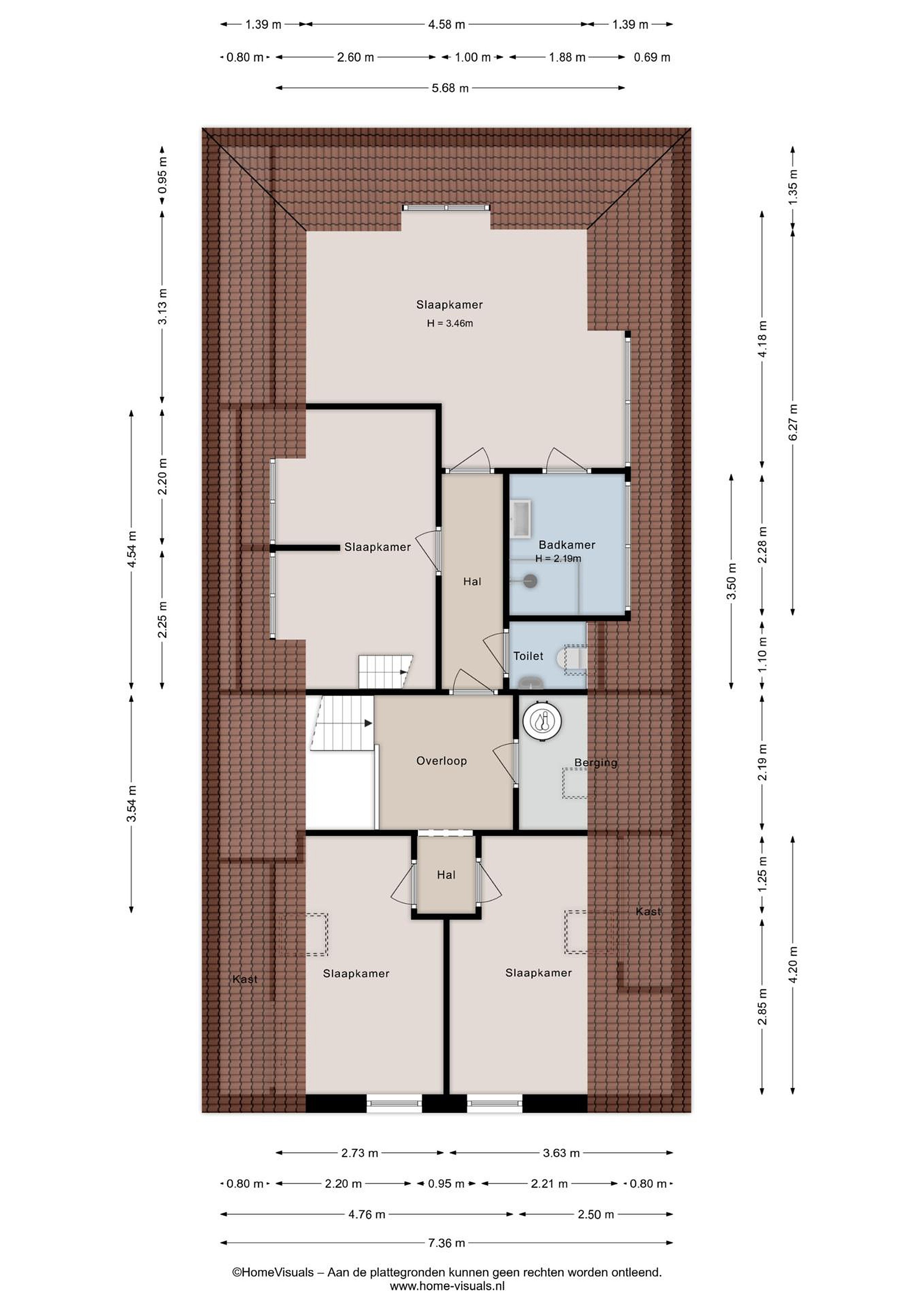
Eerste verdieping
Overloop met technische ruimte/berging en een separaat toilet; 4 slaapkamers van ca. 17, 10 8.5 en 8.5 m2. De 2 slaapkamers aan de voorzijde kunnen eenvoudig worden samengevoegd tot één grote slaapkamer, de slaapkamer met grote dakkapel heeft nog een extra verdieping welke als speel of slaapzolder kan worden gebruikt; De grootste slaapkamer beschikt over een badkamer en suite, deze badkamer is voorzien van een inloopdouche en een wastafel.

Tuin
Aan de Zuid- en Oostzijde van de woning ligt een riant tuinterras met prachtig uitzicht over de landerijen. Ook is er een eigen moestuin aanwezig.
Het perceel is zodanig ingericht dat het weiland rond de woning ligt, hierdoor is er vanuit de woning volledig zicht op de eigen dieren.

Bijgebouwen:
Het vrijstaande gastenverblijf/tuinhuis is voorzien van een woonkamer, keukenblokje en een badkamer met douche en toilet.
Naast de woning staat het authentieke bakhuisje welke in gebruik is als berging.
Kapschuur met bergruimte en een tweede berging met overkapping.
Het overdekte dierenverblijf is voorzien van 2 paardenstallen, een wasplaats en een zadelkamer.

Details
- Woonoppervlak 201,1 m2 en 715 m3 inhoud
- Perceelgrootte ca. 8.834 m2
- Gastenverblijf van 21.8 m2
- 28 zonnepanelen (2022)
- Lucht/water warmtepomp Remeha (2024)
- Geen gasverbruik, gasmeter is nog wel aanwezig
- Waterontharder aanwezig

Het woonhuis heeft een woonbestemming, het perceel heeft bestemming agrarisch.

Deze schitterende woning op een prachtige locatie is zeker een bezichtiging waard, neem gerust contact op om een afspraak in te plannen!

Lees meer

Kenmerken

Overdracht

Prijs per m2
€ 5.470
Aangeboden sinds
5 december 2025
Status
Beschikbaar
Aanvaarding
In overleg

Bouw

Soort woonhuis
Eengezinswoning, vrijstaande woning
Soort bouw
Bestaande bouw
Bouwjaar
2000
Soort dak
Dwarskap
Staat van onderhouden binnen
Uitstekend
Staat van onderhouden buiten
Uitstekend

Oppervlakte en inhoud

Perceeloppervlakte
8834 m2
Inhoud van de woning
715 m3
Oppervlakte externe bergruimte
58 m2

Indeling

Aantal kamers
6
Aantal slaapkamers
5
Aantal woonlagen
2
Voorzieningen
Tuin, schuur/berging, ventilatie, glasvezel

Buitenruimte

Balkon
Nee
Schuur/berging
Ja

Maandlasten berekenen

De maandlasten voor je woning bestaan uit meer dan alleen de hypotheeklasten. Hieronder vind je een overzicht van de bijkomende kosten en lasten. Zo weet je precies wat je huis per maand gaat kosten. En met de handige vergelijkers kun je ook nog eens snel de beste deals sluiten!

  • Kaart
  • Streetview