Vikingrade 42 2912 PM Nieuwerkerk aan den IJssel

120m2
Wonen
5
Kamers
135m2
Perceel
1968
Bouwjaar
RUIM GEZINSHUIS | ZONNIGE TUIN | GEZELLIGE WIJK

Gezellig wonen! Dichtbij alle voorzieningen. Vanuit dit huis doe je lopend je dagelijkse boodschapjes bij winkelcentrum Dorrestein, wandel of fiets je zo naar de diverse basisscholen en sta je als je stevig doorloopt met 10 minuten op het NS-station.

Niet alleen de plek is fijn. Het huis zélf zal je ook aanspreken. Dit 'doorzonhuis' uit 1968 is ruim van opzet en goed onderhouden.

In de aangenaam lichte woonkamer zul je je snel thuis voelen. De dichte keuken (2017) ligt aan de tuinzijde.
Op de 1e etage tref je 3 ruime slaapkamers en een mooie badkamer van nú met inloopdouche, wastafelmeubel en toilet. De 2e verdieping is ook lekker ruim en in gebruik als voorzolder met wasruimte en cv-ruimte + een grote 4e slaapkamer.

Gezellig aangelegde, beschutte achtertuin op het zuidwesten! Ruime stenen berging en achterom.

Volledig voorzien van dubbel glas in houten en kunststof kozijnen. In 2023 zijn er 8 zonnepanelen geïnstalleerd.

Gebruiksoppervlakte wonen 120m2. Perceelgrootte 135m2. Energielabel A.
Begane grond
Entree, ruime hal / gang met meterkast, toilet en trap naar de verdieping.

Aangenaam lichte doorzonkamer (ca. 7.81 x 3.62m) met een gezellig zitgedeelte aan de tuinzijde en ruimte voor een grote eettafel aan de straatzijde. (Bij dit type woonkamer kun je ervoor kiezen om de muur tussen de kamer en keuken te verwijderen zodat er een open keuken ontstaat)

Dichte keuken (bereikbaar vanuit de gang) (ca. 3.50 x 2.33m) met modern keukenblok (2017) in rechte opstelling. Uitgevoerd in grenen houtlook met wit composiet aanrechtblad. Leuk detail zijn de klassieke achterwandtegeltjes...
Inbouwapparatuur: gasfornuis, oven, afzuigkap en vaatwasser.
Deur naar achtertuin.

In de gang en keuken ligt zwart/wit geblokt zeil. De woonkamer is voorzien van een moderne laminaatvloer.

Eerste verdieping
Ruime overloop met toegang tot de vertrekken.

Slaapkamer 1 (ca. 3.58 x 3.65m) gelegen aan de straatzijde
Met handige inbouwkasten.

Slaapkamer 2 (ca. 3.15 x 3.65m) gelegen aan de tuinzijde
Met handige inbouwkasten.

Slaapkamer 3 (ca. 3.58 x 2.32m) - gelegen aan de tuinzijde

Op de overloop en in de slaapkamers ligt een laminaatvloer.

Mooi uitgevoerde badkamer van nú (2022) met inloopdouche, wastafelmeubel en toilet.
Prachtige wand- en vloertegels in lichte kleurstelling.

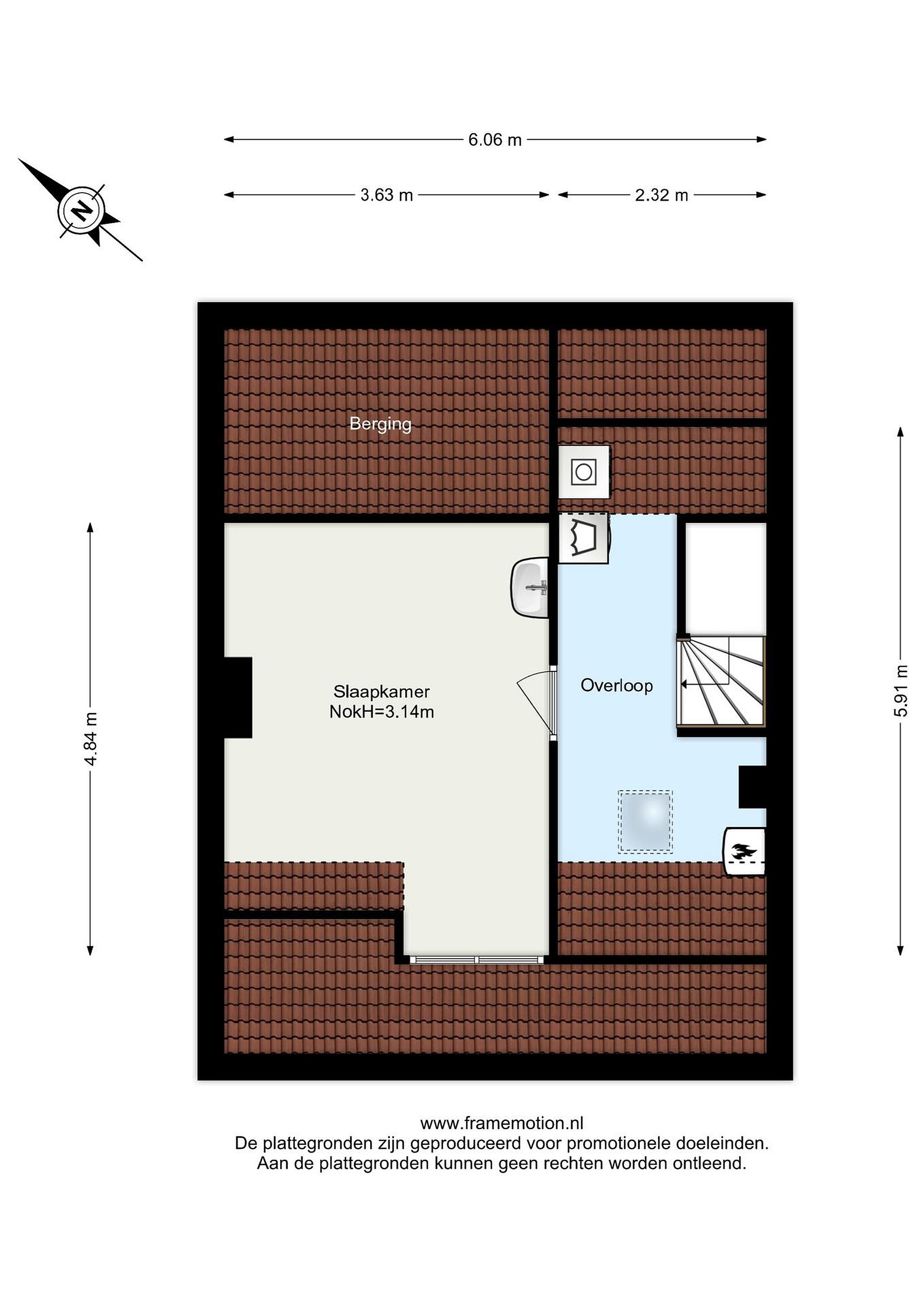
Tweede verdieping
Overloop met opstelling cv combiketel en aansluiting voor de wasmachine en wasdroger.

Slaapkamer 4 (4.00 x 3.63m)
Ruime 'zolderkamer' met dakkapel en sfeervolle hoge nok.
Als extra is deze kamer voorzien van wastafelmeubel. Handige bergruimte onder het schuine dak.

Tuin
In de sfeervolle, brede én beschutte achtertuin is het goed toeven. Door de ligging op het zuidwesten kun je heerlijk van de zon genieten. Gevarieerde beplanting en 'groene' erfafscheiding. Direct bij de achtergevel is er een houten vlonderterras met ruimte voor bijvoorbeeld een loungeset. Ruime stenen berging en deur naar achterom. In de voortuin word je begroet door de mooie hortensia's.

Details
Bouwjaar 1968
Gebruiksoppervlakte wonen 120m2
Het huis is voorzien van dubbel glas in houten kozijnen (voorzijde) en kunststof kozijnen (achterzijde)
Buitenschilderwerk is in het voorjaar van 2025 uitgevoerd
Verwarming en warm water via cv combiketel uit 2023
In 2023 zijn 8 zonnepanel (420Wp) geïnstalleerd
Energielabel A, geldig tot 2035
In de koopovereenkomst zal de ouderdomsclausule en asbestclausule worden opgenomen
Oplevering in overleg

Lees meer

Kenmerken

Overdracht

Prijs per m2
€ 3.658
Aangeboden sinds
6 oktober 2025
Status
Beschikbaar
Aanvaarding
In overleg

Bouw

Soort woonhuis
Eengezinswoning, tussen woning
Soort bouw
Bestaande bouw
Bouwjaar
1968
Soort dak
Zadeldak
Staat van onderhouden binnen
Goed
Staat van onderhouden buiten
Goed

Oppervlakte en inhoud

Perceeloppervlakte
135 m2
Inhoud van de woning
422 m3
Oppervlakte externe bergruimte
8 m2

Indeling

Aantal kamers
5
Aantal slaapkamers
4
Aantal woonlagen
3
Voorzieningen
Tuin, ventilatie, buitenzonwering, rookkanaal, dakraam

Buitenruimte

Balkon
Nee
Schuur/berging
Nee

Maandlasten berekenen

De maandlasten voor je woning bestaan uit meer dan alleen de hypotheeklasten. Hieronder vind je een overzicht van de bijkomende kosten en lasten. Zo weet je precies wat je huis per maand gaat kosten. En met de handige vergelijkers kun je ook nog eens snel de beste deals sluiten!

  • Kaart
  • Streetview