's-Gravenweg 314A 2911 BK Nieuwerkerk aan den IJssel

133m2
Wonen
5
Kamers
468m2
Perceel
1961
Bouwjaar
Sfeervolle twee onder één kap woning uit 1961. In 2002 is dit huis vakkundig verbouwd en aanzienlijk vergroot met een aanbouw van bijna 6 meter. Unieke ligging aan de bekende en landelijke 's-Gravenweg op een ruim perceel eigen grond van 468m2! De grote voortuin en de eigen brug geven het huis een vriendelijke uitstraling.

Heerlijke achtertuin met véél vrijheid en privacy. De tuin heeft een goede zonligging. De houten overkapping is een fijn plekje om te genieten. In de voortuin is voldoende ruimte om 2 auto's te parkeren.

Het hele huis is voorzien van kunststof kozijnen. Weinig onderhoud dus.
Verduurzaamd met 7 zonnepanelen. Energielabel A.

Om rekening mee te houden: op dit moment is er nog géén badkamer. Op de eerste verdieping kan er een mooie badkamer gerealiseerd worden. Zie plattegronden met indelingsvariant.

Vanuit dit huis wandel je zo natuurgebied Hitland in. Andere voorzieningen zoals winkels, scholen, openbaar vervoer (NS station) en uitvalswegen zijn op korte afstand bereikbaar.

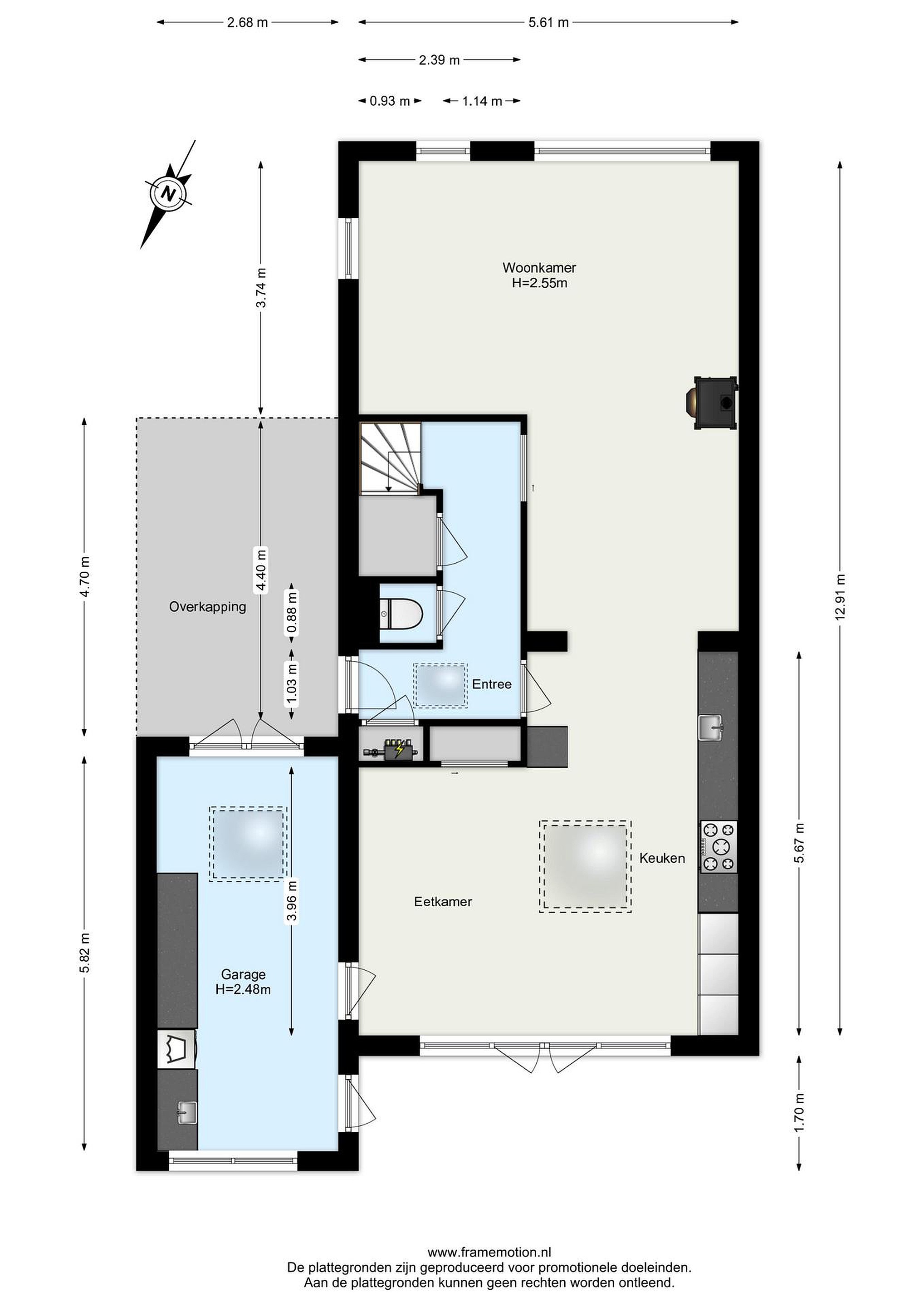
Begane grond
Overdekte entree. Deur aan zijkant van de woning. Ruime gang met meterkast, toilet, bergkast en trap naar de verdieping; Toegang naar de woonkamer en toegang naar de woonkeuken.

Als je woonkeuken binnenstapt, word je aangenaam verrast door de fijne lichtinval en de mooie ruimte die je krijgt. In 2002 is het huis namelijk vergroot met een aanbouw van 6 meter over de gehele breedte.
De brede kunststof pui zorgt ervoor dat je veel contact met 'buiten' ervaart. Openslaande deuren naar terras en tuin.

Luxe en compleet uitgevoerde keuken in rechte wandopstelling. Natuurstenen aanrechtblad.
Inbouwapparatuur: inductie kookplaat, afzuigsysteem, Quooker, koelkast, vriezer, oven, combioven en vaatwasser. Leuk detail is het 'koffiehoekje'...

In de woonkeuken is ruim voldoende plaats voor een grote eettafel.

De gezellige houtkachel vormt het middelpunt van de lichte woonkamer. Vanuit de woonkamer leuk uitzicht!
In de kamer is ruimte voor een grote zithoek.
De woonkamer en woonkeuken samen hebben een afmeting van 60m2!

Bijkeuken (ca. 5.82 x 2.68m)
De luxe van zo'n multifunctionele ruimte went snel!
De ruimte is in gebruik als wasruimte met aansluitingen voor wasmachine en droger, bergruimte en stalling.
Openslaande deuren aan de voorzijde. Deur naar de achtertuin.

In de hal, woonkamer, woonkeuken én bijkeuken ligt een moderne eiken visgraat pvc vloer.

Eerste verdieping
Overloop met bergkast, apart toilet, schuifwandkast en toegang tot de slaapkamers.

Slaapkamer 1 (ca. 5.61 x 2.85m)

Slaapkamer 2 (ca. 3.54 x 2.54m)

Om rekening mee te houden. Op dit moment is er nog géén badkamer. Zie plattegrond met indelingsvariant.

Op de overloop en in de slaapkamers ligt tapijt als vloerafwerking.

Tweede verdieping
Deze etage is vergroot met een nokverhoging en 2 brede kunststof dakkapellen.

Slaapkamer 3 (ca. 3.81 x 2.32m)

Slaapkamer 4 (ca. 5.00 x 2.18m)
Met handige ingebouwde kastruimte.

Op de overloop en in de slaapkamers ligt tapijt als vloerbedekking.

Tuin
Het huis ligt mooi midden op het perceel. Aan de voorzijde is er een eigen brug en voldoende ruimte voor het parkeren van 2 auto's. De voorzijde is ingericht met grind, gras en diverse struiken. Tegen de gevel is ruimte voor een gezellig zitje.
Aan de achterzijde kun je genieten van een heerlijke tuin met goede zonligging. De markante wilg geeft je een gevoel van vrijheid. De sfeervolle houten overkapping is een fijne plek om te vertoeven. Handige berging voor tuinspullen en gereedschap. De achtertuin grenst aan het kleinschalige bedrijventerrein Business Parc IJsselpoint.

Details
Bouwjaar 1961. Vergroot met aanbouw in 2002.
Gebruiksoppervlakte wonen 133m2. Exclusief de bijkeuken.
Perceelgrootte 468m2.
Het hele huis is voorzien van kunststof kozijnen en HR glas.
Op het dak zijn 7 zonnepanelen aangebracht.
Energielabel A, geldig tot 24-02-2036.
Verwarming en warm water via cv combiketel (2025).
In de koopovereenkomst zal de ouderdomsclausule en de asbestclausule worden opgenomen.

Lees meer

Kenmerken

Overdracht

Prijs per m2
€ 5.827
Aangeboden sinds
12 maart 2026
Status
Beschikbaar
Aanvaarding
In overleg

Bouw

Soort woonhuis
Eengezinswoning, twee-onder-een-kap woning
Soort bouw
Bestaande bouw
Bouwjaar
1961
Soort dak
Zadeldak
Staat van onderhouden binnen
Goed
Staat van onderhouden buiten
Goed

Oppervlakte en inhoud

Perceeloppervlakte
468 m2
Inhoud van de woning
508 m3
Oppervlakte externe bergruimte
9 m2
Oppervlakte gebouwgebonden buitenruimten
14 m2
Oppervlakte overige inpandige ruimten
16 m2

Indeling

Aantal kamers
5
Aantal slaapkamers
4
Aantal woonlagen
3
Voorzieningen
Tuin, schuur/berging, buitenzonwering, rookkanaal, schuifpui

Buitenruimte

Balkon
Nee
Schuur/berging
Ja

Maandlasten berekenen

De maandlasten voor je woning bestaan uit meer dan alleen de hypotheeklasten. Hieronder vind je een overzicht van de bijkomende kosten en lasten. Zo weet je precies wat je huis per maand gaat kosten. En met de handige vergelijkers kun je ook nog eens snel de beste deals sluiten!

  • Kaart
  • Streetview