Missouri 3 2911 CX Nieuwerkerk aan den IJssel

225m2
Wonen
6
Kamers
602m2
Perceel
2018
Bouwjaar
Aan de rand van de kindvriendelijke wijk Essezoom ligt Missouri 3, een vrijstaande woning met karakter en veel ruimte in en om het huis. Deze woning, gebouwd in 2018, combineert modern wooncomfort met een warme en sfeervolle uitstraling. Met een woonoppervlakte van 225 m2 (+ 15 m2 garage) op een royaal perceel van 602 m2, vijf royale slaapkamers, twee badkamers, woonkamer met een woonkeuken biedt dit huis alle ruimte om te wonen, te werken en te genieten.

De Missouri is de kleinste straat van Nieuwerkerk aan den IJssel, met slechts vier vrijstaande woningen. Dat zorgt voor een rustige en veilige woonomgeving, zonder doorgaand verkeer, maar wel in de wijk. Scholen liggen op loopafstand, winkels en sportclubs zijn makkelijk per fiets bereikbaar en ook het openbaar vervoer is dichtbij.
Begane grond
De woonkamer ligt aan de voorzijde en is sfeervol ingericht met een houtkachel, houten vloer en airconditioning. Via schuifdeuren staat de woonkamer in verbinding met de royale woonkeuken.

De erker in de woonkeuken met openslaande deuren naar de zijtuin zorgen voor veel licht. De keuken is voorzien van Neff-inbouwapparatuur zoals een koel/vrieskast, combi oven / magnetron, stoomoven, vaatwasser, een inductie kookplaat met afzuiger en een bar om aan te zitten. De gehele begane grond heeft vloerverwarming en strak gestuukte wanden en plafonds.

Via de brede schuifpui stapt u zo vanuit de keuken het terras op. Hier bevindt zich een elektrisch breed zonnescherm. Vanuit de keuken is er ook een deur naar de garage, die ruim genoeg is voor voorraad, fietsen en een werktafel. Daarnaast is er een deur vanuit de garage naar de tuin en naar de oprit.

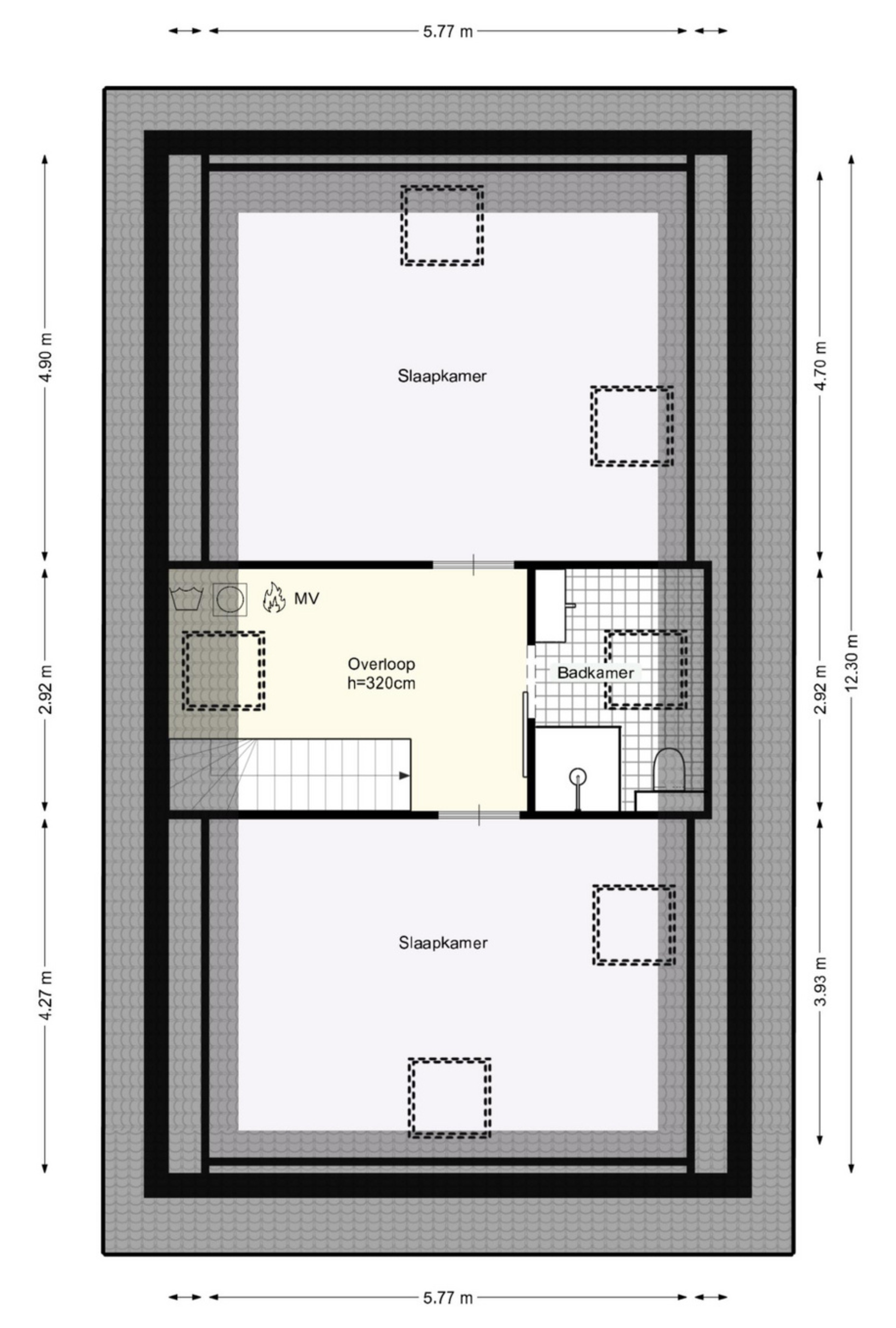
Eerste verdieping
Op de eerste verdieping bevinden zich drie royale slaapkamers, allemaal uitgerust met elektrische rolluiken. De master bedroom ligt aan de achterzijde en heeft een doorloop naar de kleedruimte.

De badkamer is luxe uitgevoerd met een ligbad, inloopdouche, wastafelmeubel met een dubbele wasbak en vloerverwarming. Op de overloop bevindt zich een apart toilet.

De verdieping is afgewerkt met een nette laminaatvloer en strak gestuukte wanden en plafonds.

Tweede verdieping
De tweede verdieping biedt verrassend veel ruimte. Hier zijn nog twee slaapkamers te vinden, beide voorzien van Velux-dakramen met verduistering, airconditioning en veel bergruimte achter de schotten.

Er is een tweede badkamer met inloopdouche, wastafelmeubel en toilet, eveneens met vloerverwarming. Op de overloop zijn de wasmachineaansluiting en de Cv-installatie (2018) te vinden.

Tuin
De woning heeft een groene tuin rondom, waarin voor ieder wat wils te vinden is: meerdere terrassen om in de zon of schaduw te zitten, een trampoline en speelhuis voor de kinderen en een jacuzzi om heerlijk te ontspannen. Aan de zijkant grenst de tuin aan het water, waar een vlonder is gemaakt om te vissen of een bootje te water te laten. Aan de voorzijde is ruimte om drie auto’s op eigen terrein te parkeren.

Details
Duurzaamheid en comfort
De woning is volledig toekomstbestendig: kunststof kozijnen met HR++ glas, 12 zonnepanelen, energielabel A en vloerverwarming zorgen voor een laag energieverbruik en een aangenaam binnenklimaat. Ook de airco’s in woonkamer, keuken en zolderkamers dragen bij aan extra comfort, zowel in de zomer als in de winter (koele en warme lucht).

Kenmerken op een rij
- Bouwjaar: 2018
- Woonoppervlakte: 240 m2 inclusief garage
- Perceeloppervlakte: 602 m2
- Sfeervolle woonkamer met houtkachel en een woonkeuken
- Vijf royale slaapkamers
- Energielabel A
- 12 zonnepanelen
- Kunststof kozijnen met HR++ glas
- Vloerverwarming op begane grond en beide badkamers
- Airco in woonkamer, keuken en op zolderkamers
- De weg naar de vier woningen aan de Missouri is eigen grond van de bewoners. Het onderhoud wordt gezamenlijk geregeld.
- Turn-key gezinswoning: direct te betrekken, modern afgewerkt en perfect onderhouden
- Ideaal voor gezinnen die ruimte zoeken, zowel binnen als buiten

Een unieke kans
Missouri 3 is een woning die direct te betrekken is. Alles is strak afgewerkt en perfect onderhouden. Dankzij de ligging aan het water, de ruimte rondom en in de woning en de combinatie van luxe en duurzaamheid is dit een ideale gezinswoning voor wie op zoek is naar rust, ruimte en kwaliteit.

Lees meer

Kenmerken

Overdracht

Prijs per m2
€ 5.756
Aangeboden sinds
29 september 2025
Status
Beschikbaar
Aanvaarding
In overleg

Bouw

Soort woonhuis
Eengezinswoning, vrijstaande woning
Soort bouw
Bestaande bouw
Bouwjaar
2018
Soort dak
Schilddak
Staat van onderhouden binnen
Goed
Staat van onderhouden buiten
Goed

Oppervlakte en inhoud

Perceeloppervlakte
602 m2
Inhoud van de woning
872 m3
Oppervlakte overige inpandige ruimten
15 m2

Indeling

Aantal kamers
6
Aantal slaapkamers
5
Aantal woonlagen
3
Voorzieningen
Tuin, ventilatie, rolluiken, glasvezel, buitenzonwering, airconditioning, rookkanaal, schuifpui, dakraam

Buitenruimte

Balkon
Nee
Schuur/berging
Nee

Maandlasten berekenen

De maandlasten voor je woning bestaan uit meer dan alleen de hypotheeklasten. Hieronder vind je een overzicht van de bijkomende kosten en lasten. Zo weet je precies wat je huis per maand gaat kosten. En met de handige vergelijkers kun je ook nog eens snel de beste deals sluiten!

  • Kaart
  • Streetview