Kroonkruid 22 2914 BM Nieuwerkerk aan den IJssel

100m2
Wonen
5
Kamers
149m2
Perceel
1978
Bouwjaar
Stap binnen in een woning die direct aanvoelt als THUIS. Deze tussenwoning heeft maar liefst 4 slaapkamers, een royale voor- en achtertuin en is gelegen in een rustige kindvriendelijke wijk. Voorzieningen zoals winkels, scholen, sportvelden en openbaar vervoer bevinden zich op korte afstand.
Een mooi pluspunt: het huis is voorzien van kunststof kozijnen.
Kortom: Een comfortabele gezinswoning op een ideale locatie -- een plek waar je je direct welkom voelt.

De keuken is in 2024 volledig vernieuwd en heeft een moderne strakke uitstraling. Vanuit de keuken kijk je uit op de zonnige achtertuin. Door de verschillende terrassen is er op elk moment van de dag een plek in de zon te vinden -- ideaal voor ontspanning, spelende kinderen of een gezellige borrel.

Op de eerste verdieping zijn 3 slaapkamers en een geheel gemoderniseerde badkamer uit 2020 voorzien van douche, toilet en wastafel. De 4e slaapkamer vind je op de tweede verdieping, waar ook de wasruimte is. Totaal heeft deze woning 4 slaapkamers....waardoor er genoeg ruimte is voor een gezin, een thuiswerkplek of logees.

Daarnaast heeft de woning ook nog een aangebouwde berging en een parkeerplaats op eigen terrein, voorzien van een elektrische laadpaal.

Enthousiast geworden? Bel ons snel (0180-323124) voor een bezichtiging dan laten we je graag de woning zien!
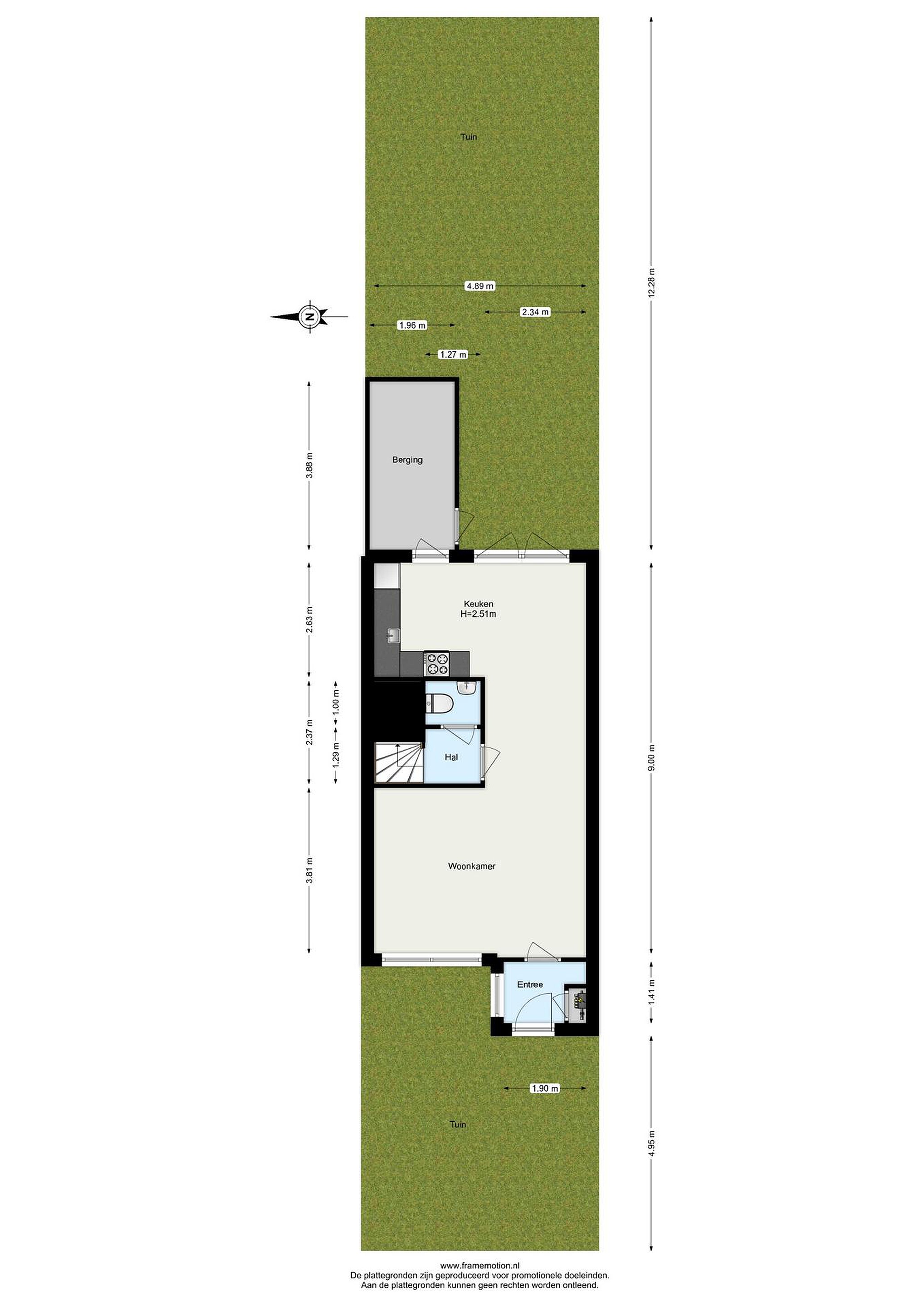
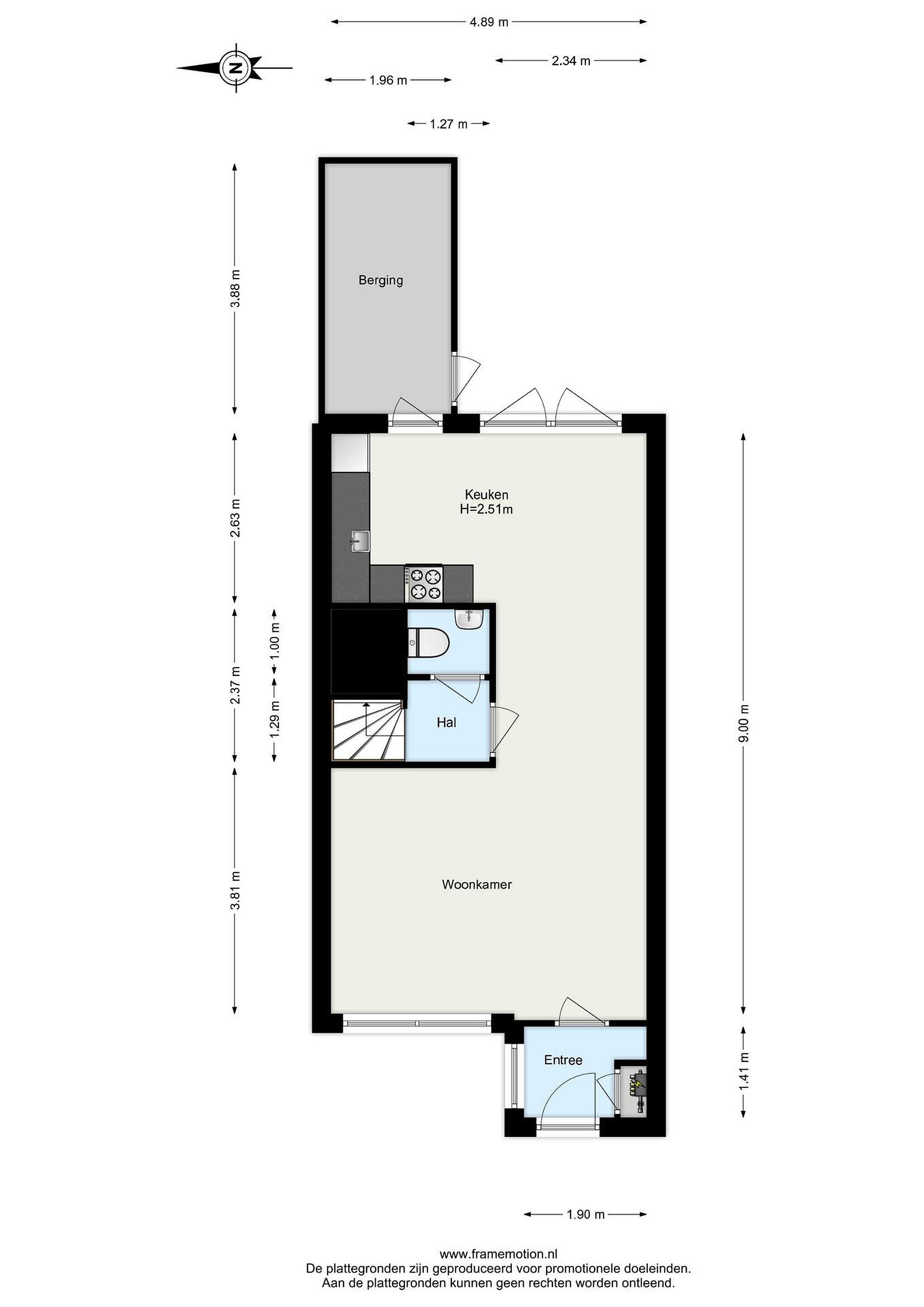
Begane grond
Hal met meterkast en deur naar de woonkamer.

De gezellige L-vormige woonkamer heeft een zitgedeelte aan de straatzijde (met leuk vrij uitzicht) en een eetgedeelte aan de zijde van de open keuken.

De keuken (hoekopstelling) is geheel vernieuwd in 2024 en uiteraard voorzien van moderne inbouw apparatuur zoals een inductie kookplaat, een recirculatie afzuigkap, koelkast en een oven met een aparte magnetronfunctie. Via de keuken is er toegang tot de stenen berging handig voor extra opbergruimte en plaatsen van fietsen.

Tussenhal met toilet en trap naar de verdieping. Het toilet is geheel gemoderniseerd en vernieuwd in 2024.

Eerste verdieping
Overloop met toegang tot de vertrekken.

Slaapkamer 1 (ca. 2.64 x 2.07m)
Slaapkamer 2 (ca. 4.39 x 2.76m)
Slaapkamer 3 (ca. 3.32 x 2.76m)

Modern uitgevoerde, goed ingedeelde badkamer (ca. 2.30m x 2.07m) vernieuwd in 2020 met inloopdouche, wastafelmeubel met verlichte spiegel en 2e toilet.

Op de overloop en in de slaapkamers ligt Novilon, in de hobbykamer ligt een laminaat vloer.

Tweede verdieping
Overloop met toegang tot de wasruimte (ca. 2.09m x 1.87m) en de slaapkamer (ca. 4.13m x 2.74m) met dakkapel.

Handige bergruimtes achter de schotten.

Ook deze verdieping is voorzien van een Novilon vloer.

Tuin
De ruime achtertuin van ruim 12 meter lang en 5 meter breed is gezellig ingericht. Doordat er twee verschillende terrassen zijn is er altijd een plekje in de zon. In de voortuin heb je vanaf einde middag een heerlijk avondzonnetje.

Stenen berging in achtertuin. Poort naar achterom middels een houten schuifdeur.

Details
Bouwjaar 1978
Perceelgrootte 149m2
Gebruiksoppervlakte wonen 100m2
Energielabel B, geldig tot 2 september 2035
Het huis is voorzien van dubbel glas en kunststof kozijnen. Dakkapel hout kozijn, geschilderd in 2025
Verwarming en warm water via cv combiketel uit 2021
Nieuw ventilatiesysteem uit 2024
Keuken en toilet zijn vernieuwd in 2024
Voortuin met eigen parkeerplaats en elektrische laadpaal
In de koopovereenkomst zal de ouderdomsclausule en asbestclausule worden opgenomen

Lees meer

Kenmerken

Overdracht

Prijs per m2
€ 4.390
Aangeboden sinds
23 september 2025
Status
Beschikbaar
Aanvaarding
In overleg

Bouw

Soort woonhuis
Eengezinswoning, tussen woning
Soort bouw
Bestaande bouw
Bouwjaar
1978
Soort dak
Zadeldak
Staat van onderhouden binnen
Goed
Staat van onderhouden buiten
Goed

Oppervlakte en inhoud

Perceeloppervlakte
149 m2
Inhoud van de woning
374 m3
Oppervlakte overige inpandige ruimten
8 m2

Indeling

Aantal kamers
5
Aantal slaapkamers
4
Aantal woonlagen
3
Voorzieningen
Tuin, schuur/berging, ventilatie, dakraam

Buitenruimte

Balkon
Nee
Schuur/berging
Ja

Maandlasten berekenen

De maandlasten voor je woning bestaan uit meer dan alleen de hypotheeklasten. Hieronder vind je een overzicht van de bijkomende kosten en lasten. Zo weet je precies wat je huis per maand gaat kosten. En met de handige vergelijkers kun je ook nog eens snel de beste deals sluiten!

  • Kaart
  • Streetview