Verkocht OV

Fluitekruid 20 2914 TB Nieuwerkerk aan den IJssel

119m2
Wonen
4
Kamers
132m2
Perceel
1978
Bouwjaar
Deze smaakvol gerenoveerde tussenwoning aan de Fluitenkruid 20 met vernieuwde keuken en badkamer, drie slaapkamers (oorspronkelijk 4), een tuin op het zuiden met een carport, kunststof kozijnen, zonnepanelen en energielabel A biedt het ideale wooncomfort voor wie op zoek is naar een ruime en zorgeloze instapklare woning.

De woning, gebouwd in 1978, biedt een royaal woonoppervlak van 119 m2 op een perceel van 132 m2.

De ligging aan een rustig fietspad, zonder autoverkeer voor de deur, creëert een ontspannen en veilige woonomgeving, perfect voor gezinnen en iedereen die houdt van privacy en rust. Op loopafstand bevinden zich diverse scholen, speeltuinen en een fraai park, terwijl ook winkelcentrum Reigerhof én het openbaar vervoer (bus en trein) binnen handbereik zijn.
Begane grond
Bij binnenkomst in de hal vallen direct het vernieuwde toilet en de gemoderniseerde meterkast op. Vanuit hier betreedt u via de houten schuifdeur de lichte woonkamer met vloerverwarming onder het strakke laminaat en volledig gestuukte wanden en plafonds. De diepe en brede trapkast biedt extra bergruimte, er is zelfs ruimte om de kinderwagen in op te bergen.

De keuken met gezellige bar bevindt zich aan de tuinzijde en is uitgerust met alle wenselijke inbouwapparatuur, waaronder een combi-oven/magnetron, een 5-pits gasfornuis met afzuiging, koel-vriescombinatie, vaatwasser en heet waterkraan. Via de openslaande deuren vanuit de keuken bereikt u de tuin. Deze achterpui is volledig vernieuwd en voorzien van grotendeels glas waardoor en er veel daglicht naar binnen valt.

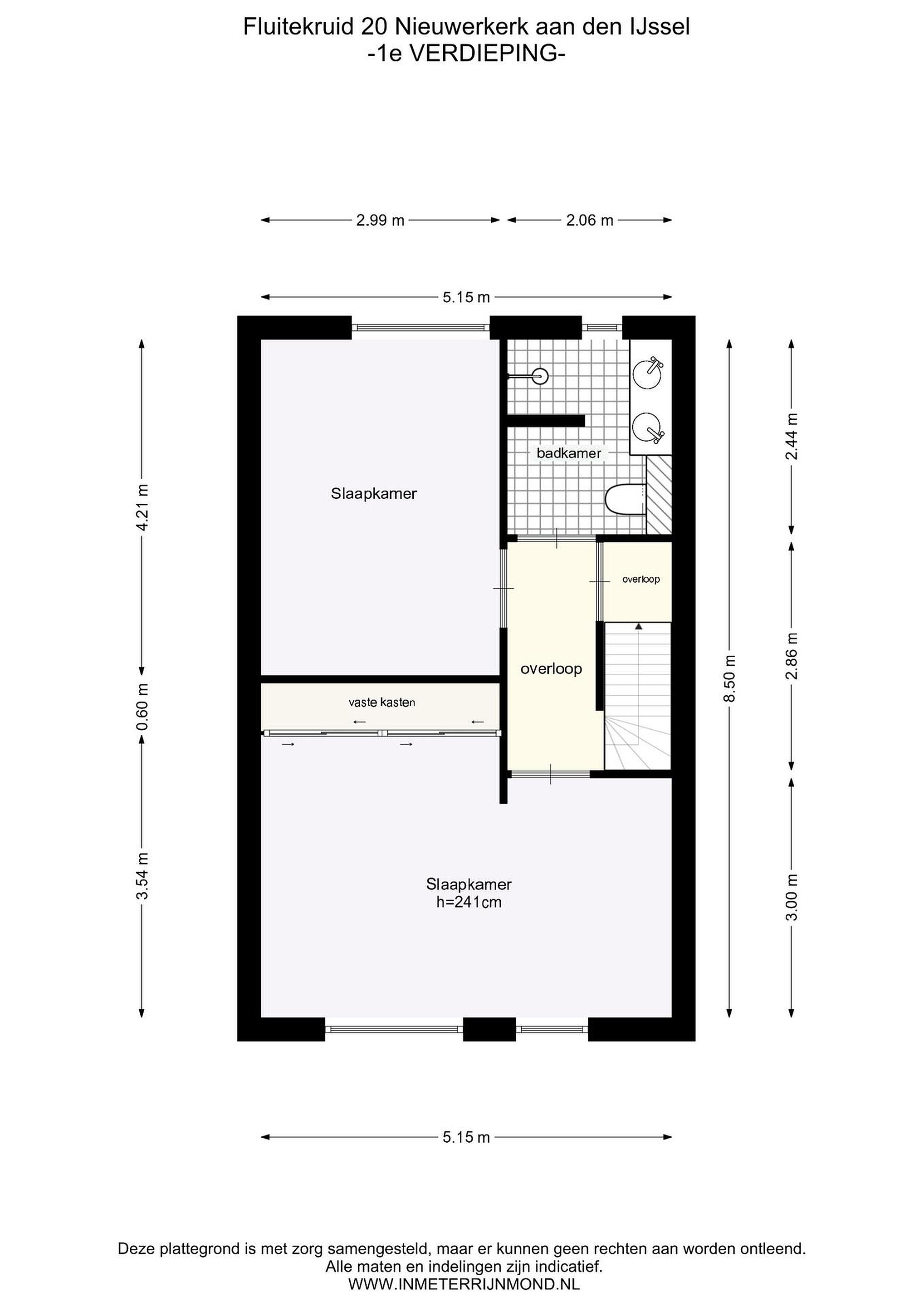
Eerste verdieping
De trap vanuit de woonkamer brengt u naar de overloop op de eerste verdieping. De overloop wordt afgesloten van de trap met een deur. Op de eerste verdieping bevinden zich twee ruime slaapkamers (oorspronkelijk drie) waarbij de grote slaapkamer beschikt over een vaste kast. Ook hier zijn de vloeren voorzien van laminaat en de wanden en plafonds volledig gestuukt. De radiatoren op deze verdieping zijn vernieuwd.

De moderne badkamer uit 2021 is uitgerust met een inloopdouche met nis, dubbele wastafel met meubel, toilet en vloerverwarming.


Tweede verdieping
De tweede verdieping biedt een royale overloop met veel bergruimte en een dakraam, een aparte wasruimte met cv-ketel (2023), mechanische ventilatie (2021) en aansluiting voor de wasmachine. Daarnaast is hier een derde slaapkamer gecreëerd, compleet met dakkapel, radiator en een vaste kast.

Tuin
De zonnige achtertuin ligt op het zuiden en hier kunt u genieten van de zon en rust. De tuin beschikt over een elektrisch zonnescherm, een achterom, waterkraan, een stenen berging met hoge nok en een eigen parkeerplaats onder de carport.

Details
- Bouwjaar 1978
- Woonoppervlakte 119 m2 en Perceel 132 m2
- Volledig gerenoveerd in 2021
- Tuin op het zuiden met berging en carport
- Kunststof kozijnen met HR++ glas
- Energielabel A
- Vijf zonnepanelen (2025)
- Nieuw dakraam en zonnescherm (2025)
- Vernieuwde stompe binnendeuren (2025)
- Kast en Traprenovatie (2025)
- Vloerisolatie en spouwmuurisolatie toegepast
- Vernieuwde meterkast en toilet
- Vloerverwarming op de begane grond
- Moderne badkamer en keuken
- Voorzijde aan fietspad, geen autoverkeer
- Nabij scholen, park, speeltuinen, winkels en OV

Lees meer

Kenmerken

Overdracht

Prijs per m2
€ 4.412
Aangeboden sinds
9 december 2025
Status
Verkocht onder voorbehoud
Aanvaarding
In overleg

Bouw

Soort woonhuis
Eengezinswoning, tussen woning
Soort bouw
Bestaande bouw
Bouwjaar
1978
Soort dak
Zadeldak
Staat van onderhouden binnen
Goed
Staat van onderhouden buiten
Goed

Oppervlakte en inhoud

Perceeloppervlakte
132 m2
Inhoud van de woning
397 m3
Oppervlakte externe bergruimte
8 m2

Indeling

Aantal kamers
4
Aantal slaapkamers
3
Aantal woonlagen
3
Voorzieningen
Tuin, schuur/berging, ventilatie, buitenzonwering, dakraam

Buitenruimte

Balkon
Nee
Schuur/berging
Ja

Maandlasten berekenen

De maandlasten voor je woning bestaan uit meer dan alleen de hypotheeklasten. Hieronder vind je een overzicht van de bijkomende kosten en lasten. Zo weet je precies wat je huis per maand gaat kosten. En met de handige vergelijkers kun je ook nog eens snel de beste deals sluiten!

  • Kaart
  • Streetview