Verkocht

Eykmanstraat 5 2912 BD Nieuwerkerk aan den IJssel

159m2
Wonen
5
Kamers
119m2
Perceel
1968
Bouwjaar
Bij de 'gewone' drive woningen krijg je al véél ruimte. En bij deze woning is er nóg méér ruimte doordat er in 2015 een dakopbouw gemaakt is. Er zijn nu 4 woonlagen! Kom kijken en ontdek de mogelijkheden.

Wat kun je verwachten?
Op de begane grond is er een tuinkamer, de oorspronkelijke garage is in gebruik als sauna en inpandige bergruimte.
Op de eerste verdieping tref je een grote en lichte woonkamer met open keuken.
De tweede etage is ingericht met 3 prima slaapkamers en een moderne badkamer.
De bovenste verdieping is een mooie verrassing en in gebruik als slaapkamer met 2e badkamer. Vanaf deze kamer heb je een mooi uitzicht richting Rotterdam!

Ideale en centrale ligging in aan rustig hofje in de fijn wijk Dorrestein dichtbij scholen, winkels, sportvelden, zwembad, kerken, openbaar vervoer en andere voorzieningen.

Zonnige achtertuin! Privé parkeerplaats in voortuin.

Bouwjaar 1969. Gebruiksoppervlakte wonen 159m2. Perceelgrootte 119m2.
Begane grond
Ruime hal met meterkast, toilet, trapkast en trap naar verdieping.

Inpandige berging.

Tuinkamer.
Deze ruimte heeft als extra een keukenblok (het is niet bekend of de apparatuur werkt).
Een gedeelte van de tuinkamer is ingericht als sauna.
Schuifpui naar terras en tuin.

Bekijk de plattegrond voor de indeling.

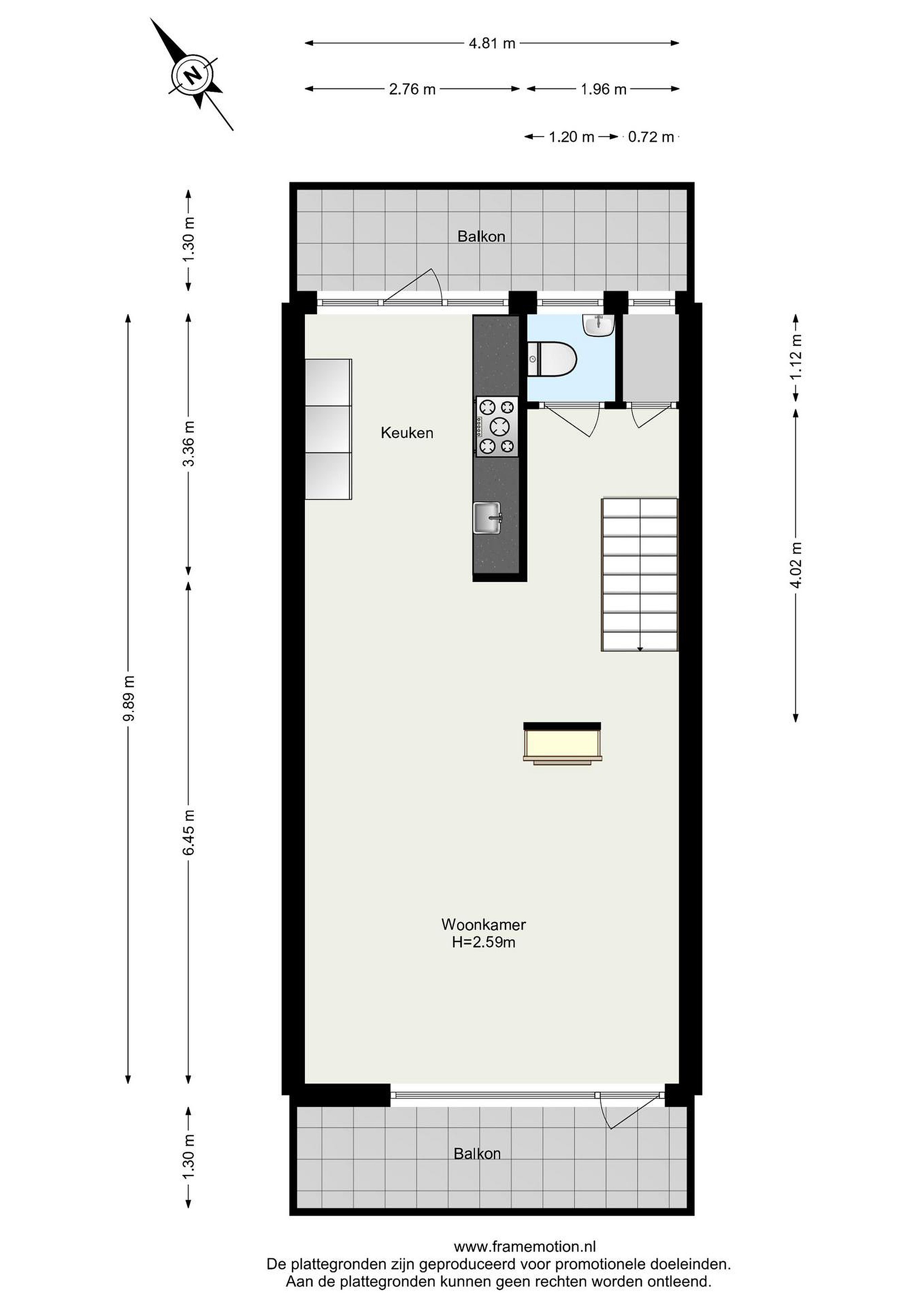
Eerste verdieping
Heerlijk lichte, ruime woonkamer met aan beide zijden een balkon.

Deze gehele etage is circa 9.90m bij 4.80m en voorzien van een tegelvloer. De woonkamer heeft een open haard in het midden van de woonkamer. Vanuit kamer deur naar balkon.

De modern uitgevoerde keuken (2002) heeft een parallel opstelling en is voorzien van diverse Miele inbouw apparatuur. Het is niet bekend of alle inbouwapparatuur werkt. Deur naar balkon.

Op deze etage is een toilet en bergkast, trap naar de 2e verdieping.

Tweede verdieping
Overloop met kast en toegang tot vertrekken.

Slaapkamer 1 (ca. 4.04m x 1.96m)
Slaapkamer 2 (ca. 5.00m x 2.50m) met inbouwkastenwand
Slaapkamer 3 (ca. 4.20m x 2.50m)

Badkamer (ca. 2.65m x 1.96m) met ligbad, inloopdouche, 2 wasbakken en toilet.

Op deze verdieping ligt een laminaatvloer.

De gehele verdieping heeft kunststof kozijnen en dubbel glas.

Tuin
De zonnige achtertuin (zuidwesten) is een heerlijke plek om te ontspannen na een drukke dag. Achterin de tuin is een grote houten berging. De afmeting van de tuin is ca. 9.73m x 4.85m (inclusief de berging).
Privé parkeerplaats in de voortuin.

Details
Bouwjaar woning 1969.
Perceelgrootte 119m2.
Woonoppervlakte circa 159m2.
Energielabel C.
De woning is grotendeels v.v. dubbel glas in kunststof kozijnen.
Verwarming en warmwater via cv combiketel uit 2010. Let op! De cv ketel is kapot.
De achtertuin is gemiddeld 9 meter lang en ligt op het zuidwesten.
In de koopovereenkomst zal de ouderdomsclausule en de asbestclausule worden opgenomen.

Lees meer

Verkoopgeschiedenis

Aangeboden sinds
11 november 2025
Verkoopdatum
23 maart 2026
Looptijd
4 maanden

Kenmerken

Overdracht

Prijs per m2
€ 2.887
Aangeboden sinds
11 november 2025
Status
Verkocht
Aanvaarding
In overleg

Bouw

Soort woonhuis
Eengezinswoning, tussen woning, drive-in woning
Soort bouw
Bestaande bouw
Bouwjaar
1968
Soort dak
Plat dak
Staat van onderhouden binnen
Goed
Staat van onderhouden buiten
Goed

Oppervlakte en inhoud

Perceeloppervlakte
119 m2
Inhoud van de woning
543 m3
Oppervlakte externe bergruimte
12 m2
Oppervlakte gebouwgebonden buitenruimten
13 m2
Oppervlakte overige inpandige ruimten
10 m2

Indeling

Aantal kamers
5
Aantal slaapkamers
4
Aantal woonlagen
4
Voorzieningen
Tuin, balkon, airconditioning, rookkanaal, schuifpui

Buitenruimte

Balkon
Ja
Schuur/berging
Nee

Maandlasten berekenen

De maandlasten voor je woning bestaan uit meer dan alleen de hypotheeklasten. Hieronder vind je een overzicht van de bijkomende kosten en lasten. Zo weet je precies wat je huis per maand gaat kosten. En met de handige vergelijkers kun je ook nog eens snel de beste deals sluiten!

  • Kaart
  • Streetview