Bospolderstraat 9A 2912 PB Nieuwerkerk aan den IJssel

121m2
Wonen
6
Kamers
222m2
Perceel
1959
Bouwjaar
Klaar jij deze klus? | Prachtig plekje! |Hoekhuis mét garage.

Een mooie kans! Om van dit ruime doorzonhuis (5 slaapkamers) uit 1959 helemaal je éigen (t)huis te maken…

De basis van dit huis is goed. De locatie is óók heel goed, midden in de gezellige wijk Dorrestein op een prachtig, ‘groen’ plekje tegenover het hertenkampje! Vanuit dit huis loop je zo naar de winkels, diverse basisscholen, het oude dorp, het NS-station en andere voorzieningen. Ideaal dus.

Wat dit huis éxtra aantrekkelijk maakt is de garage in de achtertuin. Op de oprit voor de garage kan een (kleinere) auto geparkeerd worden.

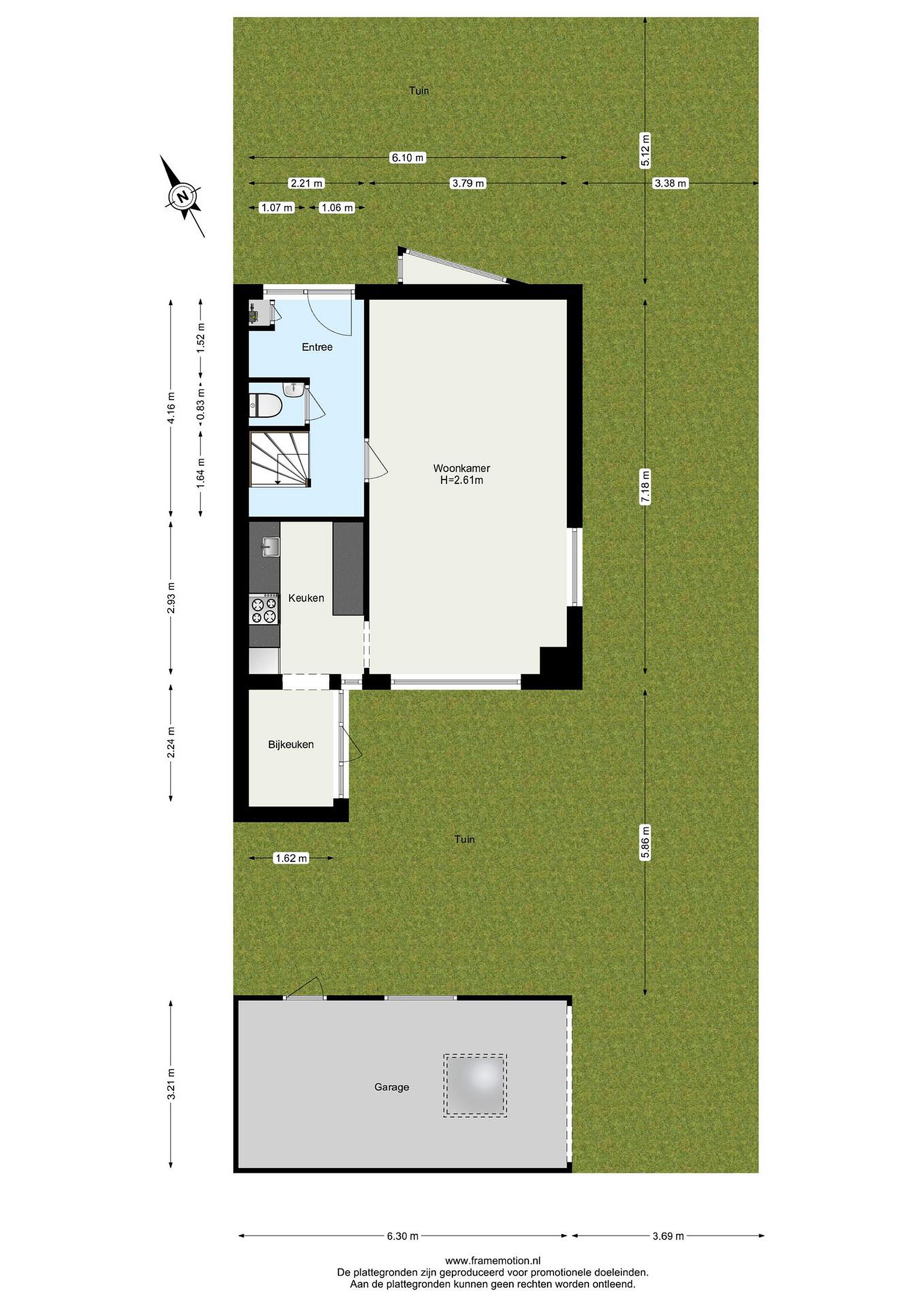
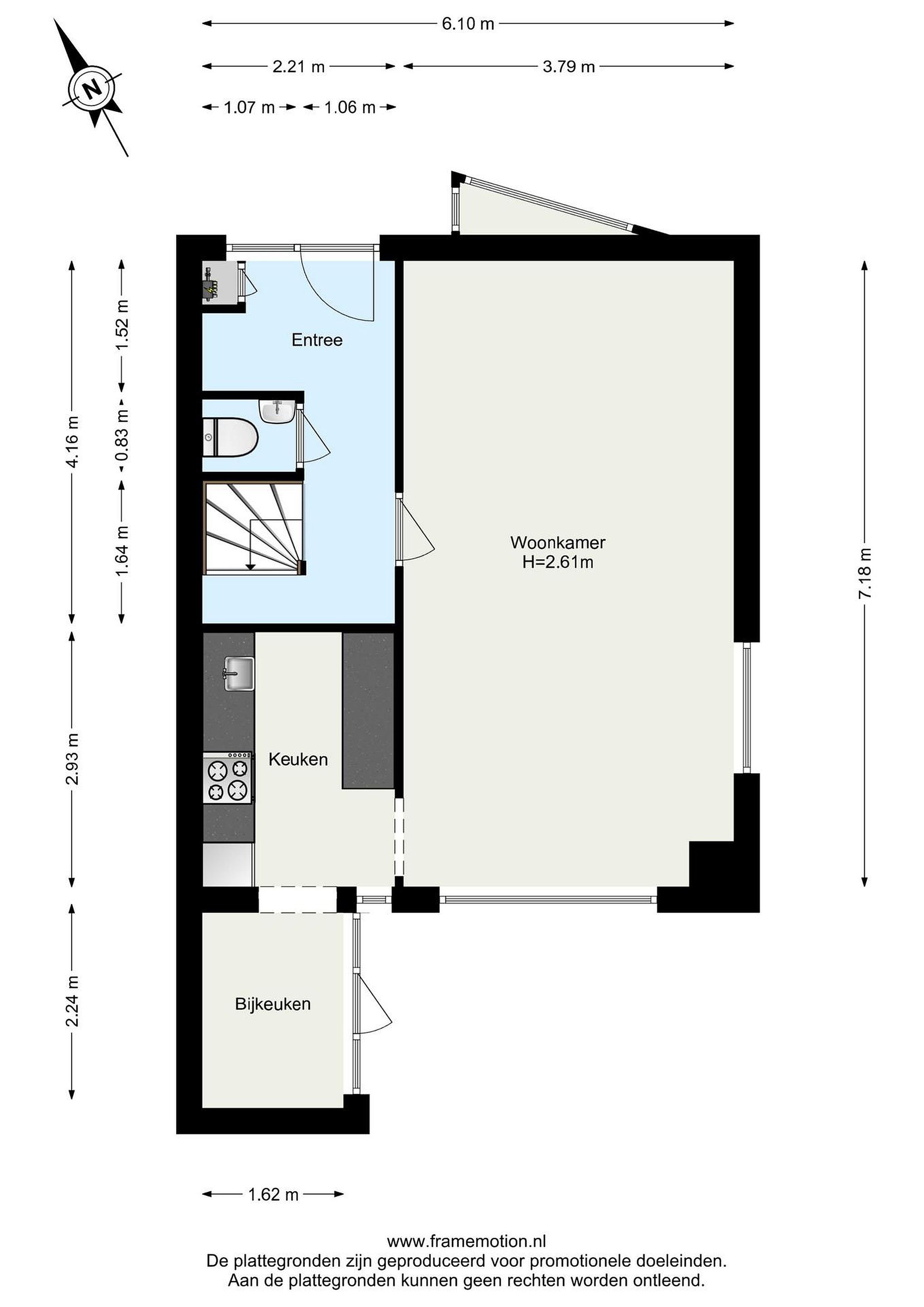
Maak kennis met de lichte woonkamer met erker, de keuken en bijkeuken aan de tuinzijde, de drie prima slaapkamers en badkamer op de 1e verdieping en de ruime 2e etage met nog 2 slaapkamers. Bekijk de plattegronden voor de indeling.

De brede en zonnige achtertuin ligt op het zuidwesten.

Het huis is grotendeels v.v. dubbel glas in (hard)houten kozijnen.
De vloer van de begane grond, de 1e én 2e verdieping zijn uitgevoerd als houten balklaag.

Bouwjaar 1959 - Perceelgrootte 222m2 - Gebruiksoppervlakte wonen 121m2.
Begane grond
Entree, gang met meterkast, toilet en trap naar de verdieping.
In de gang ligt een plavuizen vloer.

Lichte doorzon woonkamer (ca. 7.18 x 3.79m) met erker aan de voorzijde. Leuk detail is het zijraam.
Aan de voorzijde is er altijd wat te zien. Vrij uitzicht naar het hertenkampje.

Gesloten keuken (ca. 2.93 x 2.21m) met eiken houten keukeninrichting.
Inbouwapparatuur: gasfornuis, afzuigkap, oven, magnetron, koelkast en vaatwasser.

Bijkeuken (ca. 2.24 x 1.62m) met deur naar de tuin.
In de keuken en bijkeuken ligt een plavuizenvloer.

Eerste verdieping
Overloop met toegang tot de vertrekken.

Slaapkamer 1 (ca. 3.90 x 3.74m)

Slaapkamer 2 (ca. 3.21 x 3.74m)

Slaapkamer 3 (ca. 2.89 x 2.22m)

Badkamer (ca. 2.25 x 2.22m)
Met douchecabine, wastafel en toilet. Aansluiting voor de wasmachine.

Op de overloop en in de slaapkamers ligt tapijt. De plafonds zijn van zachtboard.

Tweede verdieping
De tweede verdieping is ingericht met 2 slaapkamers en 2 kleinere afsluitbare ruimtes.
Er is een goede mogelijkheid voor het plaatsen van dakkapellen.

Afsluitbare stookruimte.

Afsluitbare bergruimte (ca. 2.82 x 2.22m)

Slaapkamer 4 (ca. 2.80 x 3.78m)

Slaapkamer 5 (ca. 2.80 x 3.78m)

Tuin
In de brede en zonnige achtertuin (zuidwesten!) kun je heerlijk van de zon genieten.
Ook de ruimte naast het huis zou je goed bij de tuin kunnen betrekken.

Achterin de tuin staat de stenen garage. Ideaal als stalling, bergruimte of hobbyruimte.
De garage heeft een electrisch bedienbare segmentdeur aan de straatzijde. En een loopdeur aan de tuinzijde.

Details
Bouwjaar woonhuis 1959
Perceelgrootte 222m2
Gebruiksoppervlakte wonen 121m2
De kozijnen zijn uitgevoerd in (hard)hout en voorzien van dubbel glas
Er is op dit moment géén werkend verwarmingssysteem. De huidige hete luchtverwarmingsinstallatie is defect.
In de koopovereenkomst zal de ouderdomsclausule, de asbestclausule en de niet zelfbewoningsclausule worden opgenomen

Lees meer

Kenmerken

Overdracht

Prijs per m2
€ 3.463
Aangeboden sinds
23 september 2025
Status
Beschikbaar
Aanvaarding
In overleg

Bouw

Soort woonhuis
Eengezinswoning, hoek woning
Soort bouw
Bestaande bouw
Bouwjaar
1959
Soort dak
Zadeldak
Staat van onderhouden binnen
Goed
Staat van onderhouden buiten
Goed

Oppervlakte en inhoud

Perceeloppervlakte
222 m2
Inhoud van de woning
428 m3
Oppervlakte externe bergruimte
20 m2

Indeling

Aantal kamers
6
Aantal slaapkamers
5
Aantal woonlagen
3
Voorzieningen
Tuin, buitenzonwering, rookkanaal, dakraam

Buitenruimte

Balkon
Nee
Schuur/berging
Nee

Maandlasten berekenen

De maandlasten voor je woning bestaan uit meer dan alleen de hypotheeklasten. Hieronder vind je een overzicht van de bijkomende kosten en lasten. Zo weet je precies wat je huis per maand gaat kosten. En met de handige vergelijkers kun je ook nog eens snel de beste deals sluiten!

  • Kaart
  • Streetview