Verkocht

Bilzekruid 17 2914 BB Nieuwerkerk aan den IJssel

105m2
Wonen
4
Kamers
137m2
Perceel
1978
Bouwjaar
Op zoek naar een ruime woning met een prachtige ligging aan het water én de kans om deze helemaal naar eigen smaak te moderniseren? Dan is Bilzekruid 17 in Nieuwerkerk aan den IJssel absoluut een bezichtiging waard!

Deze eengezinswoning (bouwjaar 1978) biedt een woonoppervlakte van circa 105 m2 op een perceel van 137 m2, beschikt over een eigen parkeerplaats en een diepe, zonnige tuin direct aan het water en 3 ruime slaapkamers met de mogelijkheid voor vier slaapkamers. Hier woont u rustig, maar toch met alle voorzieningen binnen handbereik: winkels, scholen, sportverenigingen en openbaar vervoer bevinden zich op korte afstand.
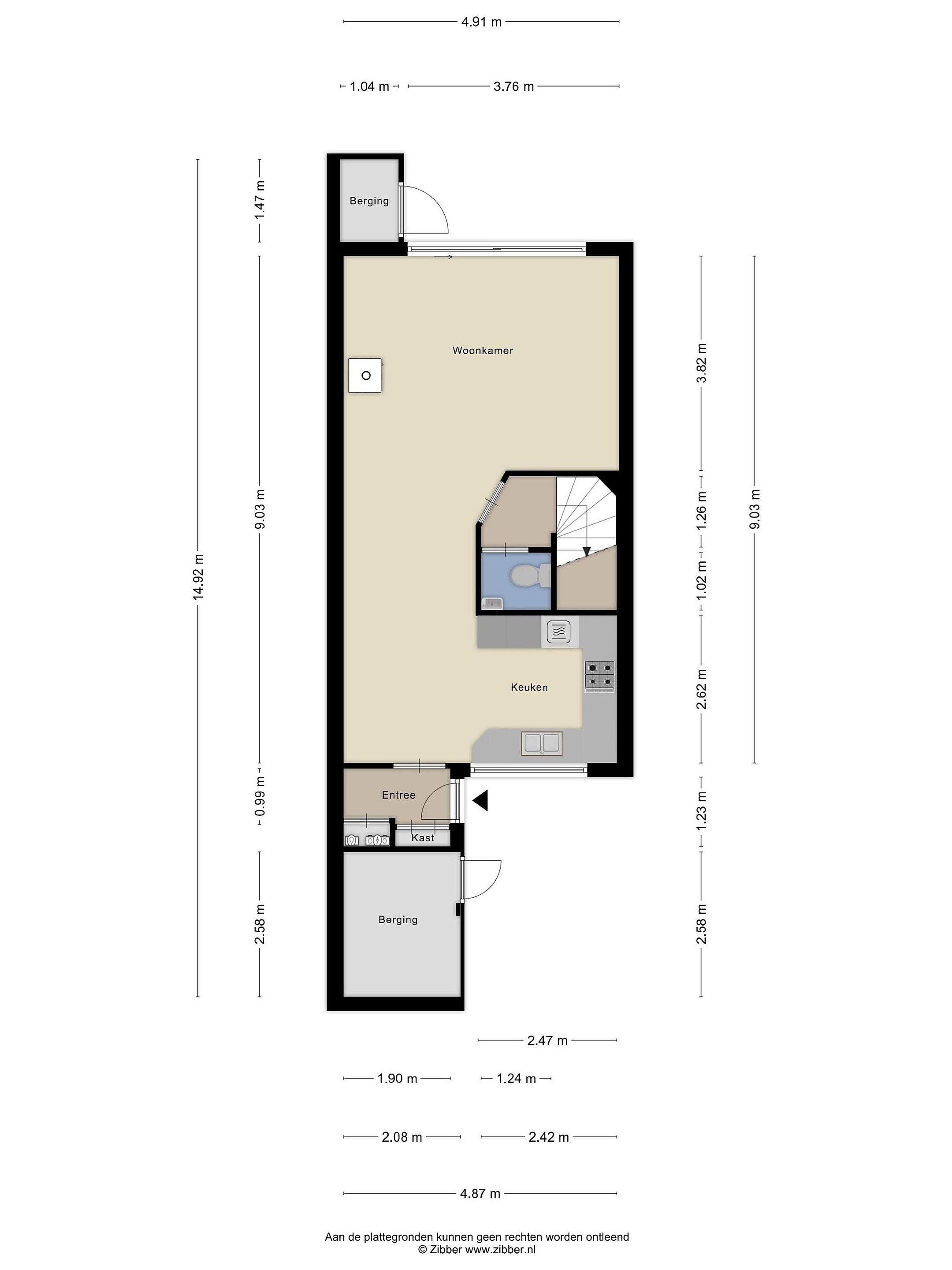
Begane grond
U betreedt de woning via de hal met meterkast. Aan de voorzijde bevindt zich de keuken, waarna u doorloopt naar de tuingerichte woonkamer. De woonkamer is voorzien van plavuizen met vloerverwarming. Via de kunststof schuifpui heeft u toegang tot de zonnige achtertuin op het zuidwesten, waar u de hele dag heerlijk kunt genieten van de zon met vrij uitzicht over het water.

In de tussenhal bevindt zich het toilet en de trapopgang naar de eerste verdieping.


Eerste verdieping
Op de eerste verdieping zijn er twee ruime slaapkamers. De slaapkamer aan de voorzijde beschikt over een praktische inbouwkast. Aan de achterzijde bevindt zich een royale slaapkamer met schotten en een Velux-dakraam.

De badkamer heeft een inloopdouche, ligbad, wastafelmeubel, tweede toilet en een dakraam dat zorgt voor veel daglicht.

Tweede verdieping
De tweede verdieping biedt verrassend veel ruimte. Op de overloop is bergruimte aanwezig en een aparte wasruimte met aansluiting voor de wasmachine en de Cv-installatie (2010). Hier is tevens de mogelijkheid om een tweede badkamer te realiseren. Daarnaast beschikt deze verdieping over een ruime derde slaapkamer.

Tuin
De diepe achtertuin van 12m op het zuidwesten is een absoluut pluspunt van deze woning. Hier geniet u van de zon en het uitzicht over het water – een heerlijke plek om te ontspannen of om gezellig buiten te dineren. Aan de voorzijde beschikt de woning bovendien over een eigen parkeerplaats en een fietsenberging van 7m2 met hoge nok waar je veel spullen kwijt kunt.

Details
- Bouwjaar 1978
- Woonoppervlakte ca. 105 m2
- Perceeloppervlakte 137 m2
- Energielabel B
- Eigen parkeerplaats
- Zonnige tuin op het zuidwesten, direct aan het water
- Drie ruime slaapkamers, mogelijkheid tot creëren van vierde slaapkamer en tweede badkamer
- Kunststof kozijnen met dubbel glas
- Voorzieningen zoals winkels, scholen, openbaar vervoer en sportverenigingen dichtbij
- Woning is toe aan modernisering, ideaal voor wie een huis geheel naar eigen smaak wil inrichten

Kortom: Bilzekruid 17 biedt een geweldige kans voor starters en gezinnen die op zoek zijn naar ruimte, een fijne ligging aan het water en de mogelijkheid om een woning helemaal naar eigen wens te maken.


Lees meer

Verkoopgeschiedenis

Aangeboden sinds
2 september 2025
Verkoopdatum
2 december 2025
Looptijd
3 maanden

Kenmerken

Overdracht

Prijs per m2
€ 4.048
Aangeboden sinds
2 september 2025
Status
Verkocht
Aanvaarding
In overleg

Bouw

Soort woonhuis
Eengezinswoning, tussen woning
Soort bouw
Bestaande bouw
Bouwjaar
1978
Soort dak
Zadeldak
Staat van onderhouden binnen
Redelijk
Staat van onderhouden buiten
Redelijk

Oppervlakte en inhoud

Perceeloppervlakte
137 m2
Inhoud van de woning
395 m3
Oppervlakte overige inpandige ruimten
7 m2

Indeling

Aantal kamers
4
Aantal slaapkamers
3
Aantal woonlagen
3
Voorzieningen
Tuin, schuur/berging, rookkanaal, schuifpui, dakraam

Buitenruimte

Balkon
Nee
Schuur/berging
Ja

Maandlasten berekenen

De maandlasten voor je woning bestaan uit meer dan alleen de hypotheeklasten. Hieronder vind je een overzicht van de bijkomende kosten en lasten. Zo weet je precies wat je huis per maand gaat kosten. En met de handige vergelijkers kun je ook nog eens snel de beste deals sluiten!

  • Kaart
  • Streetview