Verkocht

Dokter van Gelderstraat 34 3244 CD Nieuwe-Tonge

137m2
Wonen
5
Kamers
138m2
Perceel
2026
Bouwjaar
Ben jij op zoek naar een gloednieuwe woning A+++ waar je zó in kunt trekken, zonder verbouwen en mét alle luxe al geregeld? Dan is dit jouw kans.
Deze moderne nieuwbouwwoning (type B met kopgevel) is allesbehalve standaard. De woning is voorzien van een uitbouw van 2,40 meter, hoogwaardige afwerking en diverse luxe upgrades. Hierdoor beschik je over extra leefruimte, veel lichtinval en een instapklaar geheel dat volledig aansluit op de woonwensen van nu.

Wonen met ruimte, licht en comfort
De woning heeft een breedte van circa 5,40 meter en beschikt over een bijzonder royale begane grond dankzij de uitbouw. De leefruimte is hierdoor aanzienlijk vergroot en biedt volop mogelijkheden voor een ruime zithoek en een grote eettafel.
De kopgevel zorgt daarnaast voor extra lichtinval en maakt ook de bovenste verdieping optimaal bruikbaar.

Gelegen in de nieuwbouwwijk Hof van Lucard in Nieuwe-Tonge: een rustige en moderne woonomgeving met veel groen en goede bereikbaarheid. Aan de voorkant uitzicht op de polder, en achter veel privacy.

* Op dit moment is het nog niet mogelijk om de woning te bezichtigen, bij interesse bel met ons kantoor zodat wij de informatie kunnen toelichten.
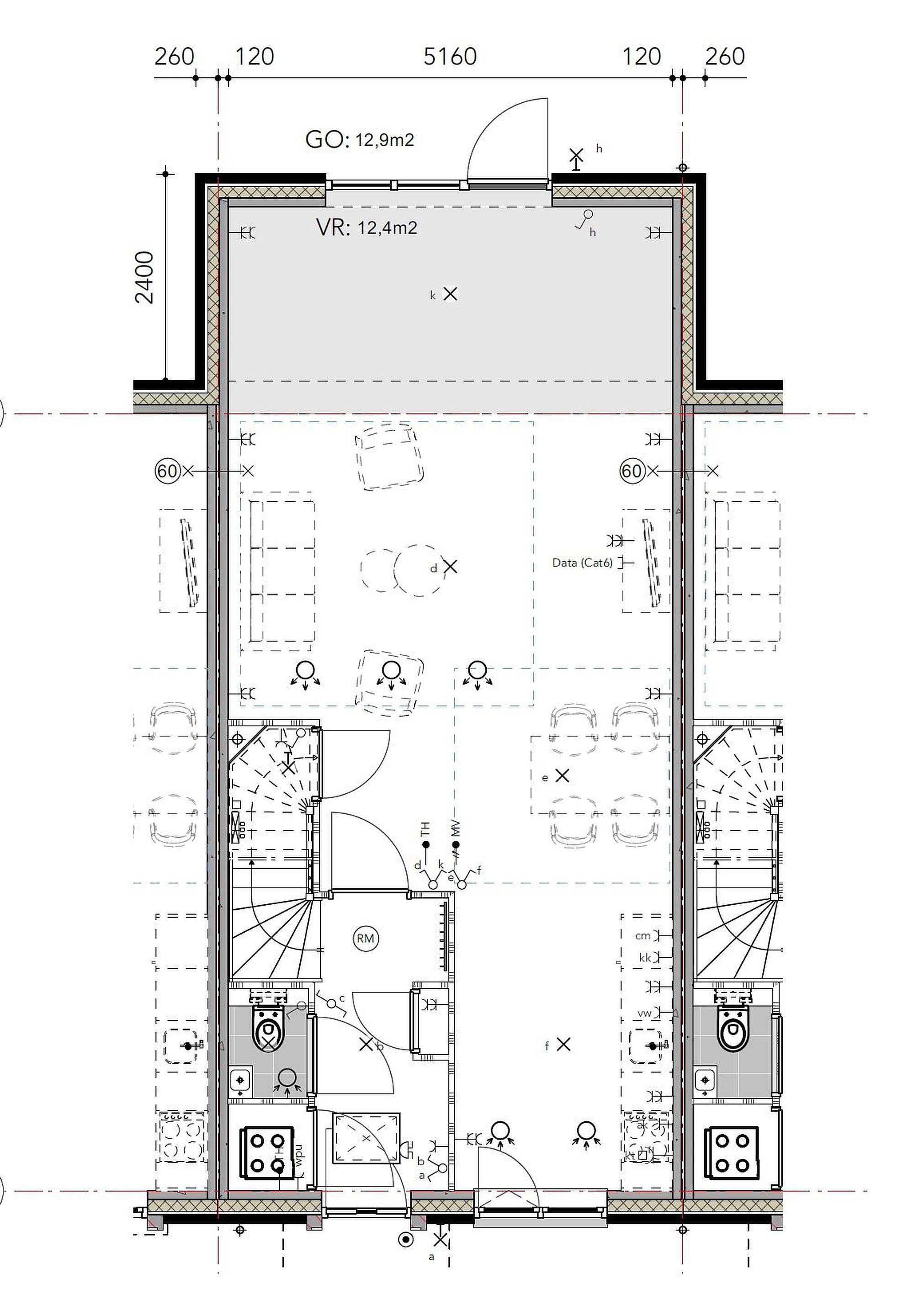
Begane grond

Via de entree kom je in de hal (ca. 2,53 x 1,56 m) met meterkast, toilet (ca. 0,93 x 1,56 m) en trapopgang.
De woonkamer met open keuken vormt één grote leefruimte van circa 11,43 x 5,40 m (inclusief uitbouw van 2,40 m).
- Keuken (voorzijde): ca. 3,55 x 5,40 m
- Woonkamer (achterzijde): ca. 7,88 x 5,40 m
Aan de achterzijde zorgen dubbele openslaande deuren met zijlichten voor een prachtige lichtinval en een directe verbinding met de tuin.

De keuken is uitgevoerd in een moderne en stijlvolle opstelling en vormt een echte eyecatcher aan de voorzijde van de woning.
Er is gekozen voor een strakke, greeploze keuken in een lichte kleurstelling, wat zorgt voor een rustige en luxe uitstraling. Het geheel wordt versterkt door een hoogwaardig werkblad en een praktische indeling met volop werk- en bergruimte. Op de muren komen 3 luxe zwart dimbare wandlampen.
De keuken is voorzien van diverse inbouwapparatuur, waaronder:
- Inductiekookplaat met geïntegreerde afzuiging
- Combi-oven
- Volledig geïntegreerde koelkast
- Vries gedeelte
- Vaatwasser

Eerste verdieping
Overloop met toegang tot drie slaapkamers en de badkamer:
- Slaapkamer 1 (achterzijde): ca. 5,16 x 2,92 m
- Slaapkamer 2 (voorzijde): ca. 4,10 x 2,17 m
- Slaapkamer 3 (voorzijde): ca. 2,92 x 2,14 m
- Badkamer: ca. 2,20 x 2,17 m

De badkamer is volledig aangepast en luxe uitgevoerd, met oog voor detail en comfort.
De ruimte is strak afgewerkt met modern tegelwerk en beschikt over:
- Royale inloopdouche met glazen wand
- Regendouche
- Stijlvol wastafelmeubel
- Luxe kranen
- Organische spiegel
- Elektrische designradiator
De combinatie van materialen en kleuren zorgt voor een warme en luxe uitstraling.

De woning is volledig voorzien van een hoogwaardige vloerafwerking, waardoor je direct kunt wonen zonder extra investeringen of werkzaamheden.
Er is gekozen voor een moderne vloer die perfect aansluit bij de rest van de woning en zorgt voor een rustige, luxe uitstraling in alle ruimtes. De begane grond vloer wordt afgewerkt door een luxe, hoogwaardige PVC Visgraat vloer inclusief plinten, op de bovenverdiepingen komen dezelfde vloeren, die worden doorgelegd in alle ruimtes alleen niet in visgraat, ook inclusief plinten.
Dit is een belangrijke meerwaarde, aangezien vloeren vaak een grote kostenpost en klus zijn bij nieuwbouwwoningen.

Tweede verdieping
Ruime en veelzijdige verdieping met extra mogelijkheden:
- Open zolderruimte: ca. 5,37 x 5,40 m
- Extra kamer: ca. 3,38 x 3,08 m
- Technische ruimte / wasruimte: ca. 2,89 x 2,20 m
Dankzij de kopgevel is deze verdieping opvallend licht en uitstekend bruikbaar als extra slaapkamer, werkruimte of hobbyruimte.

Tuin
De woning beschikt over een ruime achtertuin met directe toegang via de openslaande deuren. Daarnaast is er een vorstvrije buitenkraan aanwezig, wat extra praktisch is. Achterin de tuin staat een vrijstaande berging.

Details
Meerwerk & afwerking – tot in detail verzorgd
De woning is door de huidige eigenaren uitgebreid en luxe afgewerkt, waardoor je profiteert van een hoog afwerkingsniveau zonder zelf nog keuzes te hoeven maken.
- Uitbouw van 2,40 meter aan de achterzijde
- Dubbele openslaande deuren met zijlichten
- Luxe keuken met inbouwapparatuur
- Volledig aangepaste badkamer en sanitair
- Hoogwaardig tegelwerk
- Volledige vloerafwerking in de gehele woning
- Volledige wandafwerking voorzien van renovlies en gesausd in RAL9010 door de hele woning
- Stijlvolle binnendeuren, vanuit de hal naar de woonkamer een zwart stalen deur
- Vergrote boiler voor extra comfort
- Vorstvrije buitenkraan
- Volledig gasloos met warmtepomp en vloerverwarming
Alles is al gedaan — je hoeft alleen nog maar te verhuizen.

Lees meer

Verkoopgeschiedenis

Aangeboden sinds
24 maart 2026
Verkoopdatum
27 april 2026
Looptijd
één maand

Kenmerken

Overdracht

Prijs per m2
€ 3.467
Aangeboden sinds
24 maart 2026
Status
Verkocht
Aanvaarding
In overleg

Bouw

Soort woonhuis
Eengezinswoning, tussen woning
Soort bouw
Bestaande bouw
Bouwjaar
2026
Soort dak
Samengesteld dak
Staat van onderhouden binnen
Goed
Staat van onderhouden buiten
Goed

Oppervlakte en inhoud

Perceeloppervlakte
138 m2
Inhoud van de woning
450 m3
Oppervlakte externe bergruimte
6 m2

Indeling

Aantal kamers
5
Aantal slaapkamers
4
Aantal woonlagen
3
Voorzieningen
Tuin, schuur/berging, ventilatie, glasvezel

Buitenruimte

Balkon
Nee
Schuur/berging
Ja

Maandlasten berekenen

De maandlasten voor je woning bestaan uit meer dan alleen de hypotheeklasten. Hieronder vind je een overzicht van de bijkomende kosten en lasten. Zo weet je precies wat je huis per maand gaat kosten. En met de handige vergelijkers kun je ook nog eens snel de beste deals sluiten!

  • Kaart
  • Streetview