Verkocht OV

Zomerpark 22 2151 HA Nieuw-Vennep

165m2
Wonen
5
Kamers
120m2
Perceel
2000
Bouwjaar
Bent u op zoek naar een bijzondere woning? Deze splitlevel woning heeft 5 verspringende woonlagen met onder meer een woonkeuken, woonkamer, vide-kamer en drie slaapkamers. Op de begane grond is een grote berging en een grote kelderruimte. De berging kan met een ander kozijn ook als garage dienst doen. Parkeerruimte voor twee auto's op eigen terrein. De kozijnen zijn grotendeels vervangen door kunststof. De woning heeft een energielabel A.

Koopsom vanaf € 600.000,-- / Vraagprijs € 625.000,-- k.k.

De woning is gelegen in een rustige en kindvriendelijke buurt in Nieuw-Vennep, met diverse voorzieningen zoals scholen, winkelcentra, sportfaciliteiten en openbaar vervoer op korte afstand. De centrale ligging zorgt voor een goede bereikbaarheid richting zowel Amsterdam/Schiphol en Leiden/Den Haag.
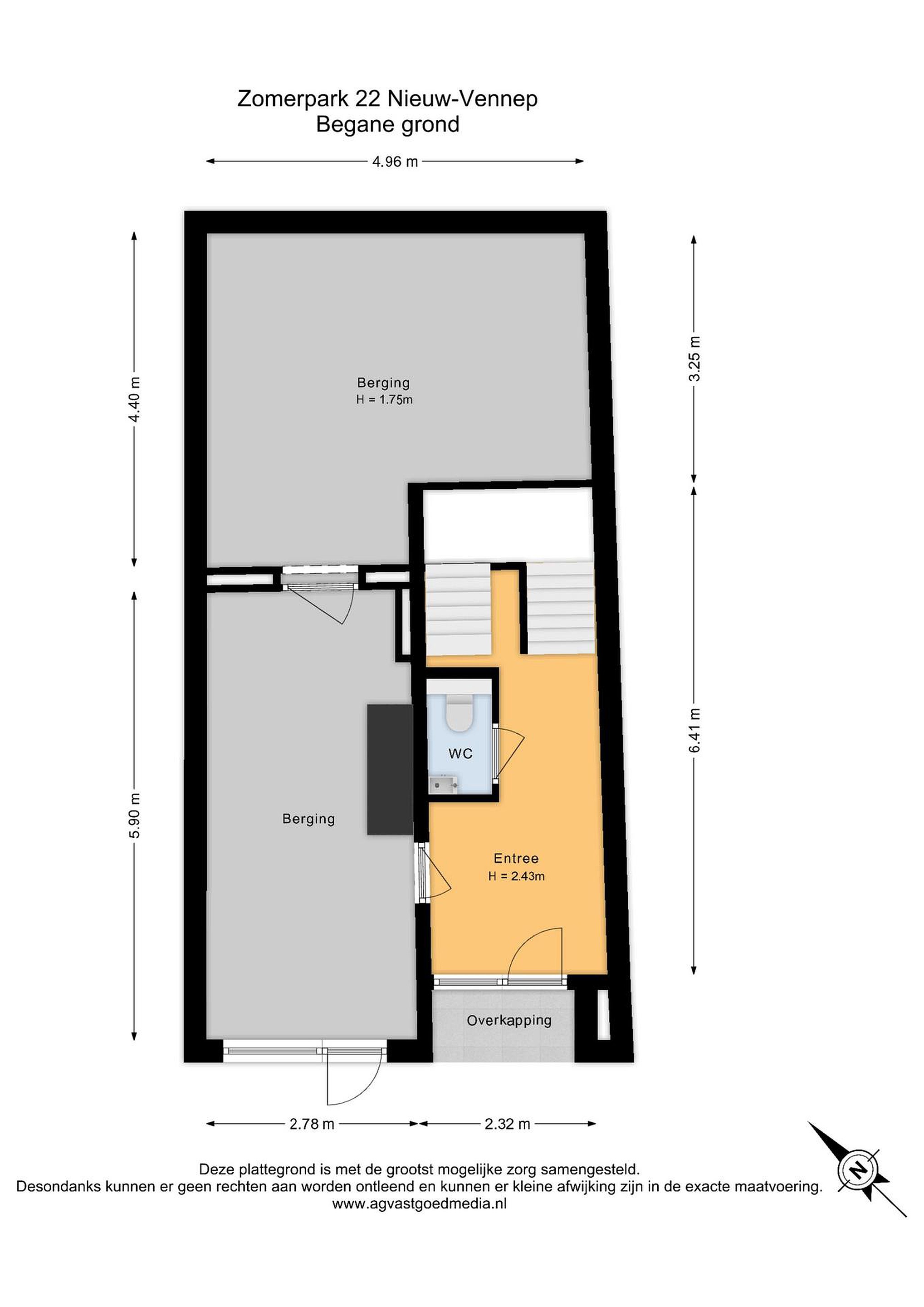
Begane grond
Voor de woning is er op eigen terrein ruimte voor om twee auto's parkeren. Via de entree komt u binnen in de ruime hal. De hal geeft toegang tot de inpandige berging met achterliggende kelderruimte, meterkast, toiletruimte en trapopgang naar het volgende level, de woonkeuken.

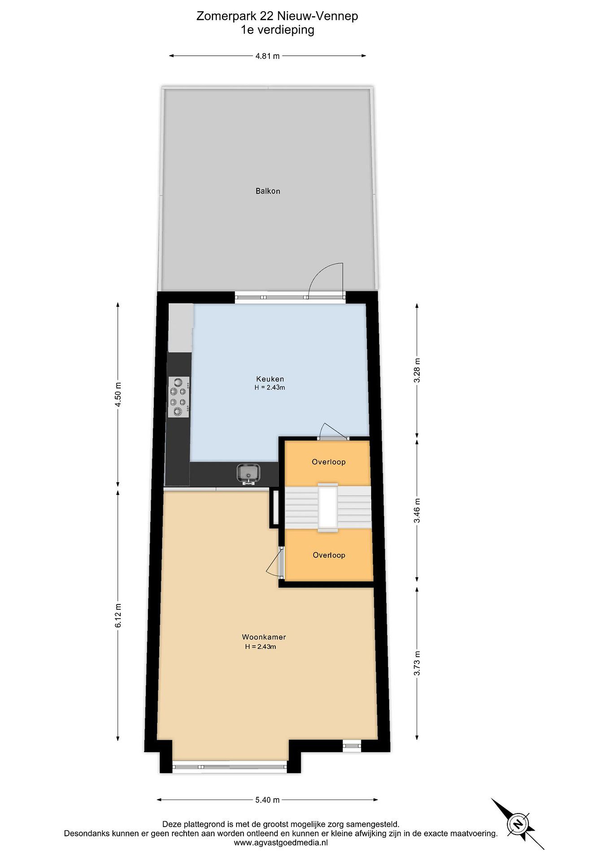
Eerste verdieping
De eerste verdieping is opgesplitst in twee levels, de keuken en de woonkamer. Hier is genoeg ruimte voor een grote eettafel dus een echte woonkeuken. De keuken is uitgerust met onder meer een 5 pits gastoestel, vaatwasser, combi oven/magnetron, 10 liter boiler en een koel-/vriescombinatie. Er is toegang tot het rustig gelegen terras aan de achterzijde. Door de split level indeling is er aan de raamkant een vide naar de bovenliggend kamer. Aan de andere zijde is er een doorkijkje naar de woonkamer. De L-vormige woonkamer is ruim en licht en geeft op zijn beurt ook weer een doorkijk naar de hoger gelegen werkkamer boven de keuken. De keuken heeft een plavuizen vloer, de woonkamer een houten vloer in visgraat patroon gelegd.

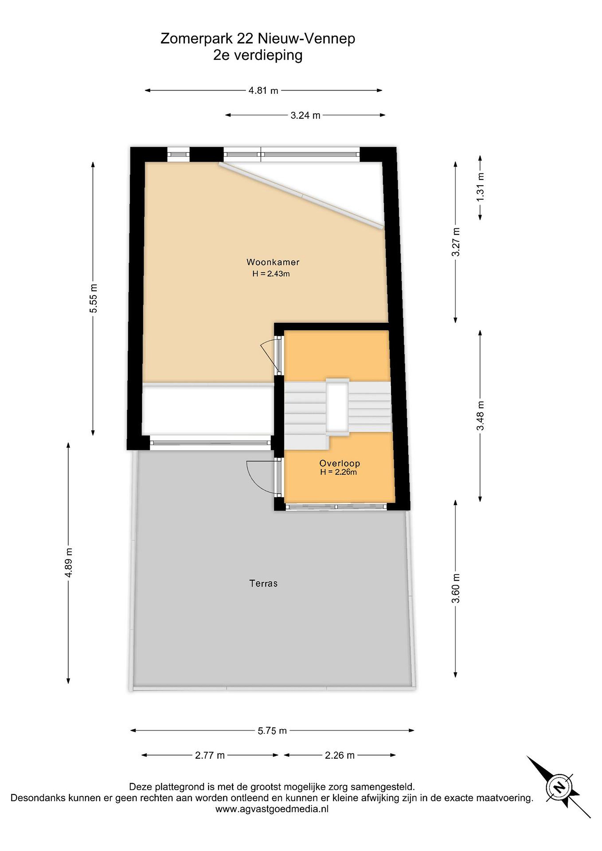
Tweede verdieping
De videkamer schuin boven de woonkamer is een praktische ruimte. Inzetbaar als televisiekamer, werkkamer of eventueel te verbouwen naar slaapkamer. De kamer heeft aan de achterzijde connectie met de ondergelegen keuken. Vanuit deze kamer heeft u mooi uitzicht over park achter de woning. Ook deze kamer heeft een houten vloer in visgraat motief. De op de foto's aanwezige piano is overigens ter overname.
Via het trappenhuis komt u op de volgende laag, het dakterras aan de voorzijde van de woning. Deze ligt op het westen en dus heerlijk op de zon.

Details
- Woonoppervlakte circa 165,56 m2.
- Perceeloppervlakte 120 m2.
- Zonneboiler met 1 paneel.
- Kozijnen grotendeels vervangen door kunststof.
- Voorzijde woning hout vervangen door keraliet (geïsoleerd)
- Terras achterzijde bij keuken.
- Groot dakterras voorzijde.
- Grote berging, om te zetten naar garage.
- Ruime kelder
- Twee parkeerplaatsen op eigen terrein.
- Rustige ligging.
- Veel voorziening nabij scholen, winkelcentra en sportfaciliteiten.
- Oplevering in overleg.

- Koopsom vanaf € 600.000,-- / Vraagprijs € 625.000,-- k.k.

Lees meer

Kenmerken

Overdracht

Prijs per m2
€ 3.624
Aangeboden sinds
31 oktober 2025
Status
Verkocht onder voorbehoud
Aanvaarding
In overleg

Bouw

Soort woonhuis
Eengezinswoning, tussen woning, splitlevel woning
Soort bouw
Bestaande bouw
Bouwjaar
2000
Staat van onderhouden binnen
Goed
Staat van onderhouden buiten
Goed

Oppervlakte en inhoud

Perceeloppervlakte
120 m2
Inhoud van de woning
627 m3
Oppervlakte gebouwgebonden buitenruimten
25 m2
Oppervlakte overige inpandige ruimten
38 m2

Indeling

Aantal kamers
5
Aantal slaapkamers
4
Aantal woonlagen
5
Voorzieningen
Ventilatie, glasvezel

Buitenruimte

Balkon
Nee
Schuur/berging
Nee

Maandlasten berekenen

De maandlasten voor je woning bestaan uit meer dan alleen de hypotheeklasten. Hieronder vind je een overzicht van de bijkomende kosten en lasten. Zo weet je precies wat je huis per maand gaat kosten. En met de handige vergelijkers kun je ook nog eens snel de beste deals sluiten!

  • Kaart
  • Streetview