Fresiahof 8 1688 WG Nibbixwoud

120m2
Wonen
5
Kamers
166m2
Perceel
1972
Bouwjaar
Ruime gezinswoning met 4 (mogelijk 5) slaapkamers aan gezellig hofje in Nibbixwoud

Ben je op zoek naar een ruime eengezinswoning met volop mogelijkheden om er jouw droomhuis van te maken? Dan is deze woning, gelegen aan een gezellig en kindvriendelijk hofje in Nibbixwoud, zeker een bezichtiging waard!
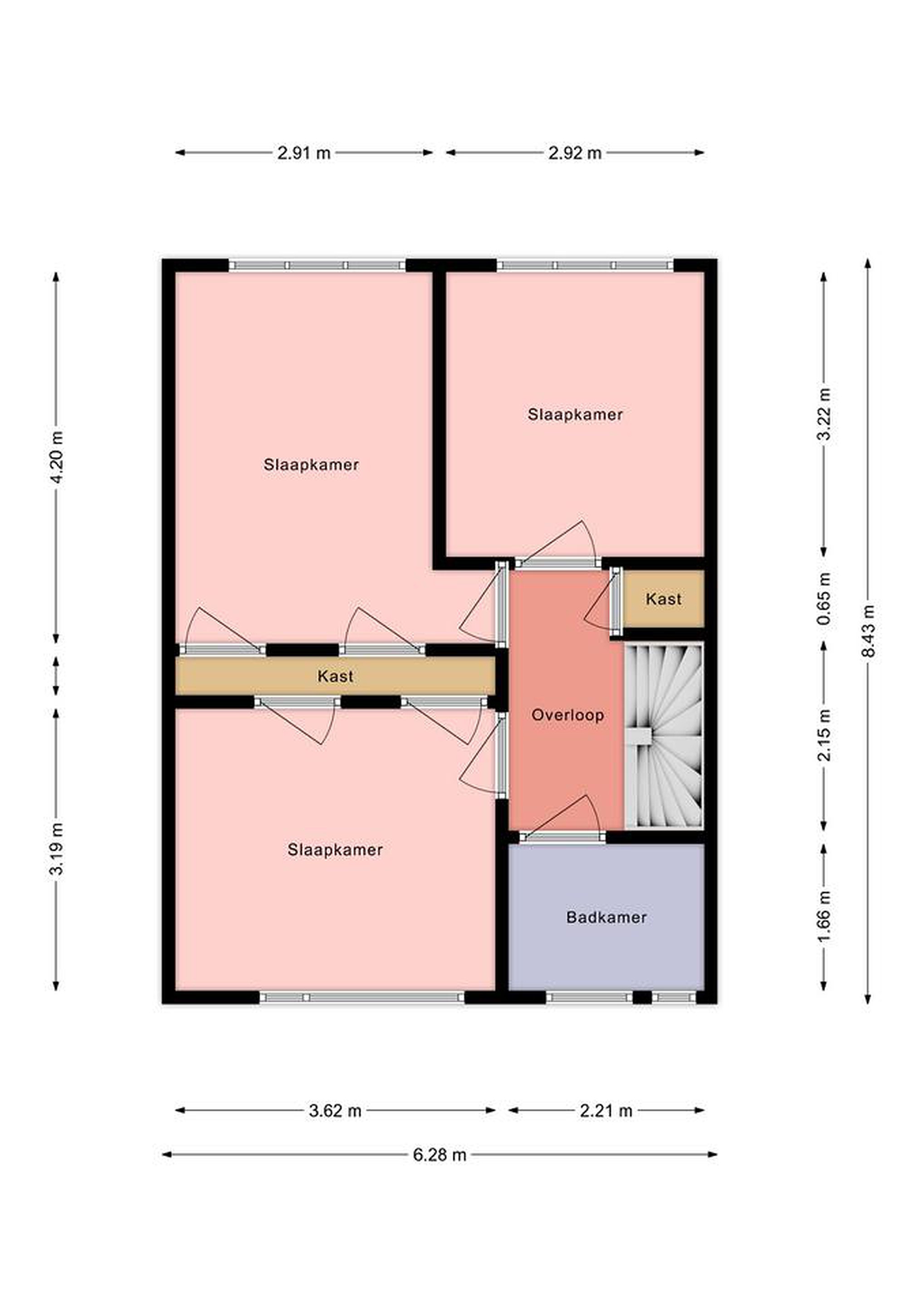
De woning beschikt over maar liefst 4 volwaardige slaapkamers, met de mogelijkheid om een 5e slaapkamer te realiseren. Ideaal voor grotere gezinnen, thuiswerkers of hobbyisten die extra ruimte wensen.
De lichte woonkamer en praktische indeling bieden een uitstekende basis om geheel naar eigen smaak te moderniseren. De woning heeft wat liefde en aandacht nodig, maar biedt enorm veel potentie voor wie kansen ziet en graag de handen uit de mouwen steekt.
Buiten geniet je van een ruime voor- en achtertuin. De achtertuin biedt volop ruimte voor spelende kinderen, tuinliefhebbers of het creëren van een heerlijke loungeplek. Dankzij de ligging aan een hofje woon je hier rustig en veilig, met voldoende parkeergelegenheid in de directe omgeving.

Ben jij klaar om van deze woning jouw thuis te maken? Maak snel een afspraak voor een bezichtiging en ontdek de mogelijkheden!
Tuin
De tuin is geheel bestraat en rondom v.v. geïmpregneerde schuttingdelen. De poort komt uit in de steeg.

Details

- Ruime eengezinswoning
- 4 slaapkamers (mogelijkheid tot 5)
- Grote voor- en achtertuin
- Gelegen aan een gezellig, rustig hofje
- Veel potentie voor eigen invulling

Lees meer

Kenmerken

Overdracht

Prijs per m2
€ 3.079
Aangeboden sinds
23 februari 2026
Status
Beschikbaar
Aanvaarding
In overleg

Bouw

Soort woonhuis
Eengezinswoning, tussen woning
Soort bouw
Bestaande bouw
Bouwjaar
1972
Soort dak
Zadeldak
Staat van onderhouden binnen
Goed
Staat van onderhouden buiten
Goed

Oppervlakte en inhoud

Perceeloppervlakte
166 m2
Inhoud van de woning
355 m3
Oppervlakte overige inpandige ruimten
5 m2

Indeling

Aantal kamers
5
Aantal slaapkamers
4
Aantal woonlagen
3
Voorzieningen
Tuin, dakraam

Buitenruimte

Balkon
Nee
Schuur/berging
Nee

Maandlasten berekenen

De maandlasten voor je woning bestaan uit meer dan alleen de hypotheeklasten. Hieronder vind je een overzicht van de bijkomende kosten en lasten. Zo weet je precies wat je huis per maand gaat kosten. En met de handige vergelijkers kun je ook nog eens snel de beste deals sluiten!

  • Kaart
  • Streetview