Pastoor Bernegaustraat 2 6151 AZ Munstergeleen

119m2
Wonen
6
Kamers
312m2
Perceel
1958
Bouwjaar
Fijne halfvrijstaande gezinswoning met 4 slaapkamers, oprit en verrassend ruime tuin

Aan de Pastoor Bernegaustraat 2 in Munstergeleen ligt deze ruime twee-onder-een-kapwoning met oprit, zijtuin en opvallend veel leefruimte. De woning beschikt over een fijne en overzichtelijke indeling met op de begane grond een lichte woonkamer, open keuken met aansluitend de bijkeuken en een tuinkamer. Op de eerste verdieping bevinden zich maar liefst vier slaapkamers en de badkamer. Daarnaast is er nog een ruime zolder aanwezig die ideaal is als bergruimte.

De woning is goed onderhouden en voorzien van energielabel B, spouwmuurisolatie en 12 zonnepanelen. Dit zorgt voor een aangenaam wooncomfort en lagere energielasten. Daarnaast zijn er grotendeels rolluiken aanwezig.

Wat deze woning extra bijzonder maakt, is de royale zijtuin. Deze biedt volop mogelijkheden om de buitenruimte naar eigen wens in te delen. Door het verplaatsen van de schutting kan de zijtuin eenvoudig bij de achtertuin worden betrokken, waardoor een aanzienlijk groter geheel ontstaat. Hierdoor is er ruimte voor bijvoorbeeld het realiseren van een garage, een ruime overkapping of een groene, meer beschutte tuin.

De woning is gelegen in een rustige en aangename woonstraat in Munstergeleen. In de directe omgeving bevinden zich winkels, scholen en sportvoorzieningen. Ook zijn Sittard en Geleen snel bereikbaar en zijn de uitvalswegen richting de autosnelweg goed aangesloten. Hierdoor woon je hier rustig, maar met alle voorzieningen binnen handbereik.
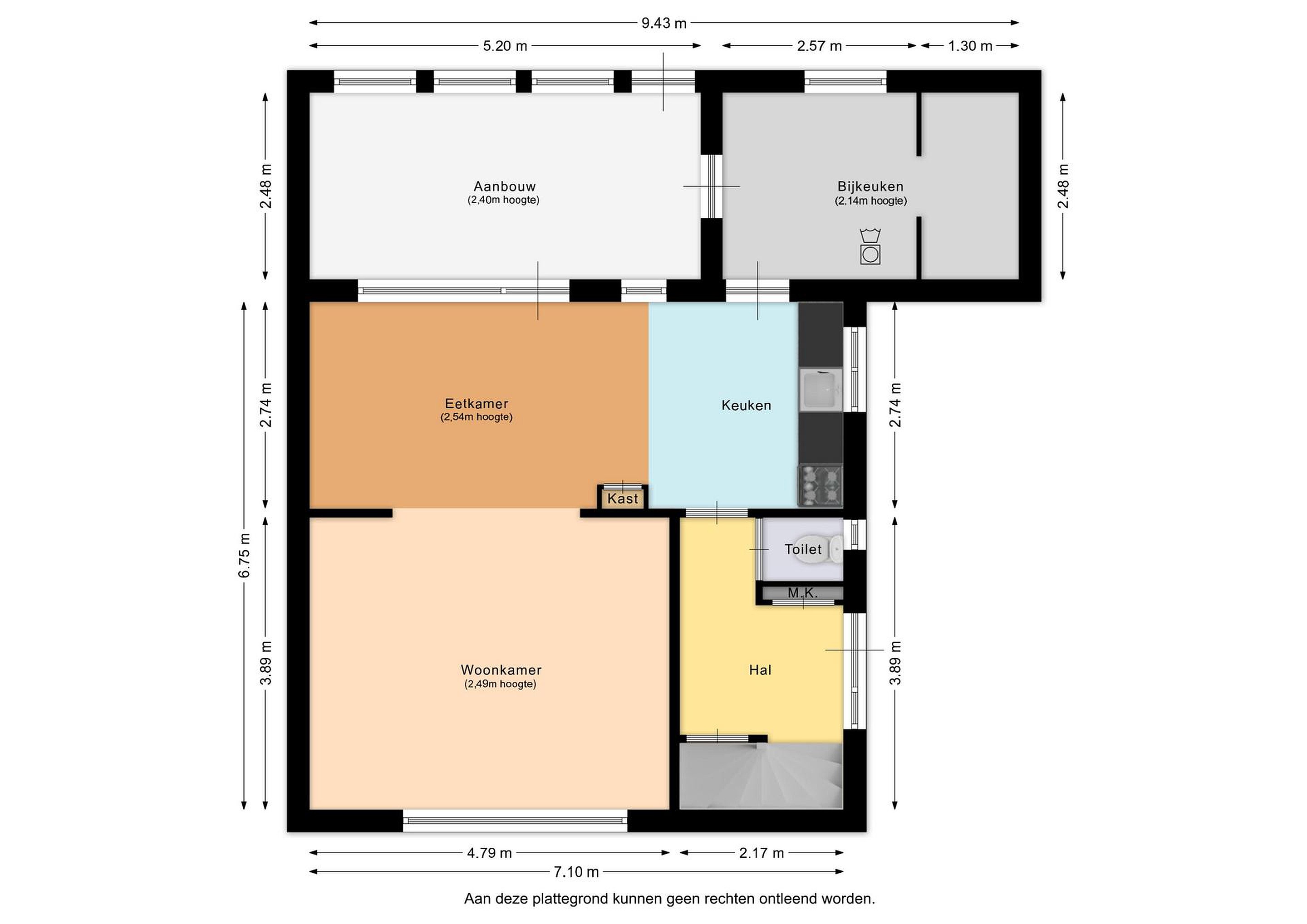
Begane grond

Bij binnenkomst kom je in de ontvangsthal, afgewerkt met een laminaatvloer. Hier bevinden zich de garderobe, meterkast, het toilet en de toegang tot de provisiekelder, ideaal voor extra bergruimte.

De woonkamer is voorzien van een warme parketvloer en geniet van veel daglicht dankzij de grote raampartijen. Aan de voorzijde is een rolluik aanwezig, wat zorgt voor extra comfort. De ruimte biedt voldoende plaats voor een zit- en eethoek en staat in open verbinding met de keuken.

De open keuken is eveneens afgewerkt met een parketvloer en kijkt uit over de tuin aan de zijkant van de woning. De keukenopstelling biedt voldoende werk- en bergruimte. Aansluitend bevindt zich de bijkeuken met de witgoedaansluitingen en extra praktische ruimte.

Vanuit zowel de woonkamer als de bijkeuken is de tuinkamer bereikbaar. Deze ruimte vormt een prettige overgang tussen binnen en buiten, waar je beschut kunt zitten met uitzicht op de tuin.

Eerste verdieping
De overloop, afgewerkt met een laminaatvloer, geeft toegang tot vier slaapkamers en de badkamer.
De slaapkamers zijn van goed formaat en voorzien van een laminaatvloer en inbouwspots. Dankzij de raampartijen komt er veel daglicht binnen en zijn de kamers prettig in gebruik. Daarnaast zijn de slaapkamers voorzien van rolluiken, waarbij de grootste slaapkamer aan de achterzijde beschikt over een elektrisch rolluik. De vierde kamer is ook geschikt als werk- of hobbyruimte, afhankelijk van de woonwensen. De badkamer is volledig betegeld en ingericht met een douchecabine met glazen wand en een wastafel. Het aanwezige raam zorgt voor natuurlijke ventilatie en daglicht.

Tweede verdieping
Via een vlizotrap is de ruime zolder bereikbaar. Deze verdieping is volledig geïsoleerd en biedt volop bergruimte. Hier bevinden zich tevens de cv-installatie en de omvormer van de zonnepanelen.

Tuin
De tuin biedt veel meer mogelijkheden dan je op het eerste gezicht zou verwachten. In de huidige situatie is de buitenruimte onderhoudsvriendelijk aangelegd met bestrating en borders met beplanting, waardoor je hier direct gebruik van kunt maken. Wat deze woning echter echt bijzonder maakt, is de royale zijtuin. Deze ruimte biedt volop potentie om de tuin aanzienlijk te vergroten. Door het verplaatsen van de schutting kan de zijtuin eenvoudig bij de achtertuin worden betrokken, waardoor een breed en diep perceel ontstaat. Hierdoor is er ruimte voor het realiseren van een garage, een ruime overkapping of juist een groene tuin met meerdere zitplekken. De aanwezige tuinkamer vormt een fijne overgang tussen binnen en buiten, waardoor je al vroeg in het seizoen beschut kunt genieten van de tuin. Achter in de tuin bevindt zich daarnaast een tuinhuis met verlichting, ideaal voor extra bergruimte.

Details
Twee-onder-een-kapwoning met eigen oprit
Vier slaapkamers op de eerste verdieping
Energielabel B
12 zonnepanelen
Spouwmuurisolatie
Grotendeels voorzien van rolluiken (deels elektrisch)
Vier slaapkamers
Ruime zolder
Mogelijkheid tot realiseren van garage, grote overkapping of een grotere tuinindeling

De informatie is met de nodige zorgvuldigheid door ons samengesteld. Er kunnen geen rechten worden ontleend aan deze advertentie en brochure en aanvaarden wij geen enkele aansprakelijkheid voor enige onvolledigheid, onjuistheid of anderszins, dan wel de gevolgen daarvan. Maatvoeringen en oppervlakten zijn indicatief.

Lees meer

Kenmerken

Overdracht

Prijs per m2
€ 2.513
Aangeboden sinds
27 maart 2026
Status
Beschikbaar
Aanvaarding
In overleg

Bouw

Soort woonhuis
Eengezinswoning, twee-onder-een-kap woning
Soort bouw
Bestaande bouw
Bouwjaar
1958
Soort dak
Zadeldak
Staat van onderhouden binnen
Goed
Staat van onderhouden buiten
Goed

Oppervlakte en inhoud

Perceeloppervlakte
312 m2
Inhoud van de woning
498 m3
Oppervlakte externe bergruimte
6 m2
Oppervlakte overige inpandige ruimten
21 m2

Indeling

Aantal kamers
6
Aantal slaapkamers
4
Aantal woonlagen
4
Voorzieningen
Tuin, schuur/berging, rolluiken

Buitenruimte

Balkon
Nee
Schuur/berging
Ja

Maandlasten berekenen

De maandlasten voor je woning bestaan uit meer dan alleen de hypotheeklasten. Hieronder vind je een overzicht van de bijkomende kosten en lasten. Zo weet je precies wat je huis per maand gaat kosten. En met de handige vergelijkers kun je ook nog eens snel de beste deals sluiten!

  • Kaart
  • Streetview