Waterhoen 5 1399 KG Muiderberg

152m2
Wonen
7
Kamers
170m2
Perceel
1988
Bouwjaar
Heerlijk ruim wonen in het groene Muiderberg – Waterhoen 5

Welkom aan de Waterhoen 5: een royale gezinswoning waar ruimte, rust en comfort perfect samenkomen. Gelegen in de geliefde en kindvriendelijke wijk Buitendijken in Muiderberg, woon je hier groen en ontspannen, terwijl alle dagelijkse voorzieningen dichtbij zijn. Met een zonnige tuin, maar liefst zes slaapkamers en energielabel A is dit een huis dat klaar is voor de toekomst én voor een nieuw gezin.

Volop leefruimte voor het hele gezin

Dit is zo’n woning waar iedereen zijn eigen plek vindt. Met zes volwaardige slaapkamers is er ruimte in overvloed: voor kinderen, thuiswerken, hobby’s of een fijne logeerkamer. Of je nu een groot gezin hebt of gewoon graag ruim woont, hier kan het allemaal. De praktische indeling zorgt ervoor dat wonen, werken en ontspannen moeiteloos samengaan.

Comfortabel én duurzaam wonen

De woning is gebouwd in 1988, degelijk van opzet en goed onderhouden. Dankzij energielabel A woon je hier niet alleen comfortabel, maar ook energiezuinig. Dat betekent lagere maandlasten én een prettig binnenklimaat, het hele jaar door. Een fijne gedachte, nu én in de toekomst.

Groen, rustig en kindvriendelijk

Muiderberg staat bekend om haar prettige woonklimaat en sterke gemeenschapsgevoel. In de wijk Buitendijken woon je ruim opgezet, met veel groen en water om je heen. Basisscholen, speelplekken en sportvoorzieningen liggen op loopafstand, net als het strand aan het IJmeer ideaal voor een frisse duik, een wandeling of een zomerse avond aan het water. En met de goede verbindingen richting Amsterdam, Almere en ’t Gooi ben je ook zo weer onderweg.

Kortom: een fijne, ruime gezinswoning op een prachtige plek, waar je elke dag met plezier thuiskomt.
Waterhoen 5 wacht op nieuwe bewoners, kom jij het zelf ervaren?

Volg ons nu ook op Instagram voor alle nieuwste updates: @vlaanderenmakelaar
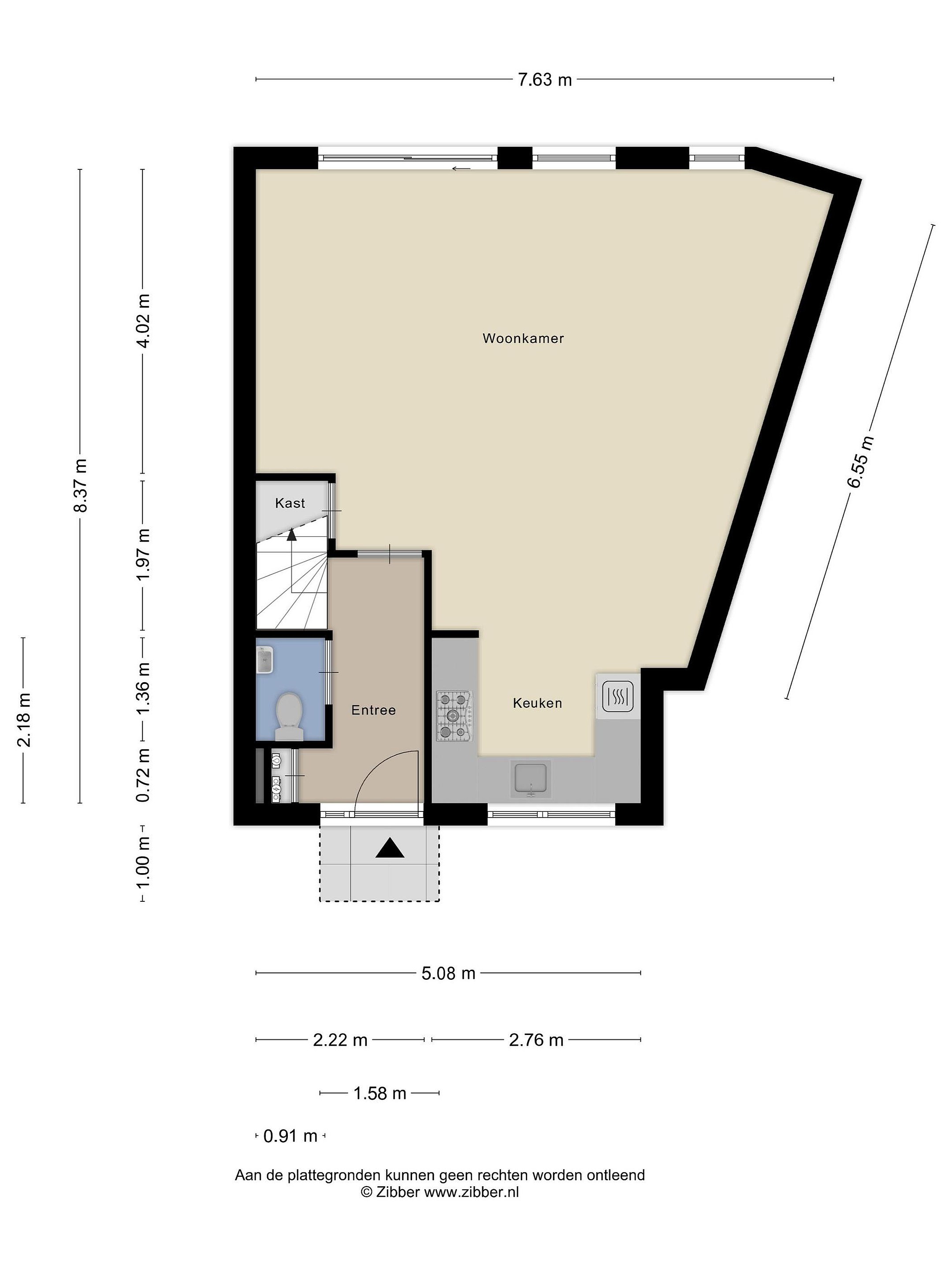
Begane grond
Een oase van ruimte en licht, Zodra je binnenstapt via de nette voortuin, valt direct de aangename breedte van de woning op. De hal verwelkomt je met een praktische meterkast en een modern toilet, waarna je doorloopt naar het hart van het huis: de lichte woonkamer. Dankzij de grote raampartijen en de tuingerichte indeling baad je hier altijd in het daglicht. De schuifpui naar de verzorgde achtertuin maakt dat binnen en buiten prachtig in elkaar overlopen. Of je nu samen met het gezin aan tafel zit of ‘s zomers de barbecue aansteekt; hier voel je je meteen thuis.

Aan de voorzijde van de woning bevindt zich de sfeervolle halfopen keuken. Hier bereid je moeiteloos de lekkerste maaltijden, geholpen door de diverse hoogwaardige inbouwapparatuur. Koken doe je met uitzicht op de groene straat aan de voorzijde altijd gezellig, altijd levendig.

Eerste verdieping
Via de trap in de hal bereik je de eerste verdieping. Hier bevinden 3 slaapkamers waarvan er één zeer royale is, allen voorzien van prettige lichtinval. De badkamer is praktisch ingedeeld met een douche, een tweede toilet en een wastafelmeubel.

Tweede verdieping
Net als het niet ruim genoeg kon, is er ook op de tweede verdieping veel meer te ontdekken: door de handige dakkapellen aan zowel de voor- als de achterzijde zijn hier nog eens drie volwaardige slaapkamers gerealiseerd. Tel daar de tweede badkamer bij op jawel, nóg een douche, wastafel en toilet en je begrijpt: zelfs met een groot gezin kom je geen ruimte tekort. Thuiswerken kan bovendien zonder concessies: genoeg plek voor een royaal bureau of een creatieve studio.

Tuin
Genieten van buiten – zonnige achtertuin én groen aan de voorkant
Wat is het een luxe om na een lange werkdag uit te waaien in je eigen tuin van liefst 80 m2. De achtertuin is gesitueerd op het zuidoosten; een perfecte ligging als je graag de zon meepakt van de vroege ochtend tot namiddag. De diepe tuin is onderhoudsvriendelijk aangelegd, dus ook als je geen groene vingers hebt, geniet je hier optimaal van het buitenleven. Er is een handige achterom aanwezig altijd fijn voor de fietsen en de container en de voortuin biedt privacy én een mooie buffer tegen de straat.

Details
- Woonoppervlakte ca. 152 m2
- Perceeloppervlakte 170 m2
- Bouwjaar 1988
- Energielabel A
- Zes slaapkamers, verdeeld over twee woonlagen
- Twee badkamers
- Tuin met achterom, ligging zuidwest
- Gelegen in kindvriendelijke, groene wijk

Lees meer

Kenmerken

Overdracht

Prijs per m2
€ 5.000
Aangeboden sinds
4 februari 2026
Status
Beschikbaar
Aanvaarding
In overleg

Bouw

Soort woonhuis
Eengezinswoning, tussen woning
Soort bouw
Bestaande bouw
Bouwjaar
1988
Soort dak
Zadeldak
Staat van onderhouden binnen
Goed
Staat van onderhouden buiten
Goed

Oppervlakte en inhoud

Perceeloppervlakte
170 m2
Inhoud van de woning
480 m3
Oppervlakte externe bergruimte
5 m2

Indeling

Aantal kamers
7
Aantal slaapkamers
6
Aantal woonlagen
4
Voorzieningen
Tuin, schuur/berging, kabel-tv, dakraam

Buitenruimte

Balkon
Nee
Schuur/berging
Ja

Maandlasten berekenen

De maandlasten voor je woning bestaan uit meer dan alleen de hypotheeklasten. Hieronder vind je een overzicht van de bijkomende kosten en lasten. Zo weet je precies wat je huis per maand gaat kosten. En met de handige vergelijkers kun je ook nog eens snel de beste deals sluiten!

  • Kaart
  • Streetview