Verkocht

Noordeinde 116 1141 AR Monnickendam

81m2
Wonen
4
Kamers
74m2
Perceel
1984
Bouwjaar
Zin om te verhuizen naar een moderne woning in historische setting? Aan het Noordeinde 116, in hartje Monnickendam, is nu dit fraaie huis te koop. In de afgelopen maanden is deze woning op veel punten verbeterd. Zo zijn er nieuwe kozijnen met hr++ glas in de achtergevel geplaatst, zijn er openslaande deuren naar de tuin gemaakt, is het volledige interieur opnieuw gestuukt, is de meterkast vernieuwd, zijn alle stopcontacten geaard en zijn er radiatoren vernieuwd. Dit huis met fijne stadstuin ligt aan één van de oudste straten van Monnickendam, heeft een moderne keuken en badkamer en telt 3 slaapkamers.

Op zoek naar een instapklare woning waar je direct je jas op kunt hangen? Maak dan snel een afspraak voor een vrijblijvende bezichtiging!

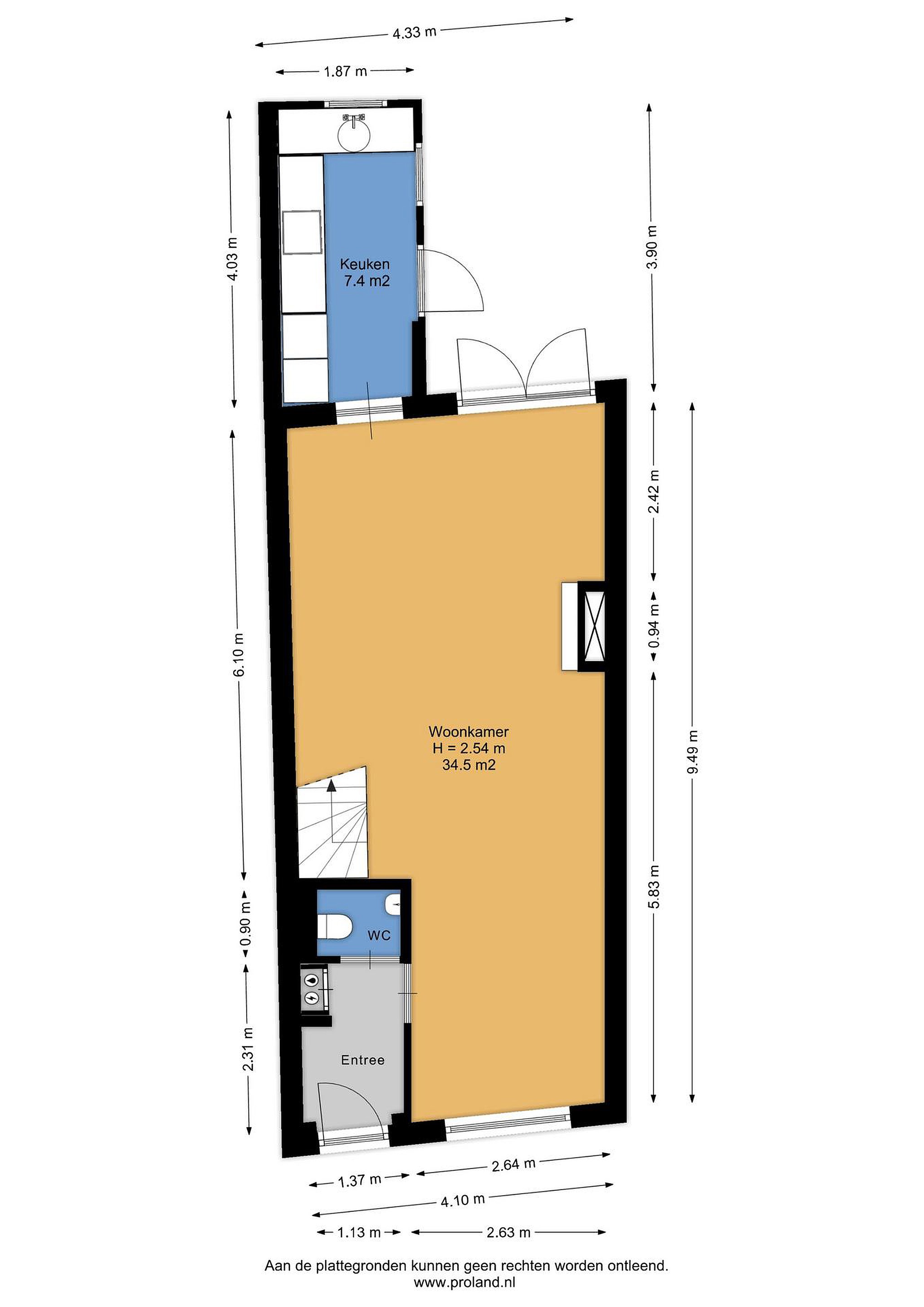
Indeling begane grond
Via de hal met meterkast en toiletruimte, met zwevend toilet en fonteintje, betreed je de woonkamer van circa 9,5 meter diep, met nieuwe openslaande deuren naar de achtertuin. Een heerlijk ruim vloeroppervlak, met houten vloer, biedt voldoende mogelijkheid om de woonkamer naar eigen wens in te delen. Een gashaard met marmeren schouw zorgt voor extra sfeer en warmte. Wanden en plafond zijn wit gestuukt. In de uitbouw bevindt zich de moderne semi-open keuken, voorzien van diverse inbouwapparatuur, waaronder een vaatwasser (2025), inductie kookplaat en oven. Dit jaar zijn er extra opberglades aan de keuken toegevoegd. Bovenop de uitbouw bevindt zich nog een vliering, waar de Cv-ketel (Intergas, 2017) te vinden is. Via de uitbouw stap je ook de gezellige stadstuin in.

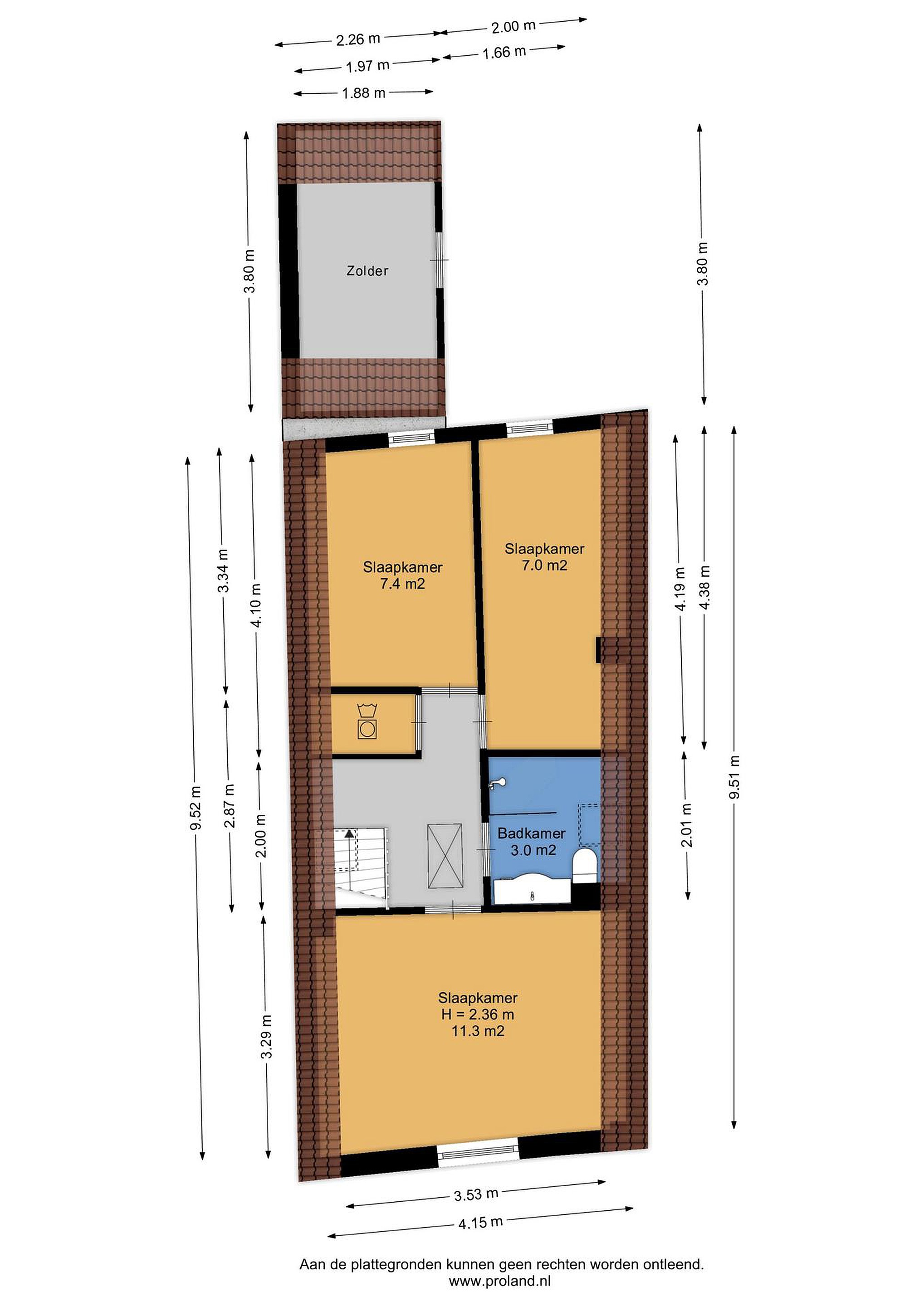
Eerste verdieping
Via de open trap in de woonkamer bereik je de eerste etage. Op deze verdieping zijn drie slaapkamers en een badkamer te vinden. De slaapkamer aan de voorzijde van de woning is de grootste van de drie en voelt extra ruimtelijk door de hoogte tot aan de nok. Aan de achterzijde bevinden zich de twee andere slaapkamers van ongeveer gelijk formaat, beide voorzien van rolluiken. In één van deze kamers is een extra wastafel geplaatst.

De gehele etage is voorzien van een plankenvloer. De moderne badkamer met Velux kantelraam is centraal aan de overloop gelegen. Het is een frisse en tot aan het plafond betegelde ruimte die in wit/grijs is uitgevoerd en voorzien is van inloopdouche, wastafel en tweede toilet. Op de overloop bevindt zich een vaste kast met aansluiting voor wasmachine en droger. Een vlizotrap op de overloop biedt tot slot toegang tot de vliering.

Buiten
Je bereikt de voordeur via je eigen stoep aan de straatzijde op de westkant. De kozijnen aan de voor- en achterzijde van de woning zijn ook recent vernieuwd en voorzien van HR+ glas. Aan de achterzijde is de heerlijke stadstuin te vinden, die gelegen is op het oosten. Het zonnetje zorgt gedurende de dag voor lekkere zon- en schaduwplekjes.

Omgeving
Deze woning ligt in de historische binnenstad van Monnickendam, met cafés, restaurants en sfeervolle terrasjes binnen handbereik. Op zaterdagen vindt er aan het begin van deze straat een gezellige warenmarkt plaats. In de nabije omgeving zijn diverse faciliteiten, zoals een school, sportschool en diverse winkels te vinden. Bovendien stap je vlakbij op de bus die je in een kwartiertje naar de metrohalte van de Noord-Zuidlijn van Amsterdam brengt.

Ben je op zoek naar een moderne woning in hartje Monnickendam, die klaar is om te betrekken? Maak dan zeker een vrijblijvende afspraak voor een bezichtiging!

Bijzonderheden:
Moderne woning met 3 slaapkamers in binnenstad van Monnickendam
Voorzien van moderne keuken, nieuwe badkamer en gezellige stadstuin
Recent aan de voor- en achterzijde voorzien van nieuwe kozijnen met HR+ glas
In 2025 op veel punten verbeterd
Centraal gelegen nabij alle faciliteiten

Algemeen
Alle zich in deze aanbieding bevindende informatie is door ons met grote zorg samengesteld. Met betrekking tot deze informatie aanvaarden wij echter geen enkele aansprakelijkheid, noch kan aan deze informatie enig recht worden ontleend.
Lees meer

Verkoopgeschiedenis

Aangeboden sinds
31 oktober 2025
Verkoopdatum
28 februari 2026
Looptijd
4 maanden

Kenmerken

Overdracht

Prijs per m2
€ 6.757
Aangeboden sinds
31 oktober 2025
Status
Verkocht
Aanvaarding
In overleg

Bouw

Soort woonhuis
Eengezinswoning, tussen woning
Soort bouw
Bestaande bouw
Bouwjaar
1984
Soort dak
Zadeldak
Staat van onderhouden binnen
Uitstekend
Staat van onderhouden buiten
Uitstekend

Oppervlakte en inhoud

Perceeloppervlakte
74 m2
Inhoud van de woning
315 m3
Oppervlakte externe bergruimte
6 m2
Oppervlakte overige inpandige ruimten
9 m2

Indeling

Aantal kamers
4
Aantal slaapkamers
3
Aantal woonlagen
3
Voorzieningen
Tuin, ventilatie, rolluiken, kabel-tv, glasvezel, rookkanaal, dakraam

Buitenruimte

Balkon
Nee
Schuur/berging
Nee

Maandlasten berekenen

De maandlasten voor je woning bestaan uit meer dan alleen de hypotheeklasten. Hieronder vind je een overzicht van de bijkomende kosten en lasten. Zo weet je precies wat je huis per maand gaat kosten. En met de handige vergelijkers kun je ook nog eens snel de beste deals sluiten!

  • Kaart
  • Streetview