Verkocht OV

Leeuwetand 77 1141 KH Monnickendam

113m2
Wonen
5
Kamers
127m2
Perceel
1989
Bouwjaar
Is het jouw goede voornemen om dit jaar te verhuizen zonder eerst te moeten klussen? Dan is deze moderne tussenwoning aan de Leeuwetand 77 precies wat je zoekt! Deze woning, gelegen aan een autovrij straatje, voldoet aan al je behoeften: een ruime woonkamer met openslaande deuren naar de achtertuin, een moderne keuken en badkamer én vier slaapkamers, maar ook vernieuwingen als een uitgebreide meterkast met 14 groepen en Tonzon-vloerisolatie. Je kunt hooguit nog wat in je eigen favoriete kleuren schilderen, maar verder valt hier niets meer aan te doen. Wil je je goede voornemen omzetten in actie? Maak dan snel een afspraak voor een vrijblijvende bezichtiging.

Indeling begane grond
Via de hal, met 14-groeps meterkast, trapopgang en moderne toiletruimte voorzien van een fonteintje, stap je de royale woonkamer in, die is voorzien van een houten vloer en wanden en plafond in neutrale kleuren, inclusief een fraaie sierlijst. De leefruimte is aan de achterzijde gerealiseerd en heeft prettig veel lichtinval door de extra brede openslaande deuren. Je hebt hier alle ruimte voor een gezellige zit- en eethoek. Extra bergruimte gerealiseerd in de kast onder de trapopgang die vanuit de woonkamer toegankelijk is.

Aan de voorzijde ligt de moderne open keuken, met een plavuizen vloer voorzien van vloerverwarming. De keuken in L-opstelling heeft een composiet blad en is natuurlijk voorzien van moderne apparatuur, waaronder een 5-pits gasfornuis met wokbrander, vaatwasser, koelkast en combi-oven. Door het grote raam heb je altijd lekker daglicht op je werkblad en zicht op het wandelpad voor de deur.

Eerste verdieping
Op de eerste etage zijn drie slaapkamers te vinden. De grootste is aan de aan de achterzijde gelegen. De kleine kamer is momenteel in gebruik als inloopkast, maar kan ook prima als kinder- of studeerkamer dienst doen. De moderne badkamer ligt aan de voorzijde. Hier heb je je eigen spa, met een luxe jacuzzi, een ruime stortdouche voorzien van handdouche, een wastafel met meubel en een tweede toilet. Door het raam in de badkamer heb je niet alleen natuurlijk licht, maar ook goede ventilatie.

Tweede verdieping
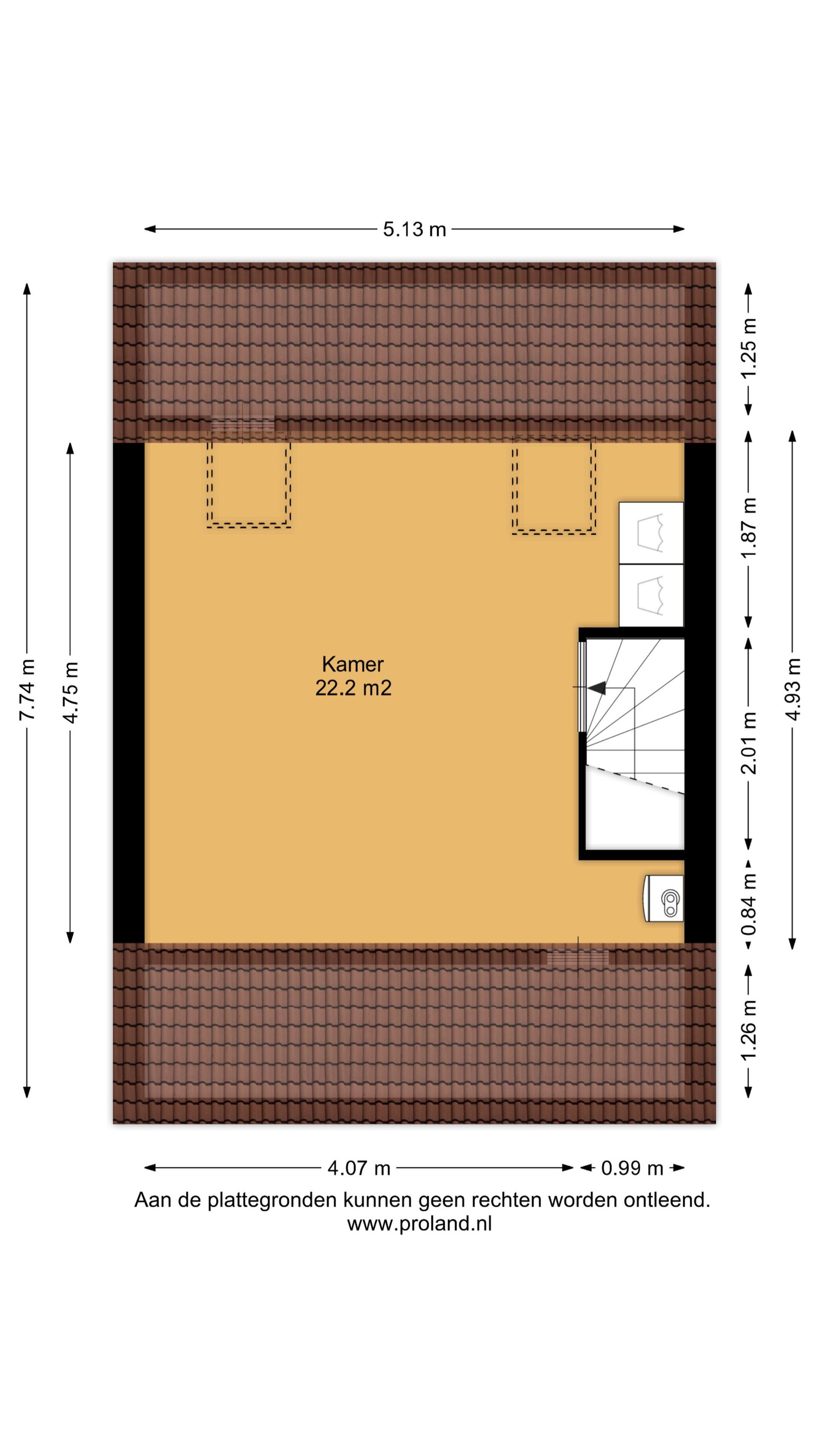
Een ruime vierde slaapkamer bevindt zich op de bovenste etage. De ruimte is geheel open en in het achterste dakvlak voorzien van 2 Velux kantelramen. Het is mogelijk deze kamer te vergroten door middel van dakkapellen aan zowel de voor- als achterzijde. Achter de knieschotten en boven de trapopgang is ruimte om spullen op te slaan en direct ernaast is er plek voor de wasmachine en droger. Hier hangt ook de Cv-installatie (Intergas, 2016).

Buiten
De woning is aan de voorzijde gelegen aan een rustig wandelpad. Parkeren kan hier aan de zijkant van het huizenblok op het centrale parkeerterrein. Groot voordeel is dat kinderen daardoor ongehinderd door verkeer voor de deur kunnen spelen. De voortuin op het zuidoosten is grotendeels bestraat en voorzien van groene borders. De achtertuin ligt op het noordwesten. Daardoor heb je zon tot de laatste stralen. Ook de achtertuin is onderhoudsarm: grotendeels bestraat en voorzien van groene afscheidingsborders tussen de twee terrassen. Achterin de tuin staat een stenen berging voorzien van elektra. De poort komt uit op de achtergelegen steeg.

Omgeving
Deze leuke tussenwoning is gelegen in de Buitengouw, een rustige en kindvriendelijke woonwijk. Door de ligging aan een wandelpad woon je hier heerlijk rustig. Faciliteiten als winkelcentrum, bibliotheek, sportschool, zorgverleners en scholen zijn in de nabijheid te vinden. De bus brengt je bovendien in 15 minuten naar Amsterdam-Noord waar de Noord-Zuidlijn je in een mum van tijd verder de stad in brengt. Het oude centrum van Monnickendam is goed per fiets te bereiken. Hier vindt je de handige wekelijkse warenmarkt op zaterdag, diverse lekkere restaurants en gezellige terrasjes.

Wil je dus dit jaar verhuizen, maar vooral bezig zijn met dozen uitpakken en inrichten? En vooral niet met klussen of verbouwen? Kom dan snel een kijkje nemen en maak een afspraak voor een vrijblijvende bezichtiging!

Bijzonderheden:
Zeer goed onderhouden tussenwoning met 4 slaapkamers
Moderne keuken en badkamer
Voorzien van 14-groeps meterkast en Tonzon-vloerisolatie
Aan wandelpad in rustige en kindvriendelijke woonwijk
Op 15 busminuten van de Amsterdamse Noord-Zuidlijn

Algemeen
Alle zich in deze aanbieding bevindende informatie is door ons met grote zorg samengesteld. Met betrekking tot deze informatie aanvaarden wij echter geen enkele aansprakelijkheid, noch kan aan deze informatie enig recht worden ontleend.
Lees meer

Kenmerken

Overdracht

Prijs per m2
€ 4.381
Aangeboden sinds
16 januari 2026
Status
Verkocht onder voorbehoud
Aanvaarding
In overleg

Bouw

Soort woonhuis
Eengezinswoning, tussen woning
Soort bouw
Bestaande bouw
Bouwjaar
1989
Soort dak
Zadeldak
Staat van onderhouden binnen
Goed
Staat van onderhouden buiten
Goed

Oppervlakte en inhoud

Perceeloppervlakte
127 m2
Inhoud van de woning
394 m3
Oppervlakte externe bergruimte
6 m2

Indeling

Aantal kamers
5
Aantal slaapkamers
4
Aantal woonlagen
3
Voorzieningen
Tuin, schuur/berging, ventilatie, buitenzonwering, dakraam

Buitenruimte

Balkon
Nee
Schuur/berging
Ja

Maandlasten berekenen

De maandlasten voor je woning bestaan uit meer dan alleen de hypotheeklasten. Hieronder vind je een overzicht van de bijkomende kosten en lasten. Zo weet je precies wat je huis per maand gaat kosten. En met de handige vergelijkers kun je ook nog eens snel de beste deals sluiten!

  • Kaart
  • Streetview