Moerstraatseweg 44 4727 SN Moerstraten

133m2
Wonen
4
Kamers
293m2
Perceel
1935
Bouwjaar
Aan de rand van het dorp, met een prachtig vrij uitzicht over uitgestrekte landerijen, staat deze royaal uitgebouwde en uitstekend onderhouden halfvrijstaande woning uit 1930. De woning combineert authentieke charme met hedendaags wooncomfort en beschikt over een moderne aanbouw van maar liefst 85 m2 (2012), waardoor er verrassend veel leefruimte is ontstaan.
Begane grond
Via de hal bereikt u het vernieuwde toilet (2023), de woonkeuken en woonkamer. De moderne keuken is recent vernieuwd en voorzien van diverse inbouwapparatuur. Aansluitend bevindt zich een praktische bijkeuken met witgoedaansluitingen en cv-installatie (2002), welke vervangen dient te worden.

De lichte, royale woonkamer beschikt over een tegelvloer, rolluiken en openslaande tuindeuren naar de zonnige achtertuin met vrij uitzicht.

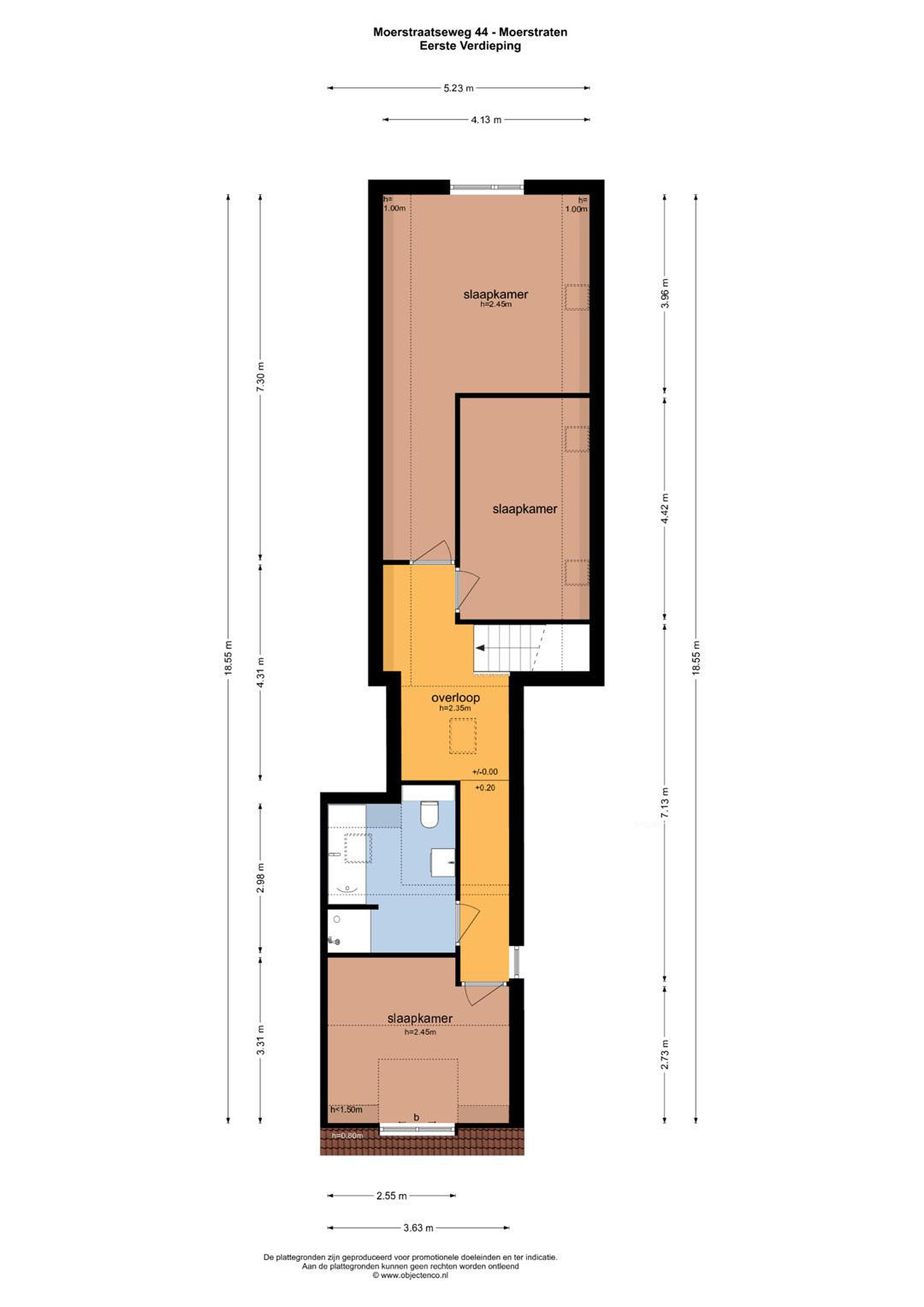
Eerste verdieping
Overloop met vaste kasten en toegang tot drie ruime slaapkamers, waarvan de grootste is voorzien van airconditioning. De badkamer is compleet ingericht met ligbad, douche, wastafelmeubel en tweede toilet.

Tuin
De onderhoudsvriendelijke achtertuin is zonnig gelegen en voorzien van een overkapping en brede achterom. Het geïsoleerde bijgebouw (met 12 zonnepanelen) is multifunctioneel inzetbaar, bijvoorbeeld als werk- of hobbyruimte.

Details
- Royale aanbouw van ca. 85 m2 (2012)
- Energielabel A en 12 zonnepanelen
- Vloerverwarming aanwezig
- Drie ruime slaapkamers
- Multifunctioneel, geïsoleerd bijgebouw
- Vrij uitzicht over de landerijen

Lees meer

Kenmerken

Overdracht

Prijs per m2
€ 3.008
Aangeboden sinds
27 februari 2026
Status
Beschikbaar
Aanvaarding
In overleg

Bouw

Soort woonhuis
Eengezinswoning, half vrijstaande woning
Soort bouw
Bestaande bouw
Bouwjaar
1935
Soort dak
Mansardedak
Staat van onderhouden binnen
Redelijk
Staat van onderhouden buiten
Goed

Oppervlakte en inhoud

Perceeloppervlakte
293 m2
Inhoud van de woning
559 m3
Oppervlakte externe bergruimte
21 m2

Indeling

Aantal kamers
4
Aantal slaapkamers
3
Aantal woonlagen
2
Voorzieningen
Tuin, rolluiken, airconditioning

Buitenruimte

Balkon
Nee
Schuur/berging
Nee

Maandlasten berekenen

De maandlasten voor je woning bestaan uit meer dan alleen de hypotheeklasten. Hieronder vind je een overzicht van de bijkomende kosten en lasten. Zo weet je precies wat je huis per maand gaat kosten. En met de handige vergelijkers kun je ook nog eens snel de beste deals sluiten!

  • Kaart
  • Streetview