Verkocht OV

Bovenas 46 2751 HG Moerkapelle

149m2
Wonen
5
Kamers
187m2
Perceel
2019
Bouwjaar
Nu te koop in de fijne woonwijk De Jonge Veenen in Moerkapelle: Bovenas 46.
Deze royale hoekwoning kent een mooie vrije ligging en een ruime zonnige tuin op het zuiden.

Het betreft een in 2019 gasloos gebouwde Nul-op-de-meterwoning met energielabel A++++.

Deze 1,20 meter uitgebouwde woning is uitgerust met tal van duurzame voorzieningen, waaronder een grondwarmtepomp, douche-wtw, 19 zonnepanelen, HR++ glas isolatie en een zeer goede isolatie van de gevels en het dak. En met vloerverwarming op alle drie de woonlagen kun je het woonhuis verwarmen, maar óók koelen. Zo heb je op warme zomerdagen een constante binnentemperatuur op de begane grond van ongeveer 22 graden en dat voelt heel comfortabel. Een airconditioning is niet nodig!

De Jonge Veenen is een aantrekkelijke kleinschalige, jonge woonwijk in Moerkapelle, waar de architectuur teruggaat naar de charmante stijl van de jaren '30. Wat deze wijk zo uniek maakt, is niet alleen de frisse uitstraling, maar ook de overvloed aan ruimte en groene accenten die je overal terugziet. En bij de grote diversiteit aan bouwstijlen springen de mooie bouwdetails in de gevels en het metselwerk in het oog.

Begane grond
Je komt de woning binnen in een gang met direct links het toilet, vervolgens de kast met hierin de plek voor de warmtepomp, dan de trapopgang en rechts bevindt zich de meterkast. De toiletruimte heeft een vrij hangend closet, een fontein en is gedeeltelijk betegeld. De begane grond is voorzien van een moderne pvc vloer, gelegd in visgraatmotief met een statige bies langs de randen. Vanuit de gang kom je in de riante woonkamer. Door de diverse ramen en de openslaande deuren is er veel lichtinval en dit geeft de woonkamer een prettige sfeer. In een hoek van de woonkamer bevindt zich een praktische trapkast. De woonkamer staat in open verbinding met de keuken, die zich aan de voorzijde bevindt. De keuken is L-vormig opgesteld met het spoelgedeelte voor het keukenraam. Van hieruit heb je leuk zicht over de straat. Aan de lange zijde is ook nog een rechte opstelling geplaatst, waardoor er heel veel opbergruimte beschikbaar is en de keuken zeer praktisch is in gebruik. De keuken is voorzien van diverse inbouwapparatuur, zoals een koel-/vriescombi, een vaatwasser, een oven, een combimagnetron, inductiekookplaat en afzuigschouw.
De woonkamer en open keuken hebben bij elkaar een royale oppervlakte van iets meer dan 47,00m2!

Eerste verdieping
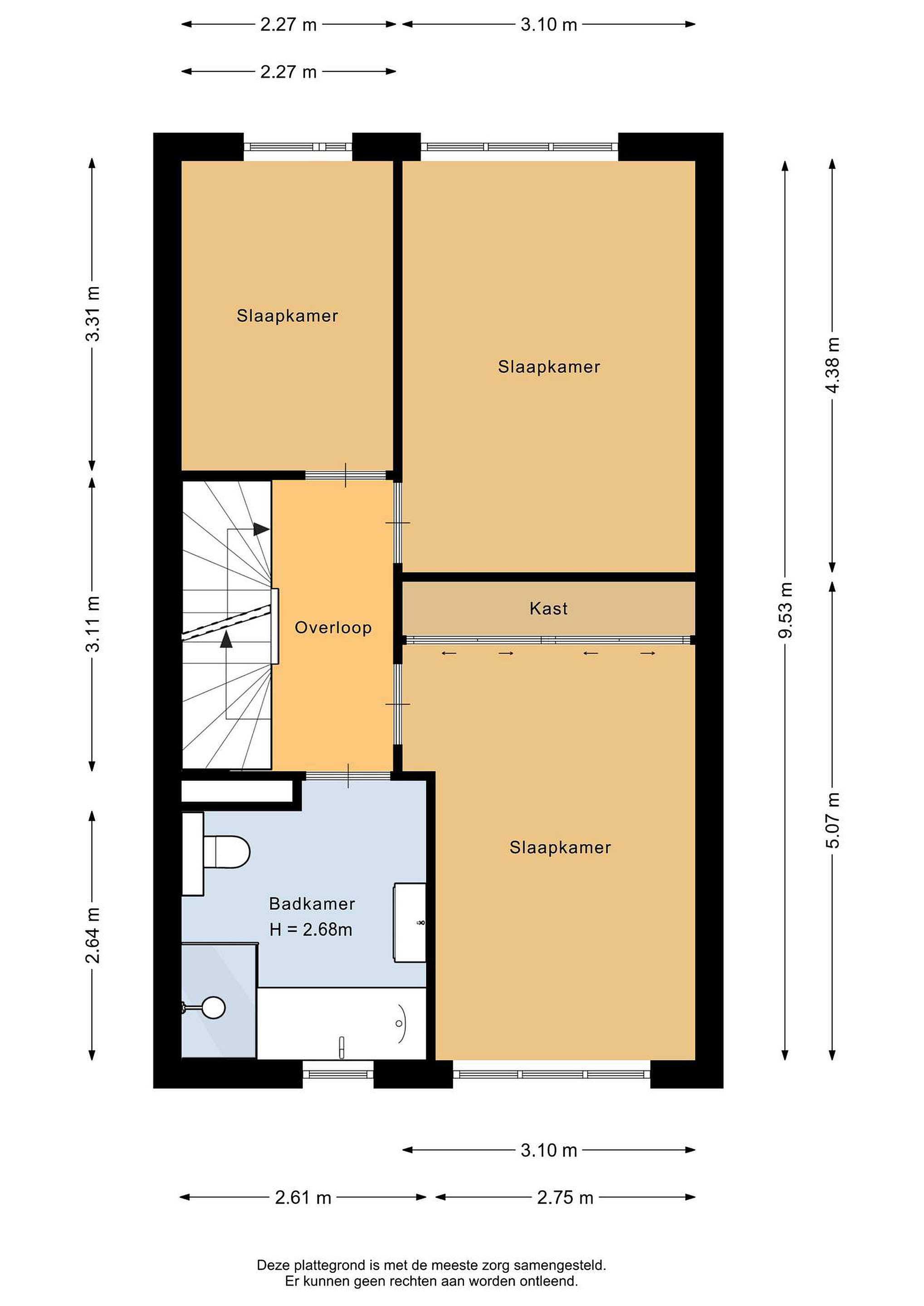
Op de eerste verdieping bevinden zich 3 slaapkamers van respectievelijk 14,50m2, 13,60m2 en 7,50m2. De slaapkamers en overloop zijn voorzien van een pvc vloer die drempelloos doorloopt. De grootste slaapkamer is verder nog voorzien van een vaste kast met schuifdeuren over de gehele breedte van de kamer. Langs de bovenrand van de kast is ingebouwde, dimbare ledverlichting aangebracht.
Het is iedere dag weer een heerlijk moment om het gordijn van de slaapkamer open te doen en vrij zicht te hebben over de akkers. Je kijkt vanuit je slaapkamer vrij weg tot aan het Bentwoud.
De badkamer is voorzien van groot formaat wand- en vloertegels en is zo ruim dat er plek is voor een ligbad, inloopdouche met glazen douchewand en deur, tweede vrij hangend closet en een dubbele wastafel met meubel. Er is bovendien een extra wandmeubel aanwezig om alles netjes te kunnen opbergen.

Tweede verdieping
De zolderverdieping is volledig ingedeeld. Zo is er direct links bovenaan de trap een mooie afgesloten opbergruimte van circa 5,30m2 en rechts is in een aparte ruimte de wasmachine- en drogeraansluiting aanwezig. Hier bevindt zich ook de WTW-installatie en omvormer voor de zonnepanelen. Zo is alles netjes uit het zicht weggewerkt. Er is op deze verdieping een riante slaapkamer met een oppervlak van ongeveer 26,00m2. De ruimte heeft veel sfeer door het aanwezige hoge schuine dak. Lichtinval is er via het raam in de voorgevel en het dakraam aan de achterzijde.
Ook de hele zolderverdieping heeft een pvc vloer. De beide trappen in huis zijn met High Pressured Laminate bekleed en geven samen met alle andere vloerafwerking aan het huis een verzorgde uitstraling.


Tuin
Bij deze hoekwoning beschik je over een voortuin, poort langs de zijgevel en achtertuin en dit geeft heerlijk veel vrijheid. Vooral omdat omliggende bebouwing allemaal op ruime afstand staat. De verzorgd aangelegde achtertuin is de hele dag zonnig tot in de avond door de ligging op het zuiden. Een deel van de tuin is voorzien van straatwerk, langs de randen zijn borders en er is een gazon. Daarmee is de tuin praktisch en ook kindvriendelijk ingericht. Schuttingdelen zijn mooi verzorgd en aan een zijde zorgt Hedera voor een groene haag. Er is buitenverlichting en een buitenkraan. Ook een elektrisch bediend zonnescherm ontbreekt niet. Achter in de tuin staat een houten, geïsoleerde berging, welke is voorzien van elektra.

Er is een achterom, waarmee je op de parkeerplaats achter de woning uitkomt, maar je kunt natuurlijk ook via de poort langs het huis naar de voorzijde.


Details
Alle technische apparatuur, zoals warmtepomp, boiler, zonnepanelen en WTW zijn in eigendom.
Klimaat Garant instandhoudingsovereenkomst NOM (Warmtepomp, boiler, bron en PV-panelen incl. omvormer) van toepassing, kosten € 52,- per maand gedurende nog resterende looptijd van de overeenkomst.

Alle drie de woonlagen zijn voorzien van vloerverwarming, waarbij in de zomermaanden de vloer voor afkoeling zorgt

Aanvaarding: in overleg, indicatie eerste kwartaal 2026
  
Ligging:
Voor en achter de woning is er voldoende parkeergelegenheid. De wijk is ruim opgezet, met veel groen en een variatie aan type huizen en veel speelgelegenheden voor jonge kinderen. Op korte afstand ligt het winkelcentrum met onder andere een supermarkt, speciaalzaken en diverse horeca. In de buurt zijn basisscholen en sportverenigingen. Vanuit Moerkapelle rijd je snel naar Zoetermeer en Gouda en ook de A12 richting Utrecht, Rotterdam en Den Haag is vlot bereikbaar. Ook kun je vanuit de wijk zo het Bentwoud in fietsen, een mooi aangelegd recreatiegebied tussen Zoetermeer, Moerkapelle, Boskoop en Waddinxveen. De andere kant op ben je op de fiets snel bij de Rottemeren, een ander mooi recreatiegebied in de buurt.

Afmetingen:
Woonkamer  5,44 x 6,63m (36,00m2)
Keuken  4,11 x 2,96m (11,50m2)
Slaapkamer 1  3,10/2,75 x 5,07m (14,50m2)
Slaapkamer 2   4,38 x 3,10m (13,60m2)
Slaapkamer 3   3,31 x 2,27m ( 7,50m2)
Badkamer     2,61 x 2,64m ( 6,90m2)
Slaapkamer zolder  8,13 x 3,05m (26,00m2)
Inpandige berging  2,28 x 2,32m  ( 5,30m2)
Wasmachineruimte  1,73 x 2,32  ( 3,00m2)
Achtertuin 9,65 x 6,95m (67,00m2)
Berging   2,77 x 2,27m ( 6,30m2)
Voortuin   6,95 x 3,15m  (22,00m2)

Deze vrijblijvende objectinformatie is met de meeste zorg samengesteld, maar voor de juistheid daarvan kunnen wij geen aansprakelijkheid aanvaarden. Ook kan aan de vermelde gegevens geen enkel recht worden ontleend. Alle informatie is enkel en alleen bedoeld voor de presentatie van het object en niet meer dan een uitnodiging tot het doen van een bod. Eventueel bijgevoegde plattegronden zijn slechts indicatief.


Lees meer

Kenmerken

Overdracht

Prijs per m2
€ 4.161
Aangeboden sinds
28 augustus 2025
Status
Verkocht onder voorbehoud
Aanvaarding
In overleg

Bouw

Soort woonhuis
Eengezinswoning, hoek woning
Soort bouw
Bestaande bouw
Bouwjaar
2019
Soort dak
Zadeldak
Staat van onderhouden binnen
Uitstekend
Staat van onderhouden buiten
Uitstekend

Oppervlakte en inhoud

Perceeloppervlakte
187 m2
Inhoud van de woning
575 m3
Oppervlakte externe bergruimte
6 m2
Oppervlakte gebouwgebonden buitenruimten
1 m2

Indeling

Aantal kamers
5
Aantal slaapkamers
4
Aantal woonlagen
3
Voorzieningen
Tuin, schuur/berging, glasvezel, buitenzonwering, dakraam

Buitenruimte

Balkon
Nee
Schuur/berging
Ja

Maandlasten berekenen

De maandlasten voor je woning bestaan uit meer dan alleen de hypotheeklasten. Hieronder vind je een overzicht van de bijkomende kosten en lasten. Zo weet je precies wat je huis per maand gaat kosten. En met de handige vergelijkers kun je ook nog eens snel de beste deals sluiten!

  • Kaart
  • Streetview