Verkocht

Tilledyk 5 9047 KG Minnertsga

92m2
Wonen
3
Kamers
173m2
Perceel
1934
Bouwjaar
Aan de Tilledyk 5 in Minnertsga staat deze charmante twee-onder-een-kapwoning uit 1934. Met een woonoppervlakte van ca. 92 m2, een moderne keuken, twee slaapkamers en een heerlijke buitenlounge is dit een ideale woning voor starters of een klein huishouden. De woning combineert de charme van de jaren ’30 met het comfort van nu: het schilderwerk is recent uitgevoerd (2024), de kozijnen zijn goed onderhouden en de cv-ketel is in 2024 vernieuwd. Hier woon je instapklaar, sfeervol en met alles binnen handbereik.

Begane grond
Via de entree kom je in de hal met trapopgang en toegang tot de woon- en eetkamer. De woonkamer is licht en uitnodigend dankzij de grote ramen aan de voorzijde en de klassieke details die direct een warme sfeer oproepen. De doorloop naar de eetkamer zorgt voor een prettige verbinding tussen de ruimtes, waardoor er genoeg plek is voor een eettafel om gezellig te tafelen met familie of vrienden.

Aansluitend bevindt zich de keuken (2020), modern uitgevoerd in een hoekopstelling en voorzien van diverse inbouwapparatuur. De praktische indeling en de afgesloten ruimte maken dit een fijne plek om te koken. Vanuit de keuken loop je door naar de hal met berging en toegang tot de badkamer. De badkamer is verrassend ruim en uitgerust met een ligbad, douche, wastafel en toilet – ideaal voor dagelijks comfort.
De gehele begane grond voelt verzorgd en huiselijk aan, met de mogelijkheid om met eigen accessoires of kleuren eenvoudig een persoonlijke stijl aan te brengen.

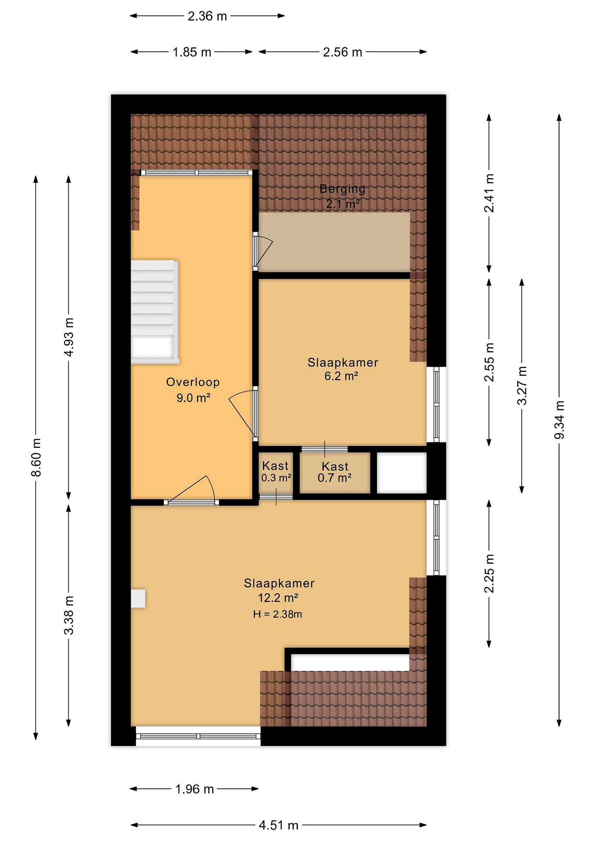
Eerste verdieping
De eerste verdieping telt twee slaapkamers. De grootste slaapkamer van ca. 12 m2 beschikt over vaste kastruimte en biedt voldoende plek voor een tweepersoonsbed en kledingkast. De tweede slaapkamer is compact en daardoor ideaal als logeerkamer, kinderkamer of thuiskantoor. Op de overloop is extra bergruimte aanwezig, handig voor koffers, dozen of seizoensspullen.

Tuin en buitenruimte
De achterzijde van de woning biedt een heerlijke, onderhoudsarme buitenruimte met een moderne en sfeervolle uitstraling. Hier is ruimte genoeg voor een eettafel, loungeset of barbecueplek. Het echte hoogtepunt is het tuinhuis met glazen schuifdeuren – een perfecte plek om in alle seizoenen te ontspannen, bijvoorbeeld als lounge, buitenkamer of hobbyruimte. Het tuinhuis is netjes afgewerkt en voorzien van verlichting, waardoor je hier ook in de avonden comfortabel kunt zitten.

Aangrenzend bevindt zich nog een praktische berging, ideaal voor fietsen, tuingereedschap of opslag. Samen vormen ze een sfeervol en functioneel geheel waar binnen en buiten naadloos in elkaar overlopen.

Pluspunten
- Bouwjaar 1934
- schilderwerk uitgevoerd in 2024
- Cv-ketel vernieuwd in 2024
- Moderne keuken (2020) met inbouwapparatuur
- Twee slaapkamers
- Badkamer met ligbad en douche
- Tuinhuis met glazen schuifdeuren – heerlijke buitenlounge
- Onderhoudsarme buitenruimte met veel privacy
- Ideaal voor starters of klein huishouden

Wonen in Minnertsga
Minnertsga is een levendig en vriendelijk dorp in de gemeente Waadhoeke. Hier vind je een supermarkt, basisschool, sportvoorzieningen en een actief verenigingsleven. Dankzij de gunstige ligging ben je binnen 15 minuten in zowel Franeker als Leeuwarden. Minnertsga ligt bovendien dicht bij de Waddenzeedijk, waar je prachtige wandelingen en fietstochten kunt maken. Rust, ruimte en een hechte dorpsgemeenschap – het maakt wonen aan de Tilledyk tot een plezierige ervaring.

Tilledyk 5 in Minnertsga is een charmante en instapklare woning met karakter, comfort en een heerlijke buitenruimte. Perfect voor wie op zoek is naar een sfeervol (t)huis om de volgende stap te zetten op de woningmarkt.

Het energielabel van de woning wordt momenteel nog opgemeten en zal zo snel mogelijk worden toegevoegd zodra deze bekend is.

Deze informatie is door ons met de nodige zorgvuldigheid samengesteld, veelal aan de hand van de door verkoper aan ons ter hand gestelde gegevens en tekeningen. Onzerzijds wordt echter geen enkele aansprakelijkheid aanvaard voor enige onvolledigheid, onjuistheid of anderszins, dan wel de gevolgen daarvan. Dit geldt voor onder meer de opgegeven maten, oppervlakten, isolatie en ouderdom van technische installaties.
Lees meer

Verkoopgeschiedenis

Aangeboden sinds
10 oktober 2025
Verkoopdatum
1 december 2025
Looptijd
2 maanden

Kenmerken

Overdracht

Prijs per m2
€ 2.532
Aangeboden sinds
10 oktober 2025
Status
Verkocht
Aanvaarding
In overleg

Bouw

Soort woonhuis
Eengezinswoning, twee-onder-een-kap woning
Soort bouw
Bestaande bouw
Bouwjaar
1934
Soort dak
Schilddak
Staat van onderhouden binnen
Goed
Staat van onderhouden buiten
Goed

Oppervlakte en inhoud

Perceeloppervlakte
173 m2
Inhoud van de woning
358 m3
Oppervlakte externe bergruimte
19 m2
Oppervlakte overige inpandige ruimten
2 m2

Indeling

Aantal kamers
3
Aantal slaapkamers
2
Aantal woonlagen
2
Voorzieningen
Tuin, schuur/berging

Buitenruimte

Balkon
Nee
Schuur/berging
Ja

Maandlasten berekenen

De maandlasten voor je woning bestaan uit meer dan alleen de hypotheeklasten. Hieronder vind je een overzicht van de bijkomende kosten en lasten. Zo weet je precies wat je huis per maand gaat kosten. En met de handige vergelijkers kun je ook nog eens snel de beste deals sluiten!

  • Kaart
  • Streetview