Polderlaan 13 3241 SK Middelharnis

97m2
Wonen
3
Kamers
466m2
Perceel
1998
Bouwjaar
Vrijstaand wonen aan het water – rietgedekt, garage, charmant en perfect onderhouden
Aan de geliefde Polderlaan in Middelharnis staat deze karaktervolle, vrijstaande woning uit 1998. Het rieten dak, de sfeervolle uitstraling en de royale kavel van 466 m2 geven het huis een warme, landelijke ambiance, terwijl de ligging aan het Haringvliet deze woning speciaal maakt. U loopt zo naar het strandje of de parkhaven.
De woning is uitstekend onderhouden, volledig geïsoleerd en voorzien van energielabel B. De afgelopen jaren zijn o.a. de keuken (2023), badkamer (2024), schilderwerk buiten (2024-2025) en installaties vernieuwd — ideaal voor wie zonder zorgen wil instappen in een hoogwaardige, karaktervolle woning.

*Ons kantoor is gesloten van 20 december tot en met 5 januari. Voor vragen of het maken van een afspraak voor bezichtiging kunt u ons mailen via info@vanalphenmakelaardij.nl
Wij reageren zo snel mogelijk. Vanaf 5 januari staan wij weer met plezier voor u klaar.
Wij wensen u alvast fijne feestdagen en een stralend nieuw jaar!
Begane grond
De ruime hal leidt naar het toilet, de trapopgang en de woonkamer. De lichte woonkamer is royaal opgezet met toegang naar de achtertuin aan de waterkant. De keuken heeft veel kastruimte en geeft toegang tot het terras aan de voorzijden van de woning.

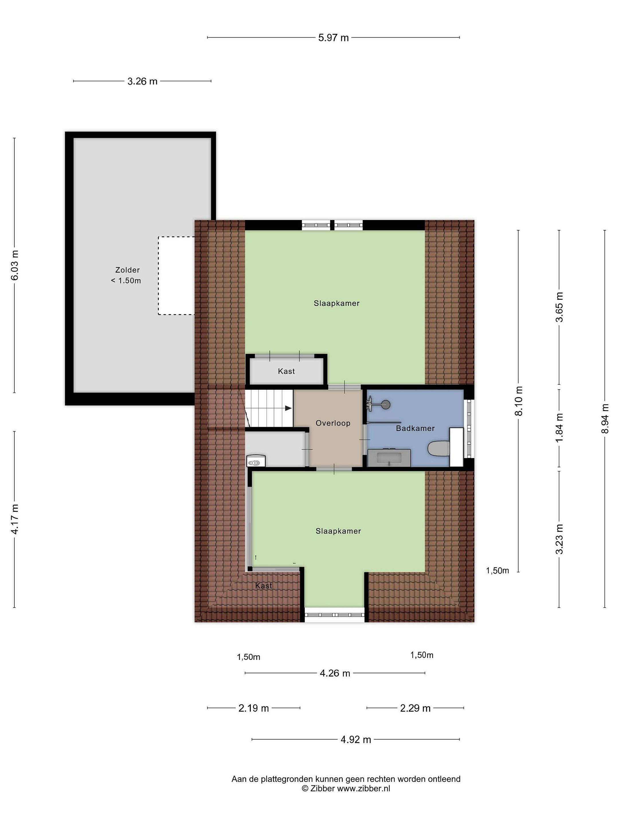
Eerste verdieping
Twee volwaardige slaapkamers (mogelijkheid tot drie slaapkamers) met dakkapellen, een badkamer met douche, wastafel en toilet en een vaste kast. Toegang tot de bergzolder.

Tweede verdieping
Bereikbaar via vlizotrap; ideaal voor opslag.

Tuin
Prachtig perceel rondom de woning met meerdere zitplekken, groen en vrije zichtlijnen. De kavel grenst deels aan water doormiddels van een houtenterras.

Details
Highlights:
Vrijstaande rietgedekte woning op 466 m2 eigen grond
Aan het water gelegen, met volledige privacy in de tuin rondom
Keuken vernieuwd in 2023 (incl. nieuw leidingwerk, elektra, meterkast & inductie-aansluiting)
Badkamer vernieuwd in 2024 (incl. leidingwerk, elektra & elektrische vloerverwarming)
4 zonnepanelen (2023)
Schilderwerk buitenzijde uitgevoerd in 2024-2025
Aangebouwde stenen garage van 19,66 m2 (plat dak vernieuwd in 2023)
Rieten dak volledig onderhouden en deels vernieuwd
Cv-ketel uit 2017, onderhoud 2025
Ruime bergzolder op de garage middels vlizotrap en een extra zolderruimte boven de 1e verdieping
Parkeren op eigen terrein voor meerdere auto’s

Locatie:
Rustige, groene woonomgeving nabij het Haringvliet, parkhaven, strandje, centrum, supermarkten, horeca, scholen en uitvalswegen.

Lees meer

Kenmerken

Overdracht

Prijs per m2
€ 6.125
Aangeboden sinds
5 december 2025
Status
Beschikbaar
Aanvaarding
In overleg

Bouw

Soort woonhuis
Eengezinswoning, vrijstaande woning
Soort bouw
Bestaande bouw
Bouwjaar
1998
Soort dak
Samengesteld dak
Staat van onderhouden binnen
Uitstekend
Staat van onderhouden buiten
Uitstekend

Oppervlakte en inhoud

Perceeloppervlakte
466 m2
Inhoud van de woning
439 m3
Oppervlakte overige inpandige ruimten
20 m2

Indeling

Aantal kamers
3
Aantal slaapkamers
2
Aantal woonlagen
2
Voorzieningen
Tuin, kabel-tv

Buitenruimte

Balkon
Nee
Schuur/berging
Nee

Maandlasten berekenen

De maandlasten voor je woning bestaan uit meer dan alleen de hypotheeklasten. Hieronder vind je een overzicht van de bijkomende kosten en lasten. Zo weet je precies wat je huis per maand gaat kosten. En met de handige vergelijkers kun je ook nog eens snel de beste deals sluiten!

  • Kaart
  • Streetview