Verkocht

Anna Blamanpad 4 3241 DM Middelharnis

119m2
Wonen
6
Kamers
116m2
Perceel
2008
Bouwjaar
Woning
Lees meer

Verkoopgeschiedenis

Aangeboden sinds
26 maart 2026
Verkoopdatum
24 april 2026
Looptijd
één maand

Kenmerken

Overdracht

Prijs per m2
€ 3.801
Aangeboden sinds
26 maart 2026
Status
Verkocht
Aanvaarding
In overleg

Bouw

Soort woonhuis
Eengezinswoning, tussen woning
Soort bouw
Bestaande bouw
Bouwjaar
2008
Soort dak
Zadeldak
Staat van onderhouden binnen
Uitstekend
Staat van onderhouden buiten
Uitstekend

Oppervlakte en inhoud

Perceeloppervlakte
116 m2
Inhoud van de woning
423 m3
Oppervlakte externe bergruimte
8 m2
Oppervlakte gebouwgebonden buitenruimten
1 m2

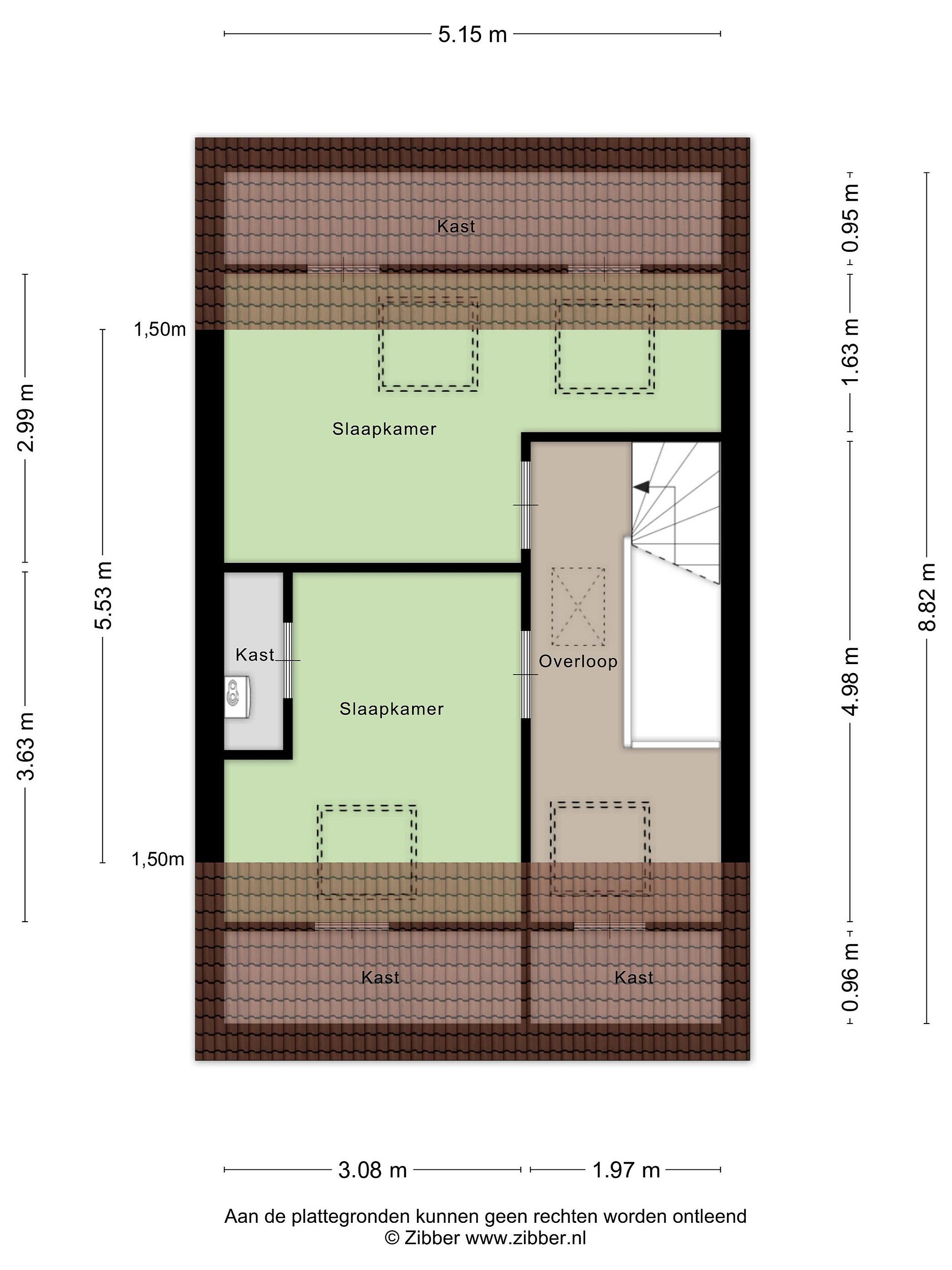
Indeling

Aantal kamers
6
Aantal slaapkamers
5
Aantal woonlagen
4
Voorzieningen
Tuin

Buitenruimte

Balkon
Nee
Schuur/berging
Nee

Maandlasten berekenen

De maandlasten voor je woning bestaan uit meer dan alleen de hypotheeklasten. Hieronder vind je een overzicht van de bijkomende kosten en lasten. Zo weet je precies wat je huis per maand gaat kosten. En met de handige vergelijkers kun je ook nog eens snel de beste deals sluiten!

  • Kaart
  • Streetview