Verkocht

De Oosthoek 3 8316 NM Marknesse

98m2
Wonen
4
Kamers
269m2
Perceel
1993
Bouwjaar
Een 2-onder-1-kapwoning met garage gelegen op korte afstand van de voorzieningen. De woning beschikt over een woonkamer, keuken, bijkeuken, 3 slaapkamers, badkamer en een garage met zolder. De achtertuin is onderhoudsvriendelijk en bereikbaar via de woning. De woning is gelegen op een perceel van 269m2 en heeft een woonoppervlakte van ca. 98m2.
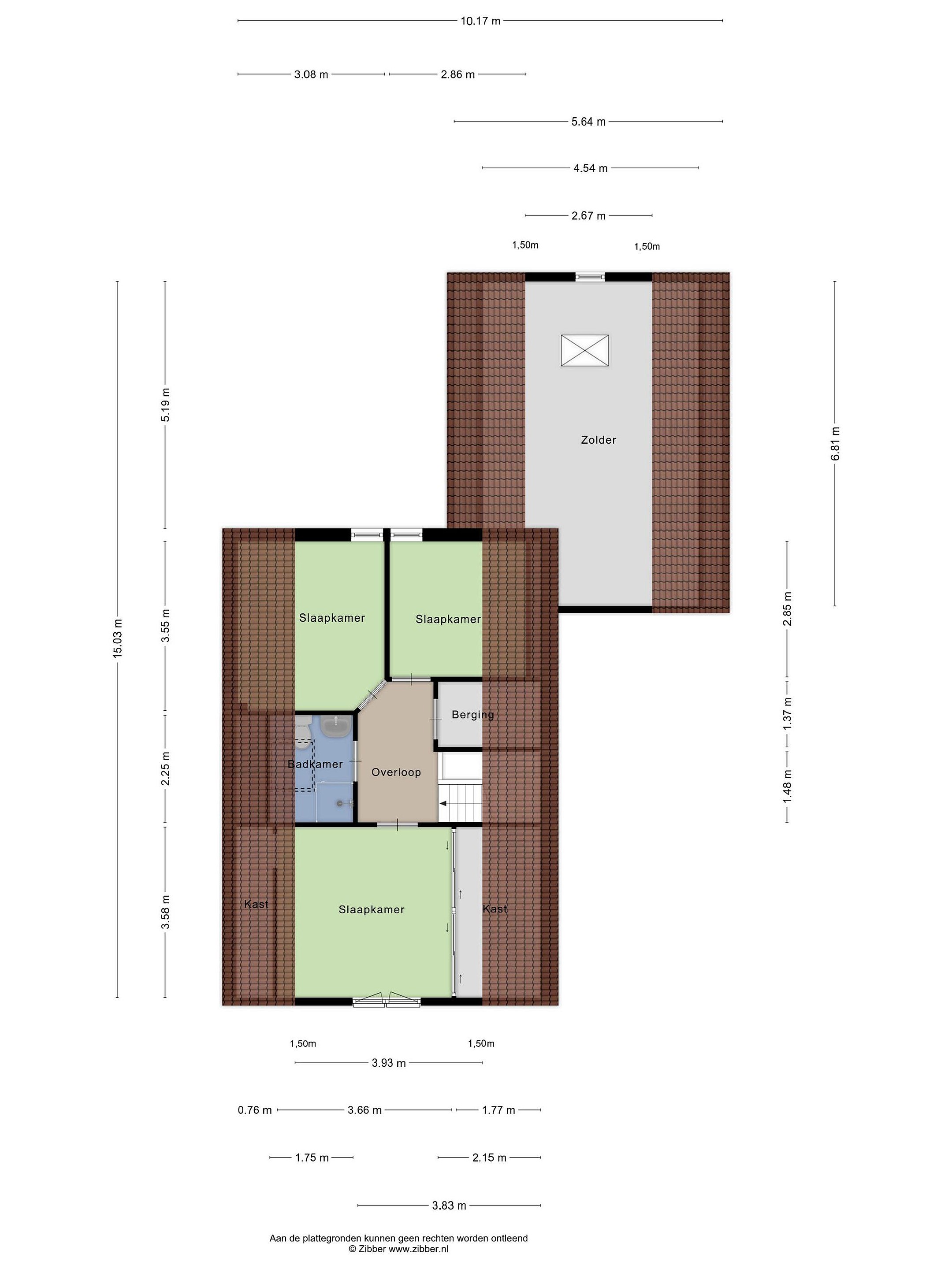
Begane grond
Entree / hal met meterkast, toilet en trapopgang. De woonkamer beschikt over veel lichtinval, uitzicht op de voor- en achtertuin en een keukenblok met diverse inbouwapparatuur, o.a. inductiekookplaat, afzuigkap en oven. Via de bijkeuken bereikt u de achtertuin en de garage voorzien van een zolder.

Eerste verdieping
Overloop met vide, berging en 3 slaapkamers. De badkamer beschikt over een toilet, wastafel en een douchehoek.

Tuin
De besloten achtertuin is onderhoudsvriendelijk en gelegen op het noordoosten. De tuin aan de voorzijde is voorzien van een oprit voor de garage.

Details
Bijzonderheden / resumé:
- de 2-onder-1-kapwoning is gelegen op korte afstand van diverse voorzieningen;
- de 2-onder-1-kapwoning beschikt over kunststof kozijnen met isolerende beglazing;
- de 2-onder-1-kapwoning beschikt over een lichte woonkamer met keuken;
- de 2-onder-1-kapwoning beschikt over 3 slaapkamers en een badkamer;
- de 2-onder-1-kapwoning beschikt over een aangebouwde garage met zolder;
- de 2-onder-1-kapwoning beschikt over een onderhoudsvriendelijke achtertuin.

Marknesse

Het dorp beschikt over diverse voorzieningen en is gelegen in de Noordoostpolder op de grens met Overijssel. Het is centraal gelegen nabij Emmeloord en op ca.50 autominuten van de randstad en ca.30 autominuten van Zwolle en Leeuwarden.

De omgeving biedt fantastische mogelijkheden voor mensen die bijvoorbeeld van fietsen, wandelen, vissen en watersport houden. De natuurliefhebber kan hier zijn hart ophalen.

Lees meer

Verkoopgeschiedenis

Aangeboden sinds
22 januari 2026
Verkoopdatum
10 april 2026
Looptijd
3 maanden

Kenmerken

Overdracht

Prijs per m2
€ 4.587
Aangeboden sinds
22 januari 2026
Status
Verkocht
Aanvaarding
In overleg

Bouw

Soort woonhuis
Eengezinswoning, twee-onder-een-kap woning
Soort bouw
Bestaande bouw
Bouwjaar
1993
Soort dak
Zadeldak
Staat van onderhouden binnen
Goed
Staat van onderhouden buiten
Goed

Oppervlakte en inhoud

Perceeloppervlakte
269 m2
Inhoud van de woning
529 m3
Oppervlakte overige inpandige ruimten
51 m2

Indeling

Aantal kamers
4
Aantal slaapkamers
3
Aantal woonlagen
2
Voorzieningen
Tuin, fransbalkon

Buitenruimte

Balkon
Nee
Schuur/berging
Nee

Maandlasten berekenen

De maandlasten voor je woning bestaan uit meer dan alleen de hypotheeklasten. Hieronder vind je een overzicht van de bijkomende kosten en lasten. Zo weet je precies wat je huis per maand gaat kosten. En met de handige vergelijkers kun je ook nog eens snel de beste deals sluiten!

  • Kaart
  • Streetview