Verkocht OV

Plantijndomein 21 6229 GG Maastricht

127m2
Wonen
6
Kamers
99m2
Perceel
1988
Bouwjaar
DEZE WONING WORDT AANGEBODEN DOOR POOTERS MAKELAARDIJ
Deze eengezinswoning is gelegen, nabij het MUMC+, in een rustige en kindvriendelijke woonomgeving en biedt volop ruimte en potentie. De woning beschikt onder meer over vijf slaapkamers, een gesloten keuken, een voor- en achtertuin met berging en achterom. De woning dient gemoderniseerd te worden, wat kopers de kans geeft om alles volledig naar eigen wens in te richten. Dankzij de praktische indeling, grote raampartijen en het aantal kamers is dit een ideale woning voor gezinnen die op zoek zijn naar ruimte en mogelijkheden.

Indeling:

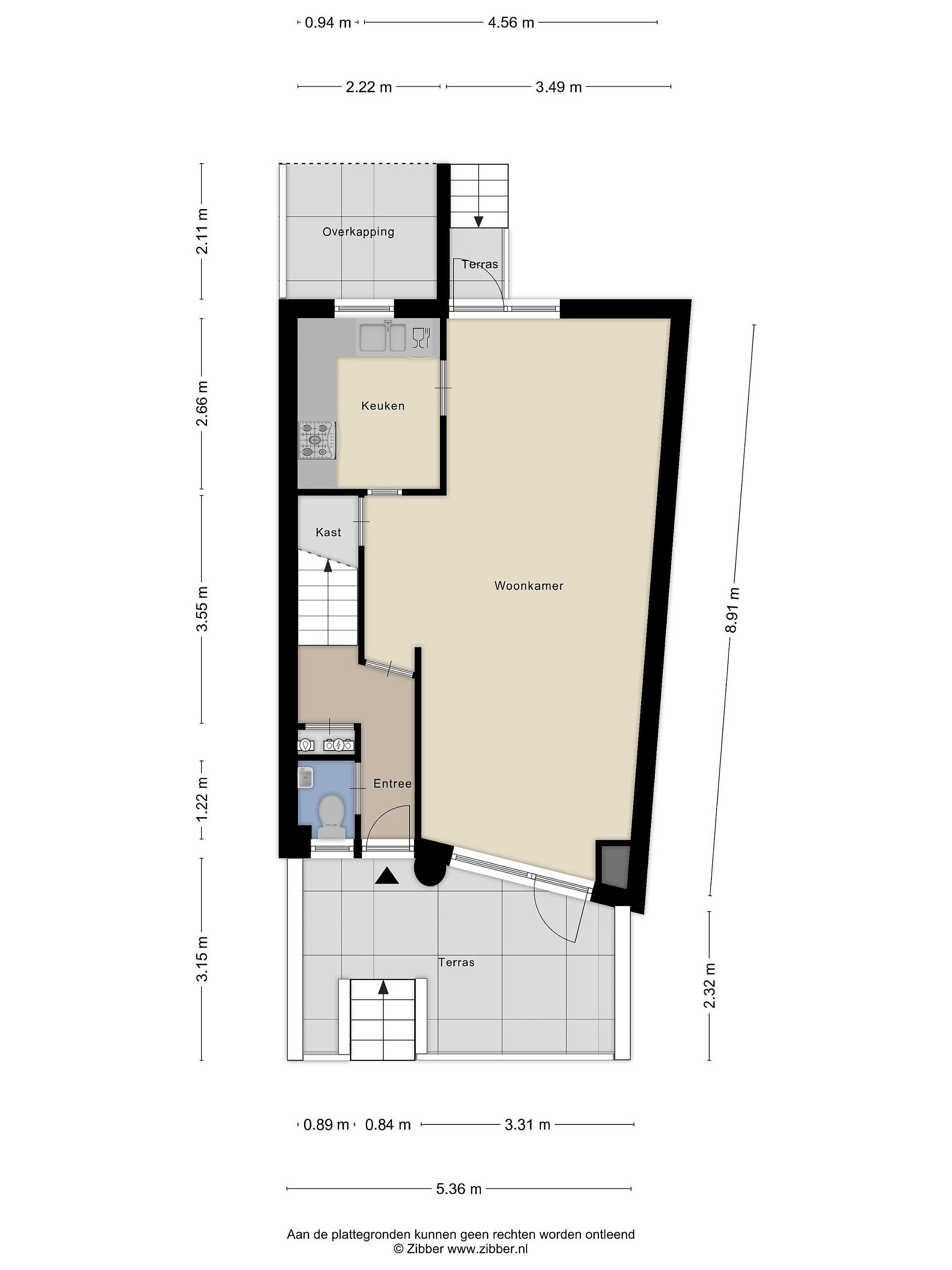
Begane grond:
Via het terras aan de voorzijde en een trapopgang bereikt u de entree/hal van de woning. De hal biedt toegang tot de meterkast, het toilet met fonteintje en de trap naar de eerste verdieping. De lichte woonkamer (31m2) is voorzien van een parketvloer en beschikt over grote ramen aan zowel de voor- als achterzijde, wat zorgt voor een prettige lichtinval. Vanuit de woonkamer is het terras aan de voorzijde en de achtertuin te bereiden middels openslaande deur. De woonkamer is eveneens voorzien van een trapkast voor extra bergruimte.
De gesloten keuken (6m2) is gelegen aan de achterzijde en uitgevoerd in een hoekopstelling. De keuken is voorzien van een kunststof werkblad en beschikt over diverse (inbouw)apparatuur, te weten: een dubbele spoelbak, vaatwasser, 5-pits gasfornuis met afzuigkap en een oven.
De achtertuin is gelegen op het oosten en beschikt over een stenen berging (6m2) en een praktische achterom.

Eerste verdieping:
Op de eerste verdieping bevinden zich twee ruime slaapkamers. Slaapkamer 1 (17m2) is gelegen aan de achterzijde over de volledige breedte van de woning. Slaapkamer 2 (13m2) is aan de voorzijde gelegen met toegang tot een balkon (5m2). Beide slaapkamers zijn voorzien van een laminaatvloer. De badkamer (6m2) is volledig betegeld en voorzien van een ligbad, aparte douche, staand toilet en een wastafel met meubel.

Tweede verdieping:
De tweede verdieping biedt nog eens drie slaapkamers van respectievelijk 13m2, 11m2 en 6m2 en een aparte berging (5m2) met opstelling voor de wasmachine, de mechanische ventilatie en de cv-installatie. Alle slaapkamers op deze verdieping zijn voorzien van dezelfde laminaatvloer. De kamer aan de achterzijde beschikt bovendien over een vaste wastafel.

Extra informatie:
- De woning dient gemoderniseerd te worden;
- Gelegen in een rustige en kindvriendelijke woonomgeving;
- De woning is voorzien van houten kozijnen met met dubbele beglazing (deels HR beglazing);
- Verwarming en warm water wordt verkregen middels combiketel (Intergas HRE; bj. 2024; huur). Volta € 40,25 per maand;
- Mechanische ventilatie aanwezig;
- De woning beschikt over 5 slaapkamers. Ideaal voor gezinnen die op zoek zijn naar ruimte;
- Achtertuin met achterom;
- Er is voldoende parkeergelegenheid in de directe omgeving aanwezig;
- Definitief energielabel 'B'.

Algemene informatie:
De woning is gelegen in de Maastrichtse wijk 'Randwyck' en is omgeven door veel groen. Gunstig gelegen ten opzichte van MUMC+, Universiteit, MECC, het Provinciehuis en het openbaar vervoer. Goede verbindingswegen richting autosnelweg Eindhoven, Heerlen, Luik en Aken.

Ter bescherming van de belangen van zowel koper als verkoper, wordt uitdrukkelijk gesteld dat een koopovereenkomst met betrekking tot deze onroerende zaak eerst dan tot stand komt nadat koper en verkoper de koopovereenkomst hebben getekend ("schriftelijkheidsvereiste"). De termijn die wordt opgenomen voor eventuele (overeengekomen) ontbindende voorwaarden (bv. Financiering) is in de regel 4 tot 6 weken na het sluiten van de mondelinge wilsovereenkomst.

De waarborgsom/bankgarantie is 10% van de koopsom. De koper dient deze 2 weken ná het vervallen van de ontbindende voorwaarden bij de desbetreffende notaris te deponeren.

Koper is te allen tijde gerechtigd voor eigen rekening een bouwkundige keuring te (laten) verrichten dan wel andere adviseurs te raadplegen teneinde een goed inzicht te verkrijgen over de staat van onderhoud.

Bovenstaande vrijblijvende informatie is door Pooters Makelaardij met de nodige zorgvuldigheid samengesteld. Echter aanvaardt Pooters Makelaardij geen enkele aansprakelijkheid voor enige onvolledigheid, onjuistheid of anderszins, dan wel de gevolgen daarvan. Oppervlakten en maten zijn indicatief.
Lees meer

Kenmerken

Overdracht

Prijs per m2
€ 2.559
Aangeboden sinds
23 oktober 2025
Status
Verkocht onder voorbehoud
Aanvaarding
In overleg

Bouw

Soort woonhuis
Eengezinswoning, tussen woning
Soort bouw
Bestaande bouw
Bouwjaar
1988
Soort dak
Plat dak
Staat van onderhouden binnen
Redelijk
Staat van onderhouden buiten
Redelijk

Oppervlakte en inhoud

Perceeloppervlakte
99 m2
Inhoud van de woning
451 m3
Oppervlakte externe bergruimte
6 m2
Oppervlakte gebouwgebonden buitenruimten
22 m2

Indeling

Aantal kamers
6
Aantal slaapkamers
5
Aantal woonlagen
3
Voorzieningen
Tuin, schuur/berging, ventilatie, kabel-tv

Buitenruimte

Balkon
Nee
Schuur/berging
Ja

Maandlasten berekenen

De maandlasten voor je woning bestaan uit meer dan alleen de hypotheeklasten. Hieronder vind je een overzicht van de bijkomende kosten en lasten. Zo weet je precies wat je huis per maand gaat kosten. En met de handige vergelijkers kun je ook nog eens snel de beste deals sluiten!

  • Kaart
  • Streetview