Verkocht OV

Burgemeester van Oppenstraat 79 6224 EP Maastricht

91m2
Wonen
4
Kamers
143m2
Perceel
1943
Bouwjaar
DEZE WONING WORDT AANGEBODEN DOOR POOTERS MAKELAARDIJ
Deze goed onderhouden en gemoderniseerde woning van circa 91 m2 biedt een fijne combinatie van wooncomfort, praktische indeling en duurzame voorzieningen. De woning is in de afgelopen jaren op meerdere punten vernieuwd en verduurzaamd, waaronder kunststof kozijnen, airconditioning, zonnepanelen en een volledig geïsoleerde uitbouw. Een instapklare woning met verrassend veel ruimte, zowel binnen als buiten.

Indeling:

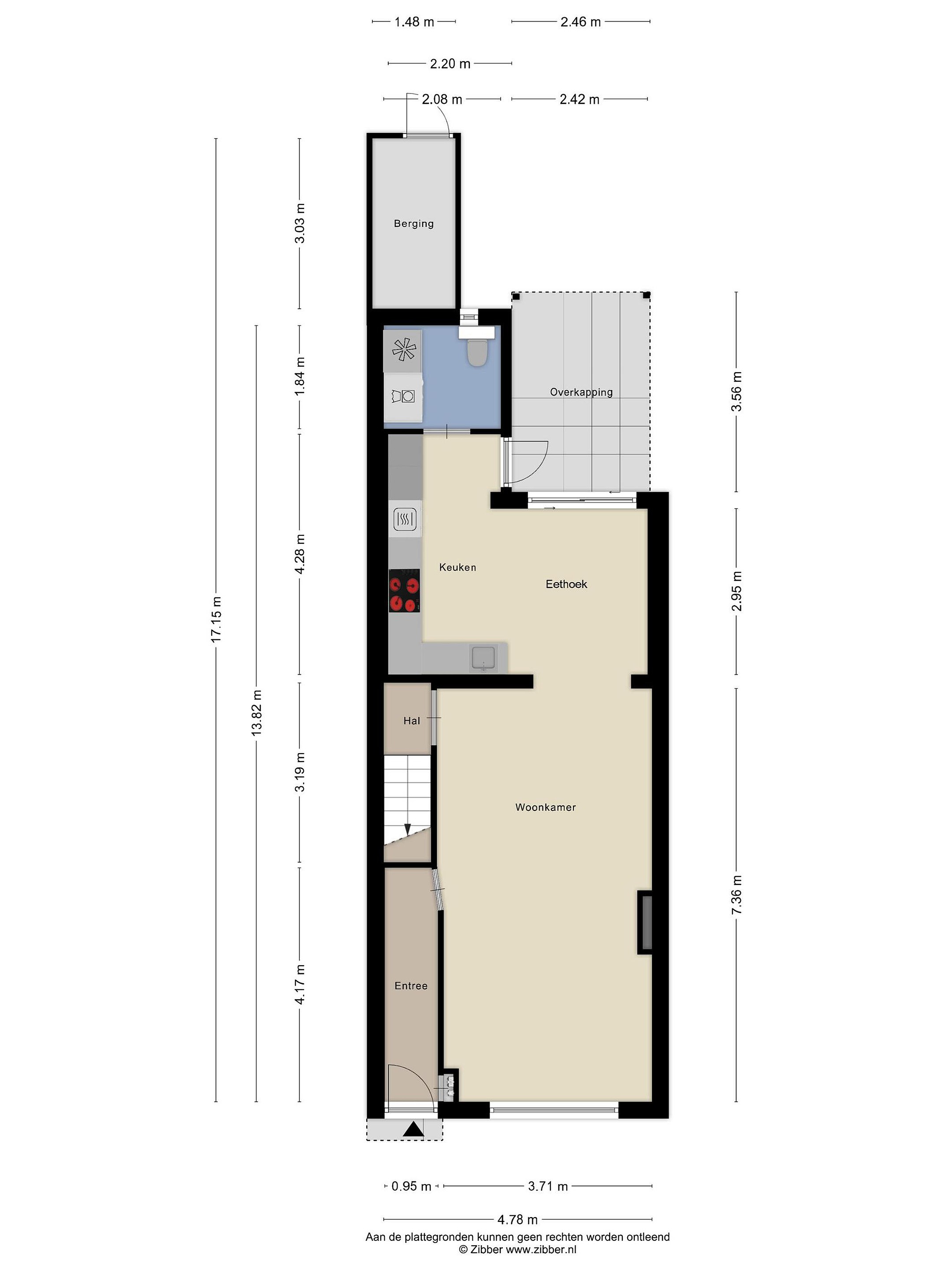
Begane grond:
Entree/hal met toegang naar de woonkamer. De ruime woonkamer (27 m2) is voorzien van een laminaatvloer, een volledig geïsoleerde uitbouw aan de achterzijde, airconditioning en profiteert van veel lichtinval. De luxe open keuken (16 m2) in hoekopstelling is vernieuwd in 2019 en uitgerust met een kunststof werkblad en moderne (inbouw)apparatuur, te weten: een 5-pits inductiekookplaat met design afzuigkap, spoelbak, combi-oven, vaatwasser en koelkast.
Aansluitend bevindt zich de praktische bijkeuken met wasmachineaansluiting, toilet en extra bergruimte. De achterzijde van de woning is voorzien van een kunststof schuifpui met isolerende beglazing naar de tuin, wat zorgt voor een prettige verbinding tussen binnen en buiten.

De onderhoudsvriendelijke achtertuin is voorzien van een overkapping, twee bergingen (waarvan één geplaatst circa 2022), een achterom en nieuwe schuttingen. Een fijne buitenruimte met volop mogelijkheden voor opslag en ontspanning.

Eerste verdieping:
Op de eerste verdieping bevinden zich twee slaapkamers van respectievelijk 12 m2 en 9 m2, beide afgewerkt met een laminaatvloer en voorzien van een inbouwkast. De slaapkamer aan de achterzijde beschikt over een airconditioning en biedt toegang tot de tweede verdieping middels vaste trap.
De badkamer (6 m2) is in 2024 aangepast en uitgevoerd met een vochtvrije laminaatvloer, inloopdouche met regenfunctie, wandcloset, wastafel met meubel en een designradiator. De woning beschikt over mechanische ventilatie, wat bijdraagt aan een gezond binnenklimaat.

Tweede verdieping:
De tweede verdieping is ingericht als derde slaapkamer (21 m2) en eveneens afgewerkt met een laminaatvloer. Hier bevindt zich tevens de cv-installatie (Nefit HR). De woning beschikt over dakisolatie.

Extra informatie:
- Voorzien van kunststof kozijnen met isolerende beglazing (grotendeels HR++);
- Geheel voorzien van rolluiken (m.u.v. voordeur);
- Goed onderhouden en instapklare tussenwoning;
- Verduurzaamd met o.a. airco en zonnepanelen;
- Warm water en verwarming worden verkregen middels combiketel (Nefit HR; bj. 2025; huur). Hesi circa € 45,- per maand;
- Mechanische ventilatie aanwezig;
- Airco in de woonkamer (2025) en in de ouderslaapkamer (2020);
- Toilet op de begane grond vernieuwd in 2025;
- Linker schuttingen in de achtertuin vernieuwd in 2025;
- Badkamer vernieuwd in 2024;
- 15 zonnepanelen geplaatst in 2024;
- De uitbouw is volledig geïsoleerd. Verder is het hoofddak geïsoleerd;
- Tweede berging geplaatst in achtertuin in 2022;
- Keuken vernieuwd in 2019;
- Voldoende parkeergelegenheid in de straat (betaald en middels vergunning).

Algemene informatie:
De woning is gelegen op loopafstand van diverse winkelvoorzieningen, basisscholen, kinderopvang en speeltuinen, wat de wijk bijzonder geschikt maakt voor (jonge) gezinnen. Ook op het gebied van bereikbaarheid is de ligging uitstekend. Het stadscentrum van Maastricht is binnen enkele minuten bereikbaar per fiets of auto en openbaar vervoer bevindt zich op loopafstand. Daarnaast zijn belangrijke uitvalswegen richting de A2 en A79 snel te bereiken, wat de locatie ideaal maakt voor forenzen. Voor ontspanning en recreatie liggen meerdere groenvoorzieningen en wandelroutes in de omgeving. De combinatie van rust, bereikbaarheid en nabijheid van stedelijke voorzieningen maakt deze locatie bijzonder aantrekkelijk.

Ter bescherming van de belangen van zowel koper als verkoper, wordt uitdrukkelijk gesteld dat een koopovereenkomst met betrekking tot deze onroerende zaak eerst dan tot stand komt nadat koper en verkoper de koopovereenkomst hebben getekend ("schriftelijkheidsvereiste").

De termijn die wordt opgenomen voor eventuele (overeengekomen) ontbindende voorwaarden (bv. Financiering) is in de regel 4 tot 6 weken na het sluiten van de mondelinge wilsovereenkomst.

De waarborgsom/bankgarantie is 10% van de koopsom. De koper dient deze 2 weken ná het vervallen van de ontbindende voorwaarden bij de desbetreffende notaris te deponeren.

Afhankelijk van de situatie van de woning, is de makelaar bevoegd om aanvullende bepalingen op te nemen in de koopovereenkomst, zoals een ouderdomsclausule of niet-bewoond clausule.

Koper is te allen tijde gerechtigd voor eigen rekening een bouwkundige keuring te (laten) verrichten dan wel andere adviseurs te raadplegen teneinde een goed inzicht te verkrijgen over de staat van onderhoud.

Bovenstaande vrijblijvende informatie is door Pooters Makelaardij met de nodige zorgvuldigheid samengesteld. Echter aanvaard Pooters Makelaardij geen enkele aansprakelijkheid voor enige onvolledigheid, onjuistheid of anderszins, dan wel de gevolgen daarvan. Oppervlakten en maten zijn indicatief.
Lees meer

Kenmerken

Overdracht

Prijs per m2
€ 3.626
Aangeboden sinds
14 januari 2026
Status
Verkocht onder voorbehoud
Aanvaarding
In overleg

Bouw

Soort woonhuis
Eengezinswoning, tussen woning
Soort bouw
Bestaande bouw
Bouwjaar
1943
Soort dak
Zadeldak
Staat van onderhouden binnen
Goed
Staat van onderhouden buiten
Goed

Oppervlakte en inhoud

Perceeloppervlakte
143 m2
Inhoud van de woning
381 m3
Oppervlakte externe bergruimte
7 m2
Oppervlakte gebouwgebonden buitenruimten
9 m2
Oppervlakte overige inpandige ruimten
16 m2

Indeling

Aantal kamers
4
Aantal slaapkamers
3
Aantal woonlagen
3
Voorzieningen
Tuin, schuur/berging, ventilatie, rolluiken, kabel-tv, airconditioning, schuifpui

Buitenruimte

Balkon
Nee
Schuur/berging
Ja

Maandlasten berekenen

De maandlasten voor je woning bestaan uit meer dan alleen de hypotheeklasten. Hieronder vind je een overzicht van de bijkomende kosten en lasten. Zo weet je precies wat je huis per maand gaat kosten. En met de handige vergelijkers kun je ook nog eens snel de beste deals sluiten!

  • Kaart
  • Streetview