Verkocht

Sjaak Boezemanstraat 1 3145 SW Maassluis

147m2
Wonen
5
Kamers
114m2
Perceel
2019
Bouwjaar
Op zoek naar een moderne instapklare woning met praktijk/kantoorruimte?

Aangeboden zeer ruime hoekwoning ( kangoeroewoning ) uit 2019 met op de begane grond een multifunctionele ruimte met eigen ingang, perfect te gebruiken als thuiskantoor of praktijk aan huis.

Deze sfeervolle woning kun je zó betrekken. De indeling is royaal en doordacht met 3 volwaardige slaapkamers en mooie badkamer op de tweede verdieping, een grote woonkamer met luxe open keuken en aansluitend gezellig terras op de eerste verdieping en de praktijkruimte op de begane grond.

De woning heeft 2 ingangen, voor de praktijk in de Sjaak Boezemanstraat en voor het privégedeelte in de Dr. Jan Schoutenstraat, waardoor wonen en werken goed gescheiden kunnen blijven.

De locatie is perfect: op loopafstand van winkelcentrum De Koningshoek, Theater de Koningshof en metrostation Maassluis-West. Met een korte wandeling sta je aan de Nieuwe Waterweg voor een frisse neus of een mooie zonsondergang. Met de metro sta je binnen 15 minuten op het strand in Hoek van Holland of binnen 25 minuten in het bruisende hart van Rotterdam. Met de auto ben je ook snel op pad, de A20 bereik je binnen 5 minuten.

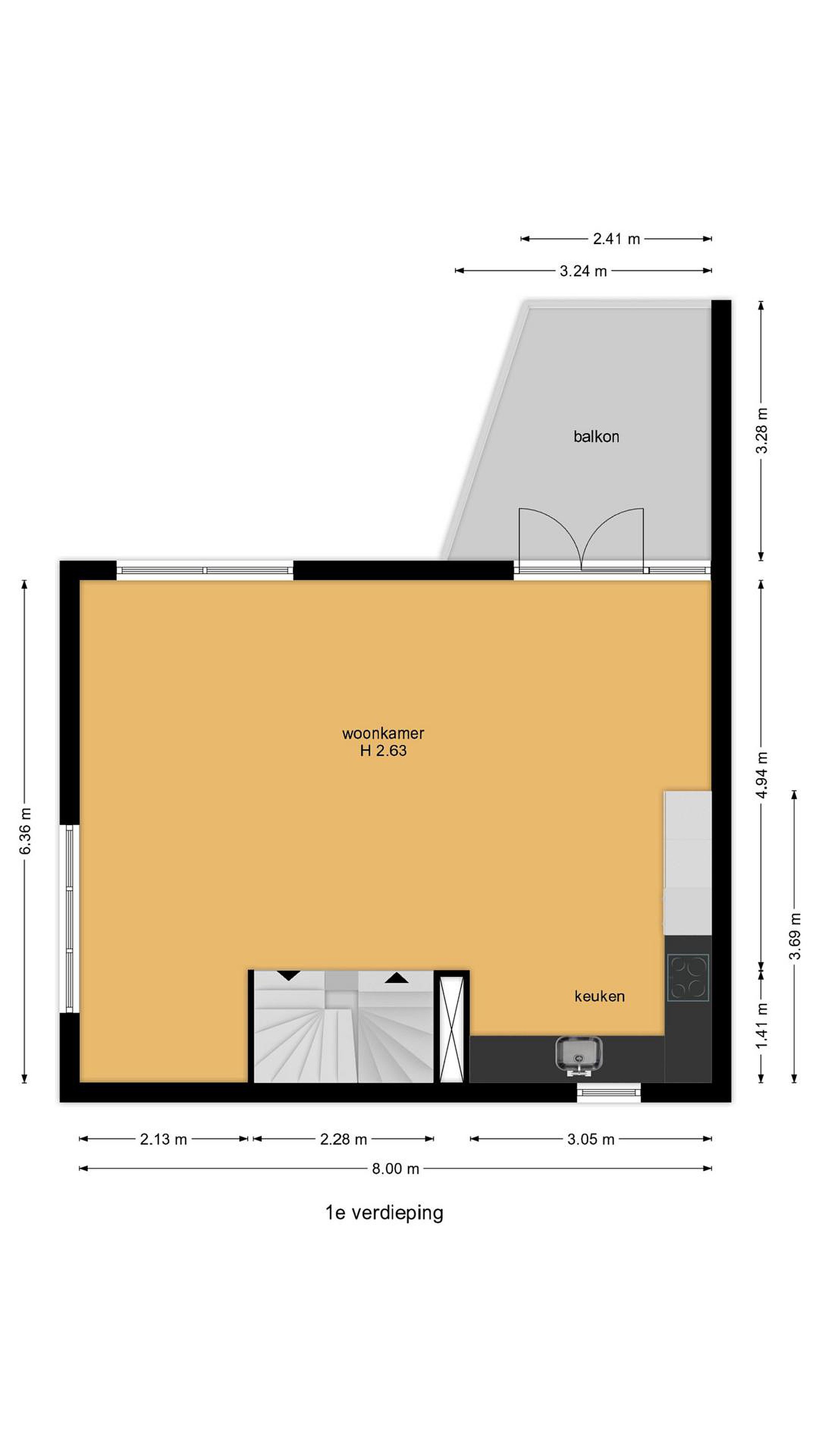
Voor de exacte indeling en indicatieve maatvoering verwijzen wij je graag naar de plattegronden.

Indeling:
Begane grond:
De praktijkruimte bereik je via een eigen ingang. De werkruimte is voorzien van een keurige PVC-vloer en heeft een pantry met waterkraan en afvoer. Tevens is er een grote inloopkast. De infrarood lampen zorgen niet alleen voor goede verlichting maar geven ook warmte af. In de entreehal bevindt zich tevens een modern toilet met fonteintje en zwevend closet. Een deur in de werkruimte biedt doorgang naar het privégedeelte.

De aan de achterzijde langs het water gelegen tuin is perfect ingedeeld en goed onderhouden. Het terras met palmboom is betegeld en geeft bijzonder veel privacy. De kunststof berging voor de kussens e.d. blijft achter.

Het privégedeelte heeft een eigen entree met modern toilet, meterkast (met waterontharder) en gestoffeerde trapopgang naar de eerste verdieping.

Eerste verdieping:
Het trappengat is geïsoleerd met kurk en afgewerkt met Renovlies behang. Hierna zijn de muren en het plafond strak en egaal gespoten.
In de zeer ruime woonkamer ligt een kwalitatief “click” laminaat. Via twee openslaande deuren kom je op het ruime terras. Hier hangt een elektrisch zonnescherm welke voor verkoeling zorgt. Daarnaast zorgt een airco voor extra verkoeling maar deze kan ook bij kou voor verwarming zorgen.

De ruime luxe open keuken is voorzien van de volgende inbouwapparatuur: vaatwasser, koel/vriescombinatie, 3-fasen inductiekookplaat, afzuigkap, oven, combi-oven met crisp functie en een modern kunststof blad. Tevens is er een kokend waterkraan van het merk Howat.

De open trap naar de tweede verdieping is ook voorzien van tapijt.

Tweede verdieping:
Op deze woonlaag bevinden zich de 3 ruime slaapkamers. De vloer is drempelloos doorgelegd met “click” PVC.

De master bedroom ligt aan de achterzijde. Alle slaapkamers hebben een kledingkast die achterblijft.

De moderne geheel betegelde badkamer heeft een wastafelmeubel, inloopdouche, toilet, infrarood verwarming en een anti condens spiegel met verlichting.

In de vaste kast op de overloop vind je de CV ketel, de wasmachineopstelling en de omvormers voor de 12 zonnepanelen.

Deze schitterende ruime en energiezuinige instapklare hoekwoning is tot in de puntjes afgewerkt en zo te betrekken. Mis deze kans niet en kom het huis en de omgeving zelf ervaren!

Bijzonderheden:
- Bouwjaar 2019
- Woonoppervlakte 147,5 m2
- Gelegen op eigen grond
- Energielabel A
- Kangoeroewoning
- Ruime inpandige berging buitenom bereikbaar
- 12 zonnepanelen aanwezig
- Airco in de woonkamer
- Elektrisch zonnescherm bij het terras
- Intercom (bedienbaar met app)
- Waterontharder aanwezig
- Koper aanvaardt de objectinformatie met aanvullende clausules
- Deze woning is per direct leverbaar!

Je kunt een bezichtiging aanvragen door op funda het formulier in te vullen. Er wordt dan contact met je opgenomen om een afspraak in te plannen.

De vermelde informatie is van algemene aard en is niet meer dan een uitnodiging om de woning te bezichtigen of om in onderhandeling te treden. Hoewel deze tekst en plattegrond met zorg zijn samengesteld zijn wij niet aansprakelijk voor eventuele onjuistheden. De toegepaste Meetinstructie sluit verschillen in meetuitkomsten niet volledig uit, door bijvoorbeeld interpretatieverschillen, afrondingen of beperkingen bij het uitvoeren van de meting. Aan de inhoud van deze informatie kunnen geen rechten worden ontleend.

Lees meer

Verkoopgeschiedenis

Aangeboden sinds
20 november 2025
Verkoopdatum
2 februari 2026
Looptijd
2 maanden

Kenmerken

Overdracht

Prijs per m2
€ 4.264
Aangeboden sinds
20 november 2025
Status
Verkocht
Aanvaarding
In overleg

Bouw

Soort woonhuis
Eengezinswoning, hoek woning
Soort bouw
Bestaande bouw
Bouwjaar
2019
Soort dak
Plat dak
Staat van onderhouden binnen
Uitstekend
Staat van onderhouden buiten
Uitstekend

Oppervlakte en inhoud

Perceeloppervlakte
114 m2
Inhoud van de woning
514 m3
Oppervlakte externe bergruimte
1 m2
Oppervlakte gebouwgebonden buitenruimten
9 m2
Oppervlakte overige inpandige ruimten
5 m2

Indeling

Aantal kamers
5
Aantal slaapkamers
4
Aantal woonlagen
3
Voorzieningen
Tuin, balkon, schuur/berging, ventilatie, glasvezel, buitenzonwering, airconditioning

Buitenruimte

Balkon
Ja
Schuur/berging
Ja

Maandlasten berekenen

De maandlasten voor je woning bestaan uit meer dan alleen de hypotheeklasten. Hieronder vind je een overzicht van de bijkomende kosten en lasten. Zo weet je precies wat je huis per maand gaat kosten. En met de handige vergelijkers kun je ook nog eens snel de beste deals sluiten!

  • Kaart
  • Streetview