Hobbemastraat 7 3141 GH Maassluis

103m2
Wonen
5
Kamers
145m2
Perceel
1960
Bouwjaar
Zeer goed onderhouden 5-kamer eengezinswoning met uitgebouwde woonkamer en grote tuin, gelegen aan een plantsoen in Maassluis-Oost met winkels, scholen en openbaar vervoer in de directe omgeving. Goede verbinding naar A20 en A4.

Het historisch centrum van Maassluis met diverse restaurants en leuke terrasjes is op loopafstand!

Deze woning kan begin maart al opgeleverd worden zodat je dit voorjaar al van de heerlijke zonnige tuin kan genieten.

Indeling:

Begane grond:
Entree, hal, modern zwevend toilet met fonteintje, trapkast, uitgebouwde woonkamer met PVC-vloer en vloerverwarming, open hoekkeuken met inbouwapparatuur, bijkeuken.

Via de bijkeuken bereik je de ruim 11 meter diepe achtertuin, voorzien van een stenen berging met verlichting. Er is tevens een achteruitgang.

1e verdieping:
Overloop, 3 slaapkamers, kast met aansluiting wasmachine, geheel betegelde badkamer met douchecabine en wastafelmeubel. De verdieping heeft laminaatvloeren.

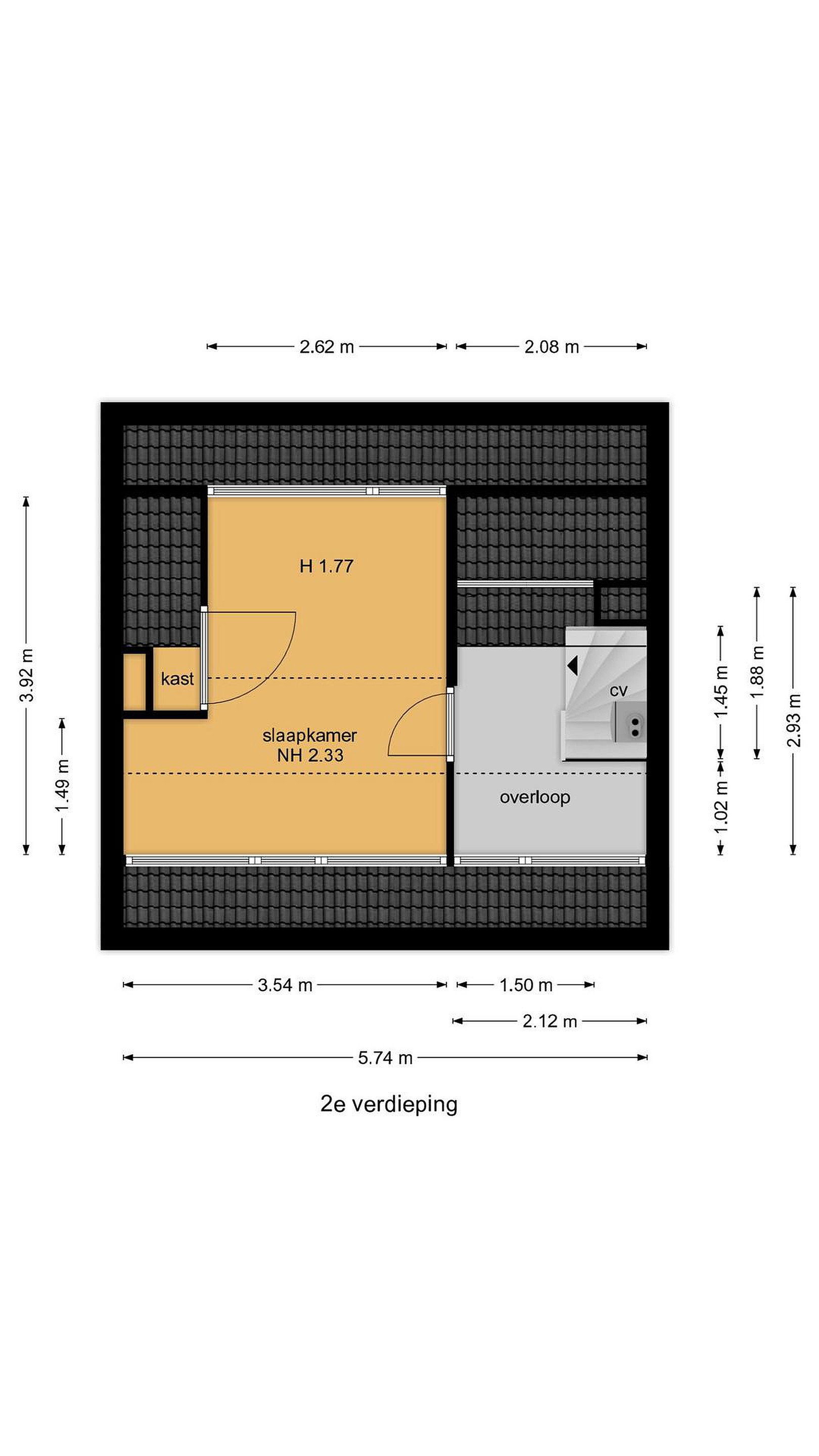
2e verdieping:
Via spiltrap bereikbare zolderverdieping met een nokverhoging, overloop met opstelling Cv-ketel en bergruimte, slaapkamer met bergruimtes achter de knieschotten.


Bijzonderheden:
- Bouwjaar 1960
- Woonoppervlakte 103,6 m2
- Gelegen op 145 m2 eigen grond
- Ruim 11 meter diepe achtertuin met stenen berging
- Energielabel C
- Benedenverdieping met vloerverwarming
- Gehele woning voorzien van dubbel glas
- Gedeeltelijk kunststof kozijnen
- Cv-ketel Remeha 2013
- Dakkapel met nokverhoging
- Gezien het bouwjaar wordt de ouderdom – en asbestclausule in de koopakte opgenomen
- Oplevering: kan snel (vanaf begin maart)


Je kunt een bezichtiging aanvragen door op funda het formulier in te vullen. Er wordt dan contact met je opgenomen om een afspraak in te plannen.

De vermelde informatie is van algemene aard en is niet meer dan een uitnodiging om de woning te bezichtigen of om in onderhandeling te treden. Hoewel deze tekst en plattegrond met zorg zijn samengesteld zijn wij niet aansprakelijk voor eventuele onjuistheden. De toegepaste Meetinstructie sluit verschillen in meetuitkomsten niet volledig uit, door bijvoorbeeld interpretatieverschillen, afrondingen of beperkingen bij het uitvoeren van de meting. Aan de inhoud van deze informatie kunnen geen rechten worden ontleend.





Lees meer

Kenmerken

Overdracht

Prijs per m2
€ 4.344
Aangeboden sinds
10 januari 2026
Status
Beschikbaar
Aanvaarding
In overleg

Bouw

Soort woonhuis
Eengezinswoning, tussen woning
Soort bouw
Bestaande bouw
Bouwjaar
1960
Soort dak
Zadeldak
Staat van onderhouden binnen
Goed
Staat van onderhouden buiten
Goed

Oppervlakte en inhoud

Perceeloppervlakte
145 m2
Inhoud van de woning
308 m3
Oppervlakte externe bergruimte
6 m2

Indeling

Aantal kamers
5
Aantal slaapkamers
4
Aantal woonlagen
3
Voorzieningen
Tuin, schuur/berging, glasvezel

Buitenruimte

Balkon
Nee
Schuur/berging
Ja

Maandlasten berekenen

De maandlasten voor je woning bestaan uit meer dan alleen de hypotheeklasten. Hieronder vind je een overzicht van de bijkomende kosten en lasten. Zo weet je precies wat je huis per maand gaat kosten. En met de handige vergelijkers kun je ook nog eens snel de beste deals sluiten!

  • Kaart
  • Streetview