Kruchterstraat 41 6051 CB Maasbracht

150m2
Wonen
5
Kamers
315m2
Perceel
1966
Bouwjaar
Keurig onderhouden en royaal uitgebouwde hoekwoning.
Met o.a. 4 slaapkamers, een keurig onderhouden tuin met een fraaie overkapping en veel leefruimte is dit de ideale woning voor een gezin.
De woning heeft een gunstige ligging t.o.v. winkels, scholen/opvang en sportvoorzieningen.
Binnen 5 minuten zijn de directe uitvalswegen (A2 of de A73) toegankelijk.
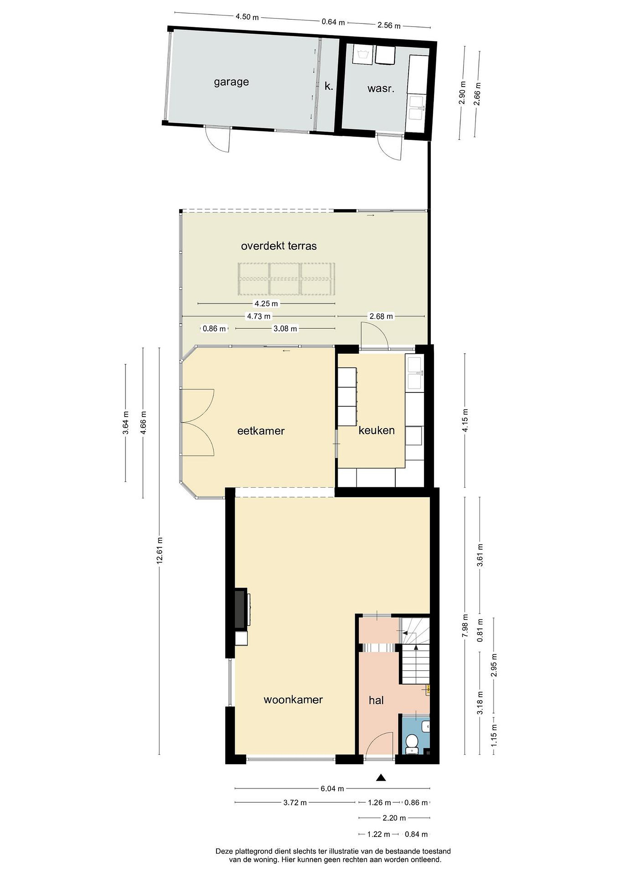
Begane grond
Souterrain:
Provisiekelder

Begane grond:
Hal/entree, meterkast, toilet met fonteintje.
L-vormige woonkamer (met airco-unit), voorzien van een open haard. In het verlengde bevindt zich de lichte eetkamer. Vanuit de eetkamer is de gesloten keuken bereikbaar. De keuken is zeer degelijk en voorzien van de volgende inbouwapparaat: inductiekookplaat, afzuigkap, vaatwasser, 2 (combi)ovens en een inbouw koffiemachine, koelkast en diepvries.
Zowel vanuit de keuken als vanuit de eetkamer (middels schuifpui), is de prachtige geïsoleerde overkapping/overdekt terras (welke voorzien is van een lichtstraat), bereikbaar.
Door de zeilen die open/dichtgemaakt kunnen worden, is het hier het gehele jaar door heerlijk vertoeven.

Tuin:
De tuin is onderhoudsvriendelijk aangelegd, volledig betegeld en voorzien van enkele sfeervolle boompjes.
In de tuin bevindt zich een separate houten berging.
Aan de achterzijde bevindt zich een separate stenen berging/bijkeuken alwaar zich de aansluitpunten voor de wasmachine/wasdroger bevinden.
Aan de voorzijde bevindt zich de garage. Deze is voorzien van een sectionaalpoort.

1e verdieping:
Overloop, 3 slaapkamers waarvan 2 slaapkamers voorzien zijn van een bergkast en de badkamer.
De badkamer is voorzien van een wastafel met opbergmeubel, een ligbad, en douche en een toilet.

2e verdieping:
Middels een vaste trap is de 2everdieping bereikbaar.
Hier bevindt zich de overloop, berging, cv ruimte en de royale 4e slaapkamer (voorzien van dakkapel)

Details
Centraal maar toch rustig gelegen;
Voorzien van energielabel A;
Perfect geïsoleerd;
Voorzien van 28 zonnepanelen / eigendom / Dmegc;
De gehele begane grond is voorzien van vloerverwarming;
De woning beschikt over kunststof kozijnen met HR +++ glas / 2023;
Voorzien van 3 airco units (elke verdieping) / eigendom / LG / 2020;
Voorzien van gevelisolatie, dakisolatie en vloerisolatie;
Cv-installatie: Nefit HR combi / eigendom / 2018;
De woning is voorzien van rolluiken;
Laadpaal aanwezig;
De buurt zal in 2027 geheel gerenoveerd worden (zie blauwdruk).

Deze verkoopinformatie is met de nodige zorgvuldigheid samengesteld. Hierbij zijn wij deels afhankelijk van informatie die wij van derden ontvangen. Aan onjuistheden en/of onvolkomenheden kunt u echter geen rechten ontlenen. Indien bepaalde informatie voor u van wezenlijk belang is dan adviseren wij u deze op juistheid te controleren. Onzerzijds wordt geen aansprakelijkheid aanvaardt voor enige onvolledigheid, onjuistheid of anderszins, dan wel de gevolgen daarvan.

Koper is te allen tijde gerechtigd voor eigen rekening een bouwkundige keuring te (laten) verrichten dan wel andere adviseurs te raadplegen teneinde een goed inzicht te verkrijgen over de staat van onderhoud.

Lees meer

Kenmerken

Overdracht

Prijs per m2
€ 2.967
Aangeboden sinds
9 april 2026
Status
Beschikbaar
Aanvaarding
In overleg

Bouw

Soort woonhuis
Eengezinswoning, hoek woning
Soort bouw
Bestaande bouw
Bouwjaar
1966
Soort dak
Zadeldak
Staat van onderhouden binnen
Uitstekend
Staat van onderhouden buiten
Uitstekend

Oppervlakte en inhoud

Perceeloppervlakte
315 m2
Inhoud van de woning
537 m3
Oppervlakte externe bergruimte
22 m2
Oppervlakte gebouwgebonden buitenruimten
32 m2
Oppervlakte overige inpandige ruimten
9 m2

Indeling

Aantal kamers
5
Aantal slaapkamers
4
Aantal woonlagen
4
Voorzieningen
Tuin, rolluiken, open haard, airconditioning

Buitenruimte

Balkon
Nee
Schuur/berging
Nee

Maandlasten berekenen

De maandlasten voor je woning bestaan uit meer dan alleen de hypotheeklasten. Hieronder vind je een overzicht van de bijkomende kosten en lasten. Zo weet je precies wat je huis per maand gaat kosten. En met de handige vergelijkers kun je ook nog eens snel de beste deals sluiten!

  • Kaart
  • Streetview