Verkocht

Schoolstraat 43 8315 AT Luttelgeest

115m2
Wonen
4
Kamers
259m2
Perceel
1996
Bouwjaar
Schoolstraat 43 te Luttelgeest, richtprijs € 359.500,- k.k.

Ruime 2-onder-1-kapwoning met bijkeuken, veranda en garage op een mooie hoekkavel in groen en kindvriendelijk Luttelgeest

Welkom aan de Schoolstraat 43 in Luttelgeest – een verrassend ruime 2-onder-1-kapwoning met een eigen oprit, garage met zolder, fijne veranda en drie volwaardige slaapkamers (met mogelijkheid voor een vierde). Deze woning ligt op een aantrekkelijke hoekkavel van 259 m2 eigen grond, in een rustige en groene woonomgeving waar het leven nog ontspannen is.

Wonen in Luttelgeest
Luttelgeest is een van de karakteristieke groendorpen van de Noordoostpolder: ruim opgezet, kindvriendelijk en omgeven door groen. Voor kinderen zijn er volop speeltuintjes, een dierenweide, en natuurlijk de basisschool (De Floreant) op loopafstand. Het dorpsleven bruist in het dorpshuis ‘De Bosfluiter’ en de kerk ‘De Schakel’.

In de nabije omgeving zijn diverse landwinkels met verse streekproducten. Voor een uitgebreider aanbod aan winkels, horeca en scholen zit je binnen no-time in Marknesse of Emmeloord. Voor ontspanning liggen natuurgebieden als het Kuinderbos, Schokland, Netl de Wildste Tuin en het Lemsterstrand binnen handbereik. En wat dacht je van een dagje Pantropica, letterlijk om de hoek?

Uitstekende bereikbaarheid is er ook: met de A6 in de buurt rijd je in minder dan een uur naar Amsterdam, Utrecht of Groningen. Lelystad en Zwolle zijn zelfs binnen een half uur bereikbaar.

Indeling en kenmerken van de woning
Deze goed onderhouden woning is gebouwd in 1996 en recent, in 2024, nog professioneel geschilderd. Met een woonoppervlakte van 115,20 m2, energielabel B en diverse fijne voorzieningen is dit een comfortabele gezinswoning met veel mogelijkheden.

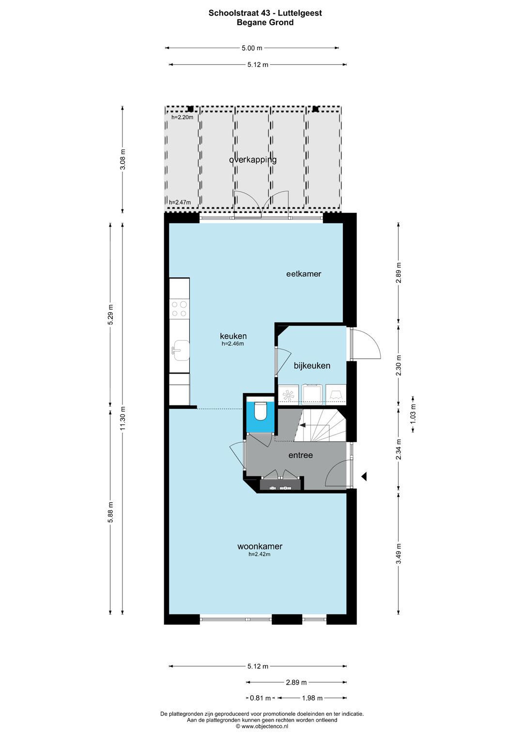
Begane grond:
- Entree met hal, meterkast, toilet en trapopgang
- Ruime L-vormige woonkamer met nette PVC vloer en vloerverwarming
- Woonkeuken met openslaande deuren naar de tuin en inbouwapparatuur: koelkast, oven, vaatwasser, 4-pits gaskookplaat en afzuigkap
- Praktische bijkeuken met witgoedaansluitingen
- Vrijstaande houten garage met stalen kanteldeur, loopdeur en bergzolder

1e verdieping:
- Overloop met vaste trap naar zolder
- Drie slaapkamers, allen voorzien van laminaat en extra ruimte dankzij de dakkapellen
- Luxe, volledig betegelde badkamer met ligbad, douchecabine, toilet, dubbel wastafelmeubel en designradiator

2e verdieping:
- Vaste trap naar multifunctionele zolder met twee dakramen
- Mogelijkheden voor een vierde slaapkamer
- Bergruimte achter knieschotten
- CV-opstelling (Remeha 2022) en mechanische ventilatie-unit

Buitenleven en extra’s
- Riante oprit met plek voor meerdere auto’s
- Vrijstaande garage met bergzolder – ideaal voor hobby, opslag of werk aan huis
- Verzorgde achtertuin met groot terras, gazon en fijne veranda aan de achtergevel
- Gelegen op een mooie hoeklocatie en veel privacy

Kortom
Ben je op zoek naar een ruime, goed onderhouden gezinswoning met garage, in een groene en rustige woonomgeving met goede voorzieningen én uitstekende bereikbaarheid? Dan is Schoolstraat 43 in Luttelgeest beslist een bezichtiging waard.

Geïnteresseerd?
Neem contact op met ons kantoor voor een bezichtiging. We laten je dit fijne huis graag zien!
Lees meer

Verkoopgeschiedenis

Aangeboden sinds
15 september 2025
Verkoopdatum
13 oktober 2025
Looptijd
één maand

Kenmerken

Overdracht

Prijs per m2
€ 3.121
Aangeboden sinds
15 september 2025
Status
Verkocht
Aanvaarding
In overleg

Bouw

Soort woonhuis
Eengezinswoning, twee-onder-een-kap woning
Soort bouw
Bestaande bouw
Bouwjaar
1996
Staat van onderhouden binnen
Goed
Staat van onderhouden buiten
Goed

Oppervlakte en inhoud

Perceeloppervlakte
259 m2
Inhoud van de woning
375 m3
Oppervlakte externe bergruimte
25 m2
Oppervlakte gebouwgebonden buitenruimten
15 m2

Indeling

Aantal kamers
4
Aantal slaapkamers
3
Aantal woonlagen
3
Voorzieningen

Buitenruimte

Balkon
Nee
Schuur/berging
Nee

Maandlasten berekenen

De maandlasten voor je woning bestaan uit meer dan alleen de hypotheeklasten. Hieronder vind je een overzicht van de bijkomende kosten en lasten. Zo weet je precies wat je huis per maand gaat kosten. En met de handige vergelijkers kun je ook nog eens snel de beste deals sluiten!

  • Kaart
  • Streetview