Verkocht

Aronskelk 6 8315 BG Luttelgeest

134m2
Wonen
5
Kamers
409m2
Perceel
2015
Bouwjaar
Aronskelk 6 – Luttelgeest
Richtprijs: € 449.500,- k.k.
Ruime 2-onder-1-kapwoning met woonkeuken, bijkeuken, 4 slaapkamers, grote overkapping en veel privacy op een mooie kavel met vrij uitzicht over landerijen.

Welkom aan de Aronskelk 6 in Luttelgeest!

Deze in 2015 gebouwde woning is een ruime en uitstekend onderhouden 2-onder-1-kapwoning met een bijkeuken, woonkeuken en vier slaapkamers staat op een aantrekkelijke plek met maar liefst 409 m2 eigen grond. De woning heeft een riante overkapping aan de achtergevel, heeft een energielabel A en biedt volop comfort, ruimte voor auto, caravan of camper op eigen oprit en mooi vrij uitzicht aan de voorzijde.

Hier woon je in een groene, kindvriendelijke omgeving waar het leven nog echt ontspannen is, met volop ruimte binnen én buiten.

Indeling
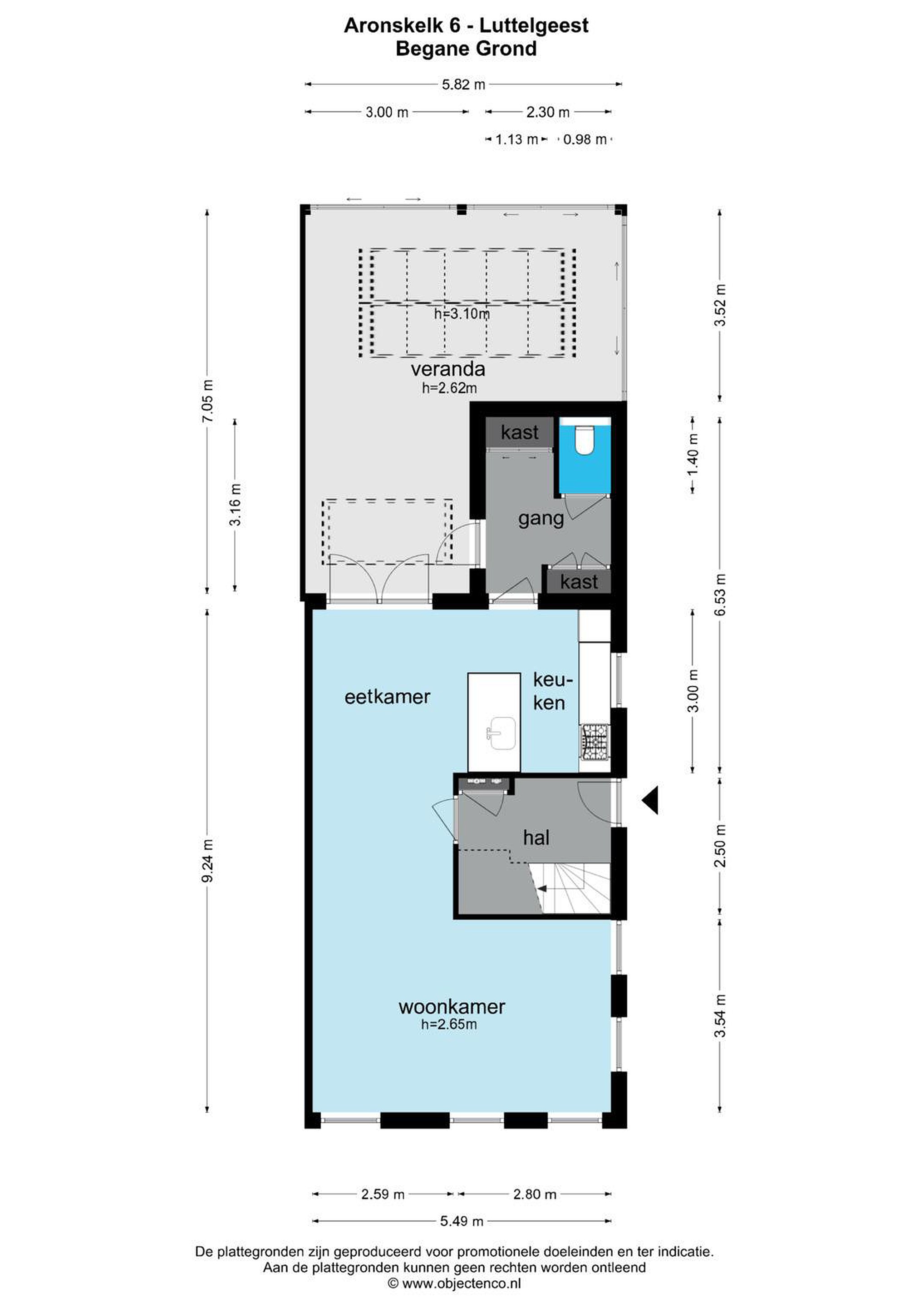
Begane grond
- Entree met hal, meterkast, trapopgang en deur naar de woonkamer.
- Ruime L-vormige straatgerichte woonkamer met veel raampartijen, lichte laminaatvloer met vloerverwarming.
- Woonkeuken met vloerverwarming, openslaande tuindeuren en schiereiland. Voorzien van moderne inbouwapparatuur: koel/vriescombinatie, combi-oven, vaatwasser (2025), 4-pits gaskookplaat en rvs-afzuigkap.
- Praktische bijkeuken met witgoedaansluitingen en kast met schuifdeuren. Hier is het toilet welke gedeeltelijk is betegeld. Deur naar de overkapping en achtertuin.
- Riante aangebouwde overkapping v.v. houtkachel, lichtkoepel en lichtstraat voor extra daglicht. Geheel is af te sluiten via lamelschuifpanelen.

Eerste verdieping
- Overloop met laminaatvloer, vaste trap naar de tweede verdieping en een inloopkast.
- Drie ruime slaapkamers met vloerbedekking en een luxe badkamer.
- Luxe, volledig betegelde badkamer met ligbad, inloopdouche, dubbele wastafelmeubel, toilet en mechanische ventilatie.

Tweede verdieping
- Vaste trap naar royale overloop met laminaatvloer, groot dakraam en toegang tot de vierde slaapkamer met dakraam natuurlijke lichtinval. Verder een aparte technische ruimte welke is v.v. wasmachine aansluiting, cv ketel (Intergas 2016), omvormer van de zonnepanelen en unit van de mechanische ventilatie.
- Extra bergruimte achter knieschotten.

Buitenleven
- Riante oprit met ruimte voor meerdere auto’s, caravan of camper.
- Verzorgde achtertuin met een terras, gazon, hagen en beplanting.
- Veel privacy dankzij de riante afsluitbare overkapping
- Houten tuinhuis met betonvloer en dak van golfplaten voor tuingereedschap en fietsen in achtertuin aanwezig

Belangrijke kenmerken
- Zeer lange oprit met mogelijkheden voor auto/ caravan/ camper of boot
- Luxe badkamer
- Luxe woonkeuken
- Praktische bijkeuken aanwezig
- Vloerverwarming gehele begane grond
- Woonoppervlakte: 134,50 m2
- Gebouwgebonden buitenruimte: 31,10 m2
- Externe bergruimte: 17,80 m2
- Perceeloppervlakte: 409 m2
- 12 zonnepanelen (2016 & 2022)
- Energielabel: A

Wonen in Luttelgeest
Luttelgeest is een van de sfeervolle groendorpen van de Noordoostpolder, ruim opgezet, rustig en uitgesproken kindvriendelijk. Diverse speeltuinen, een dierenweide en basisschool De Floreant liggen op loopafstand. Het sociale dorpsleven bruist in dorpshuis De Bosfluiter, sportvereniging Tonego en kerk De Schakel.

De omgeving biedt volop recreatiemogelijkheden: het Kuinderbos, werelderfgoed Schokland, Netl De Wildste Tuin, Pantropica, de Wellerwaard en het Lemsterstrand liggen allemaal in de buurt.

Voor dagelijkse boodschappen ben je snel in Marknesse (4 km) of Emmeloord (8 km). Dankzij de ligging nabij de A6 zijn steden als Lelystad, Almere, Zwolle, Utrecht en Amsterdam uitstekend bereikbaar.
Lees meer

Verkoopgeschiedenis

Aangeboden sinds
19 januari 2026
Verkoopdatum
24 april 2026
Looptijd
3 maanden

Kenmerken

Overdracht

Prijs per m2
€ 3.342
Aangeboden sinds
19 januari 2026
Status
Verkocht
Aanvaarding
In overleg

Bouw

Soort woonhuis
Eengezinswoning, twee-onder-een-kap woning
Soort bouw
Bestaande bouw
Bouwjaar
2015
Staat van onderhouden binnen
Goed
Staat van onderhouden buiten
Goed

Oppervlakte en inhoud

Perceeloppervlakte
409 m2
Inhoud van de woning
493 m3
Oppervlakte externe bergruimte
17 m2
Oppervlakte gebouwgebonden buitenruimten
31 m2

Indeling

Aantal kamers
5
Aantal slaapkamers
4
Aantal woonlagen
3
Voorzieningen
Tuin

Buitenruimte

Balkon
Nee
Schuur/berging
Nee

Maandlasten berekenen

De maandlasten voor je woning bestaan uit meer dan alleen de hypotheeklasten. Hieronder vind je een overzicht van de bijkomende kosten en lasten. Zo weet je precies wat je huis per maand gaat kosten. En met de handige vergelijkers kun je ook nog eens snel de beste deals sluiten!

  • Kaart
  • Streetview