Verkocht

Kennedystraat 22 5298 TR Liempde

140m2
Wonen
5
Kamers
257m2
Perceel
1966
Bouwjaar
Aan een rustige, groene straat in Liempde staat deze volledig gemoderniseerde, uitgebouwde en perfect afgewerkte twee-onder-een-kapwoning. De woning is oorspronkelijk gebouwd in 1966, maar is in 2021 van binnen en buiten compleet vernieuwd en daarna verder verduurzaamd. Het resultaat: energielabel A++, veel wooncomfort en een hoogwaardige afwerking.

Alle voorzieningen en (sport)verenigingen van Liempde liggen op loop- of fietsafstand. Boxtel, het NS-station en de oprit van de A2 zijn binnen enkele minuten bereikbaar.
Begane grond
Entree/hal met meterkast, toilet en kelderkast. Glazen deur naar de royale en lichte woonkamer met open keuken en grote glazen pui met schuifdeuren naar de tuin.
De luxe keuken met wandmeubel en kookeiland is voorzien van een inductiefornuis met heteluchtoven, grill en warmhoudlade, Quooker, koel-vriescombinatie, vaatwasser, magnetron en wijnklimaatkast.
Aan de straatzijde een ruime zithoek, aan de tuinzijde de eethoek. In het midden van de woonkamer de open trap.
Via een glazen deur bereik je het portaal in de aanbouw als eerste achterom met garderobe en doorgang naar de ruime berging met kasten.
In deze berging een tweede deur als tweede achterom direct naar de carport en een derde deur naar de achtertuin.

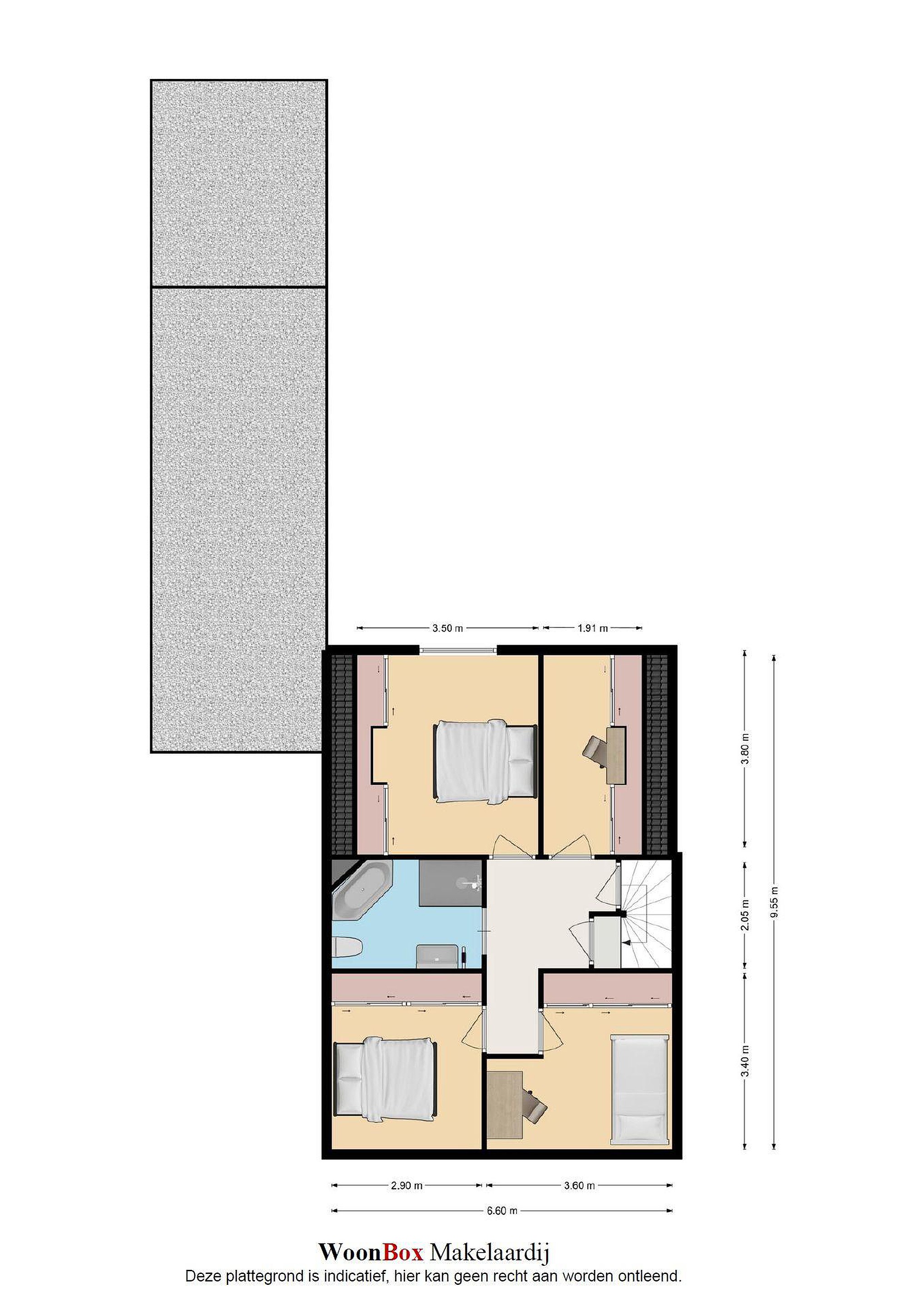
Eerste verdieping
Overloop met toegang tot vier slaapkamers, waarvan één in gebruik als werk-/studeerkamer. Alle kamers zijn strak afgewerkt en voorzien van een laminaatvloer en vaste kasten.
Moderne badkamer met ligbad, douchecabine, toilet, wastafelmeubel en elektrische vloerverwarming.

Tweede verdieping
Open ruimte met witgoedaansluitingen, bergruimte achter de knieschotten en een aparte technische ruimte met warmtepomp en elektrische boiler.

Tuin
Via de brede schuifpui stap je zo het terras op van de achtertuin.
De achtertuin is fraai aangelegd met olijfbomen, lichte bestrating en meerdere zitplekken, waardoor je je hier in Spanje waant. Achter de berging een tuinkamer met glazen schuifwand, buitenkeuken en loungehoek.
Aan de voorzijde een rustige breed opgezette straat met groenstrook.
Oprit en een strakke carport met lichtkoepel en de twee deuren in aanbouw als dubbele achterom.


Details
De verschillende vernieuwingen en aanpassingen op een rijtje:
2021 --> luxe badkamer, luxe keuken, gevel-, muur- en vloerisolatie, vloerverwarming, elektrische installatie, schilderwerk kozijnen, mechanische ventilatie.
2023 --> 12 zonnepanelen
2024 --> warmtepomp en elektrische boiler, gevels gereinigd, geïmpregneerd en opnieuw gevoegd, volledig zadeldak voorzien van nieuwe pannen

Lees meer

Verkoopgeschiedenis

Aangeboden sinds
4 februari 2026
Verkoopdatum
3 april 2026
Looptijd
2 maanden

Kenmerken

Overdracht

Prijs per m2
€ 4.250
Aangeboden sinds
4 februari 2026
Status
Verkocht
Aanvaarding
In overleg

Bouw

Soort woonhuis
Eengezinswoning, twee-onder-een-kap woning
Soort bouw
Bestaande bouw
Bouwjaar
1966
Soort dak
Zadeldak
Staat van onderhouden binnen
Uitstekend
Staat van onderhouden buiten
Uitstekend

Oppervlakte en inhoud

Perceeloppervlakte
257 m2
Inhoud van de woning
600 m3
Oppervlakte gebouwgebonden buitenruimten
19 m2
Oppervlakte overige inpandige ruimten
38 m2

Indeling

Aantal kamers
5
Aantal slaapkamers
4
Aantal woonlagen
3
Voorzieningen
Tuin, schuur/berging, ventilatie, dakraam

Buitenruimte

Balkon
Nee
Schuur/berging
Ja

Maandlasten berekenen

De maandlasten voor je woning bestaan uit meer dan alleen de hypotheeklasten. Hieronder vind je een overzicht van de bijkomende kosten en lasten. Zo weet je precies wat je huis per maand gaat kosten. En met de handige vergelijkers kun je ook nog eens snel de beste deals sluiten!

  • Kaart
  • Streetview