Verkocht

Het Brekkense Wiel 169 8531 RW Lemmer

98m2
Wonen
4
Kamers
175m2
Perceel
1992
Bouwjaar
Met een eigen steiger in de achtertuin en vrij uitzicht over het water is deze woning aan Het Brekkense Wiel een heerlijke plek om te wonen of recreëren. Vanuit de tuin vaar je zó de Friese meren of het IJsselmeer op, terwijl je thuis geniet van rust en het buitenleven.

De woonkamer is gericht op de tuin en het water, waardoor binnen en buiten moeiteloos in elkaar overlopen. De achtertuin is fraai aangelegd met vlonders aan de waterkant: een ideale plek voor een kop koffie in de ochtendzon of een gezellige borrel met vrienden.

Boven vind je drie slaapkamers en een badkamer, waardoor de woning praktisch en comfortabel is ingedeeld. Of je nu kiest voor permanent wonen of een tweede huis, hier heb je alle mogelijkheden.

Het centrum van Lemmer en het strand van het IJsselmeer liggen op korte fietsafstand, dus je hebt winkels, horeca en recreatie altijd dichtbij. Een unieke plek waar genieten van water, natuur en gezelligheid samenkomt.
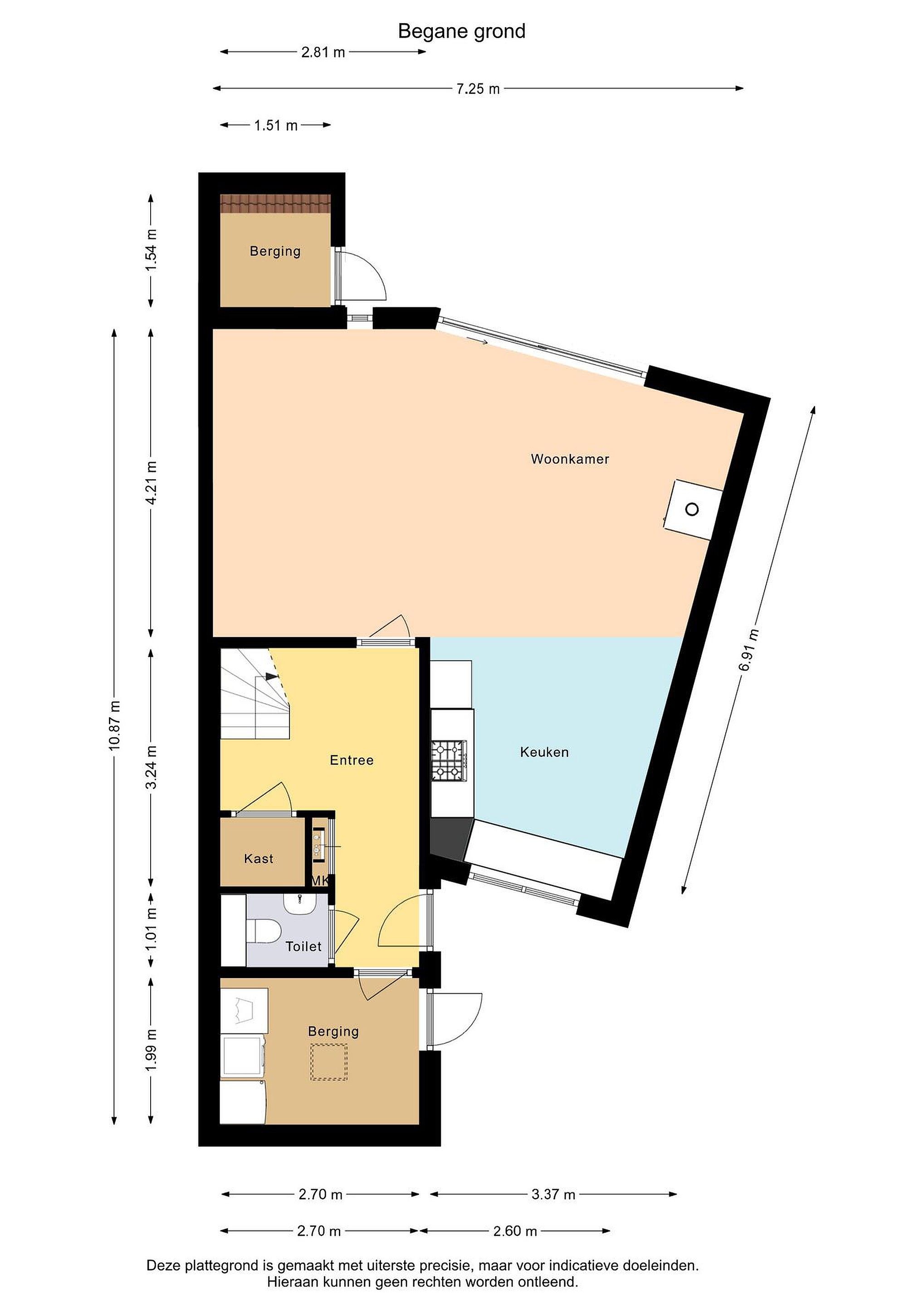
Begane grond
entree/hal, berging met witgoedaansluiting, toilet met fontein, meterkast, bergkast, trapopgang, tuingerichte woonkamer met schuifpui en open keuken voorzien van: Gasfornuis met afzuigkap, oven, vaatwasser en koelkast.

Eerste verdieping
overloop, 3 slaapkamers, badkamer met ligbad, douche, wastafelmeubel, toilet en bidet.

Tuin
De achtertuin is gesitueerd op het zuidoosten.

Details
Aanvullende informatie:
- bouwjaar 1992
- gebruiksoppervlakte wonen 98 m2
- overig inpandige ruimte 2 m2
- inhoud 345 m2
- perceeloppervlakte 175 m2
- tuin op zuidoosten
- 3 slaapkamers
- aan doorgaand vaarwater met eigen aanlegsteiger
- verplichte deelname aan VvE (www.hetbrekkensewiel.nl)
- zowel permanent als recreatief bewoonbaar
- aanvaarding in onderling overleg


Lees meer

Verkoopgeschiedenis

Aangeboden sinds
2 oktober 2025
Verkoopdatum
30 oktober 2025
Looptijd
één maand

Kenmerken

Overdracht

Prijs per m2
€ 3.724
Aangeboden sinds
2 oktober 2025
Status
Verkocht
Aanvaarding
In overleg

Bouw

Soort woonhuis
Eengezinswoning, tussen woning
Soort bouw
Bestaande bouw
Bouwjaar
1992
Soort dak
Zadeldak
Staat van onderhouden binnen
Goed
Staat van onderhouden buiten
Goed

Oppervlakte en inhoud

Perceeloppervlakte
175 m2
Inhoud van de woning
345 m3
Oppervlakte overige inpandige ruimten
2 m2

Indeling

Aantal kamers
4
Aantal slaapkamers
3
Aantal woonlagen
2
Voorzieningen

Buitenruimte

Balkon
Nee
Schuur/berging
Nee

Maandlasten berekenen

De maandlasten voor je woning bestaan uit meer dan alleen de hypotheeklasten. Hieronder vind je een overzicht van de bijkomende kosten en lasten. Zo weet je precies wat je huis per maand gaat kosten. En met de handige vergelijkers kun je ook nog eens snel de beste deals sluiten!

  • Kaart
  • Streetview