Verkocht

Het Brekkense Wiel 137 8531 RW Lemmer

90m2
Wonen
4
Kamers
175m2
Perceel
1992
Bouwjaar
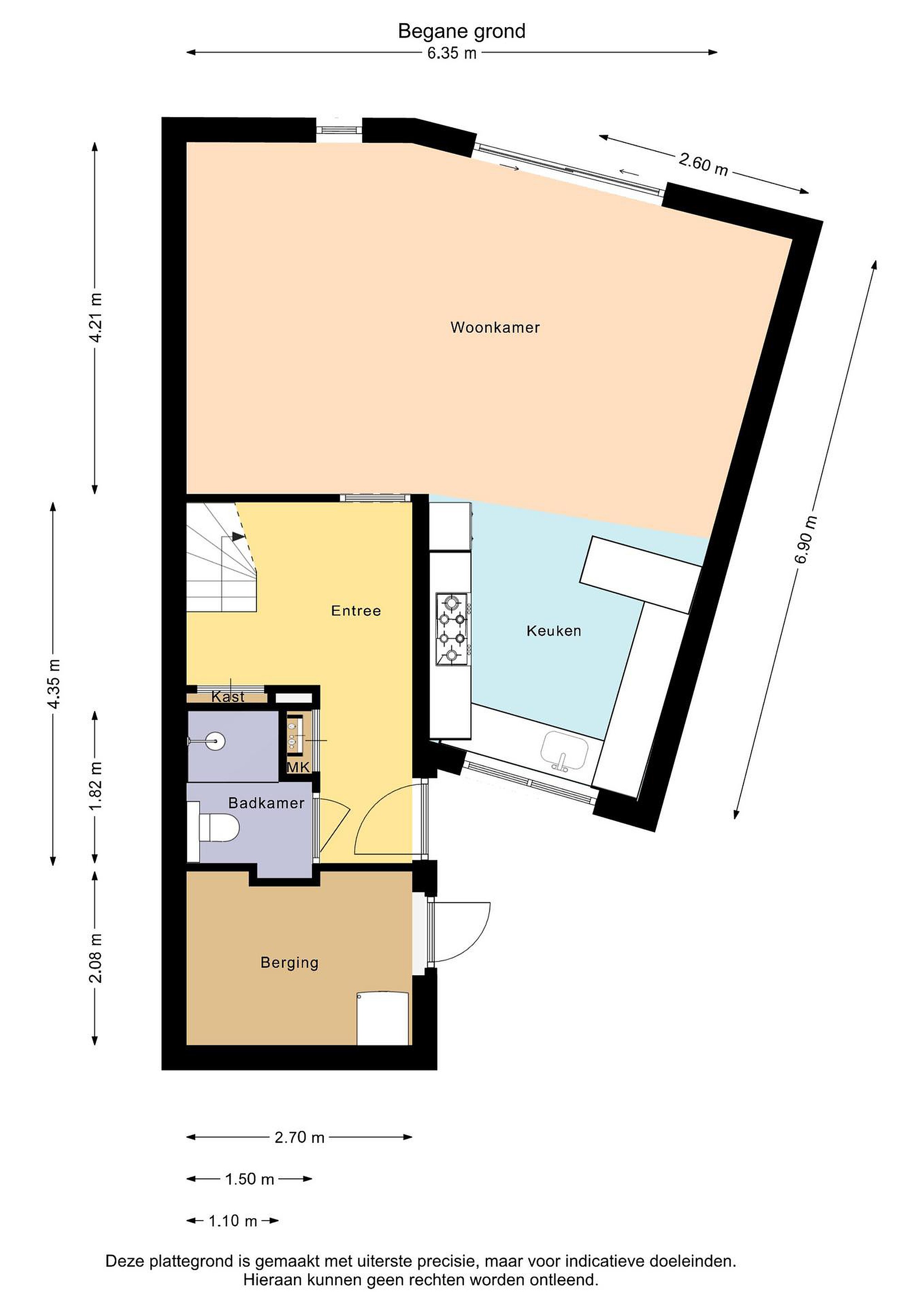
Aan het geliefde en waterrijke Het Brekkense Wiel ligt deze heerlijke woning waar recreatief én permanent wonen mogelijk is. Een unieke plek voor liefhebbers van water en vrijheid: vanuit je eigen tuin vaar je zo richting de Friese meren en het IJsselmeer. Binnen word je verwelkomd in een tuingerichte woonkamer met schuifpui naar de zonnige, onderhoudsvriendelijke achtertuin direct aan het water. De open U-vormige keuken met inbouwapparatuur sluit hier perfect op aan en vormt samen met de living een fijne, lichte leefruimte. Op de begane grond vind je daarnaast ook een praktische berging en een toilet met douche.
Op de eerste verdieping zijn drie slaapkamers, waarvan 1 is omgetoverd tot luxe sauna, en een moderne badkamer aanwezig. Hierdoor is deze woning zowel voor gezinnen als voor stellen ideaal.
Het gezellige en bruisende centrum van Lemmer en het IJsselmeerstrand liggen op slechts enkele minuten fietsen, terwijl je thuis geniet van rust, ruimte en uitzicht over het water. Een zeldzame combinatie van wonen, recreëren en varen vanuit je eigen achtertuin.
Begane grond
entree/hal, modern toilet met douche, meterkast, tuingerichte woonkamer met schuifpui en open keuken met inbouwapparatuur zoals: 6-pits gasfornuis met afzuigkap, oven, koelkast en vaatwasser.

Eerste verdieping
overloop, 3 slaapkamers waarvan 1 met sauna, moderne badkamer voorzien van: toilet, ligbad en wastafelmeubel.

Details
Aanvullende informatie:
- bouwjaar 1992
- gebruiksoppervlakte wonen 90 m2
- overig inpandige ruimte 6 m2
- inhoud 345 m3
- gelegen aan doorgaand vaarwater met eigen aanlegsteiger
- tuin op het zuiden
- zowel permanent als recreatief bewoonbaar
- verplichte deelname aan VvE (www.hetbrekkensewiel.nl)
- aanvaarding in onderling overleg


Lees meer

Verkoopgeschiedenis

Aangeboden sinds
23 januari 2026
Verkoopdatum
4 maart 2026
Looptijd
één maand

Kenmerken

Overdracht

Prijs per m2
€ 4.278
Aangeboden sinds
23 januari 2026
Status
Verkocht
Aanvaarding
In overleg
Bijzonderheden
Gemeubileerd

Bouw

Soort woonhuis
Eengezinswoning, tussen woning
Soort bouw
Bestaande bouw
Bouwjaar
1992
Soort dak
Zadeldak
Staat van onderhouden binnen
Goed
Staat van onderhouden buiten
Goed

Oppervlakte en inhoud

Perceeloppervlakte
175 m2
Inhoud van de woning
345 m3
Oppervlakte overige inpandige ruimten
6 m2

Indeling

Aantal kamers
4
Aantal slaapkamers
3
Aantal woonlagen
2
Voorzieningen
Schuifpui

Buitenruimte

Balkon
Nee
Schuur/berging
Nee

Maandlasten berekenen

De maandlasten voor je woning bestaan uit meer dan alleen de hypotheeklasten. Hieronder vind je een overzicht van de bijkomende kosten en lasten. Zo weet je precies wat je huis per maand gaat kosten. En met de handige vergelijkers kun je ook nog eens snel de beste deals sluiten!

  • Kaart
  • Streetview