Verkocht

Prinses Marijkelaan 12 2264 TD Leidschendam

147m2
Wonen
4
Kamers
335m2
Perceel
1952
Bouwjaar
Royale hoekwoning met grote tuin, serre en garage op een toplocatie aan een fraaie waterpartij

In de karakteristieke en geliefde wijk "Het Raadhuiskwartier" ligt deze ruime hoekwoning met een royale voor-, zij- en achtertuin, en eigen berging, een separate garage én de mogelijkheid om te parkeren op eigen terrein. De woning heeft een gunstige ligging met vrij uitzicht aan de voorzijde over een grote vijver met fontein. Door de hoekligging is er een prettige lichtinval, terwijl de begroeide tuin voldoende privacy biedt. Aan de achterzijde bevindt zich een serre die zorgt voor een extra leefruimte en een fijne verbinding met de tuin. De woning biedt een uitstekende basis en volop mogelijkheden om deze geheel naar eigen smaak verder te verfraaien en te optimaliseren. Het ruime perceel geeft bovendien gelegenheid om desgewenst uit te bouwen.

OMGEVING
De woning is gelegen in een rustige, kindvriendelijke en groene woonomgeving met aan de voorzijde een fraaie vijverpartij en veel openbaar groen. In de directe nabijheid vindt u diverse voorzieningen zoals scholen, sportfaciliteiten, winkels en openbaar vervoer naar de omliggende steden. Op korte afstand ligt het populaire Mall of the Netherlands, waar u terecht kunt voor een uitgebreid aanbod aan winkels, horeca en entertainment. Ook het historische Damcentrum met de gezellige sluisjes is op loopafstand. Daarnaast zijn de uitvalswegen richting Den Haag, Rotterdam en Amsterdam binnen enkele minuten bereikbaar, wat deze locatie bijzonder praktisch maakt voor zowel werk als ontspanning.


INDELING
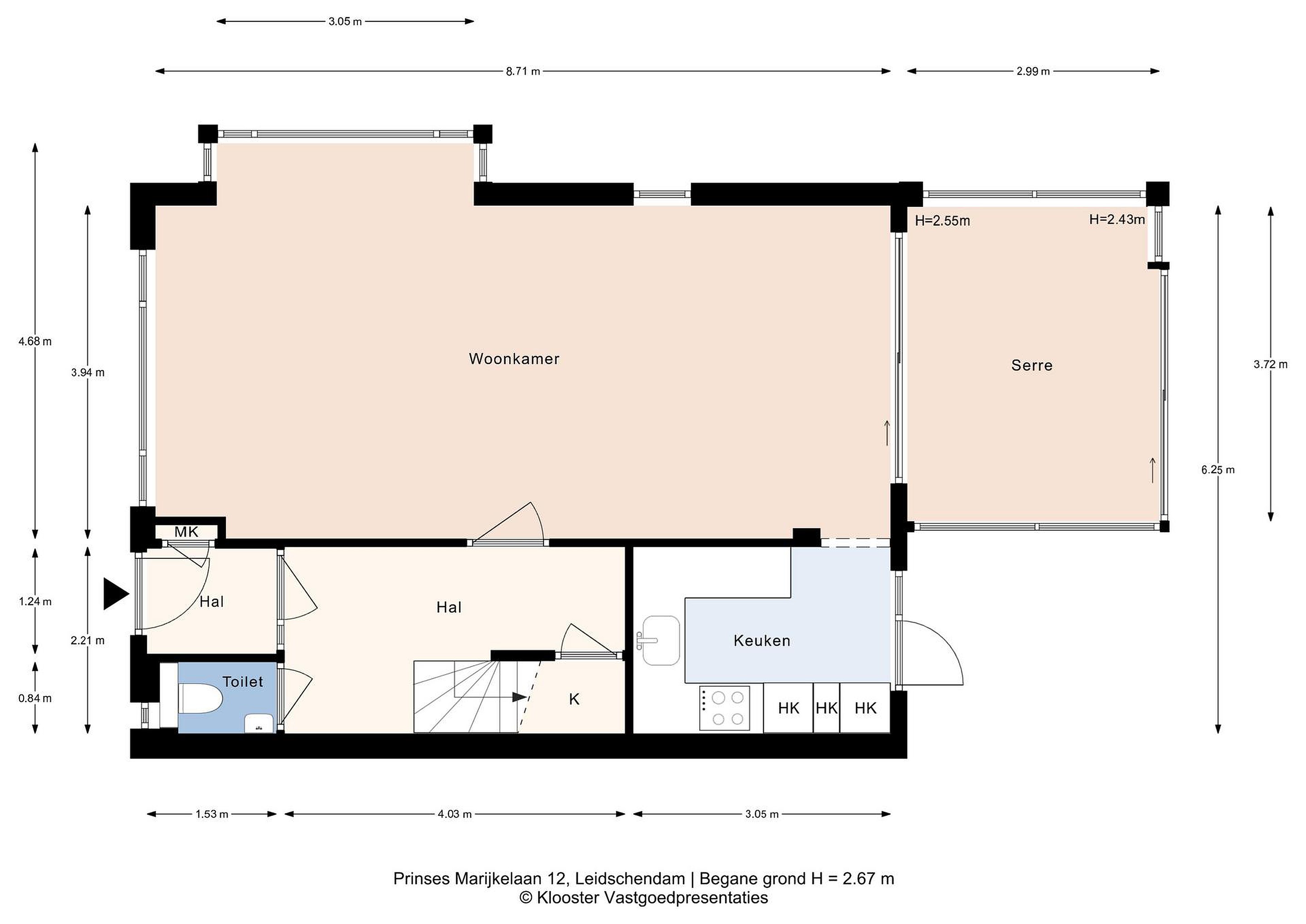
Begane grond:
Entree via de hal met toegang tot het toilet, meterkast en trapopgang. Vanuit de hal bereikt u de lichte woonkamer, die dankzij de hoekligging een aangename sfeer heeft. Aansluitend bevindt zich de serre aan de achterzijde, die de leefruimte vergroot en een directe verbinding met de tuin biedt. De keuken is voorzien van een modern keukenblok met inbouwapparatuur en heeft eveneens toegang tot de tuin.
Eerste verdieping:
Overloop met toegang tot de slaapkamers en de badkamer. Aan de voorzijde bevindt zich een ruime slaapkamer, die desgewenst eenvoudig kan worden opgesplitst in twee volwaardige slaapkamers. Aan de achterzijde ligt een tweede slaapkamer met toegang tot het balkon. De badkamer is uitgerust met een douche, wastafel en toilet.
Tweede verdieping:
Overloop met bergruimte en toegang tot een derde slaapkamer. Aan de achterzijde is een dakkapel geplaatst, wat zorgt voor extra ruimte en licht. Tevens bevindt zich op deze verdieping een praktische wasruimte met de mogelijkheid tot het realiseren van een tweede badkamer of een dakkapel aan de voorzijde voor het realiseren van een extra slaapkamer

BIJZONDERHEDEN
- Hoekwoning met extra lichtinval en privacy
- Royale voor-, zij- en achtertuin
- Gelegen aan een grote vijver aan de voorzijde
- Serre aan de achterzijde
- Separate garage en berging aanwezig
- Modern keukenblok met inbouwapparatuur
- Mogelijkheid tot creëren van extra slaapkamer(s)
- Balkon aan de achterzijde
- Tweede verdieping met dakkapel
- Voorbereiding/mogelijkheid voor tweede badkamer
- Veel potentie om de woning naar eigen wens te moderniseren
- Gelegen nabij Mall of the Netherlands
- Rustige en groene woonomgeving met goede bereikbaarheid
- Energielabel C
- Eigen grond
- Geheel dubbelglas
- Vrij parkeren

Een woning met ruimte, mogelijkheden en een uitstekende ligging – ideaal voor wie comfortabel wil wonen en tegelijkertijd zijn eigen woonwensen wil realiseren.


Lees meer

Verkoopgeschiedenis

Aangeboden sinds
16 april 2026
Verkoopdatum
15 mei 2026
Looptijd
één maand

Kenmerken

Overdracht

Prijs per m2
€ 5.345
Aangeboden sinds
16 april 2026
Status
Verkocht
Aanvaarding
In overleg

Bouw

Soort woonhuis
Eengezinswoning, hoek woning
Soort bouw
Bestaande bouw
Bouwjaar
1952
Soort dak
Zadeldak
Staat van onderhouden binnen
Redelijk
Staat van onderhouden buiten
Goed

Oppervlakte en inhoud

Perceeloppervlakte
335 m2
Inhoud van de woning
550 m3
Oppervlakte externe bergruimte
21 m2
Oppervlakte gebouwgebonden buitenruimten
8 m2

Indeling

Aantal kamers
4
Aantal slaapkamers
3
Aantal woonlagen
3
Voorzieningen
Tuin, balkon, schuur/berging

Buitenruimte

Balkon
Ja
Schuur/berging
Ja

Maandlasten berekenen

De maandlasten voor je woning bestaan uit meer dan alleen de hypotheeklasten. Hieronder vind je een overzicht van de bijkomende kosten en lasten. Zo weet je precies wat je huis per maand gaat kosten. En met de handige vergelijkers kun je ook nog eens snel de beste deals sluiten!

  • Kaart
  • Streetview