Verkocht

Dr. van Rhijnstraat 12 2351 AV Leiderdorp

77m2
Wonen
3
Kamers
85m2
Perceel
1915
Bouwjaar
In één van de mooiste straatjes van de oude Kerkwijk staat dit charmante 3 kamer tussenhuisje te koop. De Dr. Van Rhijnstraat ademt historie: een rustige, gezellige straat met karakteristieke gevels en een warme buurt sfeer. Je woont hier op een ideale plek, vlak bij de winkels van Leiderdorp én op korte afstand van het bruisende centrum van Leiden. Alles wat je nodig hebt ligt binnen handbereik, terwijl je toch volop geniet van rust en knusheid.
Wij noemen dit niet zomaar "een huisje om blij van te worden". Nostalgie, sfeer, bijna 80m2 woonoppervlak, modern en luxe afgewerkt en een goede achtertuin met achterom. Niet voor niets het populairste straatje volgens velen.

Van deze woning is ook een eigen website beschikbaar. Url van de website is straatnaam, dan het huisnummer en dan .nl. Behalve de foto’s op groot formaat zijn er ook allerlei handige tools. De relevante documentatie kan je hier vinden. Je kan ook zelf je afspraak maken via onze website of bv funda. Wel zo makkelijk.

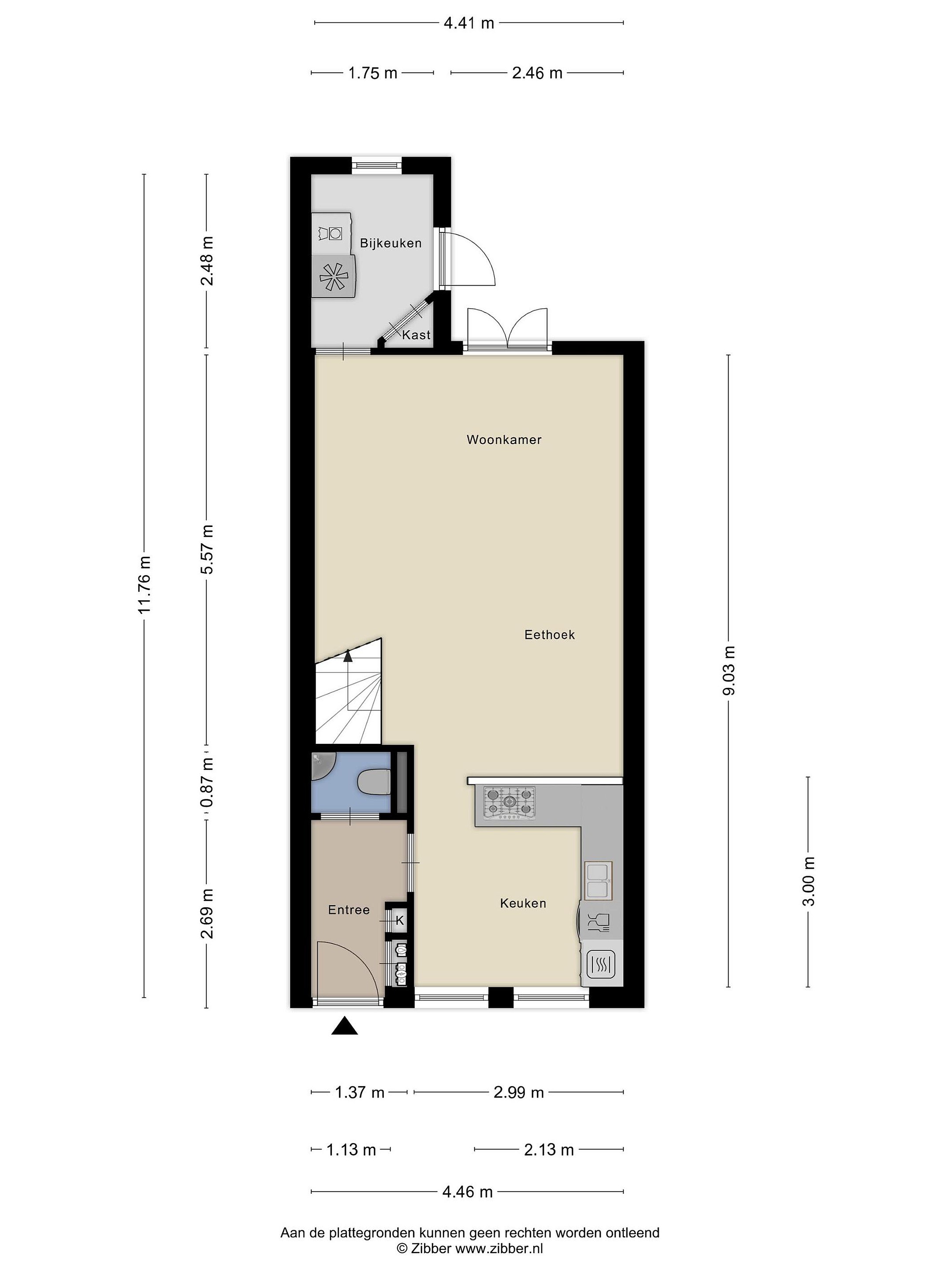
Begane grond
Zodra je in het straatje loopt merk je het al. Dit is bijzonder en je waant je terug in de tijd. Door naar het instap klare huisje. Ook dat gevoel heb je als je voor het huisje staat en binnenstapt. Dit is een huis met sfeer en nostalgie. Wel is alles in een modern jasje. Zo hebben we in de hal de vernieuwde meterkast en het moderne toilet met een fontein. Daarna kom je in de riante woonkamer, waar de slimme indeling gelijk opvalt. De moderne keuken is naar voren geplaatst, waardoor de leefruimte (met vloerverwarming) verrassend ruim en licht is geworden. Door de fijne openheid en de mooie hoogte voelt de ruimte groter dan je zou verwachten in dit type woning.

De open hoekkeuken aan de voorzijde is compleet ingericht met onder meer een koelkast met vriesvak, een vaatwasser, de 5-pits gaskookplaat, de afzuigkap en ovenunit. De bar richting de woonkamer maakt dit een gezellige plek waar je makkelijk samenkomt: ontbijten, borrelen of even bijpraten tijdens het koken – het kan hier allemaal. Achter in de woning vind je de ruime zitkamer met openslaande deuren naar de tuin en toegang tot de bijkeuken. De bijkeuken biedt extra bergruimte, plek voor de wasmachine en natuurlijk toegang tot buiten. De woonkamer is gewoon groot voor het type huis. Bijna 25m2 en dat is zonder de bijkeuken en de keuken. Ga gewoon eens zitten en geniet van de ruimte. Meerdere opstellingen zijn gewoon mogelijk. Daarna gaan we door naar de achtertuin via de openslaande deuren of via de bijkeuken.

De achtertuin ligt heerlijk op het zuidoosten en biedt altijd een plekje in de zon. Met ca. 30 m2 (exclusief schuur) heb je hier een fijne combinatie van groen en praktisch gebruik. Achterin staat een schuur met elektra; ideaal voor fietsen of opslag. Dankzij de achterom kom je makkelijk met je fiets uit of in de tuin.

Op de eerste etage vind je twee slaapkamers en een moderne en luxe badkamer. Beide slaapkamers hebben handige vaste kasten. Ideaal voor de spulletjes. De achterkamer is lekker ruim, strak afgewerkt en biedt volop bergruimte onder de schuine kap. De slaapkamer is groot genoeg voor een tweepersoonsbed.
De kamer aan de voorzijde is ook perfect afgewerkt. Ideaal als kinder-, werk- of logeerkamer. Ook hier dus een vaste kast over de gehele breedte

De badkamer is helemaal van nu: luxe en modern uitgevoerd met een tweede toilet, brede wastafel en een prachtige inloopdouche.

Dit charmante tussenhuisje in de geliefde Dr. Van Rhijnstraat biedt alles wat je zoekt: sfeer, comfort, een slimme indeling en een zonnige tuin met achterom. Dankzij de historische ligging in de oude Kerkwijk woon je hier rustig, maar toch vlak bij winkels én het centrum van Leiden. Met de moderne keuken, fijne leefruimte, twee nette slaapkamers en luxe badkamer is dit een heerlijk instap klaar huis op een toplocatie. Een plek waar je je direct thuis voelt.


Details
- Oplevering ca 24 maart 2026
- Energielabel C
- Van deze woning is ook een eigen website beschikbaar. Url van de website is straatnaam, dan het huisnummer en dan .nl. Behalve de foto’s op groot formaat zijn er ook allerlei handige tools. De relevante documentatie kan je hier vinden. Je kan ook zelf je afspraak maken via onze website of bv funda. Wel zo makkelijk.

Lees meer

Verkoopgeschiedenis

Aangeboden sinds
13 november 2025
Verkoopdatum
28 januari 2026
Looptijd
2 maanden

Kenmerken

Overdracht

Prijs per m2
€ 5.844
Aangeboden sinds
13 november 2025
Status
Verkocht
Aanvaarding
In overleg

Bouw

Soort woonhuis
Eengezinswoning, tussen woning
Soort bouw
Bestaande bouw
Bouwjaar
1915
Soort dak
Mansardedak
Staat van onderhouden binnen
Uitstekend
Staat van onderhouden buiten
Goed

Oppervlakte en inhoud

Perceeloppervlakte
85 m2
Inhoud van de woning
272 m3
Oppervlakte externe bergruimte
6 m2

Indeling

Aantal kamers
3
Aantal slaapkamers
2
Aantal woonlagen
2
Voorzieningen
Tuin, schuur/berging, kabel-tv

Buitenruimte

Balkon
Nee
Schuur/berging
Ja

Maandlasten berekenen

De maandlasten voor je woning bestaan uit meer dan alleen de hypotheeklasten. Hieronder vind je een overzicht van de bijkomende kosten en lasten. Zo weet je precies wat je huis per maand gaat kosten. En met de handige vergelijkers kun je ook nog eens snel de beste deals sluiten!

  • Kaart
  • Streetview